4.9
Рейтинг на основании 120 отзывов
Дмитров
Опорный проезд 28Б
(индустриальный парк Ниагара)
Бренд "Дмитров-Дело" c 2008 года на рынке строительства в Дмитрове
Звоните 9:00 до 18:00 8 (915) 055-33-61
Бренд "Дмитров-Дело" c 2008 года на рынке строительства в Дмитрове

Одноэтажный газобетонный дом в скандинавском стиле «Стетманн»

Стоимость проекта от:
89 550 ₽
БЕСПЛАТНО! ПРИ ЗАКАЗЕ СТРОИТЕЛЬСТВА
Стоимость строительства от:
13 615 580 ₽
Артикул ART-18834
Дата 26.12.2025
Архитектурный стиль Скандинавский
Количество надземных этажей 1
Круглогодичное проживание Да
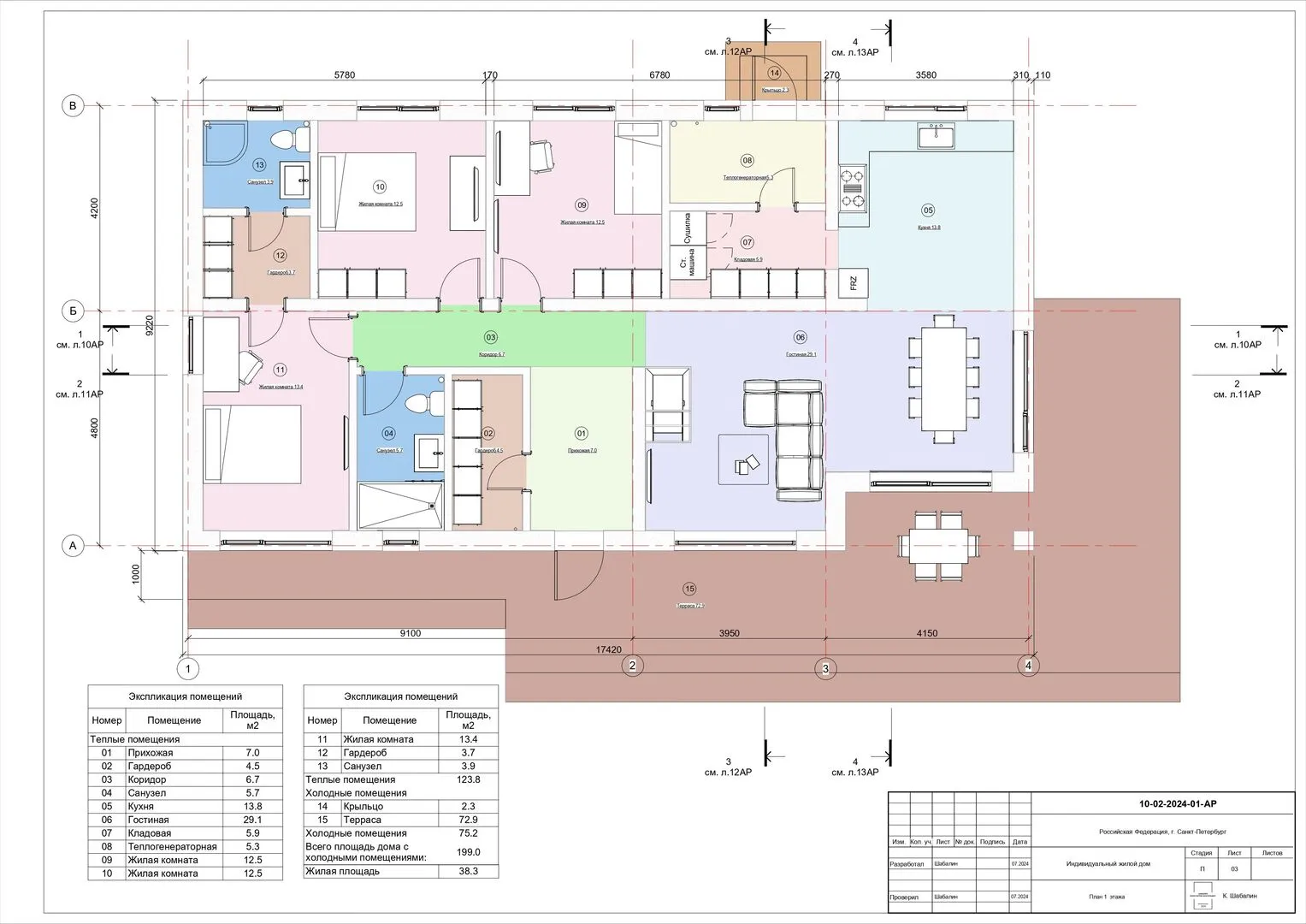
Площадь дома 199 м2
Санузлы 2
Спальни 3

Описание

Наслаждайтесь уютом скандинавского простора в нашем одноэтажном дома «Стетманн», где каждая деталь продумана для настоящего комфорта. Дом выполнен из легких газобетонных блоков, обеспечивающих теплоизоляцию и природный «дыхание» конструкций – идеальный выбор для круглогодичного проживания. Стиль “Скандинавский” проявляется в простых линиях, светлых оттенках и открытых пространствах, создавая ощущение безмятежности и вдохновения. На просторном этаже вы найдете светлую гостиную с панорамными окнами, ведущими к живописной террасе, где можно наслаждаться свежими воздухом и закатами. Внутри уютной атмосферы дополняет чердачное помещение — практичное и вдохновляющее место для хранения или превращения в дополнительный жилой уголок. Двускатная крыша придает дому характерный силуэт, подчёркивающий его функциональность и эстетику. Каждый элемент проекта «Стетманн» объединяет в себе простоту, практичность и красоту, делая ваш дом настоящим местом для жизни, отдыха и вдохновения. Приглашаем вас открыть дверь в пространство, где скандинавский стиль встречается с современным комфортом, а газобетонные стены обеспечивают тепло и уют круглый год.

Характеристики дома

Архитектурный стиль
Автоматизированное регулирование параметров теплоносителя
Нет
Балконы/лоджии
Отсутствуют
Чердачное помещение
Да
Датчики протечки воды
Нет
Эксплуатируемая или зеленая кровля
Нет
Электроснабжение
Индивидуальное
Газоснабжение
Индивидуальное
Изоляция воздушного шума
Нет
Камин
Нет
Класс энергоэффективности
-
Класс энергосбережения
-
Количество надземных этажей
1
Круглогодичное проживание
Да
Материал кровли
Фальцевая кровля Кликфальц
Материал перекрытий
Деревянные
Материал внешних стен
Материал внутренних перегородок
Блочные
Модульное строительство с конструкциями заводского изготовления
Нет
Объем надземной части
620 м3
Основной материал фасадов
Штукатурка
Отопление
Индивидуальное
Площадь дома
199 м2
Площадь застройки
199 м2
Подвальное помещение
Нет
Показатель компактности здания
-
Приборы учета тепловой энергии
Нет
Пристроенный гараж/крытая автостоянка
Нет
Противопожарная система
Нет
Санузлы
2
Совмещенная кухня-гостиная
Да
Спальни
3
Терраса
Да
Тип фундамента
Плитный
Тип кровли
Толщина внешних стен
400 мм
Толщина внутренних перегородок
150 мм
Улучшенные шумовые характеристики
Нет
Вентиляция
Принудительная
Веранда
Нет
Водоотведение
Локальные очистные сооружения
Водоснабжение
Индивидуальное
Высота дома
5.73 м
Высота потолков
2.8 м

Планировка

Фасад дома

Александр

Закажите выезд инженера

Александр

Выездной инженер
Закажите выезд инженера для точной диагностики и профессиональной консультации по инженерным системам. Специалист приедет в удобное время, проведёт осмотр, рассчитает стоимость работ и подберёт оптимальные решения для вашего дома.


    Похожие проекты

    Ипотека и
    рассрочка
    Одноэтажный дом «Миранда»
    Стоимость от:
    7 324 240
    Проект от: 41 400
    Этажей 1
    Санузлы 1
    Спальни 1
    Смотреть
    Ипотека и
    рассрочка
    Двухэтажный каменный дом КД-21
    Стоимость от:
    14 870 160
    Проект от: 94 050
    Этажей 2
    Санузлы 2
    Спальни 5
    Смотреть
    Ипотека и
    рассрочка
    Проект дома с большой террасой и навесом для автомобиля S-158
    Стоимость от:
    19 705 680
    Проект от: 129 150
    Этажей 2
    Санузлы 3
    Спальни 3
    Смотреть
    Ипотека и
    рассрочка
    Одноэтажный модульный дом «Бархаус М1»
    Стоимость от:
    1 784 640
    Проект от: 14 400
    Этажей 1
    Санузлы 1
    Спальни 1
    Смотреть
    Ипотека и
    рассрочка
    Загородный дом ВС-119
    Стоимость от:
    12 178 760
    Проект от: 80 100
    Этажей 1
    Санузлы 3
    Спальни 3
    Смотреть
    Ипотека и
    рассрочка
    Загородный дом ВС-102
    Стоимость от:
    18 952 340
    Проект от: 124 650
    Этажей 1
    Санузлы 2
    Спальни 3
    Смотреть

    Как узнать стоимость дома

    back
    Оставляете заявку
    Вы заполняете форму на сайте или звоните нам. Менеджер Лайвкрафт связывается с вами для уточнения деталей: тип дома, площадь, материалы, участок строительства.
    back
    Консультация и подбор решения
    Наш специалист помогает выбрать оптимальный тип дома и конструкцию с учётом бюджета, сроков и целей — будь то дом для постоянного проживания или дача.
    back
    Расчёт предварительной стоимости
    Инженер делает первичный расчёт стоимости строительства по вашим параметрам: фундамент, коробка, кровля, отделка. Вы получаете смету с разбивкой по этапам.
    back
    Корректировка и утверждение сметы
    При необходимости вносим изменения — например, замену материалов или сокращение этапов. После согласования формируется окончательная фиксированная смета.
    back
    Заключение договора и старт работ
    После утверждения сметы заключаем официальный договор с гарантией. Вы получаете прозрачный график и точную стоимость — без скрытых расходов.

    Заказать конусльтацию по:Одноэтажный газобетонный дом в скандинавском стиле «Стетманн»

    Фото 1 Одноэтажный газобетонный дом в скандинавском стиле «Стетманн»


      Наши
      контакты

      Дмитров
      Опорный проезд 28Б
      (индустриальный парк Ниагара)
      9:00 до 18:00

      Корзина