4.9
Рейтинг на основании 120 отзывов
Дмитров
Опорный проезд 28Б
(индустриальный парк Ниагара)
Бренд "Дмитров-Дело" c 2008 года на рынке строительства в Дмитрове
Звоните 9:00 до 18:00 8 (915) 055-33-61
Бренд "Дмитров-Дело" c 2008 года на рынке строительства в Дмитрове

Одноэтажный каменный классический дом Ц-52-67

Стоимость проекта от:
38 700 ₽
БЕСПЛАТНО! ПРИ ЗАКАЗЕ СТРОИТЕЛЬСТВА
Стоимость строительства от:
6 847 720 ₽
Артикул ART-1131
Дата 25.12.2025
Архитектурный стиль Классический
Количество надземных этажей 1
Круглогодичное проживание Да
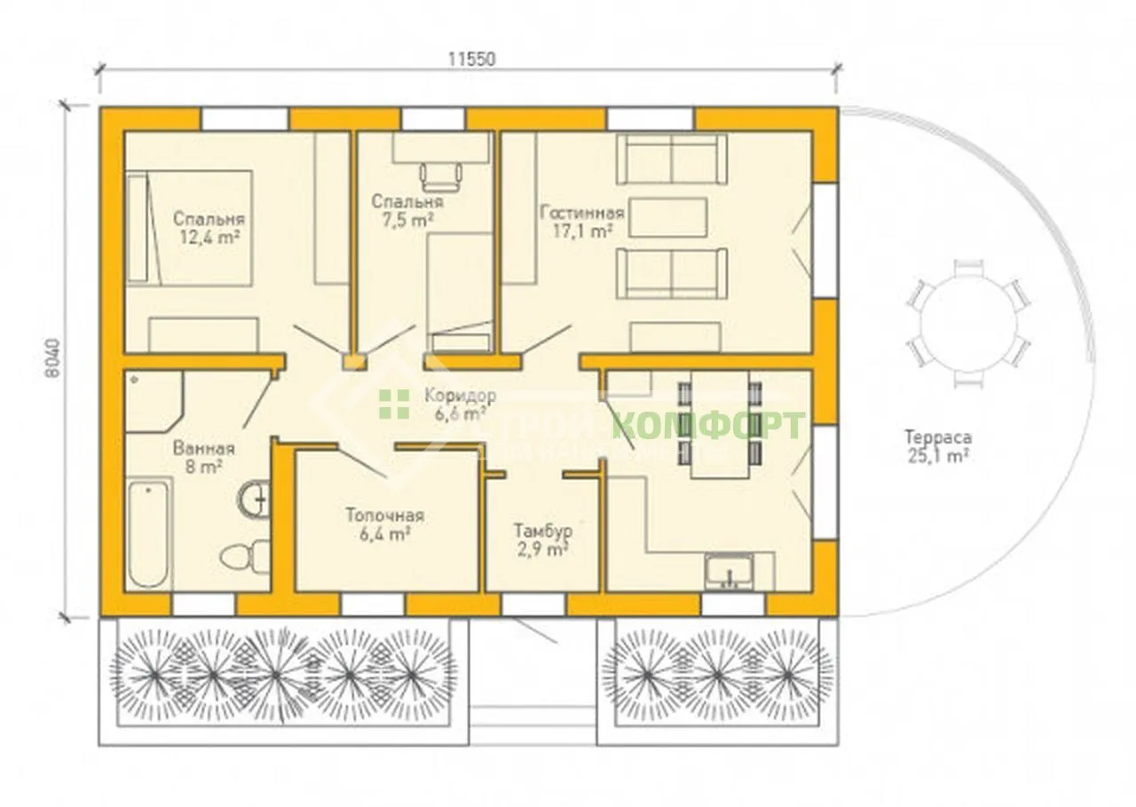
Площадь дома 86 м2
Санузлы 1
Спальни 2

Описание

**Дом, где классика встречается с комфортом** Величественный одноэтажный каменный дом Ц‑52‑67 в строгом классическом стиле поражает своей простотой и гармонией. Он создан из прочных газобетонных блоков, что придает стенам светлый, воздушный вид, а при этом сохраняет тепло и защищает от ветра и шума. Четырехскатная (вальмовая) крыша, выполненная в традиционном русом стиле, придаёт зданию утонченность и завершённость, а просторная веранда приглашает насладиться уединённым временем под открытым небом, не утрачивая при этом эстетики классической архитектуры. Дом сконструирован для круглогодичного проживания: утепленные фасады, качественные окна и утеплённая крыша обеспечивают уют как в знойные летние дни, так и в холодную зимнюю пору. Удобная планировка одного этажа делает внутреннее пространство проходимым и приятным для повседневной жизни без лишних переходов и лестниц. Отсутствие балконов и лестничных клеток делает дом особенно привлекательным для тех, кто ценит приватность и простоту. Задний двор, хотя и без чёрда, располагает к организации собственного огорода, сада или детской площадки. Дом Ц‑52‑67 — это идеальный выбор для тех, кто хочет сочетать в одном обителе традиционный русский дизайн, практичность и комфорт. Он дарит вам спокойствие, уют и пространство, где каждый уголок становится вашим собственным уголком счастья. Приглашаем заглянуть и почувствовать себя дома уже сегодня.

Характеристики дома

Архитектурный стиль
Автоматизированное регулирование параметров теплоносителя
-
Балконы/лоджии
Отсутствуют
Чердачное помещение
Нет
Датчики протечки воды
-
Эксплуатируемая или зеленая кровля
-
Электроснабжение
Центральное
Газоснабжение
Индивидуальное
Изоляция воздушного шума
-
Камин
Нет
Класс энергоэффективности
-
Класс энергосбережения
-
Количество надземных этажей
1
Круглогодичное проживание
Да
Материал кровли
Металлочерепица
Материал перекрытий
Монолитные железобетонные
Материал внешних стен
Материал внутренних перегородок
Пенобетонные
Модульное строительство с конструкциями заводского изготовления
Нет
Объем надземной части
117 м3
Основной материал фасадов
Штукатурка
Отопление
Индивидуальное
Площадь дома
86 м2
Площадь застройки
92 м2
Подвальное помещение
Нет
Показатель компактности здания
-
Приборы учета тепловой энергии
-
Пристроенный гараж/крытая автостоянка
Нет
Противопожарная система
Нет
Санузлы
1
Совмещенная кухня-гостиная
Нет
Спальни
2
Терраса
Нет
Тип фундамента
Ленточный
Толщина внешних стен
300 мм
Толщина внутренних перегородок
120 мм
Улучшенные шумовые характеристики
-
Вентиляция
2 варианта
Веранда
Да
Водоотведение
Локальные очистные сооружения
Водоснабжение
2 варианта
Высота дома
5.5 м
Высота потолков
2.8 м

Планировка

Фасад дома

Александр

Закажите выезд инженера

Александр

Выездной инженер
Закажите выезд инженера для точной диагностики и профессиональной консультации по инженерным системам. Специалист приедет в удобное время, проведёт осмотр, рассчитает стоимость работ и подберёт оптимальные решения для вашего дома.


    Похожие проекты

    Ипотека и
    рассрочка
    Одноэтажный дом с 3-я спальнями 9х12
    Стоимость от:
    5 607 085
    Проект от: 43 650
    Этажей 1
    Санузлы 1
    Спальни 3
    Смотреть
    Ипотека и
    рассрочка
    Жилой дом тип 28
    Стоимость от:
    5 939 780
    Проект от: 35 550
    Этажей 1
    Санузлы 2
    Спальни 2
    Смотреть
    Ипотека и
    рассрочка
    Скив Лайт 4
    Стоимость от:
    10 183 360
    Проект от: 57 600
    Этажей 1
    Санузлы 2
    Спальни 3
    Смотреть
    Ипотека и
    рассрочка
    SVOI-24-1-83 Одноэтажный дом 83 кв.м.
    Стоимость от:
    6 239 860
    Проект от: 37 350
    Этажей 1
    Санузлы 1
    Спальни 2
    Смотреть
    Ипотека и
    рассрочка
    Загородный дом «Сандал»
    Стоимость от:
    9 519 360
    Проект от: 67 050
    Этажей 2
    Санузлы 2
    Спальни 5
    Смотреть
    Ипотека и
    рассрочка
    БМ 101
    Стоимость от:
    12 441 360
    Проект от: 76 050
    Этажей 2
    Санузлы 2
    Спальни 3
    Смотреть

    Как узнать стоимость дома

    back
    Оставляете заявку
    Вы заполняете форму на сайте или звоните нам. Менеджер Лайвкрафт связывается с вами для уточнения деталей: тип дома, площадь, материалы, участок строительства.
    back
    Консультация и подбор решения
    Наш специалист помогает выбрать оптимальный тип дома и конструкцию с учётом бюджета, сроков и целей — будь то дом для постоянного проживания или дача.
    back
    Расчёт предварительной стоимости
    Инженер делает первичный расчёт стоимости строительства по вашим параметрам: фундамент, коробка, кровля, отделка. Вы получаете смету с разбивкой по этапам.
    back
    Корректировка и утверждение сметы
    При необходимости вносим изменения — например, замену материалов или сокращение этапов. После согласования формируется окончательная фиксированная смета.
    back
    Заключение договора и старт работ
    После утверждения сметы заключаем официальный договор с гарантией. Вы получаете прозрачный график и точную стоимость — без скрытых расходов.

    Заказать конусльтацию по:Одноэтажный каменный классический дом Ц-52-67

    Фото 1 Одноэтажный каменный классический дом Ц-52-67


      Наши
      контакты

      Дмитров
      Опорный проезд 28Б
      (индустриальный парк Ниагара)
      9:00 до 18:00

      Корзина