4.9
Рейтинг на основании 120 отзывов
Дмитров
Опорный проезд 28Б
(индустриальный парк Ниагара)
Бренд "Дмитров-Дело" c 2008 года на рынке строительства в Дмитрове
Звоните 9:00 до 18:00 8 (915) 055-33-61
Бренд "Дмитров-Дело" c 2008 года на рынке строительства в Дмитрове

Одноэтажный Каркасный дом с 3 спальнями КД 83

Стоимость проекта от:
28 800 ₽
БЕСПЛАТНО! ПРИ ЗАКАЗЕ СТРОИТЕЛЬСТВА
Стоимость строительства от:
4 062 080 ₽
Артикул ART-13100
Дата 25.12.2025
Архитектурный стиль Классический
Количество надземных этажей 1
Круглогодичное проживание Да
Площадь дома 64 м2
Санузлы 1
Спальни 3

Описание

Прекрасно сочетая простоту и элегантность, этот одноквартирный каркасный дом в классическом стиле станет уютным укрытием для любой семьи. Его площадью 83 м² мы предусмотрели ровно три спальни, где застывает спокойствие после трудного дня, а открытые внутренние пространства создают ощущение лёгкости и гармонии. Весь дом рассчитан на круглогодичное проживание: тепло и уют внутри, а снаружи – спокойствие и свежий воздух благодаря продуманной каркасно‑панельной конструкции и комбинированной крыше, которая защищает от всех суровых погодных условий. Отсутствие балконов и веранд придаёт дому более строгий, но при этом элегантный облик, подчёркивая его классический язык. Для тех, кто любит проводить время на свежем воздухе, просторная терраса, выходящая из гостиной, предложит идеальное место для летних барбекю или утренних чашек кофе. Без встроенного гаража и крытой автостоянки вы сможете более открыто взаимодействовать с природой, а отсутствие чердачных помещений только усиливает ощущение простора и чистоты. Этот дом спроектирован с заботой о семейном комфорте: просторные спальни, плавные переходы между зонами, а также внимание к деталям, от каркасных стен до теплоизоляционной защиты – всё это создаёт атмосферу уюта и безопасности. Вы ощутите теплоту, которой хватает, чтобы запомнить каждый момент, проведённый здесь, и вечно будете вернуться в этот тихий уголок, где классика встречается с современными технологиями.

Характеристики дома

Архитектурный стиль
Автоматизированное регулирование параметров теплоносителя
Да
Балконы/лоджии
Отсутствуют
Чердачное помещение
Нет
Датчики протечки воды
Нет
Эксплуатируемая или зеленая кровля
Нет
Электроснабжение
2 варианта
Газоснабжение
Не предусмотрено
Изоляция воздушного шума
Да
Камин
Нет
Класс энергоэффективности
-
Класс энергосбережения
-
Количество надземных этажей
1
Круглогодичное проживание
Да
Материал кровли
Металлочерепица
Материал перекрытий
Деревянные
Материал внешних стен
Материал внутренних перегородок
Деревянные
Модульное строительство с конструкциями заводского изготовления
Нет
Объем надземной части
320 м3
Основной материал фасадов
Дерево
Отопление
2 варианта
Площадь дома
64 м2
Площадь застройки
72 м2
Подвальное помещение
Нет
Показатель компактности здания
-
Приборы учета тепловой энергии
Нет
Пристроенный гараж/крытая автостоянка
Нет
Противопожарная система
Нет
Санузлы
1
Совмещенная кухня-гостиная
Да
Спальни
3
Терраса
Да
Тип фундамента
Свайный
Тип кровли
Толщина внешних стен
180 мм
Толщина внутренних перегородок
150 мм
Улучшенные шумовые характеристики
Да
Вентиляция
Рекуперация
Веранда
Нет
Водоотведение
2 варианта
Водоснабжение
2 варианта
Высота дома
5 м
Высота потолков
2.5 м

Планировка

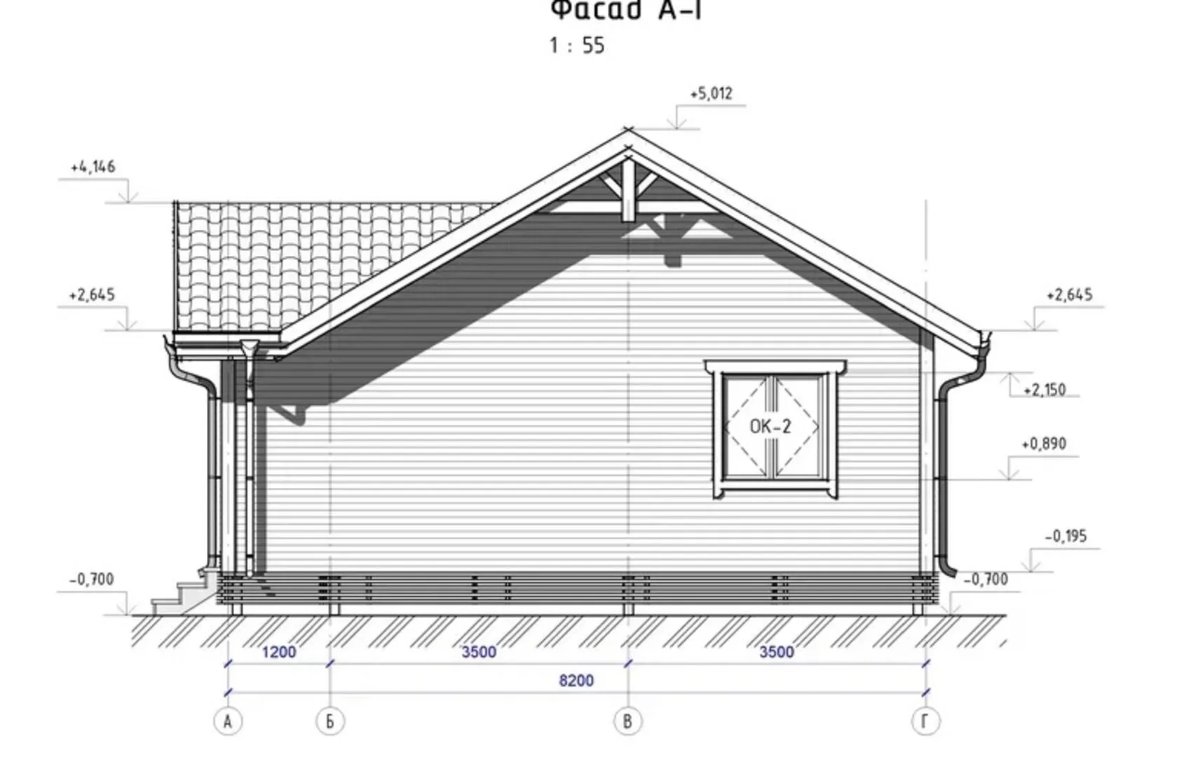
Фасад дома

Александр

Закажите выезд инженера

Александр

Выездной инженер
Закажите выезд инженера для точной диагностики и профессиональной консультации по инженерным системам. Специалист приедет в удобное время, проведёт осмотр, рассчитает стоимость работ и подберёт оптимальные решения для вашего дома.


    Похожие проекты

    Ипотека и
    рассрочка
    Одноэтажный дом Light-115
    Стоимость от:
    7 980 060
    Проект от: 50 850
    Этажей 1
    Санузлы 2
    Спальни 3
    Смотреть
    Ипотека и
    рассрочка
    Одноэтажный MINI house
    Стоимость от:
    4 802 160
    Проект от: 30 600
    Этажей 1
    Санузлы 1
    Спальни 2
    Смотреть
    Ипотека и
    рассрочка
    Проект жилого 2-х этажного дома
    Стоимость от:
    13 733 520
    Проект от: 86 850
    Этажей 2
    Санузлы 1
    Спальни 4
    Смотреть
    Ипотека и
    рассрочка
    Рашель
    Стоимость от:
    8 436 120
    Проект от: 47 700
    Этажей 1
    Санузлы 1
    Спальни 2
    Смотреть
    Ипотека и
    рассрочка
    Дом по семейной ипотеке Пригородный — 154
    Стоимость от:
    8 871 120
    Проект от: 66 600
    Этажей 2
    Санузлы 2
    Спальни 4
    Смотреть
    Ипотека и
    рассрочка
    Загородный дом DS-2700
    Стоимость от:
    11 453 760
    Проект от: 73 800
    Этажей 2
    Санузлы 2
    Спальни 5
    Смотреть

    Как узнать стоимость дома

    back
    Оставляете заявку
    Вы заполняете форму на сайте или звоните нам. Менеджер Лайвкрафт связывается с вами для уточнения деталей: тип дома, площадь, материалы, участок строительства.
    back
    Консультация и подбор решения
    Наш специалист помогает выбрать оптимальный тип дома и конструкцию с учётом бюджета, сроков и целей — будь то дом для постоянного проживания или дача.
    back
    Расчёт предварительной стоимости
    Инженер делает первичный расчёт стоимости строительства по вашим параметрам: фундамент, коробка, кровля, отделка. Вы получаете смету с разбивкой по этапам.
    back
    Корректировка и утверждение сметы
    При необходимости вносим изменения — например, замену материалов или сокращение этапов. После согласования формируется окончательная фиксированная смета.
    back
    Заключение договора и старт работ
    После утверждения сметы заключаем официальный договор с гарантией. Вы получаете прозрачный график и точную стоимость — без скрытых расходов.

    Заказать конусльтацию по:Одноэтажный Каркасный дом с 3 спальнями КД 83

    Фото 1 Одноэтажный Каркасный дом с 3 спальнями КД 83


      Наши
      контакты

      Дмитров
      Опорный проезд 28Б
      (индустриальный парк Ниагара)
      9:00 до 18:00

      Корзина