4.9
Рейтинг на основании 120 отзывов
Дмитров
Опорный проезд 28Б
(индустриальный парк Ниагара)
Бренд "Дмитров-Дело" c 2008 года на рынке строительства в Дмитрове
Звоните 9:00 до 18:00 8 (915) 055-33-61
Бренд "Дмитров-Дело" c 2008 года на рынке строительства в Дмитрове

Одноэтажный каркасный дом КД-1

Стоимость проекта от:
79 200 ₽
БЕСПЛАТНО! ПРИ ЗАКАЗЕ СТРОИТЕЛЬСТВА
Стоимость строительства от:
10 173 680 ₽
Артикул ART-16158
Дата 25.12.2025
Архитектурный стиль Европейский
Количество надземных этажей 1
Круглогодичное проживание Да
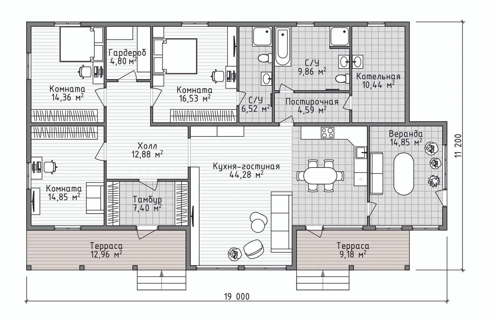
Площадь дома 176 м2
Санузлы 2
Спальни 3

Описание

Новый дом КД‑1 приглашает вас окунуться в атмосферу европейского уюта, где каждая деталь продумана до мелочей. Это одноэтажный каркасный объект, идеально подходящий как для постоянного проживания, так и для теплого летнего отдыха. Территория обрамляется просторной верандой, где можно насладиться шепотом ветра и ароматом грядок, а терраса открывает живописные виды с высоты, создавая идеальное место для вечерних бесед и семейных пикников. Крыша двойного скоса не только подчёркивает классику архитектурного стиля, но и обеспечивает хорошую вентиляцию и теплоизоляцию, позволяя избежать перепадов температур в любой сезон. Деревянный каркасные стены дают дому лёгкость и естественный характер, а чердачное помещение добавляет функциональности – это может стать уютным уголком для хранения, домашним кабинетом или даже дополнительной спальней. Внутри вы найдёте просторный светлый план, где простота и функциональность сочетаются с элегантностью европейского дизайна. Здесь каждый сантиметр пространства создан для того, чтобы ваш дом стал местом воспоминаний, где комфорт и стиль идут рука об руку. Превратите мечту о своём уютном уголке в реальность – дом КД‑1 ждёт вас.

Характеристики дома

Архитектурный стиль
Автоматизированное регулирование параметров теплоносителя
Нет
Балконы/лоджии
Отсутствуют
Чердачное помещение
Да
Датчики протечки воды
Нет
Эксплуатируемая или зеленая кровля
Нет
Электроснабжение
Центральное
Газоснабжение
Центральное
Изоляция воздушного шума
Нет
Камин
Нет
Класс энергоэффективности
-
Класс энергосбережения
-
Количество надземных этажей
1
Круглогодичное проживание
Да
Материал кровли
Металлочерепица
Материал перекрытий
Деревянные
Материал внешних стен
Материал внутренних перегородок
Деревянные
Модульное строительство с конструкциями заводского изготовления
Нет
Объем надземной части
-
Основной материал фасадов
Дерево
Отопление
Индивидуальное
Площадь дома
176 м2
Площадь застройки
202 м2
Подвальное помещение
Нет
Показатель компактности здания
-
Приборы учета тепловой энергии
Нет
Пристроенный гараж/крытая автостоянка
Нет
Противопожарная система
Нет
Санузлы
2
Совмещенная кухня-гостиная
Да
Спальни
3
Терраса
Да
Тип фундамента
Свайно-винтовой
Тип кровли
Толщина внешних стен
250 мм
Толщина внутренних перегородок
100 мм
Улучшенные шумовые характеристики
Нет
Вентиляция
Естественная
Веранда
Да
Водоотведение
Локальные очистные сооружения
Водоснабжение
Центральное
Высота дома
5.02 м
Высота потолков
2.7 м

Планировка

Фасад дома

Александр

Закажите выезд инженера

Александр

Выездной инженер
Закажите выезд инженера для точной диагностики и профессиональной консультации по инженерным системам. Специалист приедет в удобное время, проведёт осмотр, рассчитает стоимость работ и подберёт оптимальные решения для вашего дома.


    Похожие проекты

    Ипотека и
    рассрочка
    Одноэтажный дом Смарт 9х9
    Стоимость от:
    5 256 240
    Проект от: 32 400
    Этажей 1
    Санузлы 1
    Спальни 2
    Смотреть
    Ипотека и
    рассрочка
    Рождество 103Н
    Стоимость от:
    7 457 780
    Проект от: 49 050
    Этажей 1
    Санузлы 2
    Спальни 3
    Смотреть
    Ипотека и
    рассрочка
    Двухэтажный дом «Премьер» 10,8х9,55м
    Стоимость от:
    8 801 160
    Проект от: 66 150
    Этажей 2
    Санузлы 2
    Спальни 4
    Смотреть
    Ипотека и
    рассрочка
    Проект 50м2
    Стоимость от:
    3 544 200
    Проект от: 22 500
    Этажей 1
    Санузлы 1
    Спальни 2
    Смотреть
    Ипотека и
    рассрочка
    Одноэтажный жилой дом Гея 76 кв.м.
    Стоимость от:
    5 547 520
    Проект от: 34 200
    Этажей 1
    Санузлы 1
    Спальни 2
    Смотреть
    Ипотека и
    рассрочка
    Загородный коттедж Самарк
    Стоимость от:
    19 820 240
    Проект от: 122 400
    Этажей 1
    Санузлы 4
    Спальни 4
    Смотреть

    Как узнать стоимость дома

    back
    Оставляете заявку
    Вы заполняете форму на сайте или звоните нам. Менеджер Лайвкрафт связывается с вами для уточнения деталей: тип дома, площадь, материалы, участок строительства.
    back
    Консультация и подбор решения
    Наш специалист помогает выбрать оптимальный тип дома и конструкцию с учётом бюджета, сроков и целей — будь то дом для постоянного проживания или дача.
    back
    Расчёт предварительной стоимости
    Инженер делает первичный расчёт стоимости строительства по вашим параметрам: фундамент, коробка, кровля, отделка. Вы получаете смету с разбивкой по этапам.
    back
    Корректировка и утверждение сметы
    При необходимости вносим изменения — например, замену материалов или сокращение этапов. После согласования формируется окончательная фиксированная смета.
    back
    Заключение договора и старт работ
    После утверждения сметы заключаем официальный договор с гарантией. Вы получаете прозрачный график и точную стоимость — без скрытых расходов.

    Заказать конусльтацию по:Одноэтажный каркасный дом КД-1

    Фото 1 Одноэтажный каркасный дом КД-1


      Наши
      контакты

      Дмитров
      Опорный проезд 28Б
      (индустриальный парк Ниагара)
      9:00 до 18:00

      Корзина