4.9
Рейтинг на основании 120 отзывов
Дмитров
Опорный проезд 28Б
(индустриальный парк Ниагара)
Бренд "Дмитров-Дело" c 2008 года на рынке строительства в Дмитрове
Звоните 9:00 до 18:00 8 (915) 055-33-61
Бренд "Дмитров-Дело" c 2008 года на рынке строительства в Дмитрове

Одноэтажный каркасный дом «Белла-Вита»

Стоимость проекта от:
41 850 ₽
Стоимость строительства от:
5 375 865 ₽
Артикул ART-6475
Дата 26.12.2025
Архитектурный стиль Фахверк
Количество надземных этажей 1
Круглогодичное проживание Да
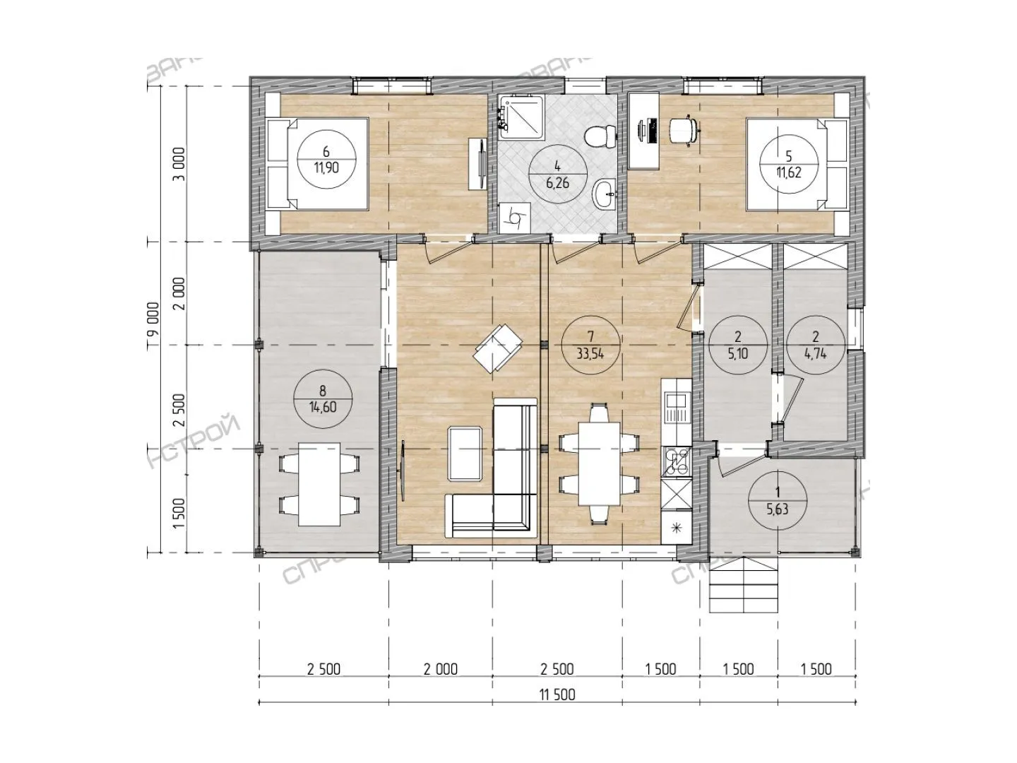
Площадь дома 93 м2
Санузлы 1
Спальни 2

Описание

Небольшой, но душевный дом “Белла‑Вита” — истинный уютный уголок в мире природы. Его одна надземная площадка и открытая планировка делают каждую комнату светлой и просторной, а двускатная крыша в стиле фахверка придаёт зданию характерный шарм, напоминая сказочные средневековые усадьбы. Ощущение деревянных конструкций проникает даже на верхних этажах, создавая неповторимую домашнюю атмосферу, где воздух свежий, а тепло естественным образом удерживается внутри. Соблюдая строгие традиции, архитектура “Белла‑Вита” без лишних украшений сосредоточена на деталях: от строгих линий каркасных стен до плавного перехода от внутреннего интерьера к наружному воздуху через простую, но элегантную террасу. Именно здесь, вдали от суеты, можно насладиться утренним кофе или вечерним закатом, наслаждаясь полной гармонией с окружающей природой. Круглогодичное проживание без ограничений делает его идеальным как для активной семьи, так и для тихого парного уединения. Обратите внимание на то, что даже без прицепленного гаража и верандой, дом раскрывает все свои сильные стороны. Он предназначен не только как комфортное место отдыха, но и как воплощение спокойствия и простоты. Ведь иногда лучший уют заключается именно в отсутствии лишних деталей — в этом и заключается магия “Белла‑Вита”.

Характеристики дома

Архитектурный стиль
Фахверк
Автоматизированное регулирование параметров теплоносителя
-
Балконы/лоджии
Отсутствуют
Чердачное помещение
Нет
Датчики протечки воды
-
Эксплуатируемая или зеленая кровля
-
Электроснабжение
2 варианта
Газоснабжение
2 варианта
Изоляция воздушного шума
-
Камин
Нет
Класс энергоэффективности
-
Класс энергосбережения
-
Количество надземных этажей
1
Круглогодичное проживание
Да
Материал кровли
Металлочерепица
Материал перекрытий
Деревянные
Материал внешних стен
Деревянные каркасные
Материал внутренних перегородок
Деревянные
Модульное строительство с конструкциями заводского изготовления
Нет
Объем надземной части
402 м3
Основной материал фасадов
Планкен
Отопление
2 варианта
Площадь дома
93 м2
Площадь застройки
73 м2
Подвальное помещение
Нет
Показатель компактности здания
-
Приборы учета тепловой энергии
-
Пристроенный гараж/крытая автостоянка
Нет
Противопожарная система
Да
Санузлы
1
Совмещенная кухня-гостиная
Да
Спальни
2
Терраса
Да
Тип фундамента
Свайно-винтовой
Тип кровли
Двускатная
Толщина внешних стен
256 мм
Толщина внутренних перегородок
100 мм
Улучшенные шумовые характеристики
-
Вентиляция
3 варианта
Веранда
Нет
Водоотведение
2 варианта
Водоснабжение
2 варианта
Высота дома
5.5 м
Высота потолков
4 м

Планировка

Фасад дома

Александр

Закажите выезд инженера

Александр

Выездной инженер
Закажите выезд инженера для точной диагностики и профессиональной консультации по инженерным системам. Специалист приедет в удобное время, проведёт осмотр, рассчитает стоимость работ и подберёт оптимальные решения для вашего дома.


    Похожие проекты

    Ипотека и
    рассрочка
    Загородный дом «Айлант»
    Стоимость от:
    10 086 720
    Проект от: 71 100
    Этажей 2
    Санузлы 2
    Спальни 4
    Смотреть
    Ипотека и
    рассрочка
    Одноэтажный дом с террасой и большой кухней-гостинной
    Стоимость от:
    9 240 660
    Проект от: 55 350
    Этажей 1
    Санузлы 2
    Спальни 3
    Смотреть
    Ипотека и
    рассрочка
    NK-146
    Стоимость от:
    12 088 080
    Проект от: 75 150
    Этажей 2
    Санузлы 1
    Спальни 3
    Смотреть
    Ипотека и
    рассрочка
    Дом №20
    Стоимость от:
    8 992 060
    Проект от: 50 850
    Этажей 1
    Санузлы 1
    Спальни 3
    Смотреть
    Ипотека и
    рассрочка
    Загородный дом Кермит
    Стоимость от:
    8 757 760
    Проект от: 57 600
    Этажей 1
    Санузлы 2
    Спальни 3
    Смотреть
    Ипотека и
    рассрочка
    Дом 90 кв. 4 спальни
    Стоимость от:
    6 567 000
    Проект от: 40 500
    Этажей 1
    Санузлы 2
    Спальни 4
    Смотреть

    Как узнать стоимость дома

    back
    Оставляете заявку
    Вы заполняете форму на сайте или звоните нам. Менеджер Лайвкрафт связывается с вами для уточнения деталей: тип дома, площадь, материалы, участок строительства.
    back
    Консультация и подбор решения
    Наш специалист помогает выбрать оптимальный тип дома и конструкцию с учётом бюджета, сроков и целей — будь то дом для постоянного проживания или дача.
    back
    Расчёт предварительной стоимости
    Инженер делает первичный расчёт стоимости строительства по вашим параметрам: фундамент, коробка, кровля, отделка. Вы получаете смету с разбивкой по этапам.
    back
    Корректировка и утверждение сметы
    При необходимости вносим изменения — например, замену материалов или сокращение этапов. После согласования формируется окончательная фиксированная смета.
    back
    Заключение договора и старт работ
    После утверждения сметы заключаем официальный договор с гарантией. Вы получаете прозрачный график и точную стоимость — без скрытых расходов.

    Заказать конусльтацию по:Одноэтажный каркасный дом «Белла-Вита»

    Фото 1 Одноэтажный каркасный дом «Белла-Вита»


      Наши
      контакты

      Дмитров
      Опорный проезд 28Б
      (индустриальный парк Ниагара)
      9:00 до 18:00

      Корзина