4.9
Рейтинг на основании 120 отзывов
Дмитров
Опорный проезд 28Б
(индустриальный парк Ниагара)
Бренд "Дмитров-Дело" c 2008 года на рынке строительства в Дмитрове
Звоните 9:00 до 18:00 8 (915) 055-33-61
Бренд "Дмитров-Дело" c 2008 года на рынке строительства в Дмитрове

Одноэтажный кирпичный дом COMFORT — 118 m2 (Серый облицовочный кирпич)

Стоимость проекта от:
40 050 ₽
БЕСПЛАТНО! ПРИ ЗАКАЗЕ СТРОИТЕЛЬСТВА
Стоимость строительства от:
7 085 980 ₽
Артикул ART-10915
Дата 25.12.2025
Архитектурный стиль Классический
Количество надземных этажей 1
Круглогодичное проживание Да
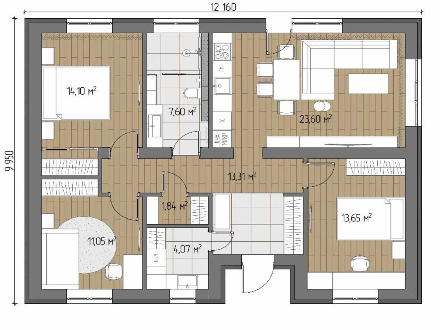
Площадь дома 89 м2
Санузлы 1
Спальни 3

Описание

**Одноэтажный «COMFORT» – уют в кирпиче** Погрузитесь в атмосферу классической элегантности, где каждый элемент выполнен с чувством и прочностью. Дом площадью 118 м², облицованный серым облицовочным кирпичом, становится не просто строением, а настоящим уголком тишины и уюта. Его надземный этаж скрывает в себе тихую спальню, просторную гостиную и светлый кабинет – все комнаты открыты к естественному свету, создавая ощущение простора даже внутри ограниченного уровня. Классический стиль вкупе с простыми формами и чистыми линиями подчёркивает гармонию между городской жизнью и спокойствием дома. **Качество, которым можно доверять** Кирпичная стена защищает от перепадов погоды, обеспечивая тепло зимой и прохладу летом. Четырехскатная крышка с ровными кромками сохраняет тепло и дарит ощущение домашней защищённости. Присутствие чердачного помещения открывает новые возможности – хранение вещей, создание индивидуального рабочего уголка или уютный уголок для творчества. Кухня, соединённая с гостиной, создаёт атмосферу единства и непрерывной коммуникации, а спальная зона расположена так, чтобы обеспечить максимальный комфорт и приватность. Этот дом – место, где каждый день начинается с лёгким ароматом свежего кофе и заканчивается теплом домашнего уюта. Простор и функциональность, качество материалов и классический архитектурный язык – всё это приглашает вас сделать шаг к своему неповторимому дому.

Характеристики дома

Архитектурный стиль
Автоматизированное регулирование параметров теплоносителя
Нет
Балконы/лоджии
Отсутствуют
Чердачное помещение
Да
Датчики протечки воды
Нет
Эксплуатируемая или зеленая кровля
Нет
Электроснабжение
Центральное
Газоснабжение
Индивидуальное
Изоляция воздушного шума
Нет
Камин
Нет
Класс энергоэффективности
-
Класс энергосбережения
-
Количество надземных этажей
1
Круглогодичное проживание
Да
Материал кровли
Металлочерепица
Материал перекрытий
Деревянные
Материал внешних стен
Материал внутренних перегородок
Кирпичные
Модульное строительство с конструкциями заводского изготовления
Нет
Объем надземной части
350 м3
Основной материал фасадов
Облицовочный кирпич
Отопление
Индивидуальное
Площадь дома
89 м2
Площадь застройки
118 м2
Подвальное помещение
Нет
Показатель компактности здания
-
Приборы учета тепловой энергии
Нет
Пристроенный гараж/крытая автостоянка
Нет
Противопожарная система
Нет
Санузлы
1
Совмещенная кухня-гостиная
Да
Спальни
3
Терраса
Нет
Тип фундамента
Ленточный
Толщина внешних стен
400 мм
Толщина внутренних перегородок
120 мм
Улучшенные шумовые характеристики
Нет
Вентиляция
Принудительная
Веранда
Нет
Водоотведение
Локальные очистные сооружения
Водоснабжение
Индивидуальное
Высота дома
5.97 м
Высота потолков
2.9 м

Планировка

Фасад дома

Александр

Закажите выезд инженера

Александр

Выездной инженер
Закажите выезд инженера для точной диагностики и профессиональной консультации по инженерным системам. Специалист приедет в удобное время, проведёт осмотр, рассчитает стоимость работ и подберёт оптимальные решения для вашего дома.


    Похожие проекты

    Ипотека и
    рассрочка
    Одноэтажный дом со вторым светом — 113
    Стоимость от:
    7 980 060
    Проект от: 50 850
    Этажей 1
    Санузлы 2
    Спальни 3
    Смотреть
    Ипотека и
    рассрочка
    Барн Классик
    Стоимость от:
    5 144 645
    Проект от: 40 050
    Этажей 1
    Санузлы 1
    Спальни 2
    Смотреть
    Ипотека и
    рассрочка
    Дачник-КС1/14
    Стоимость от:
    2 202 860
    Проект от: 17 100
    Этажей 1
    Санузлы 1
    Спальни 2
    Смотреть
    Ипотека и
    рассрочка
    Классический одноэтажный дом SIMPLE
    Стоимость от:
    6 202 900
    Проект от: 38 250
    Этажей 1
    Санузлы 2
    Спальни 3
    Смотреть
    Ипотека и
    рассрочка
    Каркасный дом «Сканди-765»
    Стоимость от:
    4 059 165
    Проект от: 32 850
    Этажей 1
    Санузлы 1
    Спальни 2
    Смотреть
    Ипотека и
    рассрочка
    ЛОРИ
    Стоимость от:
    8 074 880
    Проект от: 55 800
    Этажей 1
    Санузлы 2
    Спальни 3
    Смотреть

    Как узнать стоимость дома

    back
    Оставляете заявку
    Вы заполняете форму на сайте или звоните нам. Менеджер Лайвкрафт связывается с вами для уточнения деталей: тип дома, площадь, материалы, участок строительства.
    back
    Консультация и подбор решения
    Наш специалист помогает выбрать оптимальный тип дома и конструкцию с учётом бюджета, сроков и целей — будь то дом для постоянного проживания или дача.
    back
    Расчёт предварительной стоимости
    Инженер делает первичный расчёт стоимости строительства по вашим параметрам: фундамент, коробка, кровля, отделка. Вы получаете смету с разбивкой по этапам.
    back
    Корректировка и утверждение сметы
    При необходимости вносим изменения — например, замену материалов или сокращение этапов. После согласования формируется окончательная фиксированная смета.
    back
    Заключение договора и старт работ
    После утверждения сметы заключаем официальный договор с гарантией. Вы получаете прозрачный график и точную стоимость — без скрытых расходов.

    Заказать конусльтацию по:Одноэтажный кирпичный дом COMFORT — 118 m2 (Серый облицовочный кирпич)

    Фото 1 Одноэтажный кирпичный дом COMFORT — 118 m2 (Серый облицовочный кирпич)


      Наши
      контакты

      Дмитров
      Опорный проезд 28Б
      (индустриальный парк Ниагара)
      9:00 до 18:00

      Корзина