4.9
Рейтинг на основании 120 отзывов
Дмитров
Опорный проезд 28Б
(индустриальный парк Ниагара)
Бренд "Дмитров-Дело" c 2008 года на рынке строительства в Дмитрове
Звоните 9:00 до 18:00 8 (915) 055-33-61
Бренд "Дмитров-Дело" c 2008 года на рынке строительства в Дмитрове

Одноэтажный кирпичный дом 94 кв.м. ЭП_06_24-13_Ч

Стоимость проекта от:
41 850 ₽
БЕСПЛАТНО! ПРИ ЗАКАЗЕ СТРОИТЕЛЬСТВА
Стоимость строительства от:
7 403 660 ₽
Артикул ART-11133
Дата 25.12.2025
Архитектурный стиль Русский
Количество надземных этажей 1
Круглогодичное проживание Да
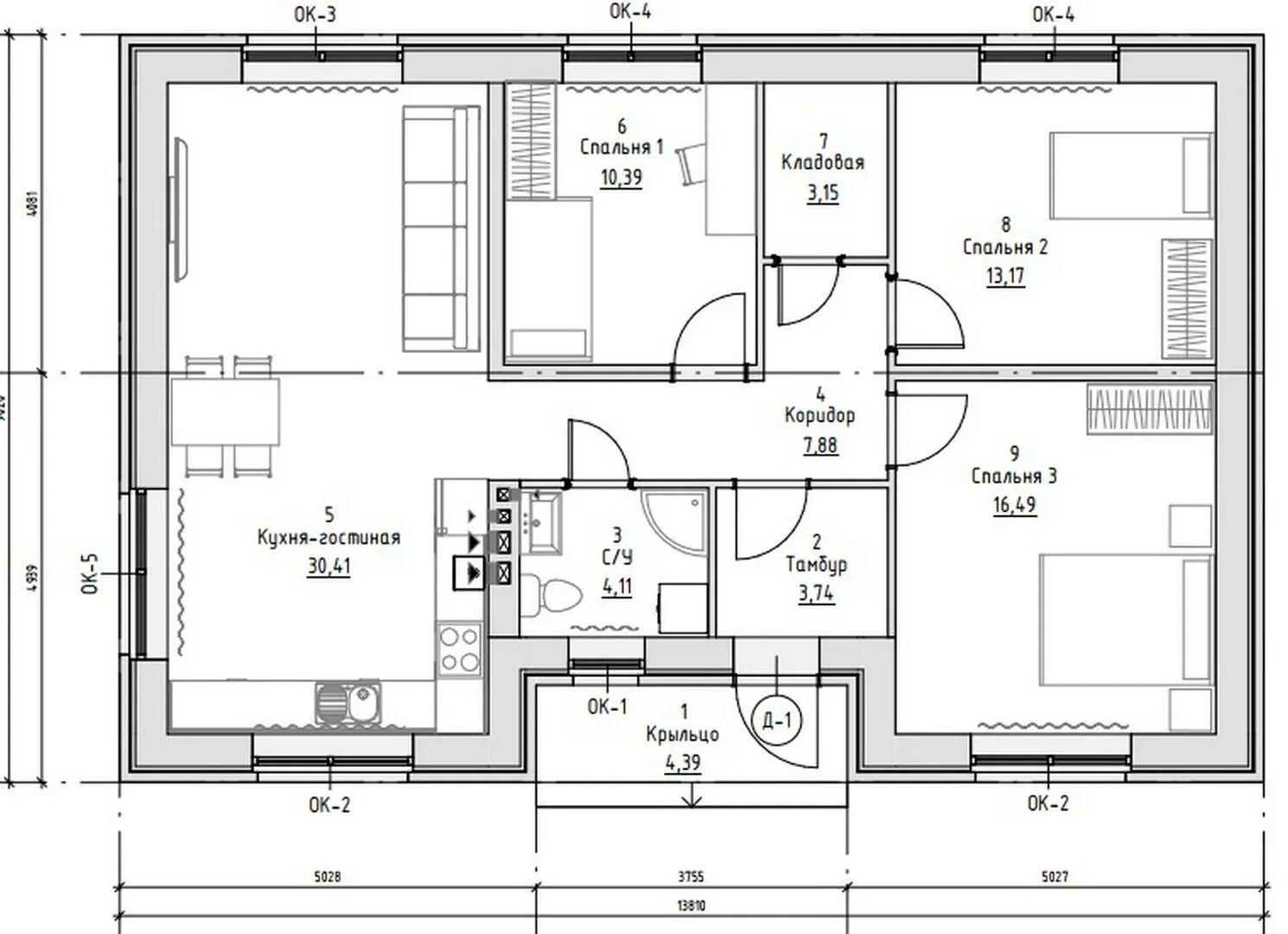
Площадь дома 93 м2
Санузлы 1
Спальни 3

Описание

Пусть ваш новый дом станет уютным уголком, где каждый уголок хранит тепло и свет. Это одноэтажный кирпичный особняк площадью 94 м², выполненный в традиционном русском стиле. Его стены, погрузившиеся в благородный «время» бетона и мозаики, излучают прочность и гармонию. Внутреннее пространство удобно распределено: гостеприимный зал, уютная кухня и тихие зоны отдыха, все они открывают безоблачный вид на заборы и ландшафт, создавая ощущение тесной семейной крепости. Внутренняя планировка продумана для круглогодичного проживания: просторные комнаты с высокими потолками, большие окна, которые наполняют дом солнечным светом, а кирпичное каркасное строение обеспечивает тепло и шумоизоляцию. В этом доме нет лишних украшений, как балконы, лоджии или веранды, но зато его каждая деталь дарит ощущение простоты и функциональности. Вы сможете обустроить свой двор, добавить сад, который станет продолжением вашего персонального пространства. Завершая описание, стоит отметить, что каждая мелочь здесь задумана так, чтобы сделать вашу жизнь легче и приятнее: от правильного расположения окон до качественных материалов. Этот дом — не просто жилище, а ваша крепость, где можно отдохнуть от шума мира, почувствовать связь с традициями и создать уют, который будет вдохновлять семьи на новые свершения.

Характеристики дома

Архитектурный стиль
Автоматизированное регулирование параметров теплоносителя
-
Балконы/лоджии
Отсутствуют
Чердачное помещение
Нет
Датчики протечки воды
-
Эксплуатируемая или зеленая кровля
-
Электроснабжение
Не предусмотрено
Газоснабжение
Не предусмотрено
Изоляция воздушного шума
-
Камин
Нет
Класс энергоэффективности
-
Класс энергосбережения
-
Количество надземных этажей
1
Круглогодичное проживание
Да
Материал кровли
Металлочерепица
Материал перекрытий
Деревянные
Материал внешних стен
Материал внутренних перегородок
Кирпичные
Модульное строительство с конструкциями заводского изготовления
Нет
Объем надземной части
-
Основной материал фасадов
Облицовочный кирпич
Отопление
Не предусмотрено
Площадь дома
93 м2
Площадь застройки
127 м2
Подвальное помещение
Нет
Показатель компактности здания
-
Приборы учета тепловой энергии
-
Пристроенный гараж/крытая автостоянка
Нет
Противопожарная система
Нет
Санузлы
1
Совмещенная кухня-гостиная
Да
Спальни
3
Терраса
Нет
Тип фундамента
Ленточный
Толщина внешних стен
580 мм
Толщина внутренних перегородок
120 мм
Улучшенные шумовые характеристики
-
Вентиляция
Принудительная
Веранда
Нет
Водоотведение
Не предусмотрено
Водоснабжение
Не предусмотрено
Высота дома
5.3 м
Высота потолков
3 м

Планировка

Фасад дома

Александр

Закажите выезд инженера

Александр

Выездной инженер
Закажите выезд инженера для точной диагностики и профессиональной консультации по инженерным системам. Специалист приедет в удобное время, проведёт осмотр, рассчитает стоимость работ и подберёт оптимальные решения для вашего дома.


    Похожие проекты

    Ипотека и
    рассрочка
    Загородный дом «Фазенда» ТИП2
    Стоимость от:
    6 990 060
    Проект от: 41 850
    Этажей 1
    Санузлы 1
    Спальни 3
    Смотреть
    Ипотека и
    рассрочка
    Дом из бруса Вдохновение 268
    Стоимость от:
    17 350 320
    Проект от: 120 600
    Этажей 2
    Санузлы 2
    Спальни 4
    Смотреть
    Ипотека и
    рассрочка
    Оптима 86-2
    Стоимость от:
    5 884 120
    Проект от: 38 700
    Этажей 1
    Санузлы 2
    Спальни 3
    Смотреть
    Ипотека и
    рассрочка
    Двухэтажный В-220
    Стоимость от:
    15 441 840
    Проект от: 99 450
    Этажей 2
    Санузлы 3
    Спальни 4
    Смотреть
    Ипотека и
    рассрочка
    Самара арена 10
    Стоимость от:
    5 043 390
    Проект от: 39 150
    Этажей 1
    Санузлы 1
    Спальни 3
    Смотреть
    Ипотека и
    рассрочка
    Одноэтажный коттедж «БРИЗ-33»
    Стоимость от:
    9 786 260
    Проект от: 55 350
    Этажей 1
    Санузлы 1
    Спальни 3
    Смотреть

    Как узнать стоимость дома

    back
    Оставляете заявку
    Вы заполняете форму на сайте или звоните нам. Менеджер Лайвкрафт связывается с вами для уточнения деталей: тип дома, площадь, материалы, участок строительства.
    back
    Консультация и подбор решения
    Наш специалист помогает выбрать оптимальный тип дома и конструкцию с учётом бюджета, сроков и целей — будь то дом для постоянного проживания или дача.
    back
    Расчёт предварительной стоимости
    Инженер делает первичный расчёт стоимости строительства по вашим параметрам: фундамент, коробка, кровля, отделка. Вы получаете смету с разбивкой по этапам.
    back
    Корректировка и утверждение сметы
    При необходимости вносим изменения — например, замену материалов или сокращение этапов. После согласования формируется окончательная фиксированная смета.
    back
    Заключение договора и старт работ
    После утверждения сметы заключаем официальный договор с гарантией. Вы получаете прозрачный график и точную стоимость — без скрытых расходов.

    Заказать конусльтацию по:Одноэтажный кирпичный дом 94 кв.м. ЭП_06_24-13_Ч

    Фото 1 Одноэтажный кирпичный дом 94 кв.м. ЭП_06_24-13_Ч


      Наши
      контакты

      Дмитров
      Опорный проезд 28Б
      (индустриальный парк Ниагара)
      9:00 до 18:00

      Корзина