4.9
Рейтинг на основании 120 отзывов
Дмитров
Опорный проезд 28Б
(индустриальный парк Ниагара)
Бренд "Дмитров-Дело" c 2008 года на рынке строительства в Дмитрове
Звоните 9:00 до 18:00 8 (915) 055-33-61
Бренд "Дмитров-Дело" c 2008 года на рынке строительства в Дмитрове

Одноэтажный кирпичный дом ТП-119

Стоимость проекта от:
51 300 ₽
БЕСПЛАТНО! ПРИ ЗАКАЗЕ СТРОИТЕЛЬСТВА
Стоимость строительства от:
8 565 480 ₽
Артикул ART-12215
Дата 25.12.2025
Архитектурный стиль Европейский
Количество надземных этажей 1
Круглогодичное проживание Да
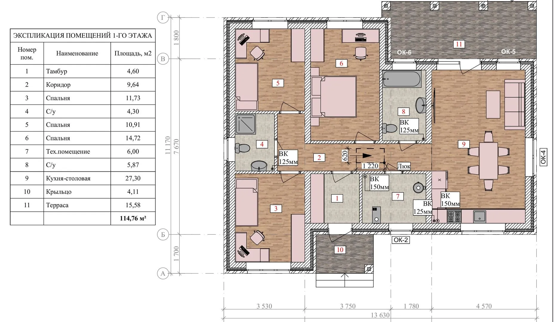
Площадь дома 114 м2
Санузлы 2
Спальни 3

Описание

Добро пожаловать в уют и тепло одного из самых продуманных одноэтажных кирпичных домов — ТП‑119. В его европейском стиле каждая деталь отразит вашу индивидуальность: от продуманного планировочного решения до гармоничного сочетания традиций и современности. Готовый к круглогодичному проживанию, дом оснащён износостойкой керамической кладкой наружных стен, а четырёхскатная (вальмовая) крыша не только придаёт архитектуре выразительность, но и защищает от непогоды, обеспечивая надёжную теплоизоляцию и хорошую вентиляцию. Внутри вы найдете просторные, светлые зоны, где лёгкое наполнение и простор создадут идеальные условия для семейной жизни и гостеприимства. Оставьте заботы о парковке позади — в доме нет крытой стоянки или прицепного гаража, но это не помешает вам наслаждаться открытой природой и свободой передвижения в городском пространстве. Ключевой особенностью, делающей каждый день особенным, является просторная терраса. Здесь вы можете проводить вечера в компании друзей, устраивать семейные ужины на свежем воздухе или просто наслаждаться закатом, создавая незабываемые моменты у вашего собственного уголка покоя. Данный дом ТП‑119 — это идеальное сочетание традиционной европейской архитектуры и современных удобств. Он прост в обслуживании, энергоэффективен и полностью готов к быстрой жизни без лишних хлопот. Если вы ищете место, где уют встречается с функциональностью, этот дом станет для вас воплощением мечты.

Характеристики дома

Архитектурный стиль
Автоматизированное регулирование параметров теплоносителя
Нет
Балконы/лоджии
Отсутствуют
Чердачное помещение
Нет
Датчики протечки воды
Нет
Эксплуатируемая или зеленая кровля
Нет
Электроснабжение
Центральное
Газоснабжение
Не предусмотрено
Изоляция воздушного шума
Нет
Камин
Нет
Класс энергоэффективности
-
Класс энергосбережения
-
Количество надземных этажей
1
Круглогодичное проживание
Да
Материал кровли
Металлочерепица
Материал перекрытий
Деревянные
Материал внешних стен
Материал внутренних перегородок
Кирпичные
Модульное строительство с конструкциями заводского изготовления
Нет
Объем надземной части
266 м3
Основной материал фасадов
Облицовочный кирпич
Отопление
Индивидуальное
Площадь дома
114 м2
Площадь застройки
138 м2
Подвальное помещение
Нет
Показатель компактности здания
-
Приборы учета тепловой энергии
Нет
Пристроенный гараж/крытая автостоянка
Нет
Противопожарная система
Нет
Санузлы
2
Совмещенная кухня-гостиная
Да
Спальни
3
Терраса
Да
Тип фундамента
Свайно-ростверковый
Толщина внешних стен
500 мм
Толщина внутренних перегородок
120 мм
Улучшенные шумовые характеристики
Нет
Вентиляция
Естественная
Веранда
Нет
Водоотведение
Локальные очистные сооружения
Водоснабжение
Индивидуальное
Высота дома
6 м
Высота потолков
2.8 м

Планировка

Фасад дома

Александр

Закажите выезд инженера

Александр

Выездной инженер
Закажите выезд инженера для точной диагностики и профессиональной консультации по инженерным системам. Специалист приедет в удобное время, проведёт осмотр, рассчитает стоимость работ и подберёт оптимальные решения для вашего дома.


    Похожие проекты

    Ипотека и
    рассрочка
    Индивидуальный жилой дом
    Стоимость от:
    9 214 080
    Проект от: 66 150
    Этажей 2
    Санузлы 2
    Спальни 4
    Смотреть
    Ипотека и
    рассрочка
    Индвидуальный жилой дом 619-30-06/21-АР
    Стоимость от:
    7 965 320
    Проект от: 47 700
    Этажей 1
    Санузлы 2
    Спальни 3
    Смотреть
    Ипотека и
    рассрочка
    Двухэтажный дом линейки «Эстетика» 2-260
    Стоимость от:
    18 158 400
    Проект от: 117 000
    Этажей 2
    Санузлы 3
    Спальни 3
    Смотреть
    Ипотека и
    рассрочка
    Индивидуальный жилой дом площадью 90 м2
    Стоимость от:
    7 165 400
    Проект от: 40 500
    Этажей 1
    Санузлы 1
    Спальни 3
    Смотреть
    Ипотека и
    рассрочка
    Двухэтажный коттедж С162
    Стоимость от:
    13 006 560
    Проект от: 78 300
    Этажей 2
    Санузлы 3
    Спальни 3
    Смотреть
    Ипотека и
    рассрочка
    Арбат Премиум
    Стоимость от:
    6 530 040
    Проект от: 36 900
    Этажей 1
    Санузлы 1
    Спальни 3
    Смотреть

    Как узнать стоимость дома

    back
    Оставляете заявку
    Вы заполняете форму на сайте или звоните нам. Менеджер Лайвкрафт связывается с вами для уточнения деталей: тип дома, площадь, материалы, участок строительства.
    back
    Консультация и подбор решения
    Наш специалист помогает выбрать оптимальный тип дома и конструкцию с учётом бюджета, сроков и целей — будь то дом для постоянного проживания или дача.
    back
    Расчёт предварительной стоимости
    Инженер делает первичный расчёт стоимости строительства по вашим параметрам: фундамент, коробка, кровля, отделка. Вы получаете смету с разбивкой по этапам.
    back
    Корректировка и утверждение сметы
    При необходимости вносим изменения — например, замену материалов или сокращение этапов. После согласования формируется окончательная фиксированная смета.
    back
    Заключение договора и старт работ
    После утверждения сметы заключаем официальный договор с гарантией. Вы получаете прозрачный график и точную стоимость — без скрытых расходов.

    Заказать конусльтацию по:Одноэтажный кирпичный дом ТП-119

    Фото 1 Одноэтажный кирпичный дом ТП-119


      Наши
      контакты

      Дмитров
      Опорный проезд 28Б
      (индустриальный парк Ниагара)
      9:00 до 18:00

      Корзина