4.9
Рейтинг на основании 120 отзывов
Дмитров
Опорный проезд 28Б
(индустриальный парк Ниагара)
Бренд "Дмитров-Дело" c 2008 года на рынке строительства в Дмитрове
Звоните 9:00 до 18:00 8 (915) 055-33-61
Бренд "Дмитров-Дело" c 2008 года на рынке строительства в Дмитрове

Одноэтажный кирпичный дом GS-99

Стоимость проекта от:
44 550 ₽
БЕСПЛАТНО! ПРИ ЗАКАЗЕ СТРОИТЕЛЬСТВА
Стоимость строительства от:
7 440 180 ₽
Артикул ART-15873
Дата 25.12.2025
Архитектурный стиль Классический
Количество надземных этажей 1
Круглогодичное проживание Да
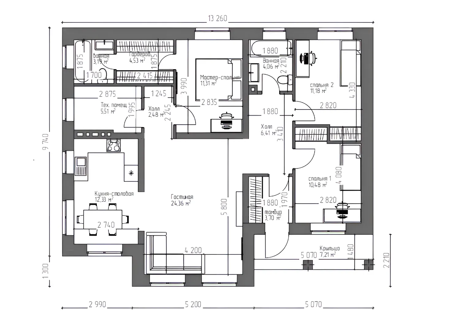
Площадь дома 99 м2
Санузлы 2
Спальни 3

Описание

Сочетающий в себе элегантность классического стиля и простоту современного быта, одноквартирный кирпичный дом GS‑99 станет идеальным убежищем для тех, кто ценит уют и надежность. Его цельно‑плотный кирпичный фасад, покрытый прочной четырехскатной (вальмовой) крышей, дарит ощущение тепла и защищенности даже в самые холодные дни. Отсутствие балконов, лоджий и веранд не умаляет внутреннего пространства: в доме предусмотрены большие окна, которые мягко наполняют комнаты естественным светом, а внутренний облик позволяет свободно распланировать комнатный план. В доме предусмотрено комфортное одноэтажное обустройство с удобной чердачной площадью, которая открывает возможность превратить её в дополнительное жилое помещение, игровую зону, кабинет или даже уютный уголок для хобби. Поскольку модель «чек‑пункт» предназначена для круглогодичного проживания, в конструкции уделено особое внимание тепло- и звукоизоляции: плотный кирпичный корпус и массивные двери создают спокойную и тихую атмосферу внутри. Идеальное сочетание прочности, акустики и эстетики делает GS‑99 выбором тех, кто ищет надёжный и уютный дом, готовый к жизни без лишних хлопот.

Характеристики дома

Архитектурный стиль
Автоматизированное регулирование параметров теплоносителя
Да
Балконы/лоджии
Отсутствуют
Чердачное помещение
Да
Датчики протечки воды
Нет
Эксплуатируемая или зеленая кровля
Нет
Электроснабжение
Центральное
Газоснабжение
Центральное
Изоляция воздушного шума
Нет
Камин
Нет
Класс энергоэффективности
-
Класс энергосбережения
-
Количество надземных этажей
1
Круглогодичное проживание
Да
Материал кровли
Металлочерепица
Материал перекрытий
Монолитные железобетонные
Материал внешних стен
Материал внутренних перегородок
Кирпичные
Модульное строительство с конструкциями заводского изготовления
Нет
Объем надземной части
-
Основной материал фасадов
Облицовочный кирпич
Отопление
Индивидуальное
Площадь дома
99 м2
Площадь застройки
129 м2
Подвальное помещение
Нет
Показатель компактности здания
-
Приборы учета тепловой энергии
Да
Пристроенный гараж/крытая автостоянка
Нет
Противопожарная система
Да
Санузлы
2
Совмещенная кухня-гостиная
Да
Спальни
3
Терраса
Нет
Тип фундамента
Свайно-ростверковый
Толщина внешних стен
500 мм
Толщина внутренних перегородок
120 мм
Улучшенные шумовые характеристики
Нет
Вентиляция
Естественная
Веранда
Нет
Водоотведение
Локальные очистные сооружения
Водоснабжение
Индивидуальное
Высота дома
5.01 м
Высота потолков
3.1 м

Планировка

Фасад дома

Александр

Закажите выезд инженера

Александр

Выездной инженер
Закажите выезд инженера для точной диагностики и профессиональной консультации по инженерным системам. Специалист приедет в удобное время, проведёт осмотр, рассчитает стоимость работ и подберёт оптимальные решения для вашего дома.


    Похожие проекты

    Ипотека и
    рассрочка
    59,40
    Стоимость от:
    3 291 860
    Проект от: 23 400
    Этажей 1
    Санузлы 1
    Спальни 3
    Смотреть
    Ипотека и
    рассрочка
    Одноэтажный Барнхаус «Томас»
    Стоимость от:
    5 303 430
    Проект от: 44 550
    Этажей 1
    Санузлы 1
    Спальни 2
    Смотреть
    Ипотека и
    рассрочка
    Мансардный дом «Пилион 1.0»
    Стоимость от:
    7 822 080
    Проект от: 50 400
    Этажей 2
    Санузлы 2
    Спальни 3
    Смотреть
    Ипотека и
    рассрочка
    ИЖД Совушки 11 квартал тип 3.1.
    Стоимость от:
    8 640 500
    Проект от: 51 750
    Этажей 1
    Санузлы 1
    Спальни 3
    Смотреть
    Ипотека и
    рассрочка
    Проект одноэтажного дома Марсель
    Стоимость от:
    13 441 780
    Проект от: 80 550
    Этажей 1
    Санузлы 2
    Спальни 3
    Смотреть
    Ипотека и
    рассрочка
    Садовод 11×14 Барн
    Стоимость от:
    6 705 380
    Проект от: 52 200
    Этажей 1
    Санузлы 2
    Спальни 4
    Смотреть

    Как узнать стоимость дома

    back
    Оставляете заявку
    Вы заполняете форму на сайте или звоните нам. Менеджер Лайвкрафт связывается с вами для уточнения деталей: тип дома, площадь, материалы, участок строительства.
    back
    Консультация и подбор решения
    Наш специалист помогает выбрать оптимальный тип дома и конструкцию с учётом бюджета, сроков и целей — будь то дом для постоянного проживания или дача.
    back
    Расчёт предварительной стоимости
    Инженер делает первичный расчёт стоимости строительства по вашим параметрам: фундамент, коробка, кровля, отделка. Вы получаете смету с разбивкой по этапам.
    back
    Корректировка и утверждение сметы
    При необходимости вносим изменения — например, замену материалов или сокращение этапов. После согласования формируется окончательная фиксированная смета.
    back
    Заключение договора и старт работ
    После утверждения сметы заключаем официальный договор с гарантией. Вы получаете прозрачный график и точную стоимость — без скрытых расходов.

    Заказать конусльтацию по:Одноэтажный кирпичный дом GS-99

    Фото 1 Одноэтажный кирпичный дом GS-99


      Наши
      контакты

      Дмитров
      Опорный проезд 28Б
      (индустриальный парк Ниагара)
      9:00 до 18:00

      Корзина