4.9
Рейтинг на основании 120 отзывов
Дмитров
Опорный проезд 28Б
(индустриальный парк Ниагара)
Бренд "Дмитров-Дело" c 2008 года на рынке строительства в Дмитрове
Звоните 9:00 до 18:00 8 (915) 055-33-61
Бренд "Дмитров-Дело" c 2008 года на рынке строительства в Дмитрове

Одноэтажный кирпичный дом ЮЗЕМ

Стоимость проекта от:
42 750 ₽
БЕСПЛАТНО! ПРИ ЗАКАЗЕ СТРОИТЕЛЬСТВА
Стоимость строительства от:
7 140 100 ₽
Артикул ART-19221
Дата 26.12.2025
Архитектурный стиль Классический
Количество надземных этажей 1
Круглогодичное проживание Да
Площадь дома 95 м2
Санузлы 2
Спальни 3

Описание

Погрузитесь в атмосферу уюта и тепла, где каждый уголок пропитан классическим стилем и истинным духом русского гостеприимства. Это единственный этаж, без суеты подъездов и лишних балок, где архитектурные линии задают ощущение гармонии и спокойствия. Керамический блок, обрамляющий стены, излучает естественный цвет и текстуру, придавая дому аутентичность и стойкость. Двускатная крыша, укрывающая дом, словно мягкая шуба, сохраняет тепло даже в холодные зимние дни, делая жизнь здесь комфортной круглый год. Внутри вы найдете просторные, светлые комнаты, где каждый камень, каждая панель говорят о заботе и внимании к деталям. Отсутствие лишних балконов и веранд делает пространство более закрытым и защищенным, а присутствие чердачного помещения открывает вам возможность использовать его как уютный уголок для хранения ценного, творчества или превращения в гостиную. Это идеальное место для тех, кто ценит классический, но современный подход к жизни, где традиции не уступают комфорту, а красота дизайна встречается с функциональностью.

Характеристики дома

Архитектурный стиль
Автоматизированное регулирование параметров теплоносителя
Нет
Балконы/лоджии
Отсутствуют
Чердачное помещение
Да
Датчики протечки воды
Нет
Эксплуатируемая или зеленая кровля
Нет
Электроснабжение
Центральное
Газоснабжение
Центральное
Изоляция воздушного шума
Нет
Камин
Нет
Класс энергоэффективности
-
Класс энергосбережения
-
Количество надземных этажей
1
Круглогодичное проживание
Да
Материал кровли
Металлочерепица
Материал перекрытий
Деревянные
Материал внешних стен
Материал внутренних перегородок
Блочные
Модульное строительство с конструкциями заводского изготовления
Нет
Объем надземной части
706 м3
Основной материал фасадов
Облицовочный кирпич
Отопление
2 варианта
Площадь дома
95 м2
Площадь застройки
123 м2
Подвальное помещение
Нет
Показатель компактности здания
-
Приборы учета тепловой энергии
Нет
Пристроенный гараж/крытая автостоянка
Нет
Противопожарная система
Нет
Санузлы
2
Совмещенная кухня-гостиная
Да
Спальни
3
Терраса
Нет
Тип фундамента
Свайно-ростверковый
Тип кровли
Толщина внешних стен
520 мм
Толщина внутренних перегородок
120 мм
Улучшенные шумовые характеристики
Нет
Вентиляция
2 варианта
Веранда
Нет
Водоотведение
2 варианта
Водоснабжение
2 варианта
Высота дома
5.95 м
Высота потолков
2.72 м

Планировка

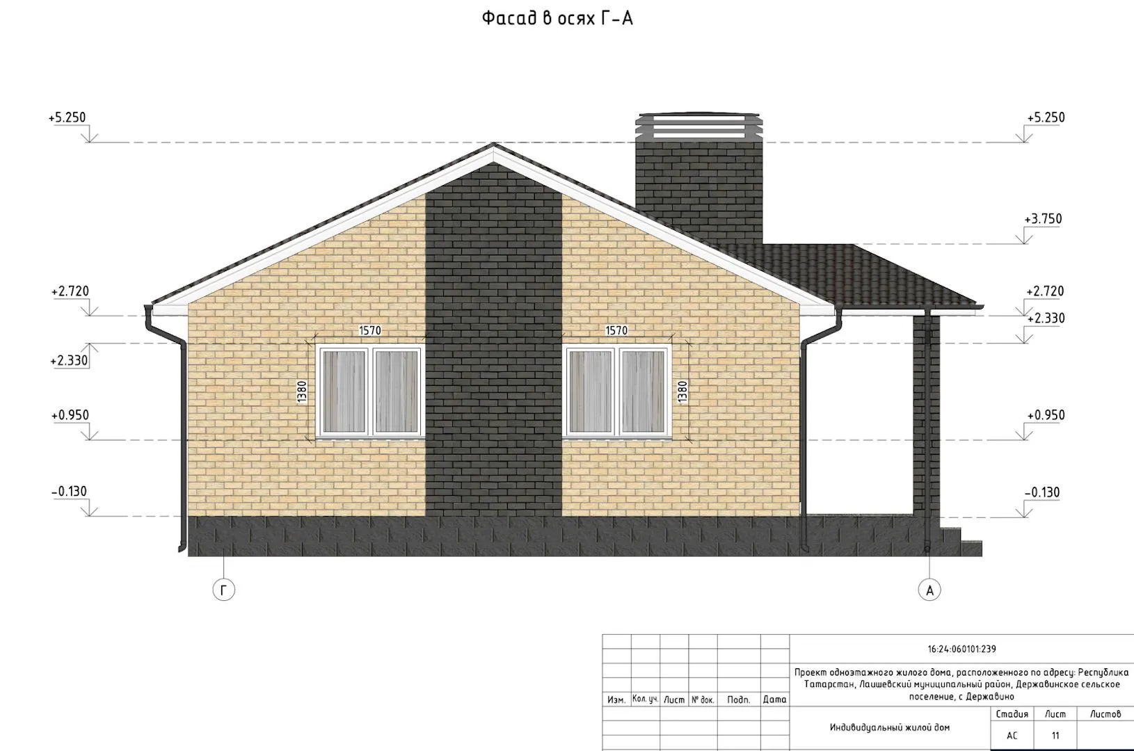
Фасад дома

Александр

Закажите выезд инженера

Александр

Выездной инженер
Закажите выезд инженера для точной диагностики и профессиональной консультации по инженерным системам. Специалист приедет в удобное время, проведёт осмотр, рассчитает стоимость работ и подберёт оптимальные решения для вашего дома.


    Похожие проекты

    Ипотека и
    рассрочка
    Мансардный дом М-106
    Стоимость от:
    7 868 400
    Проект от: 47 250
    Этажей 2
    Санузлы 2
    Спальни 3
    Смотреть
    Ипотека и
    рассрочка
    Проект загородного дома NHD-174
    Стоимость от:
    5 864 760
    Проект от: 35 100
    Этажей 1
    Санузлы 1
    Спальни 3
    Смотреть
    Ипотека и
    рассрочка
    Райт 179 с печь-барбекю
    Стоимость от:
    13 839 980
    Проект от: 80 550
    Этажей 1
    Санузлы 3
    Спальни 3
    Смотреть
    Ипотека и
    рассрочка
    Загородный дом АС-243
    Стоимость от:
    12 429 120
    Проект от: 79 200
    Этажей 1
    Санузлы 2
    Спальни 3
    Смотреть
    Ипотека и
    рассрочка
    Каркасный дом КД-24 8 х 10,5 метров
    Стоимость от:
    8 871 120
    Проект от: 66 600
    Этажей 2
    Санузлы 2
    Спальни 4
    Смотреть
    Ипотека и
    рассрочка
    PG-3 «De Facto»
    Стоимость от:
    4 926 240
    Проект от: 32 400
    Этажей 1
    Санузлы 1
    Спальни 2
    Смотреть

    Как узнать стоимость дома

    back
    Оставляете заявку
    Вы заполняете форму на сайте или звоните нам. Менеджер Лайвкрафт связывается с вами для уточнения деталей: тип дома, площадь, материалы, участок строительства.
    back
    Консультация и подбор решения
    Наш специалист помогает выбрать оптимальный тип дома и конструкцию с учётом бюджета, сроков и целей — будь то дом для постоянного проживания или дача.
    back
    Расчёт предварительной стоимости
    Инженер делает первичный расчёт стоимости строительства по вашим параметрам: фундамент, коробка, кровля, отделка. Вы получаете смету с разбивкой по этапам.
    back
    Корректировка и утверждение сметы
    При необходимости вносим изменения — например, замену материалов или сокращение этапов. После согласования формируется окончательная фиксированная смета.
    back
    Заключение договора и старт работ
    После утверждения сметы заключаем официальный договор с гарантией. Вы получаете прозрачный график и точную стоимость — без скрытых расходов.

    Заказать конусльтацию по:Одноэтажный кирпичный дом ЮЗЕМ

    Фото 1 Одноэтажный кирпичный дом ЮЗЕМ


      Наши
      контакты

      Дмитров
      Опорный проезд 28Б
      (индустриальный парк Ниагара)
      9:00 до 18:00

      Корзина