4.9
Рейтинг на основании 120 отзывов
Дмитров
Опорный проезд 28Б
(индустриальный парк Ниагара)
Бренд "Дмитров-Дело" c 2008 года на рынке строительства в Дмитрове
Звоните 9:00 до 18:00 8 (915) 055-33-61
Бренд "Дмитров-Дело" c 2008 года на рынке строительства в Дмитрове

Одноэтажный П-105

Стоимость проекта от:
45 900 ₽
БЕСПЛАТНО! ПРИ ЗАКАЗЕ СТРОИТЕЛЬСТВА
Стоимость строительства от:
7 203 240 ₽
Артикул ART-19605
Дата 26.12.2025
Архитектурный стиль Минимализм
Количество надземных этажей 1
Круглогодичное проживание Да
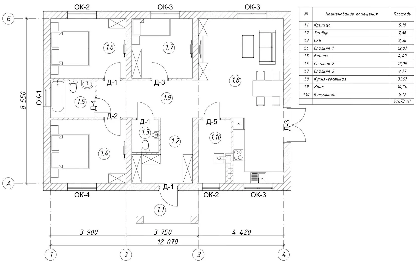
Площадь дома 102 м2
Санузлы 2
Спальни 3

Описание

Представляем вашему вниманию идеальное решение для тех, кто ценит простоту и благородную красоту: одноэтажный дом серии П‑105 в ярком исполнении минимализма. Его строгая геометрия и чистые линии создают ощущение спокойствия и гармонии, а изысканная четырехскатная, вальмовая кровля добавляет дому нотки элегантности. Внутри – пространство, открытое и светлое, где каждый уголок пропитан естественным освещением и мягкой теплотой, делающей пребывание здесь круглогодичным комфортом. Стены дома обрамлены надёжными газобетонными блоками, которые гарантируют хорошую тепло- и звукоизоляцию, а также долговечность в любых метеоусловиях. Отсутствие балконов и веранд, а также упрощённая архитектура позволяют сохранить аутентичность простоты, в которой каждое помещение наполнено ощущением открытого пространства. Идеально подходит для семейного дома, где важна простота жизненного ритма и уют в едином, завершённом проекте. П‑105 — это не просто дом, а ваш личный уголок спокойствия и стиля. Он создан, чтобы радовать глаз и душу, сочетая современные материалы и лаконичный дизайн в гармоничном единстве, которое будет вдохновлять и приносить радость в каждый день. Выбирая этот проект, вы выбираете качество, простоту и надёжность — залог комфортной жизни сегодня и в будущем.

Характеристики дома

Архитектурный стиль
Автоматизированное регулирование параметров теплоносителя
Нет
Балконы/лоджии
Отсутствуют
Чердачное помещение
Нет
Датчики протечки воды
Нет
Эксплуатируемая или зеленая кровля
Нет
Электроснабжение
Центральное
Газоснабжение
Центральное
Изоляция воздушного шума
Нет
Камин
Нет
Класс энергоэффективности
-
Класс энергосбережения
-
Количество надземных этажей
1
Круглогодичное проживание
Да
Материал кровли
Металлочерепица
Материал перекрытий
Деревянные
Материал внешних стен
Материал внутренних перегородок
Блочные
Модульное строительство с конструкциями заводского изготовления
Нет
Объем надземной части
133 м3
Основной материал фасадов
Штукатурка
Отопление
Индивидуальное
Площадь дома
102 м2
Площадь застройки
125 м2
Подвальное помещение
Нет
Показатель компактности здания
-
Приборы учета тепловой энергии
Нет
Пристроенный гараж/крытая автостоянка
Нет
Противопожарная система
Нет
Санузлы
2
Совмещенная кухня-гостиная
Да
Спальни
3
Терраса
Нет
Тип фундамента
Плитный
Толщина внешних стен
375 мм
Толщина внутренних перегородок
100 мм
Улучшенные шумовые характеристики
Нет
Вентиляция
Естественная
Веранда
Нет
Водоотведение
Локальные очистные сооружения
Водоснабжение
Индивидуальное
Высота дома
5.7 м
Высота потолков
3 м

Планировка

Фасад дома

Александр

Закажите выезд инженера

Александр

Выездной инженер
Закажите выезд инженера для точной диагностики и профессиональной консультации по инженерным системам. Специалист приедет в удобное время, проведёт осмотр, рассчитает стоимость работ и подберёт оптимальные решения для вашего дома.


    Похожие проекты

    Ипотека и
    рассрочка
    Одноэтажный коттедж КС 041
    Стоимость от:
    9 771 080
    Проект от: 60 300
    Этажей 1
    Санузлы 2
    Спальни 3
    Смотреть
    Ипотека и
    рассрочка
    Дом из клееного бруса «Дубна»
    Стоимость от:
    12 367 440
    Проект от: 85 950
    Этажей 2
    Санузлы 2
    Спальни 4
    Смотреть
    Ипотека и
    рассрочка
    Горизонт 96
    Стоимость от:
    6 028 880
    Проект от: 46 800
    Этажей 1
    Санузлы 1
    Спальни 3
    Смотреть
    Ипотека и
    рассрочка
    Дом в Илеть
    Стоимость от:
    18 768 960
    Проект от: 118 800
    Этажей 2
    Санузлы 4
    Спальни 2
    Смотреть
    Ипотека и
    рассрочка
    Загородный дом-АС-209
    Стоимость от:
    12 571 200
    Проект от: 81 000
    Этажей 2
    Санузлы 2
    Спальни 2
    Смотреть
    Ипотека и
    рассрочка
    Жилой дом БАРН-83
    Стоимость от:
    5 521 890
    Проект от: 39 150
    Этажей 1
    Санузлы 1
    Спальни 2
    Смотреть

    Как узнать стоимость дома

    back
    Оставляете заявку
    Вы заполняете форму на сайте или звоните нам. Менеджер Лайвкрафт связывается с вами для уточнения деталей: тип дома, площадь, материалы, участок строительства.
    back
    Консультация и подбор решения
    Наш специалист помогает выбрать оптимальный тип дома и конструкцию с учётом бюджета, сроков и целей — будь то дом для постоянного проживания или дача.
    back
    Расчёт предварительной стоимости
    Инженер делает первичный расчёт стоимости строительства по вашим параметрам: фундамент, коробка, кровля, отделка. Вы получаете смету с разбивкой по этапам.
    back
    Корректировка и утверждение сметы
    При необходимости вносим изменения — например, замену материалов или сокращение этапов. После согласования формируется окончательная фиксированная смета.
    back
    Заключение договора и старт работ
    После утверждения сметы заключаем официальный договор с гарантией. Вы получаете прозрачный график и точную стоимость — без скрытых расходов.

    Заказать конусльтацию по:Одноэтажный П-105

    Фото 1 Одноэтажный П-105


      Наши
      контакты

      Дмитров
      Опорный проезд 28Б
      (индустриальный парк Ниагара)
      9:00 до 18:00

      Корзина