4.9
Рейтинг на основании 120 отзывов
Дмитров
Опорный проезд 28Б
(индустриальный парк Ниагара)
Бренд "Дмитров-Дело" c 2008 года на рынке строительства в Дмитрове
Звоните 9:00 до 18:00 8 (915) 055-33-61
Бренд "Дмитров-Дело" c 2008 года на рынке строительства в Дмитрове

Одноэтажный с 3 спальнями и террасой АРМАС-6

Стоимость проекта от:
54 000 ₽
БЕСПЛАТНО! ПРИ ЗАКАЗЕ СТРОИТЕЛЬСТВА
Стоимость строительства от:
9 548 000 ₽
Артикул ART-16950
Дата 26.12.2025
Архитектурный стиль Классический
Количество надземных этажей 1
Круглогодичное проживание Да
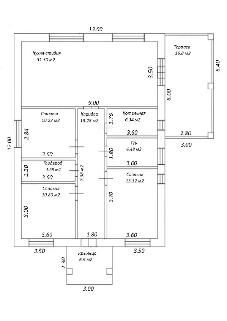
Площадь дома 120 м2
Санузлы 1
Спальни 3

Описание

Погрузитесь в атмосферу истинного уюта и элегантности в этом шикарном одноэтажном доме в стиле «Классический». Он объединяет в себе непревзойденный комфорт, современные удобства и эстетически приятную архитектуру: просторные три спальни, где каждый найдет свой уголок покоя и вдохновения, аккуратный чердак, позволяющий хранить сокровища прошлого, а ещё – очаровательная терраса, открывающая панораму на живописные окрестности. Удобная планировка и качественные материалы (кирпичные стены, вальмовая крыша) гарантируют долговечность и надежность, а круглогодичное проживание делает дом идеальным для всех сезонов. Собственник мечтает о спокойной гавани, где каждая деталь продуманна до мелочей: просторные окна впускают естественный свет, а отсутствие балконов и веранд создаёт ощущение единства пространства и природы. Внутренняя гармония сочетается с простотой и уютом, а терраса становится идеальным местом для завтраков с семьёй, вечеров на свежем воздухе и наслаждения звуками приро́ды. Это не просто дом – это ваш личный оазис, где каждый день начинается и заканчивается теплом и стилем. Выбирая этот дом, вы приобретаете не только кирпичную крепость, но и гармонию, которую создаёт сочетание традиций и современных удобств. Позвольте себе комфорт, который дарит ощущение постоянного убежища: уютная обстановка, доступ к красивой террасе, а также классический фасад, который будет вызывать восхищение у всех гостей. Это квартира, где мечты о простом, но благородном образе жизни становятся реальностью.

Характеристики дома

Архитектурный стиль
Автоматизированное регулирование параметров теплоносителя
Нет
Балконы/лоджии
Отсутствуют
Чердачное помещение
Да
Датчики протечки воды
Нет
Эксплуатируемая или зеленая кровля
Нет
Электроснабжение
Центральное
Газоснабжение
Центральное
Изоляция воздушного шума
Нет
Камин
Нет
Класс энергоэффективности
-
Класс энергосбережения
-
Количество надземных этажей
1
Круглогодичное проживание
Да
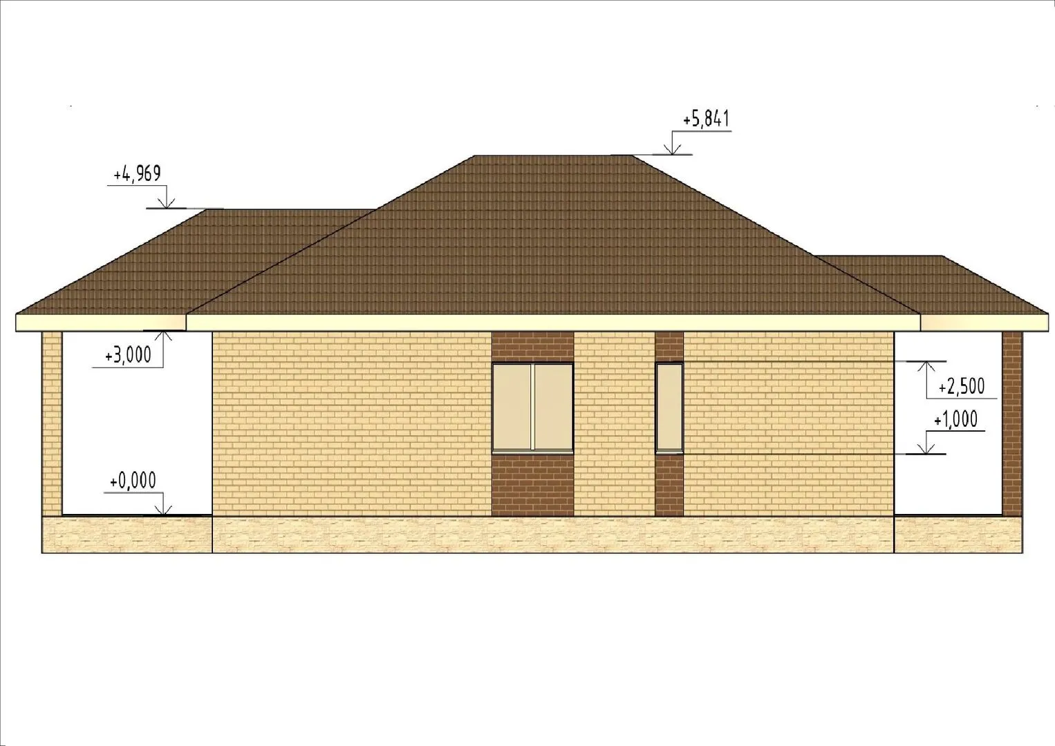
Материал кровли
Металлочерепица
Материал перекрытий
Деревянные
Материал внешних стен
Материал внутренних перегородок
Кирпичные
Модульное строительство с конструкциями заводского изготовления
Нет
Объем надземной части
640 м3
Основной материал фасадов
Облицовочный кирпич
Отопление
Индивидуальное
Площадь дома
120 м2
Площадь застройки
146 м2
Подвальное помещение
Нет
Показатель компактности здания
-
Приборы учета тепловой энергии
Нет
Пристроенный гараж/крытая автостоянка
Нет
Противопожарная система
Нет
Санузлы
1
Совмещенная кухня-гостиная
Да
Спальни
3
Терраса
Да
Тип фундамента
Ленточный
Толщина внешних стен
120 мм
Толщина внутренних перегородок
250 мм
Улучшенные шумовые характеристики
Нет
Вентиляция
Естественная
Веранда
Нет
Водоотведение
Не предусмотрено
Водоснабжение
Индивидуальное
Высота дома
5.85 м
Высота потолков
2.8 м

Планировка

Фасад дома

Александр

Закажите выезд инженера

Александр

Выездной инженер
Закажите выезд инженера для точной диагностики и профессиональной консультации по инженерным системам. Специалист приедет в удобное время, проведёт осмотр, рассчитает стоимость работ и подберёт оптимальные решения для вашего дома.


    Похожие проекты

    Ипотека и
    рассрочка
    Classic 13
    Стоимость от:
    6 990 060
    Проект от: 41 850
    Этажей 1
    Санузлы 1
    Спальни 3
    Смотреть
    Ипотека и
    рассрочка
    Одноэтажный жилой дом c тремя спальнями и крыльцом
    Стоимость от:
    5 714 720
    Проект от: 34 200
    Этажей 1
    Санузлы 1
    Спальни 3
    Смотреть
    Ипотека и
    рассрочка
    ХАЙ-ТЕК-161
    Стоимость от:
    12 728 640
    Проект от: 79 200
    Этажей 2
    Санузлы 3
    Спальни 3
    Смотреть
    Ипотека и
    рассрочка
    Каркасный дом «Диез»
    Стоимость от:
    5 098 200
    Проект от: 38 250
    Этажей 2
    Санузлы 1
    Спальни 4
    Смотреть
    Ипотека и
    рассрочка
    Толбазы 2- 84
    Стоимость от:
    6 019 920
    Проект от: 37 350
    Этажей 2
    Санузлы 1
    Спальни 3
    Смотреть
    Ипотека и
    рассрочка
    ССК Светлое поле
    Стоимость от:
    9 275 200
    Проект от: 72 000
    Этажей 1
    Санузлы 3
    Спальни 3
    Смотреть

    Как узнать стоимость дома

    back
    Оставляете заявку
    Вы заполняете форму на сайте или звоните нам. Менеджер Лайвкрафт связывается с вами для уточнения деталей: тип дома, площадь, материалы, участок строительства.
    back
    Консультация и подбор решения
    Наш специалист помогает выбрать оптимальный тип дома и конструкцию с учётом бюджета, сроков и целей — будь то дом для постоянного проживания или дача.
    back
    Расчёт предварительной стоимости
    Инженер делает первичный расчёт стоимости строительства по вашим параметрам: фундамент, коробка, кровля, отделка. Вы получаете смету с разбивкой по этапам.
    back
    Корректировка и утверждение сметы
    При необходимости вносим изменения — например, замену материалов или сокращение этапов. После согласования формируется окончательная фиксированная смета.
    back
    Заключение договора и старт работ
    После утверждения сметы заключаем официальный договор с гарантией. Вы получаете прозрачный график и точную стоимость — без скрытых расходов.

    Заказать конусльтацию по:Одноэтажный с 3 спальнями и террасой АРМАС-6

    Фото 1 Одноэтажный с 3 спальнями и террасой АРМАС-6


      Наши
      контакты

      Дмитров
      Опорный проезд 28Б
      (индустриальный парк Ниагара)
      9:00 до 18:00

      Корзина