4.9
Рейтинг на основании 120 отзывов
Дмитров
Опорный проезд 28Б
(индустриальный парк Ниагара)
Бренд "Дмитров-Дело" c 2008 года на рынке строительства в Дмитрове
Звоните 9:00 до 18:00 8 (915) 055-33-61
Бренд "Дмитров-Дело" c 2008 года на рынке строительства в Дмитрове

Одноэтажный сканди Н-1

Стоимость проекта от:
47 250 ₽
Стоимость строительства от:
7 184 100 ₽
Артикул ART-14260
Дата 25.12.2025
Архитектурный стиль Скандинавский
Количество надземных этажей 1
Круглогодичное проживание Да
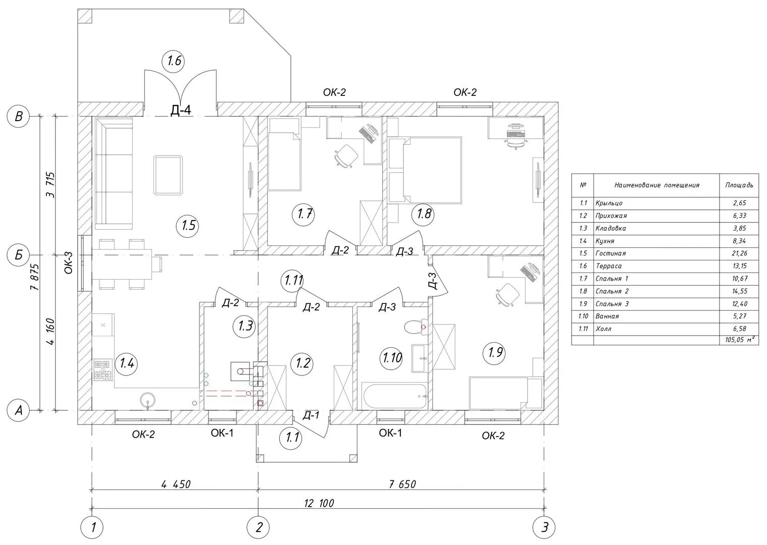
Площадь дома 105 м2
Санузлы 1
Спальни 3

Описание

Одноэтажный скандинавский дом N‑1 — это нежное воплощение современных уютных традиций на основе простоты и функциональности. Его открытая планировка и плавные линии создают просторную атмосферу, где каждый уголок обрамлен светом и теплом. Внутри царит мягкое, приглушённое освещение, благодаря большому количеству окон, а высокие потолки усиливают ощущение лёгкости. Отсутствие лестниц и отдельного подвального помещения делает этот дом идеальным для круглогодичного проживания всех членов семьи, включая пожилых и детей. Внешняя облицовка из керамического блока и краска с низким коэффициентом теплопередачи придают зданию элегантный, но при этом практичный вид. Двускатная крыша, покрытая качественным материалом, обеспечивает надёжную защиту от непогоды и добавляет характерного скандинавского «шик» в фасад. Зажёдная, без лишних деталей, терраса с открытым пространством приглашает к барбекю, к моментам уединённой чаянию или просто к наслаждению свежим воздухом в любое время года. Здесь нет лишних отделок: никаких веранд, приёма гаража или чердака — всё продумано так, чтобы создать чистую, беззапутанную эстетику и минимизировать эксплуатационные расходы. Дом N‑1 сочетает в себе простоту, удобство и благородный стиль, делая каждый день особенным в гармоничной обстановке, которую вы сами создадите. Именно так ваш будущий дом станет вашим личным убежищем уюта и современных удобств.

Характеристики дома

Архитектурный стиль
Скандинавский
Автоматизированное регулирование параметров теплоносителя
Нет
Балконы/лоджии
Отсутствуют
Чердачное помещение
Нет
Датчики протечки воды
Нет
Эксплуатируемая или зеленая кровля
Нет
Электроснабжение
Центральное
Газоснабжение
Центральное
Изоляция воздушного шума
Нет
Камин
Нет
Класс энергоэффективности
-
Класс энергосбережения
-
Количество надземных этажей
1
Круглогодичное проживание
Да
Материал кровли
Фальцевая кровля Кликфальц
Материал перекрытий
Деревянные
Материал внешних стен
Керамический блок
Материал внутренних перегородок
Кирпичные
Модульное строительство с конструкциями заводского изготовления
Нет
Объем надземной части
410 м3
Основной материал фасадов
Штукатурка
Отопление
Индивидуальное
Площадь дома
105 м2
Площадь застройки
127 м2
Подвальное помещение
Нет
Показатель компактности здания
-
Приборы учета тепловой энергии
Нет
Пристроенный гараж/крытая автостоянка
Нет
Противопожарная система
Нет
Санузлы
1
Совмещенная кухня-гостиная
Да
Спальни
3
Терраса
Да
Тип фундамента
Плитный
Тип кровли
Двускатная
Толщина внешних стен
380 мм
Толщина внутренних перегородок
120 мм
Улучшенные шумовые характеристики
Нет
Вентиляция
Естественная
Веранда
Нет
Водоотведение
Локальные очистные сооружения
Водоснабжение
Индивидуальное
Высота дома
5 м
Высота потолков
3 м

Планировка

Фасад дома

Александр

Закажите выезд инженера

Александр

Выездной инженер
Закажите выезд инженера для точной диагностики и профессиональной консультации по инженерным системам. Специалист приедет в удобное время, проведёт осмотр, рассчитает стоимость работ и подберёт оптимальные решения для вашего дома.


    Похожие проекты

    Ипотека и
    рассрочка
    Марматер
    Стоимость от:
    5 569 260
    Проект от: 41 850
    Этажей 2
    Санузлы 2
    Спальни 4
    Смотреть
    Ипотека и
    рассрочка
    Одноэтажный кирпичный дом с двумя спальнями 63 кв.м
    Стоимость от:
    5 021 060
    Проект от: 28 350
    Этажей 1
    Санузлы 1
    Спальни 2
    Смотреть
    Ипотека и
    рассрочка
    EH-108
    Стоимость от:
    8 594 960
    Проект от: 48 600
    Этажей 1
    Санузлы 2
    Спальни 3
    Смотреть
    Ипотека и
    рассрочка
    Дом с мансардным этажом «Блауэн 3.0»
    Стоимость от:
    9 016 560
    Проект от: 58 050
    Этажей 2
    Санузлы 2
    Спальни 3
    Смотреть
    Ипотека и
    рассрочка
    Загородный дом Y-91
    Стоимость от:
    6 840 020
    Проект от: 40 950
    Этажей 1
    Санузлы 2
    Спальни 2
    Смотреть
    Ипотека и
    рассрочка
    A-frame 104м2
    Стоимость от:
    6 723 600
    Проект от: 46 800
    Этажей 2
    Санузлы 1
    Спальни 2
    Смотреть

    Как узнать стоимость дома

    back
    Оставляете заявку
    Вы заполняете форму на сайте или звоните нам. Менеджер Лайвкрафт связывается с вами для уточнения деталей: тип дома, площадь, материалы, участок строительства.
    back
    Консультация и подбор решения
    Наш специалист помогает выбрать оптимальный тип дома и конструкцию с учётом бюджета, сроков и целей — будь то дом для постоянного проживания или дача.
    back
    Расчёт предварительной стоимости
    Инженер делает первичный расчёт стоимости строительства по вашим параметрам: фундамент, коробка, кровля, отделка. Вы получаете смету с разбивкой по этапам.
    back
    Корректировка и утверждение сметы
    При необходимости вносим изменения — например, замену материалов или сокращение этапов. После согласования формируется окончательная фиксированная смета.
    back
    Заключение договора и старт работ
    После утверждения сметы заключаем официальный договор с гарантией. Вы получаете прозрачный график и точную стоимость — без скрытых расходов.

    Заказать конусльтацию по:Одноэтажный сканди Н-1

    Фото 1 Одноэтажный сканди Н-1


      Наши
      контакты

      Дмитров
      Опорный проезд 28Б
      (индустриальный парк Ниагара)
      9:00 до 18:00