4.9
Рейтинг на основании 120 отзывов
Дмитров
Опорный проезд 28Б
(индустриальный парк Ниагара)
Бренд "Дмитров-Дело" c 2008 года на рынке строительства в Дмитрове
Звоните 9:00 до 18:00 8 (915) 055-33-61
Бренд "Дмитров-Дело" c 2008 года на рынке строительства в Дмитрове

Одноэтажный современный дом Barn SS-80

Стоимость проекта от:
26 100 ₽
Стоимость строительства от:
3 968 360 ₽
Артикул ART-10521
Дата 25.12.2025
Архитектурный стиль Хайтек
Количество надземных этажей 1
Круглогодичное проживание Да
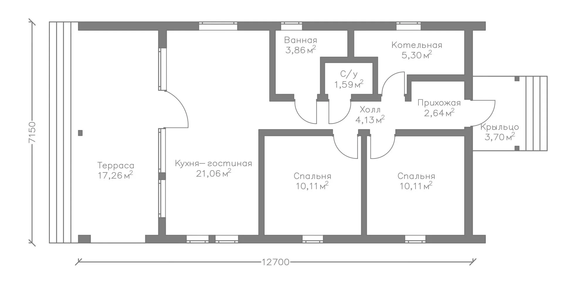
Площадь дома 58 м2
Санузлы 2
Спальни 2

Описание

Почувствуйте атмосферу модерна и простоты в нашем одноэтажном доме Barn SS‑80 – идеальном решении для комфортной жизни круглый год. Каждый уголок построен в стиле хай‑тек, где лаконичные, гладкие линии соединяются с технологично продуманным пространством. Эксперты по строительству использовали газобетонные блоки для наружных стен, обеспечивая отличную теплоизоляцию и легкость конструкции, а двускатная крыша придаёт дому строгий, но одновременно приветливый вид. На свежем воздухе вы сможете насладиться умиротворённой атмосферой, расположившись на просторной террасе, где можно устроить летний барбекю или просто отдохнуть, любуясь панорамой вокруг. Дом спроектирован так, чтобы каждый член семьи ощущал уют и простоту планировки. Все помещения находятся на одном уровне, что делает быт более удобным и безопасным, особенно для детей и пожилых людей. Благодаря использованию современных материалов и технологий, ваш дом обеспечит надёжную защиту от экстремальных погодных условий, позволяя наслаждаться теплым и светлым интерьером даже в самые прохладные дни. В Barn SS‑80 отсутствуют излишние балконы и веранда, а также прицепной гараж и чердачное помещение – все это освобождает пространство от лишних деталей и позволяет сохранить строгую, но гармоничную эстетику. Выбирая этот дом, вы выбираете надёжность, комфорт и стиль, которые гармонично сочетаются с современной жизнью. Идеальный вариант для тех, кто ценит функциональность, но не один раз отказывает себе в эстетическом наслаждении. Добро пожаловать домой – к вашему уникальному пространству, где каждый день начинается и заканчивается в уюте и благополучии.

Характеристики дома

Архитектурный стиль
Хайтек
Автоматизированное регулирование параметров теплоносителя
Нет
Балконы/лоджии
Отсутствуют
Чердачное помещение
Нет
Датчики протечки воды
Нет
Эксплуатируемая или зеленая кровля
Нет
Электроснабжение
Не предусмотрено
Газоснабжение
Не предусмотрено
Изоляция воздушного шума
Да
Камин
Нет
Класс энергоэффективности
-
Класс энергосбережения
-
Количество надземных этажей
1
Круглогодичное проживание
Да
Материал кровли
Фальцевая кровля Кликфальц
Материал перекрытий
Деревянные
Материал внешних стен
Газобетонные блоки
Материал внутренних перегородок
Блочные
Модульное строительство с конструкциями заводского изготовления
Нет
Объем надземной части
230 м3
Основной материал фасадов
Штукатурка
Отопление
Не предусмотрено
Площадь дома
58 м2
Площадь застройки
96 м2
Подвальное помещение
Нет
Показатель компактности здания
-
Приборы учета тепловой энергии
Нет
Пристроенный гараж/крытая автостоянка
Нет
Противопожарная система
Нет
Санузлы
2
Совмещенная кухня-гостиная
Да
Спальни
2
Терраса
Да
Тип фундамента
Плитный
Тип кровли
Двускатная
Толщина внешних стен
300 мм
Толщина внутренних перегородок
100 мм
Улучшенные шумовые характеристики
Да
Вентиляция
Естественная
Веранда
Нет
Водоотведение
Не предусмотрено
Водоснабжение
Не предусмотрено
Высота дома
4.84 м
Высота потолков
3 м

Планировка

Фасад дома

Александр

Закажите выезд инженера

Александр

Выездной инженер
Закажите выезд инженера для точной диагностики и профессиональной консультации по инженерным системам. Специалист приедет в удобное время, проведёт осмотр, рассчитает стоимость работ и подберёт оптимальные решения для вашего дома.


    Похожие проекты

    Ипотека и
    рассрочка
    Классический проект двухэтажного дома 8,0х11,0
    Стоимость от:
    7 432 560
    Проект от: 55 800
    Этажей 2
    Санузлы 1
    Спальни 3
    Смотреть
    Ипотека и
    рассрочка
    Загородный одноэтажный классический дом 3 спальни
    Стоимость от:
    4 643 980
    Проект от: 34 200
    Этажей 1
    Санузлы 1
    Спальни 3
    Смотреть
    Ипотека и
    рассрочка
    Кирпичный дом 76 м2
    Стоимость от:
    5 714 720
    Проект от: 34 200
    Этажей 1
    Санузлы 2
    Спальни 3
    Смотреть
    Ипотека и
    рассрочка
    Современное шале из арболита-Мечта
    Стоимость от:
    7 252 520
    Проект от: 47 700
    Этажей 1
    Санузлы 2
    Спальни 3
    Смотреть
    Ипотека и
    рассрочка
    Жилой дом ST-67
    Стоимость от:
    4 731 540
    Проект от: 30 150
    Этажей 1
    Санузлы 2
    Спальни 2
    Смотреть
    Ипотека и
    рассрочка
    Проект Загородный дом АС-283
    Стоимость от:
    11 753 760
    Проект от: 78 300
    Этажей 2
    Санузлы 2
    Спальни 4
    Смотреть

    Как узнать стоимость дома

    back
    Оставляете заявку
    Вы заполняете форму на сайте или звоните нам. Менеджер Лайвкрафт связывается с вами для уточнения деталей: тип дома, площадь, материалы, участок строительства.
    back
    Консультация и подбор решения
    Наш специалист помогает выбрать оптимальный тип дома и конструкцию с учётом бюджета, сроков и целей — будь то дом для постоянного проживания или дача.
    back
    Расчёт предварительной стоимости
    Инженер делает первичный расчёт стоимости строительства по вашим параметрам: фундамент, коробка, кровля, отделка. Вы получаете смету с разбивкой по этапам.
    back
    Корректировка и утверждение сметы
    При необходимости вносим изменения — например, замену материалов или сокращение этапов. После согласования формируется окончательная фиксированная смета.
    back
    Заключение договора и старт работ
    После утверждения сметы заключаем официальный договор с гарантией. Вы получаете прозрачный график и точную стоимость — без скрытых расходов.

    Заказать конусльтацию по:Одноэтажный современный дом Barn SS-80

    Фото 1 Одноэтажный современный дом Barn SS-80


      Наши
      контакты

      Дмитров
      Опорный проезд 28Б
      (индустриальный парк Ниагара)
      9:00 до 18:00

      Корзина