4.9
Рейтинг на основании 120 отзывов
Дмитров
Опорный проезд 28Б
(индустриальный парк Ниагара)
Бренд "Дмитров-Дело" c 2008 года на рынке строительства в Дмитрове
Звоните 9:00 до 18:00 8 (915) 055-33-61
Бренд "Дмитров-Дело" c 2008 года на рынке строительства в Дмитрове

Одноэтажный современный дом с навесом для автомобиля SS-152

Стоимость проекта от:
67 950 ₽
Стоимость строительства от:
10 663 620 ₽
Артикул ART-10360
Дата 25.12.2025
Архитектурный стиль Хайтек
Количество надземных этажей 1
Круглогодичное проживание Да
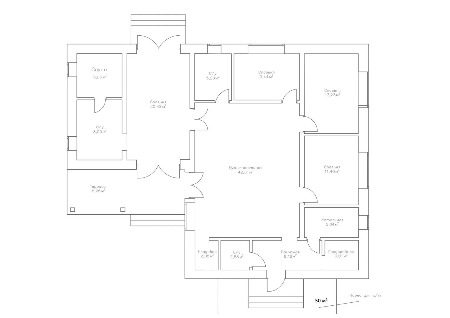
Площадь дома 151 м2
Санузлы 3
Спальни 4

Описание

Добро пожаловать в элегантный одноэтажный дом, где современность встречается с комфортом. Этот объект выполнен в стиле хай‑тек, где чистые линии и современные материалы создают ощущение простора и изысканности. Здесь можно жить круглый год, а каждый уголок продуман до последней детали, чтобы вам и вашей семье не пришлось беспокоиться о мелочах. Особое внимание уделено практичной функциональности: пристроенный гараж/крытая автостоянка обеспечивает безопасное хранение вашего автомобиля и защиту от непогоды, а удобный навес SS‑152 – идеальное место для отдыха после долгого дня. На открытой террасе вы сможете наслаждаться ароматом свежего воздуха и прекрасными видами, создавая атмосферу уюта и гармонии. Стены дома изготовлены из газобетонных блоков, что гарантирует хорошую теплоизоляцию и энергосбережение, а комбинированная крыша сочетает в себе лучшие свойства различных покрытий, обеспечивая долговечность и надежность. В этом современном доме вы ощутите лёгкость бытия, где каждая деталь работает на ваш комфорт и спокойствие.

Характеристики дома

Архитектурный стиль
Хайтек
Автоматизированное регулирование параметров теплоносителя
Нет
Балконы/лоджии
Отсутствуют
Чердачное помещение
Нет
Датчики протечки воды
Нет
Эксплуатируемая или зеленая кровля
Нет
Электроснабжение
2 варианта
Газоснабжение
2 варианта
Изоляция воздушного шума
Да
Камин
Нет
Класс энергоэффективности
-
Класс энергосбережения
-
Количество надземных этажей
1
Круглогодичное проживание
Да
Материал кровли
Металлочерепица
Материал перекрытий
Деревянные
Материал внешних стен
Газобетонные блоки
Материал внутренних перегородок
Блочные
Модульное строительство с конструкциями заводского изготовления
Нет
Объем надземной части
947 м3
Основной материал фасадов
Штукатурка
Отопление
2 варианта
Площадь дома
151 м2
Площадь застройки
254 м2
Подвальное помещение
Нет
Показатель компактности здания
-
Приборы учета тепловой энергии
Нет
Пристроенный гараж/крытая автостоянка
Да
Противопожарная система
Нет
Санузлы
3
Совмещенная кухня-гостиная
Да
Спальни
4
Терраса
Да
Тип фундамента
Плитный
Тип кровли
Комбинированная
Толщина внешних стен
375 мм
Толщина внутренних перегородок
100 мм
Улучшенные шумовые характеристики
Да
Вентиляция
Естественная
Веранда
Нет
Водоотведение
2 варианта
Водоснабжение
Не предусмотрено
Высота дома
5.17 м
Высота потолков
2.97 м

Планировка

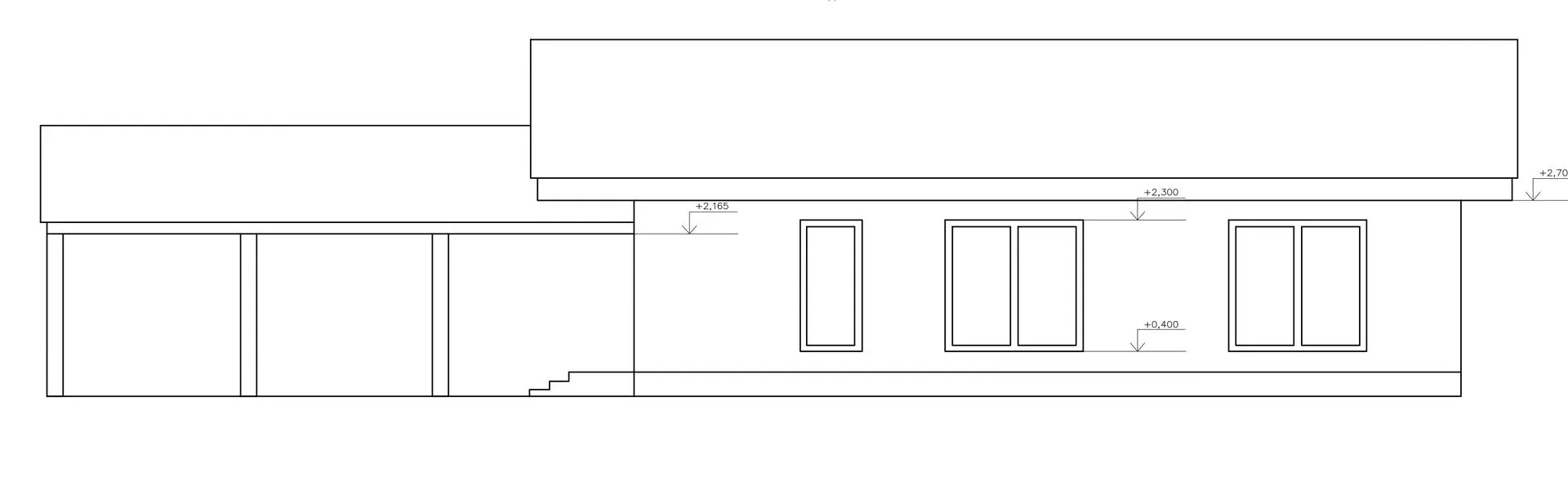
Фасад дома

Александр

Закажите выезд инженера

Александр

Выездной инженер
Закажите выезд инженера для точной диагностики и профессиональной консультации по инженерным системам. Специалист приедет в удобное время, проведёт осмотр, рассчитает стоимость работ и подберёт оптимальные решения для вашего дома.


    Похожие проекты

    Ипотека и
    рассрочка
    Провансаль
    Стоимость от:
    12 264 840
    Проект от: 83 700
    Этажей 2
    Санузлы 2
    Спальни 4
    Смотреть
    Ипотека и
    рассрочка
    Модульный дом FL 51 (ЩЕ51)
    Стоимость от:
    4 182 750
    Проект от: 33 750
    Этажей 1
    Санузлы 1
    Спальни 2
    Смотреть
    Ипотека и
    рассрочка
    Одноэтажный дом FK-136 Пятидворка
    Стоимость от:
    10 215 920
    Проект от: 61 200
    Этажей 1
    Санузлы 1
    Спальни 3
    Смотреть
    Ипотека и
    рассрочка
    Каркасный дом «Семейный»
    Стоимость от:
    6 833 160
    Проект от: 51 300
    Этажей 2
    Санузлы 2
    Спальни 4
    Смотреть
    Ипотека и
    рассрочка
    КЛМ 093
    Стоимость от:
    9 198 480
    Проект от: 57 150
    Этажей 2
    Санузлы 2
    Спальни 3
    Смотреть
    Ипотека и
    рассрочка
    Самшит
    Стоимость от:
    8 178 480
    Проект от: 52 650
    Этажей 2
    Санузлы 1
    Спальни 3
    Смотреть

    Как узнать стоимость дома

    back
    Оставляете заявку
    Вы заполняете форму на сайте или звоните нам. Менеджер Лайвкрафт связывается с вами для уточнения деталей: тип дома, площадь, материалы, участок строительства.
    back
    Консультация и подбор решения
    Наш специалист помогает выбрать оптимальный тип дома и конструкцию с учётом бюджета, сроков и целей — будь то дом для постоянного проживания или дача.
    back
    Расчёт предварительной стоимости
    Инженер делает первичный расчёт стоимости строительства по вашим параметрам: фундамент, коробка, кровля, отделка. Вы получаете смету с разбивкой по этапам.
    back
    Корректировка и утверждение сметы
    При необходимости вносим изменения — например, замену материалов или сокращение этапов. После согласования формируется окончательная фиксированная смета.
    back
    Заключение договора и старт работ
    После утверждения сметы заключаем официальный договор с гарантией. Вы получаете прозрачный график и точную стоимость — без скрытых расходов.

    Заказать конусльтацию по:Одноэтажный современный дом с навесом для автомобиля SS-152

    Фото 1 Одноэтажный современный дом с навесом для автомобиля SS-152


      Наши
      контакты

      Дмитров
      Опорный проезд 28Б
      (индустриальный парк Ниагара)
      9:00 до 18:00

      Корзина