4.9
Рейтинг на основании 120 отзывов
Дмитров
Опорный проезд 28Б
(индустриальный парк Ниагара)
Бренд "Дмитров-Дело" c 2008 года на рынке строительства в Дмитрове
Звоните 9:00 до 18:00 8 (915) 055-33-61
Бренд "Дмитров-Дело" c 2008 года на рынке строительства в Дмитрове

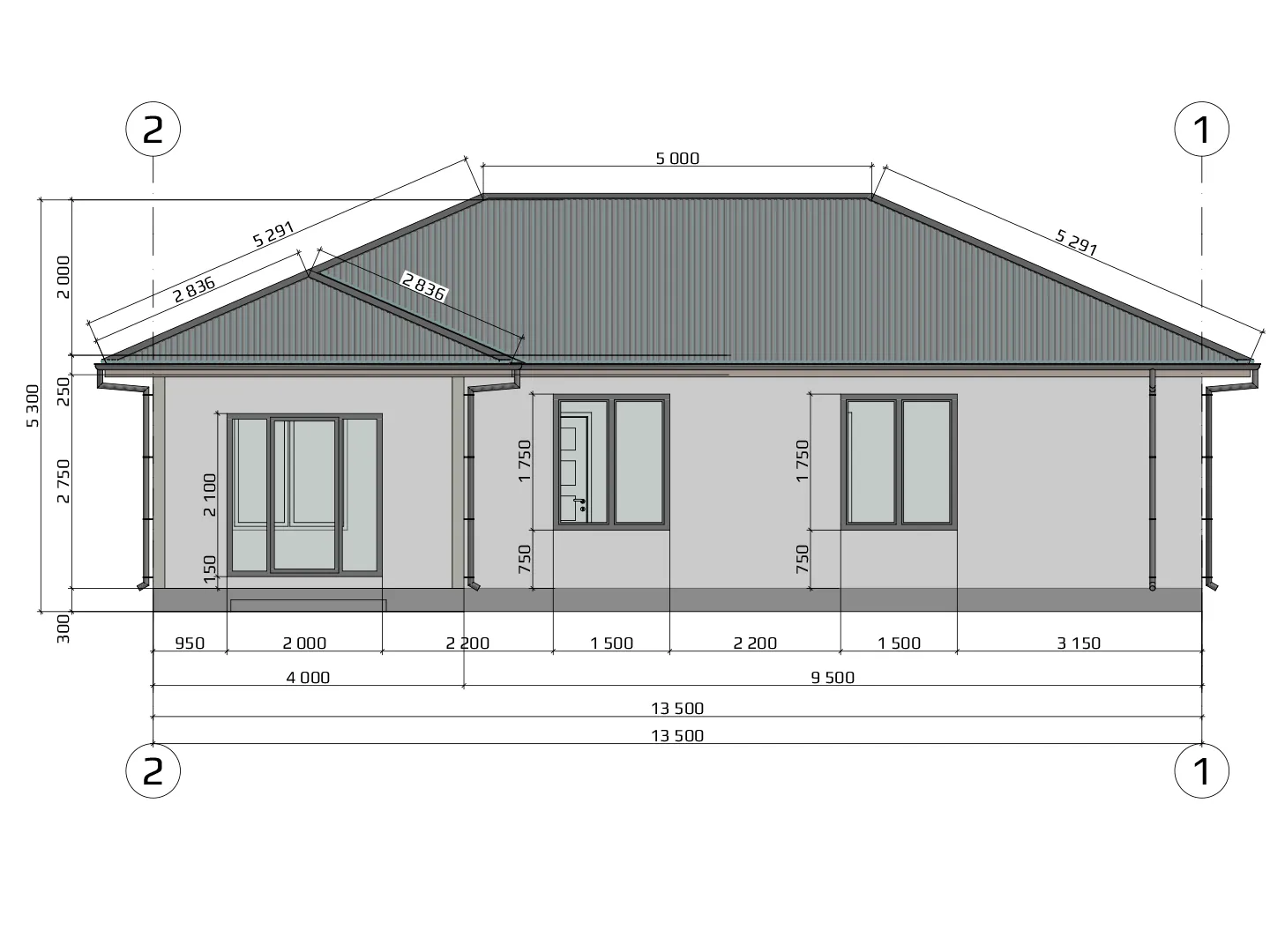
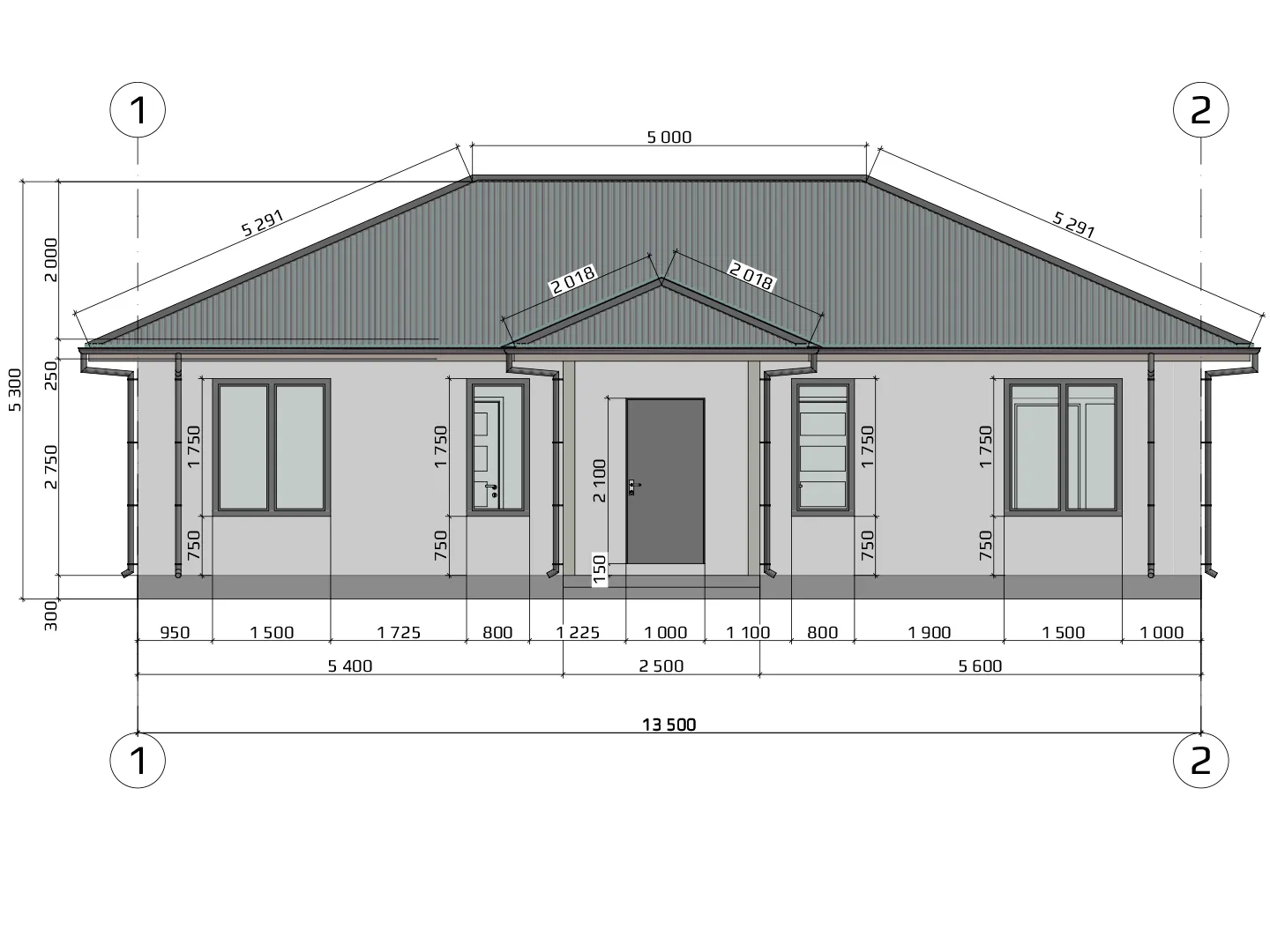
Одноэтажный загородный дом «Элегант»

Стоимость проекта от:
40 950 ₽
БЕСПЛАТНО! ПРИ ЗАКАЗЕ СТРОИТЕЛЬСТВА
Стоимость строительства от:
6 426 420 ₽
Артикул ART-15450
Дата 25.12.2025
Архитектурный стиль Европейский
Количество надземных этажей 1
Круглогодичное проживание Да
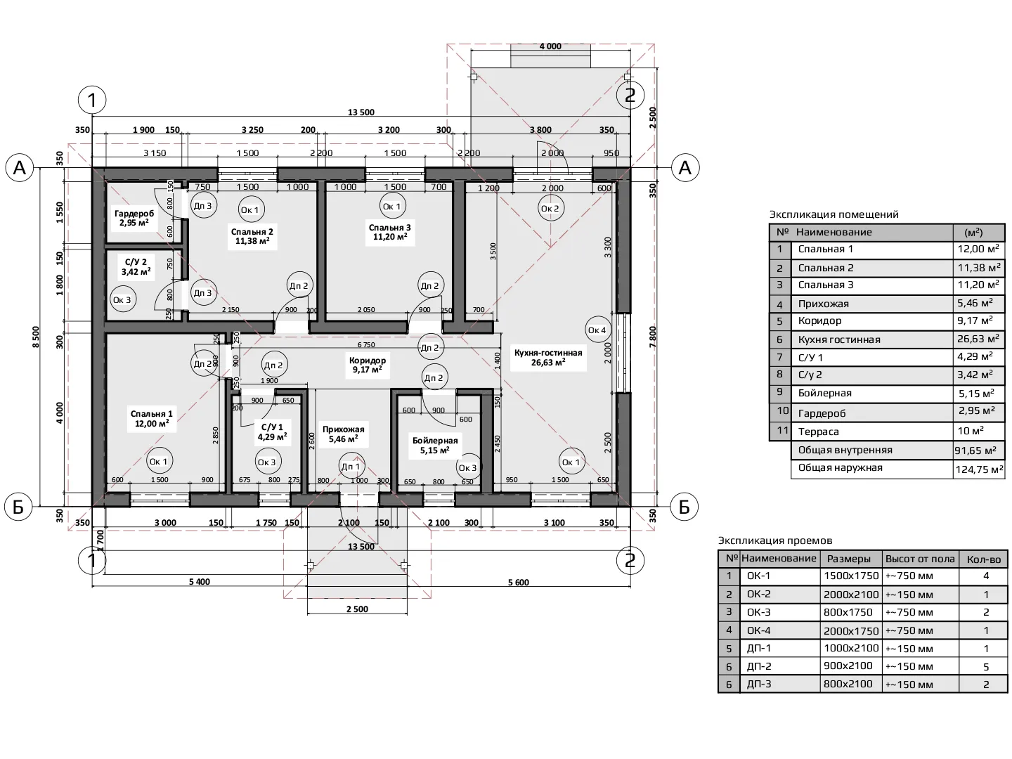
Площадь дома 91 м2
Санузлы 2
Спальни 3

Описание

В самом сердце живописного загородного пространства появляется дом «Элегант» – воплощение истинной европейской элегантности в простоте и функциональности одного этажа. Его чистые линии и утончённая отделка создают атмосферу гармонии и уюта, словно вы шагнули в уютный пригородный дворец, но при этом сохранили всё удобство современной жизни. Годовое круглогодичное проживание гарантирует, что дом будет радовать вас в любые сезоны: в солнечную весну он дарит аромат свежих цветов, а в холодную зиму - тепло и уединение. Кристально ясные газобетонные блоки, сшитые до идеала, обеспечивают непроницаемость от холода и шумов, давая ощущение защищённости в любой погоды. Кровля в форме вальмовой четырёхскатной конструкции не только придаёт дому характерные европейские черты, но и обеспечивает надёжную защиту от атмосферных осадков. Любой, кто ищет идеальное сочетание стиля, уюта и практичности, найдёт в «Элеганте» то, что искал: просторные помещения, уютную террасу для романтических вечеров и непобедимое чувство, что каждое мгновение здесь – это возможность наслаждаться жизнью на полной скорости. Традиции и современные решения находятся в постоянном диалоге, а отсутствие балконов, веранды и пристроенного гаража позволяет сосредоточиться на простоте и эстетике самого дома. Тихая, аккуратная территория, где каждая деталь продумана до мелочей, приглашает провести время на свежем воздухе, расслабиться за чашечкой кофе на террасе или просто наблюдать за закатами, которые окрашивают горизонт в самые нежные цвета. Дом «Элегант» – это приглашение к жизни, где каждый шаг напоминает о том, что уют и стиль могут сочетаться без компромиссов.

Характеристики дома

Архитектурный стиль
Автоматизированное регулирование параметров теплоносителя
Нет
Балконы/лоджии
Отсутствуют
Чердачное помещение
Нет
Датчики протечки воды
Нет
Эксплуатируемая или зеленая кровля
Нет
Электроснабжение
Центральное
Газоснабжение
Центральное
Изоляция воздушного шума
Нет
Камин
Нет
Класс энергоэффективности
-
Класс энергосбережения
-
Количество надземных этажей
1
Круглогодичное проживание
Да
Материал кровли
Металлочерепица
Материал перекрытий
Деревянные
Материал внешних стен
Материал внутренних перегородок
Блочные
Модульное строительство с конструкциями заводского изготовления
Нет
Объем надземной части
459 м3
Основной материал фасадов
Штукатурка
Отопление
Индивидуальное
Площадь дома
91 м2
Площадь застройки
124 м2
Подвальное помещение
Нет
Показатель компактности здания
-
Приборы учета тепловой энергии
Нет
Пристроенный гараж/крытая автостоянка
Нет
Противопожарная система
Нет
Санузлы
2
Совмещенная кухня-гостиная
Да
Спальни
3
Терраса
Да
Тип фундамента
Плитный
Толщина внешних стен
450 мм
Толщина внутренних перегородок
150 мм
Улучшенные шумовые характеристики
Нет
Вентиляция
2 варианта
Веранда
Нет
Водоотведение
Локальные очистные сооружения
Водоснабжение
Индивидуальное
Высота дома
5.3 м
Высота потолков
2.75 м

Планировка

Фасад дома

Александр

Закажите выезд инженера

Александр

Выездной инженер
Закажите выезд инженера для точной диагностики и профессиональной консультации по инженерным системам. Специалист приедет в удобное время, проведёт осмотр, рассчитает стоимость работ и подберёт оптимальные решения для вашего дома.


    Похожие проекты

    Ипотека и
    рассрочка
    Статус 10х11 Яхрома
    Стоимость от:
    5 202 450
    Проект от: 40 500
    Этажей 1
    Санузлы 1
    Спальни 3
    Смотреть
    Ипотека и
    рассрочка
    Комфорт+
    Стоимость от:
    10 140 900
    Проект от: 60 750
    Этажей 1
    Санузлы 1
    Спальни 3
    Смотреть
    Ипотека и
    рассрочка
    Мамонтово-9
    Стоимость от:
    10 085 400
    Проект от: 70 200
    Этажей 2
    Санузлы 2
    Спальни 5
    Смотреть
    Ипотека и
    рассрочка
    VALENSIA-3
    Стоимость от:
    4 590 300
    Проект от: 29 250
    Этажей 1
    Санузлы 1
    Спальни 2
    Смотреть
    Ипотека и
    рассрочка
    Одноэтажный дом FIXPLANS-0215
    Стоимость от:
    14 547 720
    Проект от: 92 700
    Этажей 1
    Санузлы 2
    Спальни 3
    Смотреть
    Ипотека и
    рассрочка
    Тайгарт 98
    Стоимость от:
    9 099 860
    Проект от: 59 850
    Этажей 1
    Санузлы 2
    Спальни 3
    Смотреть

    Как узнать стоимость дома

    back
    Оставляете заявку
    Вы заполняете форму на сайте или звоните нам. Менеджер Лайвкрафт связывается с вами для уточнения деталей: тип дома, площадь, материалы, участок строительства.
    back
    Консультация и подбор решения
    Наш специалист помогает выбрать оптимальный тип дома и конструкцию с учётом бюджета, сроков и целей — будь то дом для постоянного проживания или дача.
    back
    Расчёт предварительной стоимости
    Инженер делает первичный расчёт стоимости строительства по вашим параметрам: фундамент, коробка, кровля, отделка. Вы получаете смету с разбивкой по этапам.
    back
    Корректировка и утверждение сметы
    При необходимости вносим изменения — например, замену материалов или сокращение этапов. После согласования формируется окончательная фиксированная смета.
    back
    Заключение договора и старт работ
    После утверждения сметы заключаем официальный договор с гарантией. Вы получаете прозрачный график и точную стоимость — без скрытых расходов.

    Заказать конусльтацию по:Одноэтажный загородный дом «Элегант»

    Фото 1 Одноэтажный загородный дом «Элегант»


      Наши
      контакты

      Дмитров
      Опорный проезд 28Б
      (индустриальный парк Ниагара)
      9:00 до 18:00

      Корзина