4.9
Рейтинг на основании 120 отзывов
Дмитров
Опорный проезд 28Б
(индустриальный парк Ниагара)
Бренд "Дмитров-Дело" c 2008 года на рынке строительства в Дмитрове
Звоните 9:00 до 18:00 8 (915) 055-33-61
Бренд "Дмитров-Дело" c 2008 года на рынке строительства в Дмитрове

Одноэтажный жилой дом Афина 125 кв.м.

Стоимость проекта от:
56 250 ₽
БЕСПЛАТНО! ПРИ ЗАКАЗЕ СТРОИТЕЛЬСТВА
Стоимость строительства от:
9 390 700 ₽
Артикул ART-15732
Дата 25.12.2025
Архитектурный стиль Классический
Количество надземных этажей 1
Круглогодичное проживание Да
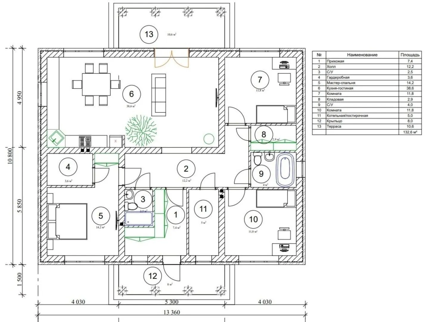
Площадь дома 125 м2
Санузлы 2
Спальни 3

Описание

В тихом, ухоженном районе, в окружении живописных проспектов, стоит изысканный одноэтажный дом площадью 125 кв. м. Его классический облик создаёт ощущение времени и традиций, при этом каждый сантиметр пространства продуман до мелочей: от светлых стен до просторных окон, через которые в дом льется естественный свет. Дом рассчитан на круглогодичное проживание, поэтому в любой сезон вы будете наслаждаться комфортом и тепло. Внутри — открытая планировка с просторными комнатами, где каждый уголок наполнен уютом и атмосферой домашнего уюта. Стены из газобетонных блоков обеспечивают отличную теплоизоляцию и долговечность, а двускатная крыша добавляет величественности и защищает от непогоды. Хотя балконы и веранда отсутствуют, обильный солнечный свет и свободно открывающийся двор позволяют насладиться природой в любое время дня. Особое место в доме занимает просторная уютная терраса, где можно провести летний вечер в компании друзей или просто отдохнуть после долгого дня. Просторный двор, без пристроенного гаража, создаёт впечатление открытости и свободы, а отсутствие чердачной площади позволяет сосредоточиться на функциональных помещениях. Этот дом — идеальное сочетание классической эстетики, практичности и уюта, открывающееся в каждом уголке.

Характеристики дома

Архитектурный стиль
Автоматизированное регулирование параметров теплоносителя
Нет
Балконы/лоджии
Отсутствуют
Чердачное помещение
Нет
Датчики протечки воды
Нет
Эксплуатируемая или зеленая кровля
Нет
Электроснабжение
Центральное
Газоснабжение
Центральное
Изоляция воздушного шума
Нет
Камин
Нет
Класс энергоэффективности
-
Класс энергосбережения
-
Количество надземных этажей
1
Круглогодичное проживание
Да
Материал кровли
Металлочерепица
Материал перекрытий
Сборные железобетонные многопустотные плиты
Материал внешних стен
Материал внутренних перегородок
Блочные
Модульное строительство с конструкциями заводского изготовления
Нет
Объем надземной части
692 м3
Основной материал фасадов
Облицовочный кирпич
Отопление
Индивидуальное
Площадь дома
125 м2
Площадь застройки
163 м2
Подвальное помещение
Нет
Показатель компактности здания
-
Приборы учета тепловой энергии
Нет
Пристроенный гараж/крытая автостоянка
Нет
Противопожарная система
Нет
Санузлы
2
Совмещенная кухня-гостиная
Да
Спальни
3
Терраса
Да
Тип фундамента
Свайно-ростверковый
Тип кровли
Толщина внешних стен
450 мм
Толщина внутренних перегородок
100 мм
Улучшенные шумовые характеристики
Нет
Вентиляция
Естественная
Веранда
Нет
Водоотведение
Локальные очистные сооружения
Водоснабжение
Индивидуальное
Высота дома
5.9 м
Высота потолков
2.6 м

Планировка

Фасад дома

Александр

Закажите выезд инженера

Александр

Выездной инженер
Закажите выезд инженера для точной диагностики и профессиональной консультации по инженерным системам. Специалист приедет в удобное время, проведёт осмотр, рассчитает стоимость работ и подберёт оптимальные решения для вашего дома.


    Похожие проекты

    Ипотека и
    рассрочка
    ЗАЛЬЦБУРГ-198
    Стоимость от:
    14 977 680
    Проект от: 93 150
    Этажей 2
    Санузлы 2
    Спальни 2
    Смотреть
    Ипотека и
    рассрочка
    Одноэтажный дом в классическом стиле К-87
    Стоимость от:
    5 331 480
    Проект от: 37 800
    Этажей 1
    Санузлы 2
    Спальни 3
    Смотреть
    Ипотека и
    рассрочка
    D137-2
    Стоимость от:
    10 290 720
    Проект от: 71 100
    Этажей 2
    Санузлы 3
    Спальни 3
    Смотреть
    Ипотека и
    рассрочка
    Финский дом LUMO (Очароватальный)
    Стоимость от:
    4 337 190
    Проект от: 35 100
    Этажей 1
    Санузлы 1
    Спальни 3
    Смотреть
    Ипотека и
    рассрочка
    ЮНИ-55
    Стоимость от:
    3 513 510
    Проект от: 28 350
    Этажей 1
    Санузлы 1
    Спальни 2
    Смотреть
    Ипотека и
    рассрочка
    ROOMY-54
    Стоимость от:
    3 848 130
    Проект от: 31 050
    Этажей 1
    Санузлы 1
    Спальни 2
    Смотреть

    Как узнать стоимость дома

    back
    Оставляете заявку
    Вы заполняете форму на сайте или звоните нам. Менеджер Лайвкрафт связывается с вами для уточнения деталей: тип дома, площадь, материалы, участок строительства.
    back
    Консультация и подбор решения
    Наш специалист помогает выбрать оптимальный тип дома и конструкцию с учётом бюджета, сроков и целей — будь то дом для постоянного проживания или дача.
    back
    Расчёт предварительной стоимости
    Инженер делает первичный расчёт стоимости строительства по вашим параметрам: фундамент, коробка, кровля, отделка. Вы получаете смету с разбивкой по этапам.
    back
    Корректировка и утверждение сметы
    При необходимости вносим изменения — например, замену материалов или сокращение этапов. После согласования формируется окончательная фиксированная смета.
    back
    Заключение договора и старт работ
    После утверждения сметы заключаем официальный договор с гарантией. Вы получаете прозрачный график и точную стоимость — без скрытых расходов.

    Заказать конусльтацию по:Одноэтажный жилой дом Афина 125 кв.м.

    Фото 1 Одноэтажный жилой дом Афина 125 кв.м.


      Наши
      контакты

      Дмитров
      Опорный проезд 28Б
      (индустриальный парк Ниагара)
      9:00 до 18:00

      Корзина