4.9
Рейтинг на основании 120 отзывов
Дмитров
Опорный проезд 28Б
(индустриальный парк Ниагара)
Бренд "Дмитров-Дело" c 2008 года на рынке строительства в Дмитрове
Звоните 9:00 до 18:00 8 (915) 055-33-61
Бренд "Дмитров-Дело" c 2008 года на рынке строительства в Дмитрове

Одноэтажный жилой дом Пан 78 кв.м.

Стоимость проекта от:
35 100 ₽
БЕСПЛАТНО! ПРИ ЗАКАЗЕ СТРОИТЕЛЬСТВА
Стоимость строительства от:
6 212 360 ₽
Артикул ART-19213
Дата 26.12.2025
Архитектурный стиль Классический
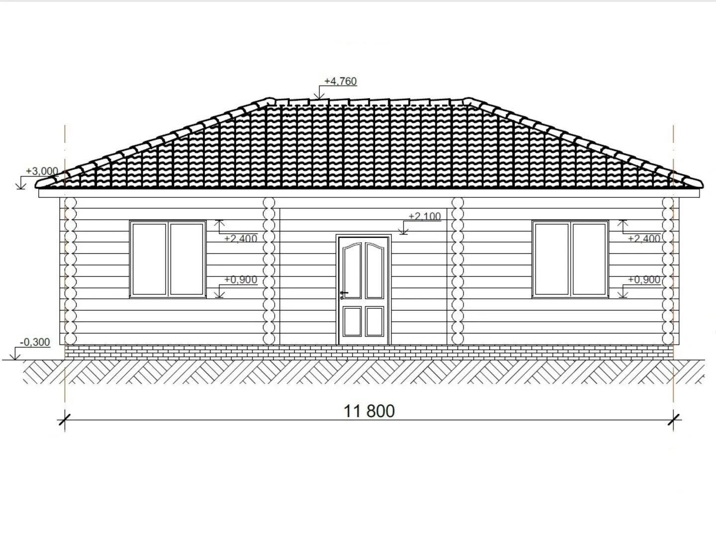
Количество надземных этажей 1
Круглогодичное проживание Да
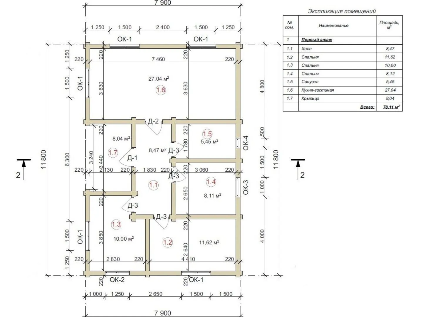
Площадь дома 78 м2
Санузлы 1
Спальни 3

Описание

Однажды в тихой деревенской срединной улице вы откроете двери к своему новому дому, где каждая точка, от внешних стен до внутреннего обивки, рассказывает историю уюта и тепла. 78 кв.м. современного простора, выполненного в классическом стиле, придают этому жилью неповторимую элегантность. Дом построен из оцилиндрованного бревна, что обеспечивает приятную тёплую атмосферу и естественную звукоизоляцию; в нём вы будете чувствовать всю душу и сердце того места, где время сполна отдыхает на вас. Четырехскатная вальмовая крыша подчёркивает простоту и величие классической архитектуры, а отсутствие балконов и лоджий позволяет вам максимально использовать свет, проникающий через большие окна, и наслаждаться уютом открытых горизонтальных линий. Вы будете наслаждаться круглогодичным проживанием, ведь дом рассчитан на все времена года: от жарких летних дней, когда внутренний каркас берёт в себя тепло, до зимних холодов, когда изоляция из бревна защищает от сквозняков. Внутреннее пространство, без чердачных помещений и лишней отделки, создаёт лёгкость и простоту. Вам не придётся беспокоиться о прибрежных гаражах или крытых автостоянках; вместо этого вы открываете возможность создать собственный зеленый уголок прямо у подъёма. Ваша веранда? Нет – но это создаёт пространство, куда вы можете легко перенести свою собственную террасу, если захотите, сделав её местом для весёлых вечеринок и уютных к утрам. В этом доме каждый элемент продуман до мелочей: от тёплых тонов древесины до светлых интерьеров, создающих ощущение просторов. Если вы ищете уютный уголок, где легко почувствовать связь с природой и красотой классической архитектуры, – этот дом – идеальный выбор. В нём вы найдёте надёжность, комфорт и вдохновение для жизни, когда каждый день становится праздником простого, но элегантного существования.

Характеристики дома

Архитектурный стиль
Автоматизированное регулирование параметров теплоносителя
Нет
Балконы/лоджии
Отсутствуют
Чердачное помещение
Нет
Датчики протечки воды
Нет
Эксплуатируемая или зеленая кровля
Нет
Электроснабжение
Центральное
Газоснабжение
Центральное
Изоляция воздушного шума
Нет
Камин
Нет
Класс энергоэффективности
-
Класс энергосбережения
-
Количество надземных этажей
1
Круглогодичное проживание
Да
Материал кровли
Металлочерепица
Материал перекрытий
Деревянные
Материал внешних стен
Материал внутренних перегородок
Деревянные
Модульное строительство с конструкциями заводского изготовления
Нет
Объем надземной части
362 м3
Основной материал фасадов
Дерево
Отопление
Индивидуальное
Площадь дома
78 м2
Площадь застройки
93 м2
Подвальное помещение
Нет
Показатель компактности здания
-
Приборы учета тепловой энергии
Нет
Пристроенный гараж/крытая автостоянка
Нет
Противопожарная система
Нет
Санузлы
1
Совмещенная кухня-гостиная
Да
Спальни
3
Терраса
Нет
Тип фундамента
Ленточный
Толщина внешних стен
220 мм
Толщина внутренних перегородок
220 мм
Улучшенные шумовые характеристики
Нет
Вентиляция
Естественная
Веранда
Нет
Водоотведение
Локальные очистные сооружения
Водоснабжение
Центральное
Высота дома
4.76 м
Высота потолков
3 м

Планировка

Фасад дома

Александр

Закажите выезд инженера

Александр

Выездной инженер
Закажите выезд инженера для точной диагностики и профессиональной консультации по инженерным системам. Специалист приедет в удобное время, проведёт осмотр, рассчитает стоимость работ и подберёт оптимальные решения для вашего дома.


    Похожие проекты

    Ипотека и
    рассрочка
    Коттедж 58-16а
    Стоимость от:
    12 346 800
    Проект от: 74 250
    Этажей 2
    Санузлы 2
    Спальни 5
    Смотреть
    Ипотека и
    рассрочка
    Модульный дом 72 м2 с террасой 18 м
    Стоимость от:
    4 003 560
    Проект от: 32 400
    Этажей 1
    Санузлы 1
    Спальни 3
    Смотреть
    Ипотека и
    рассрочка
    Скандия мини без террасы
    Стоимость от:
    5 578 980
    Проект от: 35 550
    Этажей 1
    Санузлы 1
    Спальни 2
    Смотреть
    Ипотека и
    рассрочка
    Коттедж «Палермо»
    Стоимость от:
    6 915 040
    Проект от: 41 400
    Этажей 1
    Санузлы 1
    Спальни 2
    Смотреть
    Ипотека и
    рассрочка
    ГРЮЙЕР
    Стоимость от:
    11 717 280
    Проект от: 72 900
    Этажей 2
    Санузлы 3
    Спальни 4
    Смотреть
    Ипотека и
    рассрочка
    Красный Ключ 1405
    Стоимость от:
    8 715 520
    Проект от: 52 200
    Этажей 1
    Санузлы 1
    Спальни 4
    Смотреть

    Как узнать стоимость дома

    back
    Оставляете заявку
    Вы заполняете форму на сайте или звоните нам. Менеджер Лайвкрафт связывается с вами для уточнения деталей: тип дома, площадь, материалы, участок строительства.
    back
    Консультация и подбор решения
    Наш специалист помогает выбрать оптимальный тип дома и конструкцию с учётом бюджета, сроков и целей — будь то дом для постоянного проживания или дача.
    back
    Расчёт предварительной стоимости
    Инженер делает первичный расчёт стоимости строительства по вашим параметрам: фундамент, коробка, кровля, отделка. Вы получаете смету с разбивкой по этапам.
    back
    Корректировка и утверждение сметы
    При необходимости вносим изменения — например, замену материалов или сокращение этапов. После согласования формируется окончательная фиксированная смета.
    back
    Заключение договора и старт работ
    После утверждения сметы заключаем официальный договор с гарантией. Вы получаете прозрачный график и точную стоимость — без скрытых расходов.

    Заказать конусльтацию по:Одноэтажный жилой дом Пан 78 кв.м.

    Фото 1 Одноэтажный жилой дом Пан 78 кв.м.


      Наши
      контакты

      Дмитров
      Опорный проезд 28Б
      (индустриальный парк Ниагара)
      9:00 до 18:00

      Корзина