4.9
Рейтинг на основании 120 отзывов
Дмитров
Опорный проезд 28Б
(индустриальный парк Ниагара)
Бренд "Дмитров-Дело" c 2008 года на рынке строительства в Дмитрове
Звоните 9:00 до 18:00 8 (915) 055-33-61
Бренд "Дмитров-Дело" c 2008 года на рынке строительства в Дмитрове

OН-1/120 Микеа5

Стоимость проекта от:
93 150 ₽
Стоимость строительства от:
14 618 340 ₽
Артикул ART-14509
Дата 25.12.2025
Архитектурный стиль Минимализм
Количество надземных этажей 1
Круглогодичное проживание Да
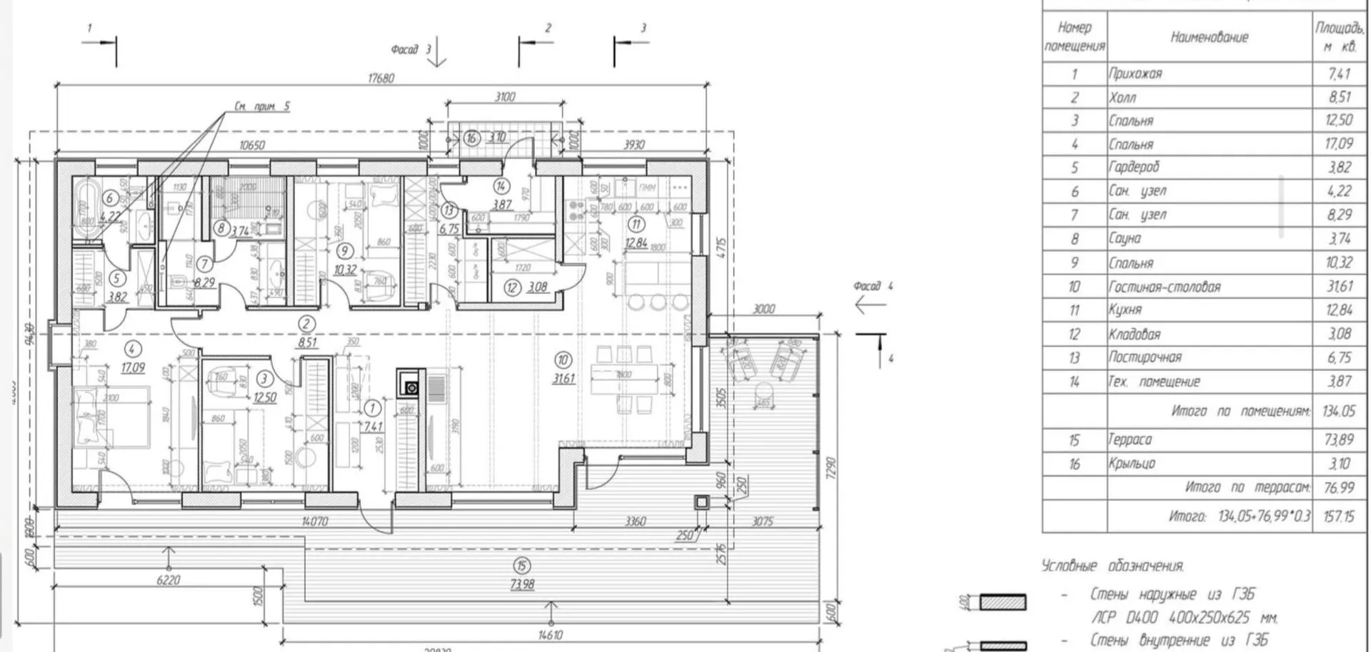
Площадь дома 207 м2
Санузлы 2
Спальни 3

Описание

**ОТКУПИТЕ МЕЧТУ О СОВРЕМЕННОМ КОМФОРТЕ** Дом *OН‑1/120 Микеа5* – это воплощение минимализма, где каждая линия служит гармонии и функциональности. 1 надземный этаж с открытой планировкой создаёт ощущение простора, а большие панорамные окна пропускают свет на весь день, создавая яркое и уютное пространство. Внутри – чистый, открытый интерьер, где свет и простота идут рука об руку: открытая кухня, светлый обеденный зал и светло‑теплое спальное помещение, скроёные в мягких оттенках серого и бежевого. Эта неповторимая модель идеально подходит для круглогодичного проживания: газобетонные блоки внешних стен обеспечивают отличную теплоизоляцию, а двускатная крыша с хорошей вентиляцией защищает от всех погодных условий. В доме нет лишних балконов, веранд и пристроенных гаражей – но вместо них вы получите просторную террасу, где можно устроить романтический ужин, солнечные гриль-файлы или просто наслаждаться свежим воздухом. Дом *OН‑1/120 Микеа5* – это ваш новый уголок уюта, где каждый элемент продуман до мелочей: от светлых стен до практичной планировки. Он сочетает в себе современный стиль, энергоэффективность и комфорт, чтобы вы чувствовали себя дома, где бы вы ни были. Забудьте о сложных переездах и излишних аксессуарах – здесь всё уже готово для вашего спокойного и счастливого будущего.

Характеристики дома

Архитектурный стиль
Минимализм
Автоматизированное регулирование параметров теплоносителя
Нет
Балконы/лоджии
Отсутствуют
Чердачное помещение
Нет
Датчики протечки воды
Нет
Эксплуатируемая или зеленая кровля
Нет
Электроснабжение
Не предусмотрено
Газоснабжение
Не предусмотрено
Изоляция воздушного шума
Нет
Камин
Нет
Класс энергоэффективности
-
Класс энергосбережения
-
Количество надземных этажей
1
Круглогодичное проживание
Да
Материал кровли
Металлочерепица
Материал перекрытий
Деревянные
Материал внешних стен
Газобетонные блоки
Материал внутренних перегородок
Блочные
Модульное строительство с конструкциями заводского изготовления
Нет
Объем надземной части
402 м3
Основной материал фасадов
Штукатурка
Отопление
Не предусмотрено
Площадь дома
207 м2
Площадь застройки
240 м2
Подвальное помещение
Нет
Показатель компактности здания
-
Приборы учета тепловой энергии
Нет
Пристроенный гараж/крытая автостоянка
Нет
Противопожарная система
Нет
Санузлы
2
Совмещенная кухня-гостиная
Да
Спальни
3
Терраса
Да
Тип фундамента
Плитный
Тип кровли
Двускатная
Толщина внешних стен
400 мм
Толщина внутренних перегородок
100 мм
Улучшенные шумовые характеристики
Нет
Вентиляция
Естественная
Веранда
Нет
Водоотведение
Не предусмотрено
Водоснабжение
Не предусмотрено
Высота дома
5.7 м
Высота потолков
3 м

Планировка

Фасад дома

Александр

Закажите выезд инженера

Александр

Выездной инженер
Закажите выезд инженера для точной диагностики и профессиональной консультации по инженерным системам. Специалист приедет в удобное время, проведёт осмотр, рассчитает стоимость работ и подберёт оптимальные решения для вашего дома.


    Похожие проекты

    Ипотека и
    рассрочка
    Орлов
    Стоимость от:
    6 014 800
    Проект от: 36 000
    Этажей 1
    Санузлы 1
    Спальни 3
    Смотреть
    Ипотека и
    рассрочка
    Европа-12
    Стоимость от:
    4 036 780
    Проект от: 26 550
    Этажей 1
    Санузлы 1
    Спальни 2
    Смотреть
    Ипотека и
    рассрочка
    Михалева 114
    Стоимость от:
    8 190 380
    Проект от: 49 050
    Этажей 1
    Санузлы 2
    Спальни 3
    Смотреть
    Ипотека и
    рассрочка
    Вествуд
    Стоимость от:
    8 672 785
    Проект от: 61 650
    Этажей 1
    Санузлы 2
    Спальни 3
    Смотреть
    Ипотека и
    рассрочка
    Дом Люкс 90 м2
    Стоимость от:
    5 755 920
    Проект от: 39 150
    Этажей 2
    Санузлы 2
    Спальни 2
    Смотреть
    Ипотека и
    рассрочка
    «Загородный дом Гестия»
    Стоимость от:
    6 927 140
    Проект от: 39 150
    Этажей 1
    Санузлы 1
    Спальни 3
    Смотреть

    Как узнать стоимость дома

    back
    Оставляете заявку
    Вы заполняете форму на сайте или звоните нам. Менеджер Лайвкрафт связывается с вами для уточнения деталей: тип дома, площадь, материалы, участок строительства.
    back
    Консультация и подбор решения
    Наш специалист помогает выбрать оптимальный тип дома и конструкцию с учётом бюджета, сроков и целей — будь то дом для постоянного проживания или дача.
    back
    Расчёт предварительной стоимости
    Инженер делает первичный расчёт стоимости строительства по вашим параметрам: фундамент, коробка, кровля, отделка. Вы получаете смету с разбивкой по этапам.
    back
    Корректировка и утверждение сметы
    При необходимости вносим изменения — например, замену материалов или сокращение этапов. После согласования формируется окончательная фиксированная смета.
    back
    Заключение договора и старт работ
    После утверждения сметы заключаем официальный договор с гарантией. Вы получаете прозрачный график и точную стоимость — без скрытых расходов.

    Заказать конусльтацию по:OН-1/120 Микеа5

    Фото 1 OН-1/120 Микеа5


      Наши
      контакты

      Дмитров
      Опорный проезд 28Б
      (индустриальный парк Ниагара)
      9:00 до 18:00