4.9
Рейтинг на основании 120 отзывов
Дмитров
Опорный проезд 28Б
(индустриальный парк Ниагара)
Бренд "Дмитров-Дело" c 2008 года на рынке строительства в Дмитрове
Звоните 9:00 до 18:00 8 (915) 055-33-61
Бренд "Дмитров-Дело" c 2008 года на рынке строительства в Дмитрове

Орлино 2.0

Стоимость проекта от:
92 250 ₽
БЕСПЛАТНО! ПРИ ЗАКАЗЕ СТРОИТЕЛЬСТВА
Стоимость строительства от:
14 077 200 ₽
Артикул ART-18495
Дата 26.12.2025
Архитектурный стиль Европейский
Количество надземных этажей 2
Круглогодичное проживание Да
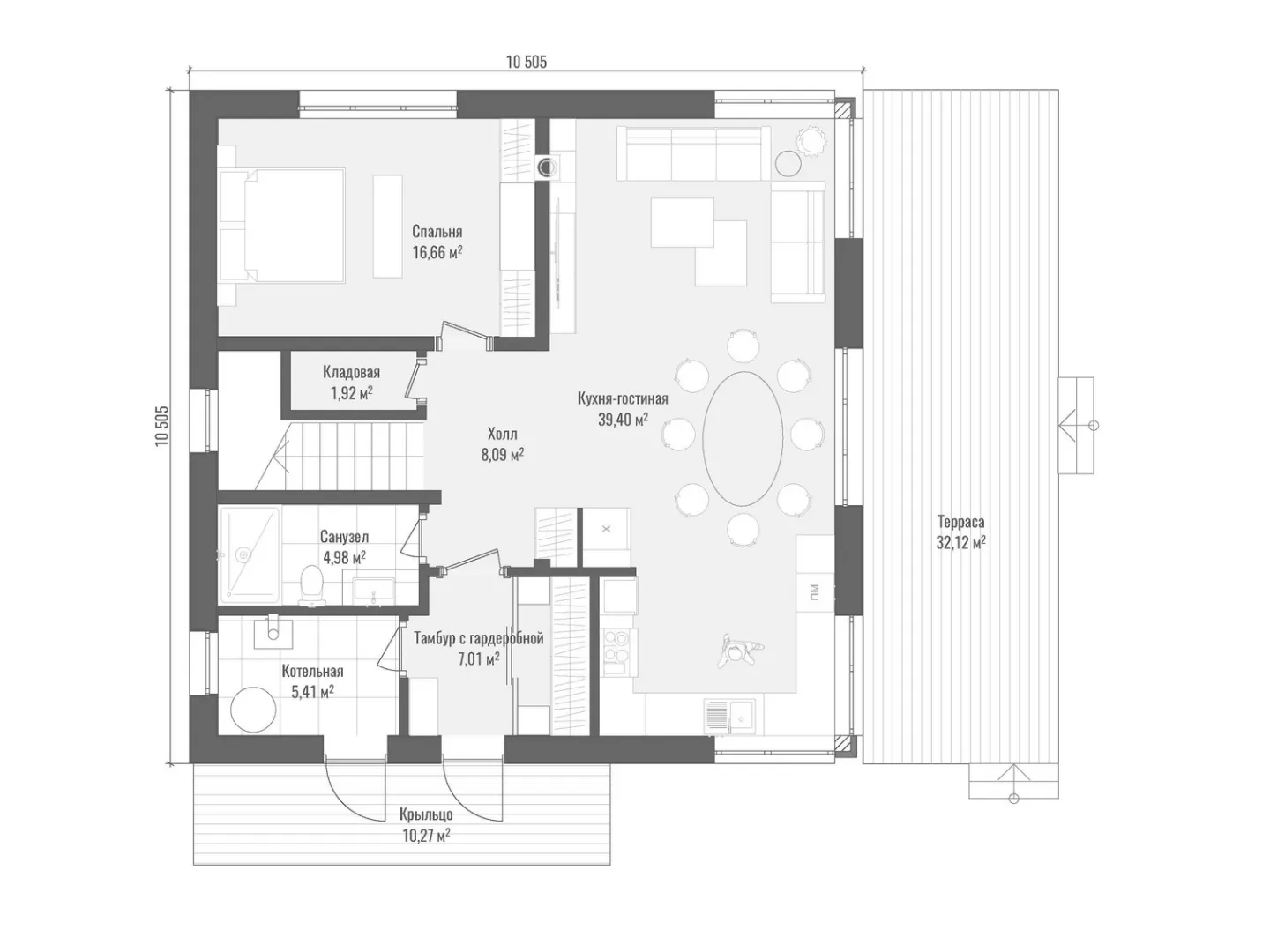
Площадь дома 205 м2
Санузлы 2
Спальни 5

Описание

Уникальное сочетание современного комфорта и европейской элегантности – это ваш будущий дом «Орлино 2.0». На два надземных этажа с открытыми широкими окнами разовьется уютная атмосфера, позволяющая наслаждаться живописными видами и естественным светом в любое время года. Прочный газобетонный корпус и вальмовая кровля обеспечивают долговечность и надежную защиту от непогоды, а европейский архитектурный стиль подарит дому нотки изысканности и гармонии. «Орлино 2.0» создано для тех, кто ищет функциональность без компромиссов. Круглогодичное проживание гарантировано благодаря утеплённой конструкции и качественной системе вентиляции. Несмотря на лаконичную планировку – отсутствие балконов и веранд – дом компенсирует это приятной террасой, где можно провести выходные, вдохнуть свежий воздух и устроить романтический ужин под звёздами. Пристроенные гаражи не предусмотрены, однако у вас будет достаточно пространства для размещения личных вещей и аксессуаров по дому. Если вы цените сочетание стиля, практичности и надежности, «Орлино 2.0» станет идеальным выбором. Это место, где каждый элемент продуман до мелочей, чтобы вы могли полностью погрузиться в атмосферу уюта и покоя, создавая воспоминания, которые останутся с вами на долгие годы.

Характеристики дома

Архитектурный стиль
Автоматизированное регулирование параметров теплоносителя
Да
Балконы/лоджии
Отсутствуют
Чердачное помещение
Нет
Датчики протечки воды
Нет
Эксплуатируемая или зеленая кровля
Нет
Электроснабжение
Центральное
Газоснабжение
Центральное
Изоляция воздушного шума
Да
Камин
Нет
Класс энергоэффективности
B
Класс энергосбережения
A+
Количество надземных этажей
2
Круглогодичное проживание
Да
Материал кровли
Фальцевая кровля Кликфальц
Материал перекрытий
Монолитные железобетонные
Материал внешних стен
Материал внутренних перегородок
Блочные
Модульное строительство с конструкциями заводского изготовления
Нет
Объем надземной части
1186 м3
Основной материал фасадов
Штукатурка
Отопление
2 варианта
Площадь дома
205 м2
Площадь застройки
126 м2
Подвальное помещение
Нет
Показатель компактности здания
0.87
Приборы учета тепловой энергии
Да
Пристроенный гараж/крытая автостоянка
Нет
Противопожарная система
Нет
Санузлы
2
Совмещенная кухня-гостиная
Да
Спальни
5
Терраса
Да
Тип фундамента
Плитный
Толщина внешних стен
400 мм
Толщина внутренних перегородок
100 мм
Улучшенные шумовые характеристики
Да
Вентиляция
Естественная
Веранда
Нет
Водоотведение
2 варианта
Водоснабжение
2 варианта
Высота дома
9.29 м
Высота потолков
3.25 м

Планировка

Фасад дома

Александр

Закажите выезд инженера

Александр

Выездной инженер
Закажите выезд инженера для точной диагностики и профессиональной консультации по инженерным системам. Специалист приедет в удобное время, проведёт осмотр, рассчитает стоимость работ и подберёт оптимальные решения для вашего дома.


    Похожие проекты

    Ипотека и
    рассрочка
    Эффектный Ми-5
    Стоимость от:
    15 159 760
    Проект от: 93 600
    Этажей 1
    Санузлы 2
    Спальни 3
    Смотреть
    Ипотека и
    рассрочка
    Снежок
    Стоимость от:
    6 089 820
    Проект от: 36 450
    Этажей 1
    Санузлы 2
    Спальни 2
    Смотреть
    Ипотека и
    рассрочка
    ЗАЛЬЦБУРГ-157
    Стоимость от:
    11 654 640
    Проект от: 72 450
    Этажей 2
    Санузлы 2
    Спальни 3
    Смотреть
    Ипотека и
    рассрочка
    Дом «Находка»
    Стоимость от:
    4 218 995
    Проект от: 35 550
    Этажей 1
    Санузлы 1
    Спальни 2
    Смотреть
    Ипотека и
    рассрочка
    Загородный дом «Сидней» 168.8м2
    Стоимость от:
    8 060 690
    Проект от: 57 150
    Этажей 1
    Санузлы 2
    Спальни 3
    Смотреть
    Ипотека и
    рассрочка
    ЮС-О-121-1
    Стоимость от:
    9 627 420
    Проект от: 54 450
    Этажей 1
    Санузлы 2
    Спальни 3
    Смотреть

    Как узнать стоимость дома

    back
    Оставляете заявку
    Вы заполняете форму на сайте или звоните нам. Менеджер Лайвкрафт связывается с вами для уточнения деталей: тип дома, площадь, материалы, участок строительства.
    back
    Консультация и подбор решения
    Наш специалист помогает выбрать оптимальный тип дома и конструкцию с учётом бюджета, сроков и целей — будь то дом для постоянного проживания или дача.
    back
    Расчёт предварительной стоимости
    Инженер делает первичный расчёт стоимости строительства по вашим параметрам: фундамент, коробка, кровля, отделка. Вы получаете смету с разбивкой по этапам.
    back
    Корректировка и утверждение сметы
    При необходимости вносим изменения — например, замену материалов или сокращение этапов. После согласования формируется окончательная фиксированная смета.
    back
    Заключение договора и старт работ
    После утверждения сметы заключаем официальный договор с гарантией. Вы получаете прозрачный график и точную стоимость — без скрытых расходов.

    Заказать конусльтацию по:Орлино 2.0

    Фото 1 Орлино 2.0


      Наши
      контакты

      Дмитров
      Опорный проезд 28Б
      (индустриальный парк Ниагара)
      9:00 до 18:00

      Корзина