4.9
Рейтинг на основании 120 отзывов
Дмитров
Опорный проезд 28Б
(индустриальный парк Ниагара)
Бренд "Дмитров-Дело" c 2008 года на рынке строительства в Дмитрове
Звоните 9:00 до 18:00 8 (915) 055-33-61
Бренд "Дмитров-Дело" c 2008 года на рынке строительства в Дмитрове

Оскар

Стоимость проекта от:
50 850 ₽
БЕСПЛАТНО! ПРИ ЗАКАЗЕ СТРОИТЕЛЬСТВА
Стоимость строительства от:
7 899 120 ₽
Артикул ART-16916
Дата 26.12.2025
Архитектурный стиль Американский/Канадский
Количество надземных этажей 2
Круглогодичное проживание Да
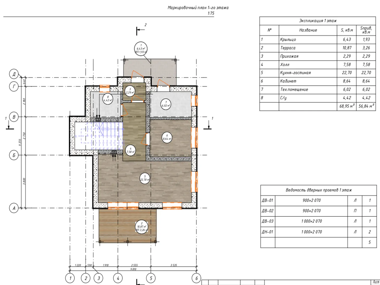
Площадь дома 113 м2
Санузлы 2
Спальни 2

Описание

**Оскар – уютное произведение американского‑канадского дизайна** Этот дом объединяет в себе простоту и элегантность традиционного американского архитектурного стиля, приправленной лёгкой ноткой канадского комфорта. Он располагается на двух надземных этажах, каждый из которых наполнен естественным светом и просторными окнами, подчёркивающими открытость и дружелюбие. Огромный простор делает комнату в каждой ветке как идеальное место для креативного отдыха, семейных собраний или тихого чтения. Прямо с первого этажа оборачивается великолепный вид из балкона, который приглашает к вечерним посиделкам на свежем воздухе. К дому прилагается живописная терраса, где можно наслаждаться рассветами и закатами, а тепло газобетонных блоков на фасаде обеспечивает тихий климат даже в холодные зимние месяцы. Крыша с четырёхскатной (вальмовой) конструкцией не только подчёркивает элегантность, но и гарантирует надёжную защиту от непогоды, делая "Оскар" идеальным вариантом для круглогодичного проживания. Здесь нет лишних элементов, как пристроенный гараж, веранда или чердачное помещение, каждый квадратный метр использован максимально эффективно, создавая ощущение легкости и безмятежности. Этот дом — ваш личный уголок спокойствия и уюта в гармонии с природой, где каждая деталь продумана до мелочей, а атмосфера дарит ощущение домашнего уюта на каждом шагу. Приходите и убедитесь сами: "Оскар" — это место, где хочется возвращаться.

Характеристики дома

Архитектурный стиль
Автоматизированное регулирование параметров теплоносителя
Да
Балконы/лоджии
1
Чердачное помещение
Нет
Датчики протечки воды
Нет
Эксплуатируемая или зеленая кровля
Нет
Электроснабжение
Индивидуальное
Газоснабжение
Не предусмотрено
Изоляция воздушного шума
Нет
Камин
Нет
Класс энергоэффективности
A+
Класс энергосбережения
A+
Количество надземных этажей
2
Круглогодичное проживание
Да
Материал кровли
Металлочерепица
Материал перекрытий
Монолитные железобетонные
Материал внешних стен
Материал внутренних перегородок
Кирпичные
Модульное строительство с конструкциями заводского изготовления
Нет
Объем надземной части
-
Основной материал фасадов
Сайдинг
Отопление
Индивидуальное
Площадь дома
113 м2
Площадь застройки
120 м2
Подвальное помещение
Нет
Показатель компактности здания
1.1
Приборы учета тепловой энергии
Да
Пристроенный гараж/крытая автостоянка
Нет
Противопожарная система
Нет
Санузлы
2
Совмещенная кухня-гостиная
Да
Спальни
2
Терраса
Да
Тип фундамента
Плитный
Толщина внешних стен
375 мм
Толщина внутренних перегородок
100 мм
Улучшенные шумовые характеристики
Да
Вентиляция
Естественная
Веранда
Нет
Водоотведение
Локальные очистные сооружения
Водоснабжение
Индивидуальное
Высота дома
7.93 м
Высота потолков
2.75 м

Планировка

Фасад дома

Александр

Закажите выезд инженера

Александр

Выездной инженер
Закажите выезд инженера для точной диагностики и профессиональной консультации по инженерным системам. Специалист приедет в удобное время, проведёт осмотр, рассчитает стоимость работ и подберёт оптимальные решения для вашего дома.


    Похожие проекты

    Ипотека и
    рассрочка
    Двухэтажный дом Freedom 2.0
    Стоимость от:
    8 760 720
    Проект от: 55 350
    Этажей 2
    Санузлы 2
    Спальни 4
    Смотреть
    Ипотека и
    рассрочка
    «Колесникова»
    Стоимость от:
    2 935 860
    Проект от: 22 050
    Этажей 2
    Санузлы 1
    Спальни 2
    Смотреть
    Ипотека и
    рассрочка
    Авторский проект «Салфер»
    Стоимость от:
    8 474 400
    Проект от: 54 000
    Этажей 1
    Санузлы 1
    Спальни 3
    Смотреть
    Ипотека и
    рассрочка
    Проект загородного дома NHD-153
    Стоимость от:
    9 240 660
    Проект от: 55 350
    Этажей 1
    Санузлы 1
    Спальни 3
    Смотреть
    Ипотека и
    рассрочка
    S 2-125
    Стоимость от:
    8 972 160
    Проект от: 55 800
    Этажей 2
    Санузлы 2
    Спальни 4
    Смотреть
    Ипотека и
    рассрочка
    Проект Ладога
    Стоимость от:
    7 085 980
    Проект от: 40 050
    Этажей 1
    Санузлы 1
    Спальни 3
    Смотреть

    Как узнать стоимость дома

    back
    Оставляете заявку
    Вы заполняете форму на сайте или звоните нам. Менеджер Лайвкрафт связывается с вами для уточнения деталей: тип дома, площадь, материалы, участок строительства.
    back
    Консультация и подбор решения
    Наш специалист помогает выбрать оптимальный тип дома и конструкцию с учётом бюджета, сроков и целей — будь то дом для постоянного проживания или дача.
    back
    Расчёт предварительной стоимости
    Инженер делает первичный расчёт стоимости строительства по вашим параметрам: фундамент, коробка, кровля, отделка. Вы получаете смету с разбивкой по этапам.
    back
    Корректировка и утверждение сметы
    При необходимости вносим изменения — например, замену материалов или сокращение этапов. После согласования формируется окончательная фиксированная смета.
    back
    Заключение договора и старт работ
    После утверждения сметы заключаем официальный договор с гарантией. Вы получаете прозрачный график и точную стоимость — без скрытых расходов.

    Заказать конусльтацию по:Оскар

    Фото 1 Оскар


      Наши
      контакты

      Дмитров
      Опорный проезд 28Б
      (индустриальный парк Ниагара)
      9:00 до 18:00

      Корзина