4.9
Рейтинг на основании 120 отзывов
Дмитров
Опорный проезд 28Б
(индустриальный парк Ниагара)
Бренд "Дмитров-Дело" c 2008 года на рынке строительства в Дмитрове
Звоните 9:00 до 18:00 8 (915) 055-33-61
Бренд "Дмитров-Дело" c 2008 года на рынке строительства в Дмитрове

Островецкое

Стоимость проекта от:
47 700 ₽
БЕСПЛАТНО! ПРИ ЗАКАЗЕ СТРОИТЕЛЬСТВА
Стоимость строительства от:
6 669 520 ₽
Артикул ART-11442
Дата 25.12.2025
Архитектурный стиль Скандинавский
Количество надземных этажей 1
Круглогодичное проживание Да
Площадь дома 106 м2
Санузлы 2
Спальни 1

Описание

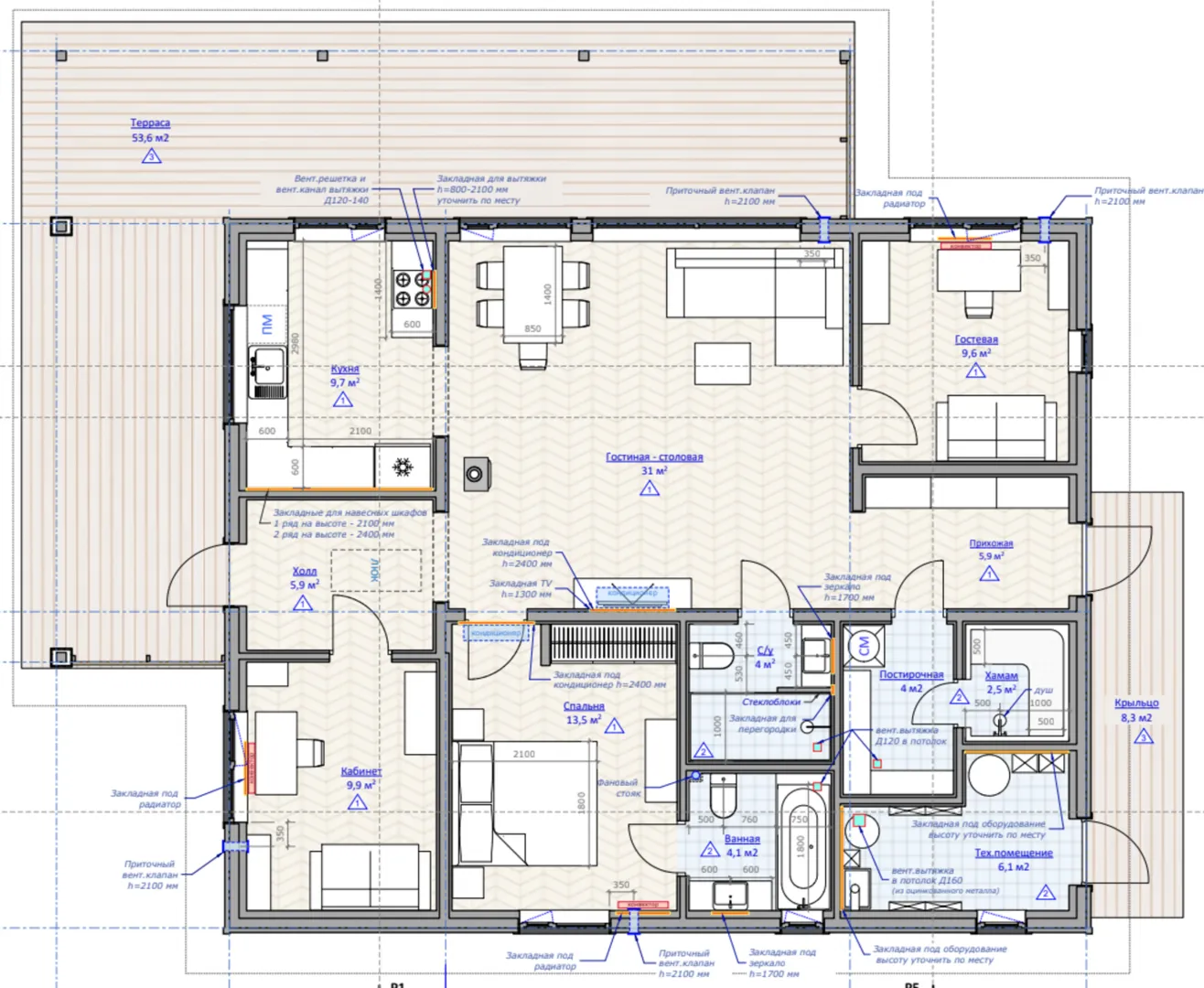
Красивая простота в каждом уголке вашего будущего дома. Островецкое, выполненное в скандинавском стиле, – это один надземный этаж, открывающий безмятежный простор, где гармония архитектуры и природного света создают атмосферу уюта даже в самые прохладные дни. Гладкие деревянные каркасы наружных стен впитывают тепло от солнца, а двойная крыша – типичная для северных стран – надежно защищает от ветра и зноя, сохраняя тепло в зимнем холоде. Здесь не нужны балконы и верандные зоны, ведь целый мир уже открыт за окнами: просторные внутренние помещения, свет, мягкий шум природы и тихая тишина, пронизывающая каждый уголок. Внутри вас ждёт изысканный чердачный уголок, где можно разместить личную библиотеку, уютный кабинет или творческую мастерскую. А на свежем воздухе – терраса, где можно наслаждаться утренним кофе, летним гречком или зимним огоньком, обрамленным живой растительностью, создавая ощущение, что вы всегда в компании леса. Наличие крытой автостоянки у дома не требуется – в современном дизайне подчеркивается связь с природой, а компактность и практичность позволяют без лишних лишних устройств вести простой, но комфортный образ жизни. Этот дом идеально подходит для тех, кто ценит естественность, простоту и спокойствие, но в то же время мечтает о стильном, современном пространстве. Приглашаем вас стать частью этого уютного уголка, где каждый день начинается и заканчивается рядом с природой, а дом становится вашей крепостью в мире уюта и гармонии.

Характеристики дома

Архитектурный стиль
Автоматизированное регулирование параметров теплоносителя
Нет
Балконы/лоджии
Отсутствуют
Чердачное помещение
Да
Датчики протечки воды
Нет
Эксплуатируемая или зеленая кровля
Нет
Электроснабжение
Не предусмотрено
Газоснабжение
Не предусмотрено
Изоляция воздушного шума
Да
Камин
Да
Класс энергоэффективности
-
Класс энергосбережения
-
Количество надземных этажей
1
Круглогодичное проживание
Да
Материал кровли
Фальцевая кровля Кликфальц
Материал перекрытий
Деревянные
Материал внешних стен
Материал внутренних перегородок
Деревянные
Модульное строительство с конструкциями заводского изготовления
Нет
Объем надземной части
435 м3
Основной материал фасадов
Дерево
Отопление
Не предусмотрено
Площадь дома
106 м2
Площадь застройки
168 м2
Подвальное помещение
Нет
Показатель компактности здания
-
Приборы учета тепловой энергии
Нет
Пристроенный гараж/крытая автостоянка
Нет
Противопожарная система
Нет
Санузлы
2
Совмещенная кухня-гостиная
Да
Спальни
1
Терраса
Да
Тип фундамента
Плитный
Тип кровли
Толщина внешних стен
323 мм
Толщина внутренних перегородок
206 мм
Улучшенные шумовые характеристики
Да
Вентиляция
Естественная
Веранда
Нет
Водоотведение
Не предусмотрено
Водоснабжение
Не предусмотрено
Высота дома
5.23 м
Высота потолков
2.76 м

Планировка

Фасад дома

Александр

Закажите выезд инженера

Александр

Выездной инженер
Закажите выезд инженера для точной диагностики и профессиональной консультации по инженерным системам. Специалист приедет в удобное время, проведёт осмотр, рассчитает стоимость работ и подберёт оптимальные решения для вашего дома.


    Похожие проекты

    Ипотека и
    рассрочка
    Мансардный дом №14
    Стоимость от:
    9 125 280
    Проект от: 54 900
    Этажей 2
    Санузлы 2
    Спальни 5
    Смотреть
    Ипотека и
    рассрочка
    PRO-112
    Стоимость от:
    11 562 980
    Проект от: 76 050
    Этажей 1
    Санузлы 2
    Спальни 3
    Смотреть
    Ипотека и
    рассрочка
    Ривьера Барн
    Стоимость от:
    4 059 165
    Проект от: 32 850
    Этажей 1
    Санузлы 1
    Спальни 2
    Смотреть
    Ипотека и
    рассрочка
    Белокаменный 50
    Стоимость от:
    3 046 560
    Проект от: 21 600
    Этажей 1
    Санузлы 1
    Спальни 2
    Смотреть
    Ипотека и
    рассрочка
    Барнхаус 87
    Стоимость от:
    4 559 610
    Проект от: 36 900
    Этажей 1
    Санузлы 1
    Спальни 2
    Смотреть
    Ипотека и
    рассрочка
    Иволга
    Стоимость от:
    6 164 840
    Проект от: 36 900
    Этажей 1
    Санузлы 1
    Спальни 2
    Смотреть

    Как узнать стоимость дома

    back
    Оставляете заявку
    Вы заполняете форму на сайте или звоните нам. Менеджер Лайвкрафт связывается с вами для уточнения деталей: тип дома, площадь, материалы, участок строительства.
    back
    Консультация и подбор решения
    Наш специалист помогает выбрать оптимальный тип дома и конструкцию с учётом бюджета, сроков и целей — будь то дом для постоянного проживания или дача.
    back
    Расчёт предварительной стоимости
    Инженер делает первичный расчёт стоимости строительства по вашим параметрам: фундамент, коробка, кровля, отделка. Вы получаете смету с разбивкой по этапам.
    back
    Корректировка и утверждение сметы
    При необходимости вносим изменения — например, замену материалов или сокращение этапов. После согласования формируется окончательная фиксированная смета.
    back
    Заключение договора и старт работ
    После утверждения сметы заключаем официальный договор с гарантией. Вы получаете прозрачный график и точную стоимость — без скрытых расходов.

    Заказать конусльтацию по:Островецкое

    Фото 1 Островецкое


      Наши
      контакты

      Дмитров
      Опорный проезд 28Б
      (индустриальный парк Ниагара)
      9:00 до 18:00

      Корзина