4.9
Рейтинг на основании 120 отзывов
Дмитров
Опорный проезд 28Б
(индустриальный парк Ниагара)
Бренд "Дмитров-Дело" c 2008 года на рынке строительства в Дмитрове
Звоните 9:00 до 18:00 8 (915) 055-33-61
Бренд "Дмитров-Дело" c 2008 года на рынке строительства в Дмитрове

Озерная Долина

Стоимость проекта от:
65 250 ₽
БЕСПЛАТНО! ПРИ ЗАКАЗЕ СТРОИТЕЛЬСТВА
Стоимость строительства от:
8 694 600 ₽
Артикул ART-3681
Дата 26.12.2025
Архитектурный стиль Скандинавский
Количество надземных этажей 2
Круглогодичное проживание Да
Площадь дома 145 м2
Санузлы 2
Спальни 4

Описание

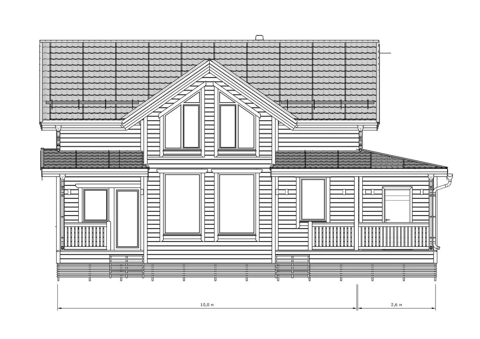
Озёрная Долина — это уютный уголок, где скандинавская простота встречается с природной теплотой. Два надземных этажа создают достаточное пространство для всей семьи, а круглогодичная температура и тщательно продуманные окна дарят ощущение дома в любое время года. Весь фасад выполнен из доброго древесного каркаса, который не только обеспечивает прочность, но и придаёт дому естественную атмосферу, а классическая двускатная крыша подчёркивает лаконичную элегантность скандинавского стиля. Приёмная комнат­а открывается на просторную террасу, где можно наслаждаться рассветами и закатами над тихим озером. Просторные стены с большим количеством окон позволяют естественному свету проникает в каждый уголок, создавая ощущение простора и связи с природой. Внутренние помещения продуманы под функциональность и комфорт: от открытого планного дизайна в гостиной до изолированных ванных и спальных зон, где простые линии и натуральные материалы создают атмосферу расслабления и умиротворения. Отсутствие балконов, веранды и прицепного гаража делает этот дом особенным по своему восприятию. Вместо этого вы получаете свободный доступ к природе через просторную террасу и открытый двор, где можно устроить барбекю или просто отдохнуть в тени деревьев. Озёрная Долина — идеальное сочетание современного удобства и скандинавского уюта, которое привнесёт гармонию и вдохновение в вашу повседневную жизнь.

Характеристики дома

Архитектурный стиль
Автоматизированное регулирование параметров теплоносителя
Да
Балконы/лоджии
Отсутствуют
Чердачное помещение
Нет
Датчики протечки воды
Нет
Эксплуатируемая или зеленая кровля
Нет
Электроснабжение
Индивидуальное
Газоснабжение
Индивидуальное
Изоляция воздушного шума
Нет
Камин
Нет
Класс энергоэффективности
-
Класс энергосбережения
-
Количество надземных этажей
2
Круглогодичное проживание
Да
Материал кровли
Металлочерепица
Материал перекрытий
Деревянные
Материал внешних стен
Материал внутренних перегородок
Деревянные
Модульное строительство с конструкциями заводского изготовления
Нет
Объем надземной части
150 м3
Основной материал фасадов
Дерево
Отопление
Индивидуальное
Площадь дома
145 м2
Площадь застройки
170 м2
Подвальное помещение
Нет
Показатель компактности здания
-
Приборы учета тепловой энергии
Нет
Пристроенный гараж/крытая автостоянка
Нет
Противопожарная система
Нет
Санузлы
2
Совмещенная кухня-гостиная
Да
Спальни
4
Терраса
Да
Тип фундамента
Свайный
Тип кровли
Толщина внешних стен
400 мм
Толщина внутренних перегородок
150 мм
Улучшенные шумовые характеристики
Нет
Вентиляция
Естественная
Веранда
Нет
Водоотведение
Локальные очистные сооружения
Водоснабжение
Не предусмотрено
Высота дома
7.25 м
Высота потолков
2.7 м

Планировка

Фасад дома

Александр

Закажите выезд инженера

Александр

Выездной инженер
Закажите выезд инженера для точной диагностики и профессиональной консультации по инженерным системам. Специалист приедет в удобное время, проведёт осмотр, рассчитает стоимость работ и подберёт оптимальные решения для вашего дома.


    Похожие проекты

    Ипотека и
    рассрочка
    Двухэтажный дом из газобетона «БС-173»
    Стоимость от:
    6 020 640
    Проект от: 38 700
    Этажей 2
    Санузлы 2
    Спальни 3
    Смотреть
    Ипотека и
    рассрочка
    Одноэтажный просторный Барн хаус с 4 спальнями Г-117
    Стоимость от:
    7 842 560
    Проект от: 57 600
    Этажей 1
    Санузлы 2
    Спальни 4
    Смотреть
    Ипотека и
    рассрочка
    Европа 2022
    Стоимость от:
    9 747 320
    Проект от: 56 700
    Этажей 1
    Санузлы 1
    Спальни 3
    Смотреть
    Ипотека и
    рассрочка
    Одноэтажный дом Л116
    Стоимость от:
    8 565 480
    Проект от: 51 300
    Этажей 1
    Санузлы 2
    Спальни 3
    Смотреть
    Ипотека и
    рассрочка
    Барнхаус АС-2447
    Стоимость от:
    8 249 760
    Проект от: 51 300
    Этажей 2
    Санузлы 2
    Спальни 3
    Смотреть
    Ипотека и
    рассрочка
    Одноэтажный каркасный дом «Карелия»
    Стоимость от:
    5 780 500
    Проект от: 45 000
    Этажей 1
    Санузлы 1
    Спальни 3
    Смотреть

    Как узнать стоимость дома

    back
    Оставляете заявку
    Вы заполняете форму на сайте или звоните нам. Менеджер Лайвкрафт связывается с вами для уточнения деталей: тип дома, площадь, материалы, участок строительства.
    back
    Консультация и подбор решения
    Наш специалист помогает выбрать оптимальный тип дома и конструкцию с учётом бюджета, сроков и целей — будь то дом для постоянного проживания или дача.
    back
    Расчёт предварительной стоимости
    Инженер делает первичный расчёт стоимости строительства по вашим параметрам: фундамент, коробка, кровля, отделка. Вы получаете смету с разбивкой по этапам.
    back
    Корректировка и утверждение сметы
    При необходимости вносим изменения — например, замену материалов или сокращение этапов. После согласования формируется окончательная фиксированная смета.
    back
    Заключение договора и старт работ
    После утверждения сметы заключаем официальный договор с гарантией. Вы получаете прозрачный график и точную стоимость — без скрытых расходов.

    Заказать конусльтацию по:Озерная Долина

    Фото 1 Озерная Долина


      Наши
      контакты

      Дмитров
      Опорный проезд 28Б
      (индустриальный парк Ниагара)
      9:00 до 18:00

      Корзина