4.9
Рейтинг на основании 120 отзывов
Дмитров
Опорный проезд 28Б
(индустриальный парк Ниагара)
Бренд "Дмитров-Дело" c 2008 года на рынке строительства в Дмитрове
Звоните 9:00 до 18:00 8 (915) 055-33-61
Бренд "Дмитров-Дело" c 2008 года на рынке строительства в Дмитрове

Перспективный Д1

Стоимость проекта от:
52 200 ₽
Стоимость строительства от:
7 530 720 ₽
Артикул ART-16389
Дата 26.12.2025
Архитектурный стиль Классический
Количество надземных этажей 2
Круглогодичное проживание Да
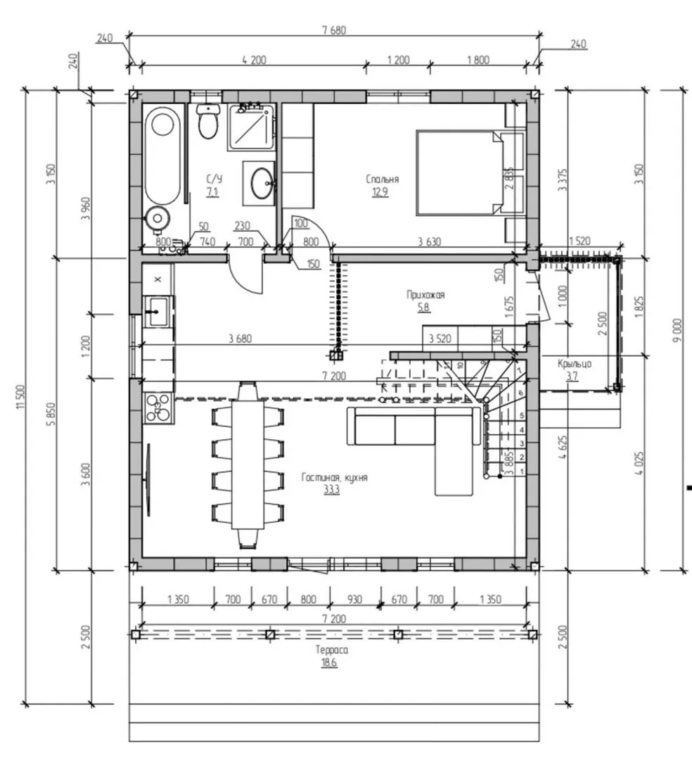
Площадь дома 116 м2
Санузлы 1
Спальни 2

Описание

Находясь прямо в сердце уютного и живописного района, этот перспективный дом серии Д1 представляет собой идеальный выбор для тех, кто ценит комфорт и гармонию в каждой детали. Созданный в строгом классическом стиле, он с лёгкостью вписывается в традиционно обустроенные улицы, придавая им нотки элегантности и уюта. Просторные внутренние помещения двух надземных этажей дарят гостям чувство лёгкости и открытости, а классическое оформление фасада подчёркивает элегантность и благородство этого дома. Среди ключевых преимуществ выделяется современная каркасно‑панельная технология, обеспечивающая отличную тепло- и звукоизоляцию, а также долговечность и малый уровень обслуживания. Двускатная крыша добавляет ему величественность, а просторная терраса становится идеальным местом для вечерних посиделок, где можно наслаждаться видом и ароматом свежего воздуха. Круглогодичное проживание возможно благодаря продуманной конструктивной схеме, что делает этот дом комфортным даже в холодное время года. В нём отсутствуют балконы, веранда и прикрепленный гараж, что подчёркивает чистую и простую линию дизайна, оставляя пространство для ваших собственных креативных идей: вы можете создать уютный внутренний двор, оформить сад или подключить внешнее парковочное пространство по вашему усмотрению. Этот дом – воплощение классической роскоши, созданной с учётом современных требований к комфорту и устойчивости. Он приглашает вас открыть для себя новый уровень жизни, где каждая деталь пронизана заботой о вашем уюте и благополучии.

Характеристики дома

Архитектурный стиль
Классический
Автоматизированное регулирование параметров теплоносителя
Да
Балконы/лоджии
Отсутствуют
Чердачное помещение
Нет
Датчики протечки воды
Нет
Эксплуатируемая или зеленая кровля
Нет
Электроснабжение
Индивидуальное
Газоснабжение
Индивидуальное
Изоляция воздушного шума
Да
Камин
Нет
Класс энергоэффективности
C
Класс энергосбережения
B+
Количество надземных этажей
2
Круглогодичное проживание
Да
Материал кровли
Металлические рулонные или листовые материалы
Материал перекрытий
Деревянные
Материал внешних стен
Каркасно-панельная технология
Материал внутренних перегородок
Деревянные
Модульное строительство с конструкциями заводского изготовления
Нет
Объем надземной части
-
Основной материал фасадов
Сайдинг
Отопление
Индивидуальное
Площадь дома
116 м2
Площадь застройки
92 м2
Подвальное помещение
Нет
Показатель компактности здания
1.59
Приборы учета тепловой энергии
Да
Пристроенный гараж/крытая автостоянка
Нет
Противопожарная система
Нет
Санузлы
1
Совмещенная кухня-гостиная
Да
Спальни
2
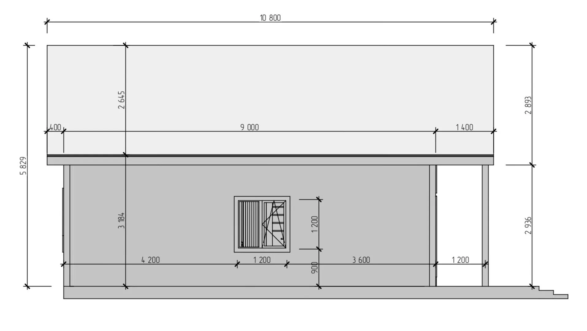
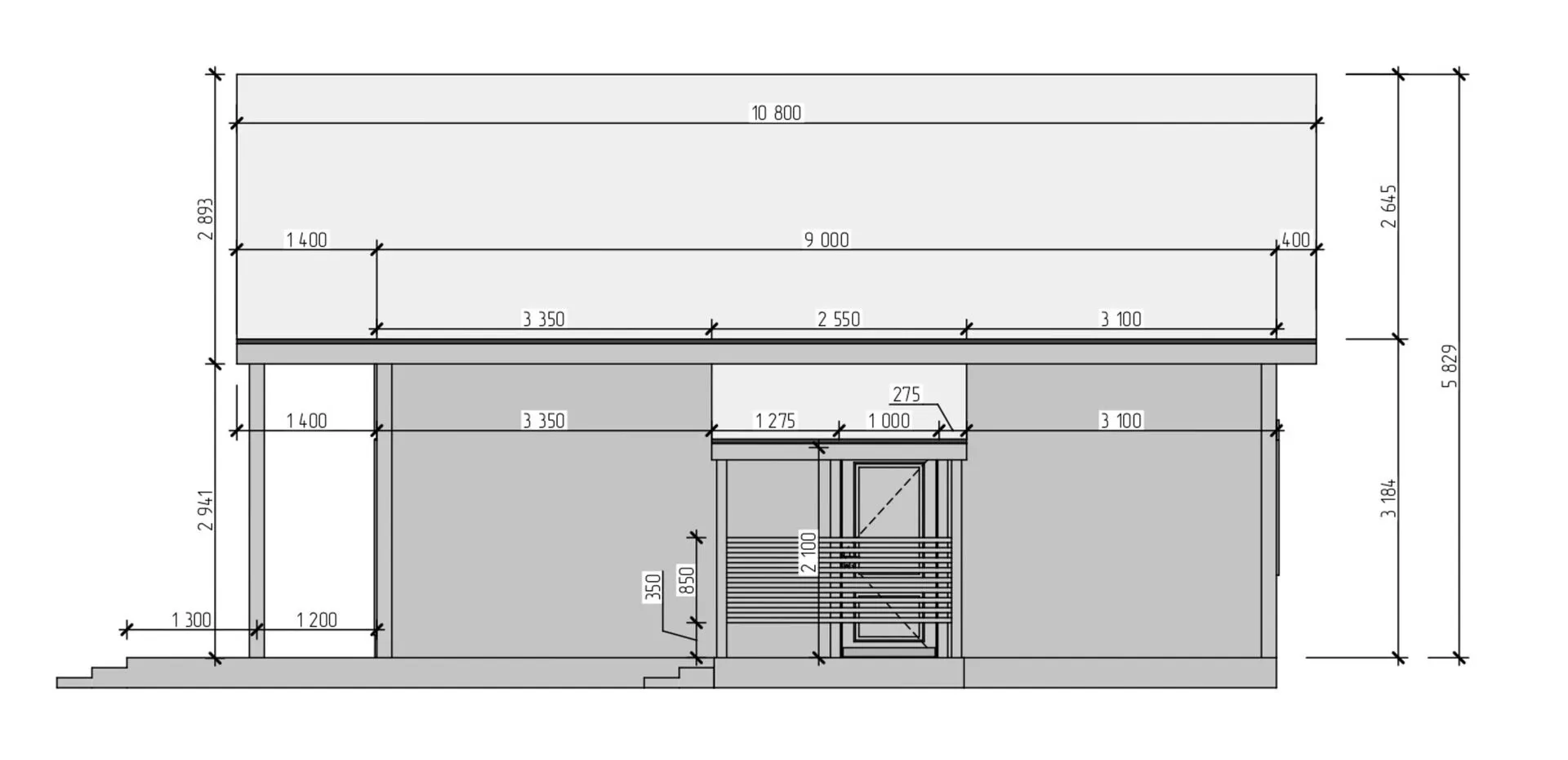
Терраса
Да
Тип фундамента
Столбчатый
Тип кровли
Двускатная
Толщина внешних стен
200 мм
Толщина внутренних перегородок
100 мм
Улучшенные шумовые характеристики
Да
Вентиляция
Принудительная
Веранда
Нет
Водоотведение
Локальные очистные сооружения
Водоснабжение
Индивидуальное
Высота дома
5.83 м
Высота потолков
2.7 м

Планировка

Фасад дома

Александр

Закажите выезд инженера

Александр

Выездной инженер
Закажите выезд инженера для точной диагностики и профессиональной консультации по инженерным системам. Специалист приедет в удобное время, проведёт осмотр, рассчитает стоимость работ и подберёт оптимальные решения для вашего дома.


    Похожие проекты

    Ипотека и
    рассрочка
    Пазелы 1960
    Стоимость от:
    10 591 020
    Проект от: 63 450
    Этажей 1
    Санузлы 2
    Спальни 3
    Смотреть
    Ипотека и
    рассрочка
    Двухэтажный деревянный бревенчатый дом «Д-360»
    Стоимость от:
    24 710 400
    Проект от: 162 000
    Этажей 2
    Санузлы 3
    Спальни 4
    Смотреть
    Ипотека и
    рассрочка
    Одноэтажный дом от компании UNIT серии Классика 146 ТК
    Стоимость от:
    12 319 780
    Проект от: 76 050
    Этажей 1
    Санузлы 3
    Спальни 4
    Смотреть
    Ипотека и
    рассрочка
    Одноэтажный дом TLS-143
    Стоимость от:
    7 273 860
    Проект от: 46 350
    Этажей 1
    Санузлы 2
    Спальни 3
    Смотреть
    Ипотека и
    рассрочка
    Barnhouse 7х13 H
    Стоимость от:
    4 170 375
    Проект от: 33 750
    Этажей 1
    Санузлы 1
    Спальни 2
    Смотреть
    Ипотека и
    рассрочка
    Загородный дом Шиль 265
    Стоимость от:
    15 242 260
    Проект от: 91 350
    Этажей 1
    Санузлы 2
    Спальни 3
    Смотреть

    Как узнать стоимость дома

    back
    Оставляете заявку
    Вы заполняете форму на сайте или звоните нам. Менеджер Лайвкрафт связывается с вами для уточнения деталей: тип дома, площадь, материалы, участок строительства.
    back
    Консультация и подбор решения
    Наш специалист помогает выбрать оптимальный тип дома и конструкцию с учётом бюджета, сроков и целей — будь то дом для постоянного проживания или дача.
    back
    Расчёт предварительной стоимости
    Инженер делает первичный расчёт стоимости строительства по вашим параметрам: фундамент, коробка, кровля, отделка. Вы получаете смету с разбивкой по этапам.
    back
    Корректировка и утверждение сметы
    При необходимости вносим изменения — например, замену материалов или сокращение этапов. После согласования формируется окончательная фиксированная смета.
    back
    Заключение договора и старт работ
    После утверждения сметы заключаем официальный договор с гарантией. Вы получаете прозрачный график и точную стоимость — без скрытых расходов.

    Заказать конусльтацию по:Перспективный Д1

    Фото 1 Перспективный Д1


      Наши
      контакты

      Дмитров
      Опорный проезд 28Б
      (индустриальный парк Ниагара)
      9:00 до 18:00