4.9
Рейтинг на основании 120 отзывов
Дмитров
Опорный проезд 28Б
(индустриальный парк Ниагара)
Бренд "Дмитров-Дело" c 2008 года на рынке строительства в Дмитрове
Звоните 9:00 до 18:00 8 (915) 055-33-61
Бренд "Дмитров-Дело" c 2008 года на рынке строительства в Дмитрове

PG-3 «De Facto»

Стоимость проекта от:
32 400 ₽
БЕСПЛАТНО! ПРИ ЗАКАЗЕ СТРОИТЕЛЬСТВА
Стоимость строительства от:
4 926 240 ₽
Артикул ART-3365
Дата 26.12.2025
Архитектурный стиль Скандинавский
Количество надземных этажей 1
Круглогодичное проживание Да
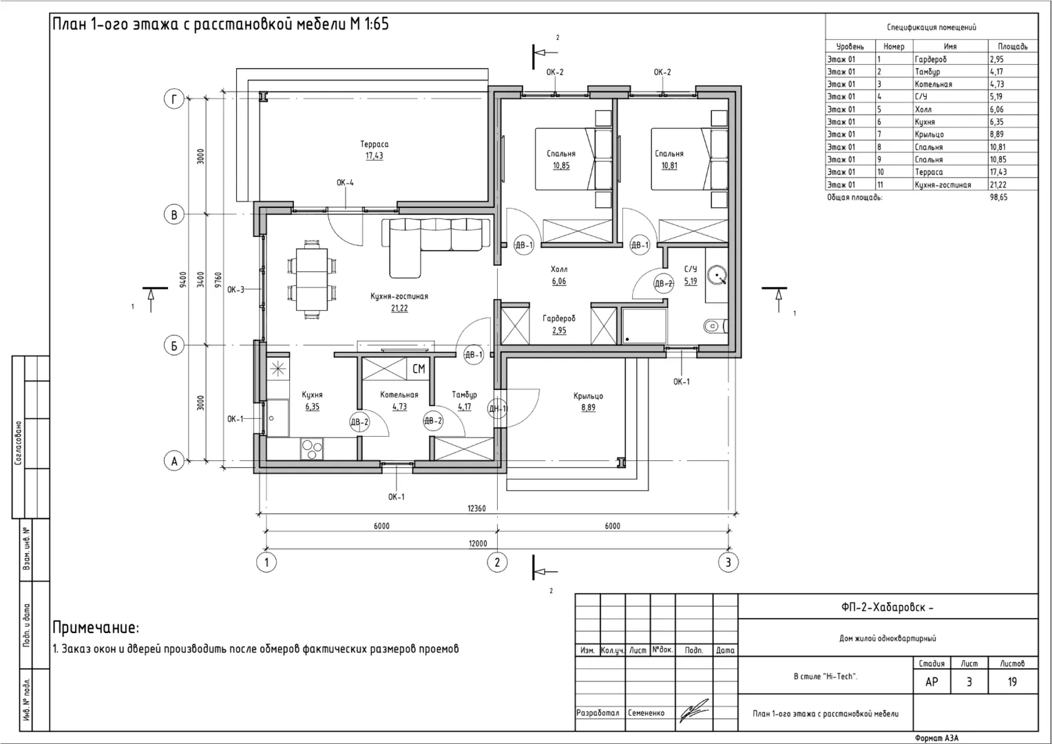
Площадь дома 72 м2
Санузлы 1
Спальни 2

Описание

Новый «De Facto» — это воплощение скандинавского минимализма в самом чистом виде. Одиннадцатый этаж – единственная планера, без лишних барьеров и вертикальных разделений, создающая ощущение простора и непрерывности. Квартира идеально подходит для тех, кто ценит комфорт круглый круг, где каждая зона, от кухни до спальни, плавно переходит в следующую, а большие открытые окна пропускают мягкое северное солнце и свежий воздух с любого угла. Изысканный внешний облик – сборный железобетон, который сочетает прочность современного строительства с лаконичной эстетикой скандинавского дизайна. Плоская кровля подчёркивает строгие линии фасада, а отсутствие традиционных балконов позволяет полностью раскрыть визуальное пространство. Вместо этого «De Facto» предлагает целую террасу, где можно проводить время на свежем воздухе, наслаждаясь спокойствием и панорамой. Ощутимая простота, но при этом высокое качество материалов и продуманная теплоизоляция делают жильё уютным и энергоэффективным. Для тех, кто живёт в городе, отсутствие пристроенного гаража не станет проблемой: в районе предусмотрены удобные крытые стоянки. Никаких подземных переходов, лабиринтов – только открытый, светлый дом, где каждый элемент продуман до мелочи. «De Facto» приглашает вас открыть новую страницу уюта и стиля, где скандинавская философия простоты встречает современную архитектуру. Добро пожаловать в ваше новое жильё, где каждый день начинается с света и спокойствия.

Характеристики дома

Архитектурный стиль
Автоматизированное регулирование параметров теплоносителя
-
Балконы/лоджии
Отсутствуют
Чердачное помещение
Нет
Датчики протечки воды
-
Эксплуатируемая или зеленая кровля
-
Электроснабжение
Индивидуальное
Газоснабжение
Индивидуальное
Изоляция воздушного шума
-
Камин
Нет
Класс энергоэффективности
-
Класс энергосбережения
-
Количество надземных этажей
1
Круглогодичное проживание
Да
Материал кровли
ПВХ мембраны
Материал перекрытий
Сборные железобетонные многопустотные плиты
Материал внешних стен
Материал внутренних перегородок
Пенобетонные
Модульное строительство с конструкциями заводского изготовления
Нет
Объем надземной части
296 м3
Основной материал фасадов
Сайдинг
Отопление
Индивидуальное
Площадь дома
72 м2
Площадь застройки
100 м2
Подвальное помещение
Нет
Показатель компактности здания
-
Приборы учета тепловой энергии
-
Пристроенный гараж/крытая автостоянка
Нет
Противопожарная система
Нет
Санузлы
1
Совмещенная кухня-гостиная
Да
Спальни
2
Терраса
Да
Тип фундамента
Плитный
Тип кровли
Толщина внешних стен
180 мм
Толщина внутренних перегородок
100 мм
Улучшенные шумовые характеристики
-
Вентиляция
Естественная
Веранда
Нет
Водоотведение
Локальные очистные сооружения
Водоснабжение
Индивидуальное
Высота дома
4.1 м
Высота потолков
2.7 м

Планировка

Фасад дома

Александр

Закажите выезд инженера

Александр

Выездной инженер
Закажите выезд инженера для точной диагностики и профессиональной консультации по инженерным системам. Специалист приедет в удобное время, проведёт осмотр, рассчитает стоимость работ и подберёт оптимальные решения для вашего дома.


    Похожие проекты

    Ипотека и
    рассрочка
    ДомPRO 108-2К-М
    Стоимость от:
    8 017 680
    Проект от: 48 150
    Этажей 2
    Санузлы 1
    Спальни 2
    Смотреть
    Ипотека и
    рассрочка
    Дом из сборного железобетона FP-8 «Optima»
    Стоимость от:
    7 115 680
    Проект от: 46 800
    Этажей 1
    Санузлы 1
    Спальни 3
    Смотреть
    Ипотека и
    рассрочка
    Дом из CLT «Сокол 100»
    Стоимость от:
    714 780
    Проект от: 51 300
    Этажей 1
    Санузлы 2
    Спальни 3
    Смотреть
    Ипотека и
    рассрочка
    Загородный дом «Земляника»
    Стоимость от:
    5 664 240
    Проект от: 36 450
    Этажей 2
    Санузлы 2
    Спальни 3
    Смотреть
    Ипотека и
    рассрочка
    Современный двухэтажный дом №212
    Стоимость от:
    13 765 680
    Проект от: 88 650
    Этажей 2
    Санузлы 3
    Спальни 5
    Смотреть
    Ипотека и
    рассрочка
    Каркасный дом «Лион»
    Стоимость от:
    5 565 120
    Проект от: 43 200
    Этажей 1
    Санузлы 1
    Спальни 3
    Смотреть

    Как узнать стоимость дома

    back
    Оставляете заявку
    Вы заполняете форму на сайте или звоните нам. Менеджер Лайвкрафт связывается с вами для уточнения деталей: тип дома, площадь, материалы, участок строительства.
    back
    Консультация и подбор решения
    Наш специалист помогает выбрать оптимальный тип дома и конструкцию с учётом бюджета, сроков и целей — будь то дом для постоянного проживания или дача.
    back
    Расчёт предварительной стоимости
    Инженер делает первичный расчёт стоимости строительства по вашим параметрам: фундамент, коробка, кровля, отделка. Вы получаете смету с разбивкой по этапам.
    back
    Корректировка и утверждение сметы
    При необходимости вносим изменения — например, замену материалов или сокращение этапов. После согласования формируется окончательная фиксированная смета.
    back
    Заключение договора и старт работ
    После утверждения сметы заключаем официальный договор с гарантией. Вы получаете прозрачный график и точную стоимость — без скрытых расходов.

    Заказать конусльтацию по:PG-3 «De Facto»

    Фото 1 PG-3 «De Facto»


      Наши
      контакты

      Дмитров
      Опорный проезд 28Б
      (индустриальный парк Ниагара)
      9:00 до 18:00

      Корзина