4.9
Рейтинг на основании 120 отзывов
Дмитров
Опорный проезд 28Б
(индустриальный парк Ниагара)
Бренд "Дмитров-Дело" c 2008 года на рынке строительства в Дмитрове
Звоните 9:00 до 18:00 8 (915) 055-33-61
Бренд "Дмитров-Дело" c 2008 года на рынке строительства в Дмитрове

PG-4 «Alfa»

Стоимость проекта от:
45 450 ₽
БЕСПЛАТНО! ПРИ ЗАКАЗЕ СТРОИТЕЛЬСТВА
Стоимость строительства от:
6 910 420 ₽
Артикул ART-3367
Дата 26.12.2025
Архитектурный стиль Скандинавский
Количество надземных этажей 1
Круглогодичное проживание Да
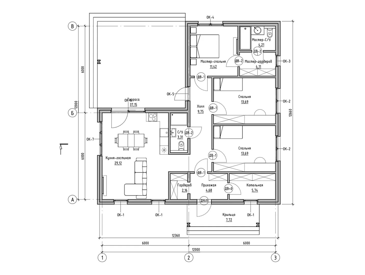
Площадь дома 101 м2
Санузлы 2
Спальни 3

Описание

Представьте себе уютный уголок, где функциональность встречает эстетику скандинавского стиля: PG‑4 «Alfa» – это элегантный одноэтажный дом, созданный для круглогодичного комфорта. Его простые, но выразительные линии придают фасаду современный и дружелюбный вид, а в каждой детали ощущается забота об уюте и практичности. Прямые горизонты крыши, выполненной из плоского покрытия, позволяют в свободное время устроить на ней солнечные панели или даже небольшой огород, а обширная терраса становится естественным продолжением внутреннего пространства, приглашая к барбекю, чтению на свежем воздухе или встречам с друзьями утром. Внутренняя площадь дома наполнена естественным светом: большие окна с классическими простыми ставнями открывают внутренний мир в объятия природы. Пригодные, но чистые формы интерьера способствуют лёгкому перемещению и делают каждый уголок удобным для проживания. Укрытая железобетонная конструкция сочетает в себе долговечность и теплоизоляцию, обеспечивая защиту от непогоды и обеспечивая комфорт в любую погоду. Дизайнерские решения в сочетании с минимализмом создают просторные комнаты, в которых легко реализовать собственные идеи оформления. «Alfa» – это идеальный выбор для тех, кто ценит гармонию простоты и практичности, для семей, ищущих уютный одноэтажный дом, или для людей, предпочитающих комфорт без лишних деталей. Этот дом словно обнимает своих хозяев простыми, но продуманными элементами, позволяя вам сосредоточиться на жизни, наслаждаться каждым моментом и создавать воспоминания в теплом, светлом уединении ваших собственных стен.

Характеристики дома

Архитектурный стиль
Автоматизированное регулирование параметров теплоносителя
-
Балконы/лоджии
Отсутствуют
Чердачное помещение
Нет
Датчики протечки воды
-
Эксплуатируемая или зеленая кровля
-
Электроснабжение
Индивидуальное
Газоснабжение
Индивидуальное
Изоляция воздушного шума
-
Камин
Нет
Класс энергоэффективности
-
Класс энергосбережения
-
Количество надземных этажей
1
Круглогодичное проживание
Да
Материал кровли
ПВХ мембраны
Материал перекрытий
Сборные железобетонные многопустотные плиты
Материал внешних стен
Материал внутренних перегородок
Пенобетонные
Модульное строительство с конструкциями заводского изготовления
Нет
Объем надземной части
414 м3
Основной материал фасадов
Сайдинг
Отопление
Индивидуальное
Площадь дома
101 м2
Площадь застройки
146 м2
Подвальное помещение
Нет
Показатель компактности здания
-
Приборы учета тепловой энергии
-
Пристроенный гараж/крытая автостоянка
Нет
Противопожарная система
Нет
Санузлы
2
Совмещенная кухня-гостиная
Да
Спальни
3
Терраса
Да
Тип фундамента
Плитный
Тип кровли
Толщина внешних стен
180 мм
Толщина внутренних перегородок
100 мм
Улучшенные шумовые характеристики
-
Вентиляция
Естественная
Веранда
Нет
Водоотведение
Локальные очистные сооружения
Водоснабжение
Индивидуальное
Высота дома
4.1 м
Высота потолков
3.2 м

Планировка

Фасад дома

Александр

Закажите выезд инженера

Александр

Выездной инженер
Закажите выезд инженера для точной диагностики и профессиональной консультации по инженерным системам. Специалист приедет в удобное время, проведёт осмотр, рассчитает стоимость работ и подберёт оптимальные решения для вашего дома.


    Похожие проекты

    Ипотека и
    рассрочка
    Двухэтажный кирпичный дом КД-2-207
    Стоимость от:
    25 695 360
    Проект от: 154 800
    Этажей 2
    Санузлы 3
    Спальни 5
    Смотреть
    Ипотека и
    рассрочка
    Байрак 1- 141
    Стоимость от:
    10 516 000
    Проект от: 63 000
    Этажей 1
    Санузлы 2
    Спальни 3
    Смотреть
    Ипотека и
    рассрочка
    Двухэтажное шале №236
    Стоимость от:
    13 269 600
    Проект от: 85 500
    Этажей 2
    Санузлы 3
    Спальни 5
    Смотреть
    Ипотека и
    рассрочка
    Дом в Княжево 96
    Стоимость от:
    4 740 010
    Проект от: 36 900
    Этажей 1
    Санузлы 1
    Спальни 3
    Смотреть
    Ипотека и
    рассрочка
    Загородный дом ДГ-4
    Стоимость от:
    8 753 800
    Проект от: 49 500
    Этажей 1
    Санузлы 2
    Спальни 3
    Смотреть
    Ипотека и
    рассрочка
    Загородный дом «Расим»
    Стоимость от:
    4 901 600
    Проект от: 36 000
    Этажей 1
    Санузлы 1
    Спальни 3
    Смотреть

    Как узнать стоимость дома

    back
    Оставляете заявку
    Вы заполняете форму на сайте или звоните нам. Менеджер Лайвкрафт связывается с вами для уточнения деталей: тип дома, площадь, материалы, участок строительства.
    back
    Консультация и подбор решения
    Наш специалист помогает выбрать оптимальный тип дома и конструкцию с учётом бюджета, сроков и целей — будь то дом для постоянного проживания или дача.
    back
    Расчёт предварительной стоимости
    Инженер делает первичный расчёт стоимости строительства по вашим параметрам: фундамент, коробка, кровля, отделка. Вы получаете смету с разбивкой по этапам.
    back
    Корректировка и утверждение сметы
    При необходимости вносим изменения — например, замену материалов или сокращение этапов. После согласования формируется окончательная фиксированная смета.
    back
    Заключение договора и старт работ
    После утверждения сметы заключаем официальный договор с гарантией. Вы получаете прозрачный график и точную стоимость — без скрытых расходов.

    Заказать конусльтацию по:PG-4 «Alfa»

    Фото 1 PG-4 «Alfa»


      Наши
      контакты

      Дмитров
      Опорный проезд 28Б
      (индустриальный парк Ниагара)
      9:00 до 18:00

      Корзина