4.9
Рейтинг на основании 120 отзывов
Дмитров
Опорный проезд 28Б
(индустриальный парк Ниагара)
Бренд "Дмитров-Дело" c 2008 года на рынке строительства в Дмитрове
Звоните 9:00 до 18:00 8 (915) 055-33-61
Бренд "Дмитров-Дело" c 2008 года на рынке строительства в Дмитрове

Притяжение 141

Стоимость проекта от:
63 000 ₽
БЕСПЛАТНО! ПРИ ЗАКАЗЕ СТРОИТЕЛЬСТВА
Стоимость строительства от:
8 391 600 ₽
Артикул ART-19975
Дата 26.12.2025
Архитектурный стиль Классический
Количество надземных этажей 2
Круглогодичное проживание Да
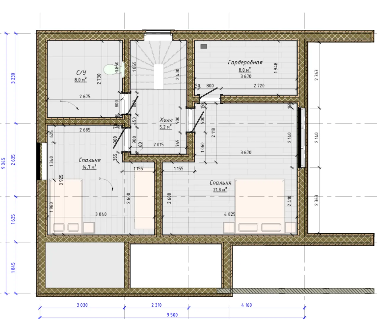
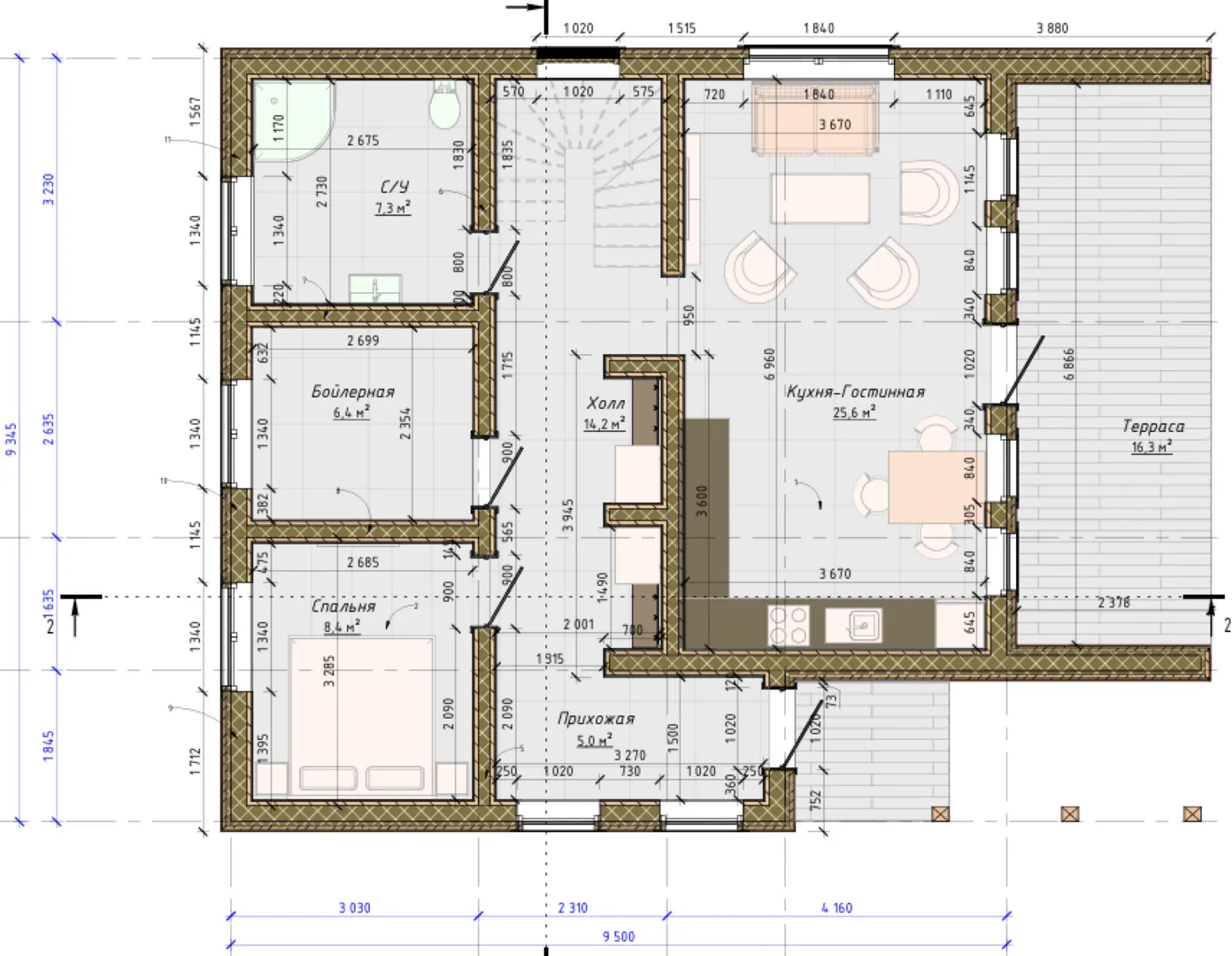
Площадь дома 140 м2
Санузлы 2
Спальни 3

Описание

Идёт ли у вас в голове образ уюта, где каждое утро начинается с пробуждения под золотистый свет солнца и запахов свежего хлеба, а вечер завершается теплом семейного огня? Дом с номером 141 — ваш ответ. В его двух элегантных подъёмах, выполненных в классическом стиле, чувствуете гармонию традиций и современности. Огромная деревянная рамка стен, нежно окрашенная в приглушенные тона, обволакивает интерьер естественным теплом и мягким светом. Крыша, с её характерной двускатной форме, не только защищает от непогоды, но и придаёт дому неповторимый, почти сказочный вид. Без балконов и веранд, но с прекрасным открытым пространством — террасой, где можно насладиться ароматом цветов и ароматом свежего воздуха. Именно здесь, под шелест ветвей и легкий ветер, вы сможете устраивать семейные пикники, читать книгу у камина или просто смотреть на рассветы и закаты. В нём нет лишних препятствий: просторная парковка и просторная автостоянка находятся в другой части комплекса, что позволяет легко адаптировать планировку под ваше собственное видение. В сочетании с материалами высокого качества и продуманной инженерной схемой, это место создаёт идеальную крепость для любой семьи, которая ищет не просто жильё, а дом, где каждый день ощущается как праздник.

Характеристики дома

Архитектурный стиль
Автоматизированное регулирование параметров теплоносителя
Нет
Балконы/лоджии
Отсутствуют
Чердачное помещение
Нет
Датчики протечки воды
Нет
Эксплуатируемая или зеленая кровля
Нет
Электроснабжение
Не предусмотрено
Газоснабжение
Не предусмотрено
Изоляция воздушного шума
Нет
Камин
Нет
Класс энергоэффективности
-
Класс энергосбережения
-
Количество надземных этажей
2
Круглогодичное проживание
Да
Материал кровли
Металлочерепица
Материал перекрытий
Деревянные
Материал внешних стен
Материал внутренних перегородок
Деревянные
Модульное строительство с конструкциями заводского изготовления
Нет
Объем надземной части
845 м3
Основной материал фасадов
Планкен
Отопление
Не предусмотрено
Площадь дома
140 м2
Площадь застройки
91 м2
Подвальное помещение
Нет
Показатель компактности здания
-
Приборы учета тепловой энергии
Нет
Пристроенный гараж/крытая автостоянка
Нет
Противопожарная система
Нет
Санузлы
2
Совмещенная кухня-гостиная
Да
Спальни
3
Терраса
Да
Тип фундамента
Свайный
Тип кровли
Толщина внешних стен
300 мм
Толщина внутренних перегородок
150 мм
Улучшенные шумовые характеристики
Нет
Вентиляция
Естественная
Веранда
Нет
Водоотведение
Не предусмотрено
Водоснабжение
Не предусмотрено
Высота дома
6.93 м
Высота потолков
2.79 м

Планировка

Фасад дома

Александр

Закажите выезд инженера

Александр

Выездной инженер
Закажите выезд инженера для точной диагностики и профессиональной консультации по инженерным системам. Специалист приедет в удобное время, проведёт осмотр, рассчитает стоимость работ и подберёт оптимальные решения для вашего дома.


    Похожие проекты

    Ипотека и
    рассрочка
    Двухэтажный дом линейки «Эстетика» 2-175
    Стоимость от:
    462 000
    Проект от: 78 750
    Этажей 2
    Санузлы 2
    Спальни 3
    Смотреть
    Ипотека и
    рассрочка
    Мадрид
    Стоимость от:
    8 869 410
    Проект от: 68 850
    Этажей 1
    Санузлы 2
    Спальни 1
    Смотреть
    Ипотека и
    рассрочка
    Загородный дом с гаражом 10,6х15,75
    Стоимость от:
    8 579 560
    Проект от: 66 600
    Этажей 1
    Санузлы 1
    Спальни 3
    Смотреть
    Ипотека и
    рассрочка
    LAGOM
    Стоимость от:
    6 338 970
    Проект от: 51 300
    Этажей 1
    Санузлы 1
    Спальни 3
    Смотреть
    Ипотека и
    рассрочка
    «Майоров»
    Стоимость от:
    7 541 100
    Проект от: 56 700
    Этажей 2
    Санузлы 2
    Спальни 4
    Смотреть
    Ипотека и
    рассрочка
    Загородный дом «БарнХаус 2А»
    Стоимость от:
    7 975 110
    Проект от: 64 350
    Этажей 1
    Санузлы 2
    Спальни 3
    Смотреть

    Как узнать стоимость дома

    back
    Оставляете заявку
    Вы заполняете форму на сайте или звоните нам. Менеджер Лайвкрафт связывается с вами для уточнения деталей: тип дома, площадь, материалы, участок строительства.
    back
    Консультация и подбор решения
    Наш специалист помогает выбрать оптимальный тип дома и конструкцию с учётом бюджета, сроков и целей — будь то дом для постоянного проживания или дача.
    back
    Расчёт предварительной стоимости
    Инженер делает первичный расчёт стоимости строительства по вашим параметрам: фундамент, коробка, кровля, отделка. Вы получаете смету с разбивкой по этапам.
    back
    Корректировка и утверждение сметы
    При необходимости вносим изменения — например, замену материалов или сокращение этапов. После согласования формируется окончательная фиксированная смета.
    back
    Заключение договора и старт работ
    После утверждения сметы заключаем официальный договор с гарантией. Вы получаете прозрачный график и точную стоимость — без скрытых расходов.

    Заказать конусльтацию по:Притяжение 141

    Фото 1 Притяжение 141


      Наши
      контакты

      Дмитров
      Опорный проезд 28Б
      (индустриальный парк Ниагара)
      9:00 до 18:00

      Корзина