4.9
Рейтинг на основании 120 отзывов
Дмитров
Опорный проезд 28Б
(индустриальный парк Ниагара)
Бренд "Дмитров-Дело" c 2008 года на рынке строительства в Дмитрове
Звоните 9:00 до 18:00 8 (915) 055-33-61
Бренд "Дмитров-Дело" c 2008 года на рынке строительства в Дмитрове

Проект 03-24

Стоимость проекта от:
90 900 ₽
БЕСПЛАТНО! ПРИ ЗАКАЗЕ СТРОИТЕЛЬСТВА
Стоимость строительства от:
13 865 280 ₽
Артикул ART-19053
Дата 26.12.2025
Архитектурный стиль Минимализм
Количество надземных этажей 2
Круглогодичное проживание Да
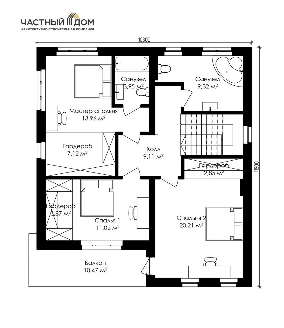
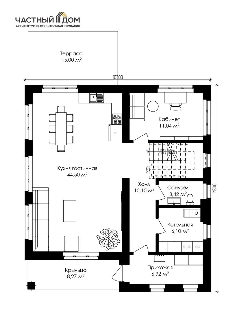
Площадь дома 202 м2
Санузлы 3
Спальни 3

Описание

Насладитесь гармонией простоты и современности в доме проекта 03‑24 — настоящем оазисе минимализма, где каждая деталь задумывалась с любовью к комфорту. Два надземных этажа предоставляют просторное пространство с открытой планировкой, позволяя легко разделить зоны для быта и отдыха, при этом сохраняется ощущение воздушности. Тёплые кирпичные стены придают дому прочности и естественного шика, а плоская крыша открывает возможности для размещения солнечных панелей или небольшого огорода на крыше, даря энергоэффективность и зеленый уголок в сердцевине вашего дома. Круглогодичное проживание – наш приоритет. Спроектированные теплоизоляцией и современными системами отопления и вентиляции, помещения остаются комфортными во все сезоны, а свет в квартире проходит через изящные окна в одну из лофтов, создавая атмосферу света и уюта. На первом этаже – открытый балкон и живописная терраса, где можно наслаждаться восходами и закатами, устраивать вечерние посиделки с друзьями или просто отдыхать в тени летнего сада. Отсутствие приюстного гаража и чердака говорит о рациональном пространстве – всё, что нужно, находится под вашим контролем, и даже уличная автомобильная стоянка будет максимально удобно устроена благодаря продуманному плану территории. Этот дом сочетает в себе простоту архитектурного выражения с функциональной практичностью, предлагая идеальное решение для тех, кто ценит эстетику, комфорт и экологичность. Если вы ищете тихий уголок для жизни с легкостью интеграции в современный городской ритм, проект 03‑24 станет вашим надежным партнером в создании настоящего домашнего уюта.

Характеристики дома

Архитектурный стиль
Автоматизированное регулирование параметров теплоносителя
Нет
Балконы/лоджии
1
Чердачное помещение
Нет
Датчики протечки воды
Нет
Эксплуатируемая или зеленая кровля
Нет
Электроснабжение
2 варианта
Газоснабжение
2 варианта
Изоляция воздушного шума
Нет
Камин
Нет
Класс энергоэффективности
-
Класс энергосбережения
-
Количество надземных этажей
2
Круглогодичное проживание
Да
Материал кровли
Рулонные битумно-полимерные покрытия
Материал перекрытий
Сборные железобетонные
Материал внешних стен
Материал внутренних перегородок
Кирпичные
Модульное строительство с конструкциями заводского изготовления
Нет
Объем надземной части
-
Основной материал фасадов
Штукатурка
Отопление
2 варианта
Площадь дома
202 м2
Площадь застройки
127 м2
Подвальное помещение
Нет
Показатель компактности здания
-
Приборы учета тепловой энергии
Нет
Пристроенный гараж/крытая автостоянка
Нет
Противопожарная система
Нет
Санузлы
3
Совмещенная кухня-гостиная
Да
Спальни
3
Терраса
Да
Тип фундамента
Плитный
Тип кровли
Толщина внешних стен
250 мм
Толщина внутренних перегородок
120 мм
Улучшенные шумовые характеристики
Нет
Вентиляция
Естественная
Веранда
Нет
Водоотведение
2 варианта
Водоснабжение
2 варианта
Высота дома
7.2 м
Высота потолков
3 м

Планировка

Фасад дома

Александр

Закажите выезд инженера

Александр

Выездной инженер
Закажите выезд инженера для точной диагностики и профессиональной консультации по инженерным системам. Специалист приедет в удобное время, проведёт осмотр, рассчитает стоимость работ и подберёт оптимальные решения для вашего дома.


    Похожие проекты

    Ипотека и
    рассрочка
    Каркасный дом Барн 12
    Стоимость от:
    4 907 760
    Проект от: 39 600
    Этажей 1
    Санузлы 1
    Спальни 2
    Смотреть
    Ипотека и
    рассрочка
    Каркасный дом по проекту «Блэнвиль»
    Стоимость от:
    8 271 720
    Проект от: 62 100
    Этажей 2
    Санузлы 2
    Спальни 4
    Смотреть
    Ипотека и
    рассрочка
    Одноэтажный дом «Тулуза» 100м2
    Стоимость от:
    6 636 740
    Проект от: 43 650
    Этажей 1
    Санузлы 3
    Спальни 3
    Смотреть
    Ипотека и
    рассрочка
    Одноэтажный жилой дом «Сириус»
    Стоимость от:
    6 567 660
    Проект от: 41 850
    Этажей 1
    Санузлы 2
    Спальни 3
    Смотреть
    Ипотека и
    рассрочка
    Дом из клееного бруса «Сварог»
    Стоимость от:
    8 516 530
    Проект от: 62 550
    Этажей 1
    Санузлы 2
    Спальни 3
    Смотреть
    Ипотека и
    рассрочка
    Одноэтажный дом «Эйгер-2»
    Стоимость от:
    6 239 860
    Проект от: 37 350
    Этажей 1
    Санузлы 1
    Спальни 1
    Смотреть

    Как узнать стоимость дома

    back
    Оставляете заявку
    Вы заполняете форму на сайте или звоните нам. Менеджер Лайвкрафт связывается с вами для уточнения деталей: тип дома, площадь, материалы, участок строительства.
    back
    Консультация и подбор решения
    Наш специалист помогает выбрать оптимальный тип дома и конструкцию с учётом бюджета, сроков и целей — будь то дом для постоянного проживания или дача.
    back
    Расчёт предварительной стоимости
    Инженер делает первичный расчёт стоимости строительства по вашим параметрам: фундамент, коробка, кровля, отделка. Вы получаете смету с разбивкой по этапам.
    back
    Корректировка и утверждение сметы
    При необходимости вносим изменения — например, замену материалов или сокращение этапов. После согласования формируется окончательная фиксированная смета.
    back
    Заключение договора и старт работ
    После утверждения сметы заключаем официальный договор с гарантией. Вы получаете прозрачный график и точную стоимость — без скрытых расходов.

    Заказать конусльтацию по:Проект 03-24

    Фото 1 Проект 03-24


      Наши
      контакты

      Дмитров
      Опорный проезд 28Б
      (индустриальный парк Ниагара)
      9:00 до 18:00

      Корзина