4.9
Рейтинг на основании 120 отзывов
Дмитров
Опорный проезд 28Б
(индустриальный парк Ниагара)
Бренд "Дмитров-Дело" c 2008 года на рынке строительства в Дмитрове
Звоните 9:00 до 18:00 8 (915) 055-33-61
Бренд "Дмитров-Дело" c 2008 года на рынке строительства в Дмитрове

Проект 12

Стоимость проекта от:
88 650 ₽
Стоимость строительства от:
13 765 680 ₽
Артикул ART-16189
Дата 25.12.2025
Архитектурный стиль Классический
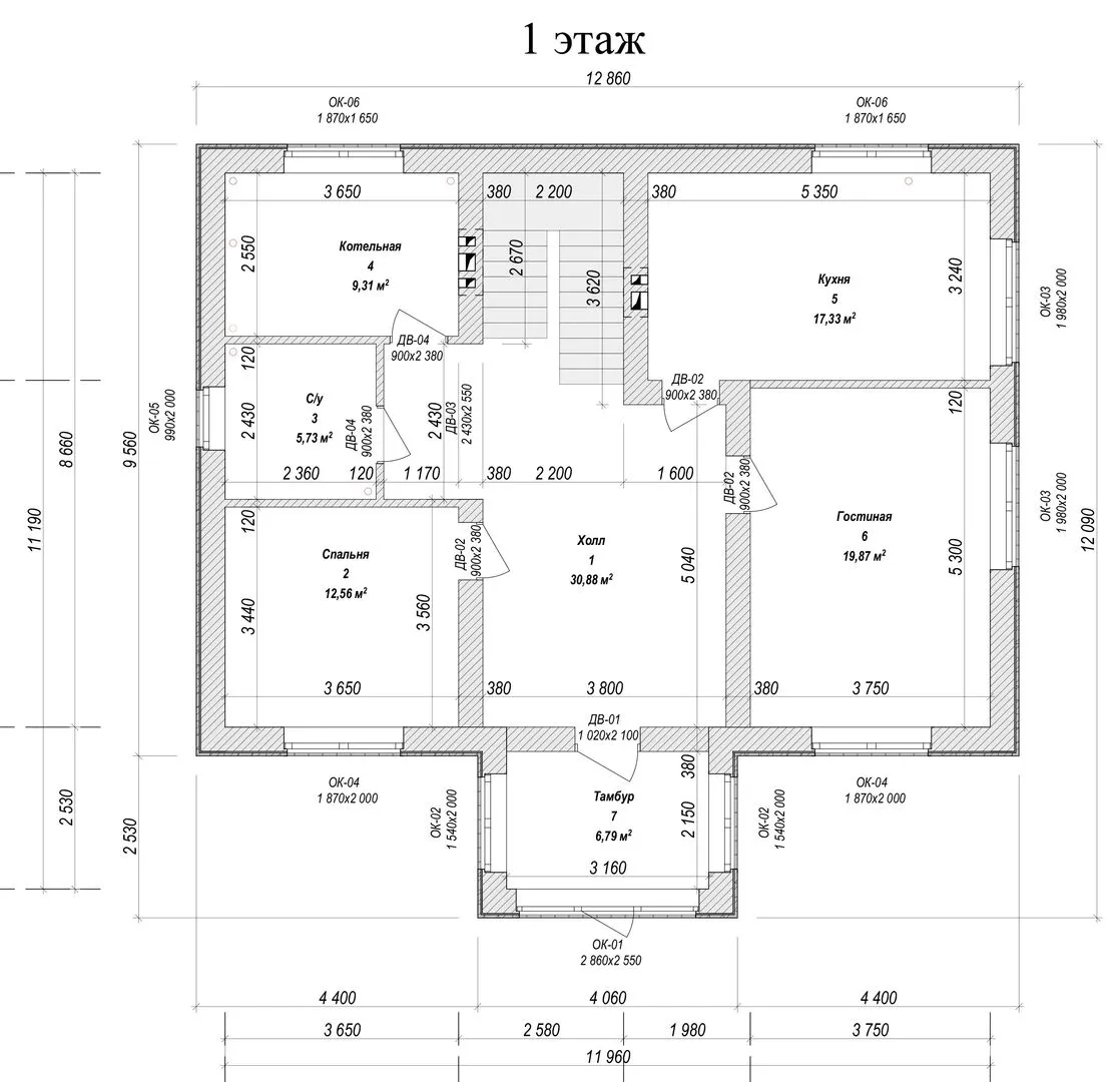
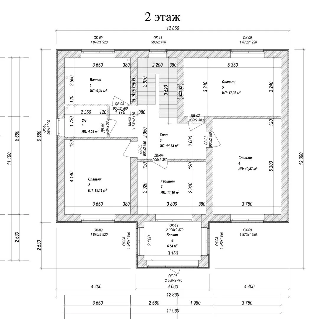
Количество надземных этажей 2
Круглогодичное проживание Да
Площадь дома 197 м2
Санузлы 2
Спальни 4

Описание

**Вдохновляющий уголок в стиле классики** Знакомьтесь – дом, созданный не просто для жизни, а для отдыха души и тела. Приходит к вам в два надземных этажа, где каждый уголок излучает гармонию и уважение к времени. Керамический блок, обрамляющий стены, дарит неповторимую теплоизоляцию и мягкое, приятное ощущение стен. Широкие окна пропускают свет, создавая ощущение пространства, а четырёхскатная (вальмовая) крыша позволяет воздуху свободно циркулировать, делая любой уголок идеальным для круглогодичного комфорта. **Современность в традиционном контексте** Небольшая лоджия – настоящий личный оазис, где можно насладиться чашкой кофе, обрамленным видом парка или сада. Нет излишних структур – здесь нет прицепных гаражей, веранд и чердаков, которые только усложняют уход. Всё, что нужно, уже есть: тепло, свет, уют, а каждая деталь проработана с учётом практичности и эстетики. Внутреннее пространство удобно разделено, а классический фасад привлекает взгляды прохожих, подчёркивая статус вашего дома. **Дом, который любит жить с вами** Выбирая этот проект, вы выбираете спокойствие и элегантность, но при этом не теряете современные удобства. Он подходит для семей, пары или для тех, кто ценит простоту и безмятежность. Приходите и убедитесь, что классика может жить в ритме современной жизни, создавая гармонию, которую хочется ощущать каждый день. 🌿✨

Характеристики дома

Архитектурный стиль
Классический
Автоматизированное регулирование параметров теплоносителя
Нет
Балконы/лоджии
1
Чердачное помещение
Нет
Датчики протечки воды
Нет
Эксплуатируемая или зеленая кровля
Нет
Электроснабжение
Не предусмотрено
Газоснабжение
Не предусмотрено
Изоляция воздушного шума
Нет
Камин
Нет
Класс энергоэффективности
-
Класс энергосбережения
-
Количество надземных этажей
2
Круглогодичное проживание
Да
Материал кровли
Металлочерепица
Материал перекрытий
Монолитные железобетонные
Материал внешних стен
Керамический блок
Материал внутренних перегородок
Блочные
Модульное строительство с конструкциями заводского изготовления
Нет
Объем надземной части
1066 м3
Основной материал фасадов
Облицовочный кирпич
Отопление
Не предусмотрено
Площадь дома
197 м2
Площадь застройки
133 м2
Подвальное помещение
Нет
Показатель компактности здания
-
Приборы учета тепловой энергии
Нет
Пристроенный гараж/крытая автостоянка
Нет
Противопожарная система
Нет
Санузлы
2
Совмещенная кухня-гостиная
Нет
Спальни
4
Терраса
Нет
Тип фундамента
Плитный
Тип кровли
Четырехскатная (вальмовая)
Толщина внешних стен
380 мм
Толщина внутренних перегородок
120 мм
Улучшенные шумовые характеристики
Нет
Вентиляция
Естественная
Веранда
Нет
Водоотведение
Не предусмотрено
Водоснабжение
Не предусмотрено
Высота дома
9.18 м
Высота потолков
3 м

Планировка

Фасад дома

Александр

Закажите выезд инженера

Александр

Выездной инженер
Закажите выезд инженера для точной диагностики и профессиональной консультации по инженерным системам. Специалист приедет в удобное время, проведёт осмотр, рассчитает стоимость работ и подберёт оптимальные решения для вашего дома.


    Похожие проекты

    Ипотека и
    рассрочка
    Загородный дом. Серия «Вирилит» 1-82
    Стоимость от:
    6 164 840
    Проект от: 36 900
    Этажей 1
    Санузлы 1
    Спальни 3
    Смотреть
    Ипотека и
    рассрочка
    Comfort К152
    Стоимость от:
    7 006 230
    Проект от: 56 700
    Этажей 1
    Санузлы 2
    Спальни 3
    Смотреть
    Ипотека и
    рассрочка
    Каркасный дом 50,1 кв.м
    Стоимость от:
    2 898 500
    Проект от: 22 500
    Этажей 1
    Санузлы 1
    Спальни 2
    Смотреть
    Ипотека и
    рассрочка
    ЦМС Анси
    Стоимость от:
    3 999 930
    Проект от: 31 050
    Этажей 1
    Санузлы 1
    Спальни 3
    Смотреть
    Ипотека и
    рассрочка
    S 2-125
    Стоимость от:
    8 972 160
    Проект от: 55 800
    Этажей 2
    Санузлы 2
    Спальни 4
    Смотреть
    Ипотека и
    рассрочка
    Хельсинки
    Стоимость от:
    4 941 640
    Проект от: 27 900
    Этажей 1
    Санузлы 1
    Спальни 2
    Смотреть

    Как узнать стоимость дома

    back
    Оставляете заявку
    Вы заполняете форму на сайте или звоните нам. Менеджер Лайвкрафт связывается с вами для уточнения деталей: тип дома, площадь, материалы, участок строительства.
    back
    Консультация и подбор решения
    Наш специалист помогает выбрать оптимальный тип дома и конструкцию с учётом бюджета, сроков и целей — будь то дом для постоянного проживания или дача.
    back
    Расчёт предварительной стоимости
    Инженер делает первичный расчёт стоимости строительства по вашим параметрам: фундамент, коробка, кровля, отделка. Вы получаете смету с разбивкой по этапам.
    back
    Корректировка и утверждение сметы
    При необходимости вносим изменения — например, замену материалов или сокращение этапов. После согласования формируется окончательная фиксированная смета.
    back
    Заключение договора и старт работ
    После утверждения сметы заключаем официальный договор с гарантией. Вы получаете прозрачный график и точную стоимость — без скрытых расходов.

    Заказать конусльтацию по:Проект 12

    Фото 1 Проект 12


      Наши
      контакты

      Дмитров
      Опорный проезд 28Б
      (индустриальный парк Ниагара)
      9:00 до 18:00