4.9
Рейтинг на основании 120 отзывов
Дмитров
Опорный проезд 28Б
(индустриальный парк Ниагара)
Бренд "Дмитров-Дело" c 2008 года на рынке строительства в Дмитрове
Звоните 9:00 до 18:00 8 (915) 055-33-61
Бренд "Дмитров-Дело" c 2008 года на рынке строительства в Дмитрове

Проект 1а

Стоимость проекта от:
67 500 ₽
БЕСПЛАТНО! ПРИ ЗАКАЗЕ СТРОИТЕЛЬСТВА
Стоимость строительства от:
10 850 400 ₽
Артикул ART-11681
Дата 25.12.2025
Архитектурный стиль Классический
Количество надземных этажей 2
Круглогодичное проживание Да
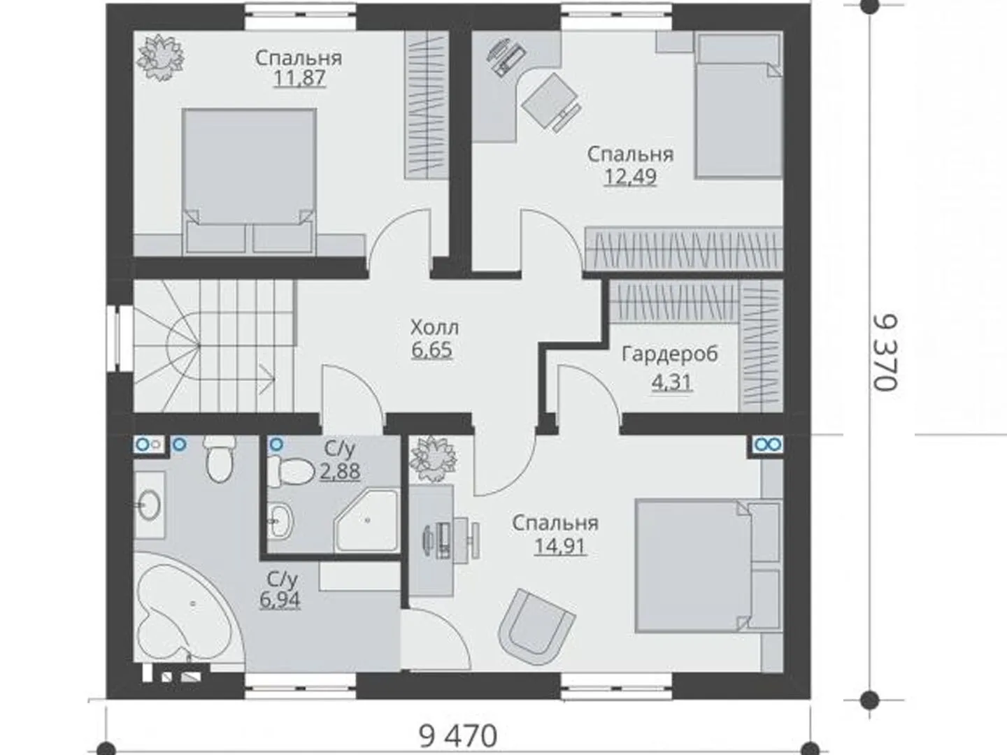
Площадь дома 150 м2
Санузлы 3
Спальни 4

Описание

Станьте владельцем дома, который станет настоящим уголком уюта и гармонии. Внешняя оболочка, выполненная из газобетонных блоков, сочетает в себе современную теплоизоляцию и элегантную классическую форму, придавая фасаду строгий, но одновременно благородный вид. Двускатная крыша, устойчивая к ветреной погоде и снеговым нагрузкам, подчёркивает традиционный дух архитектуры, внося нотки старины в современные быт. Два надземных этажа спроектированы так, чтобы жизнь здесь была комфортной круглый год. Неизменное ощущение стабильности и защищённости дарит классический стиль интерьеров, аккуратно выдержанных под каждую функцию комнаты. Удобная веранда отсутствует, но обширная терраса, открытая навстречу яркому солнечному дню, приглашает на вечерние посиделки и семейные пикники. Отсутствие гаража и чердачных помещений не помешает вам почувствовать лёгкость и простоту. Дом без лишних наворотов, где каждая деталь продумана до совершенства, позволяет сосредоточиться на мгновениях, которые действительно важны – семейной гармонии, теплых вечёрах на открытой площадке, и наслаждении простыми радостями повседневной жизни. Это ваш новый дом – пространство для настоящих воспоминаний.

Характеристики дома

Архитектурный стиль
Автоматизированное регулирование параметров теплоносителя
Нет
Балконы/лоджии
Отсутствуют
Чердачное помещение
Нет
Датчики протечки воды
Да
Эксплуатируемая или зеленая кровля
Нет
Электроснабжение
Индивидуальное
Газоснабжение
Индивидуальное
Изоляция воздушного шума
Да
Камин
Нет
Класс энергоэффективности
-
Класс энергосбережения
-
Количество надземных этажей
2
Круглогодичное проживание
Да
Материал кровли
Металлочерепица
Материал перекрытий
Монолитные железобетонные
Материал внешних стен
Материал внутренних перегородок
Пенобетонные
Модульное строительство с конструкциями заводского изготовления
Нет
Объем надземной части
450 м3
Основной материал фасадов
Штукатурка
Отопление
Индивидуальное
Площадь дома
150 м2
Площадь застройки
129 м2
Подвальное помещение
Нет
Показатель компактности здания
-
Приборы учета тепловой энергии
Нет
Пристроенный гараж/крытая автостоянка
Нет
Противопожарная система
Да
Санузлы
3
Совмещенная кухня-гостиная
Нет
Спальни
4
Терраса
Да
Тип фундамента
Свайно-ростверковый
Тип кровли
Толщина внешних стен
375 мм
Толщина внутренних перегородок
200 мм
Улучшенные шумовые характеристики
Да
Вентиляция
Естественная
Веранда
Нет
Водоотведение
Локальные очистные сооружения
Водоснабжение
Индивидуальное
Высота дома
9.1 м
Высота потолков
3 м

Планировка

Фасад дома

Александр

Закажите выезд инженера

Александр

Выездной инженер
Закажите выезд инженера для точной диагностики и профессиональной консультации по инженерным системам. Специалист приедет в удобное время, проведёт осмотр, рассчитает стоимость работ и подберёт оптимальные решения для вашего дома.


    Похожие проекты

    Ипотека и
    рассрочка
    Двухэтажный кирпичный дом КД-2-207
    Стоимость от:
    25 695 360
    Проект от: 154 800
    Этажей 2
    Санузлы 3
    Спальни 5
    Смотреть
    Ипотека и
    рассрочка
    Дом с мансардным этажом «Лефрой»
    Стоимость от:
    6 984 000
    Проект от: 45 000
    Этажей 2
    Санузлы 2
    Спальни 3
    Смотреть
    Ипотека и
    рассрочка
    Шале с мансардой Ольха 98
    Стоимость от:
    7 405 440
    Проект от: 52 200
    Этажей 2
    Санузлы 1
    Спальни 3
    Смотреть
    Ипотека и
    рассрочка
    River Hall 115
    Стоимость от:
    8 192 400
    Проект от: 51 750
    Этажей 2
    Санузлы 2
    Спальни 5
    Смотреть
    Ипотека и
    рассрочка
    «Нева (К-1-75)»
    Стоимость от:
    4 238 520
    Проект от: 34 200
    Этажей 1
    Санузлы 2
    Спальни 2
    Смотреть
    Ипотека и
    рассрочка
    Одноэтажный дом СР-130
    Стоимость от:
    8 594 960
    Проект от: 48 600
    Этажей 1
    Санузлы 2
    Спальни 3
    Смотреть

    Как узнать стоимость дома

    back
    Оставляете заявку
    Вы заполняете форму на сайте или звоните нам. Менеджер Лайвкрафт связывается с вами для уточнения деталей: тип дома, площадь, материалы, участок строительства.
    back
    Консультация и подбор решения
    Наш специалист помогает выбрать оптимальный тип дома и конструкцию с учётом бюджета, сроков и целей — будь то дом для постоянного проживания или дача.
    back
    Расчёт предварительной стоимости
    Инженер делает первичный расчёт стоимости строительства по вашим параметрам: фундамент, коробка, кровля, отделка. Вы получаете смету с разбивкой по этапам.
    back
    Корректировка и утверждение сметы
    При необходимости вносим изменения — например, замену материалов или сокращение этапов. После согласования формируется окончательная фиксированная смета.
    back
    Заключение договора и старт работ
    После утверждения сметы заключаем официальный договор с гарантией. Вы получаете прозрачный график и точную стоимость — без скрытых расходов.

    Заказать конусльтацию по:Проект 1а

    Фото 1 Проект 1а


      Наши
      контакты

      Дмитров
      Опорный проезд 28Б
      (индустриальный парк Ниагара)
      9:00 до 18:00

      Корзина