4.9
Рейтинг на основании 120 отзывов
Дмитров
Опорный проезд 28Б
(индустриальный парк Ниагара)
Бренд "Дмитров-Дело" c 2008 года на рынке строительства в Дмитрове
Звоните 9:00 до 18:00 8 (915) 055-33-61
Бренд "Дмитров-Дело" c 2008 года на рынке строительства в Дмитрове

Проект 8

Стоимость проекта от:
98 100 ₽
Стоимость строительства от:
15 395 160 ₽
Артикул ART-14548
Дата 25.12.2025
Архитектурный стиль Классический
Количество надземных этажей 1
Круглогодичное проживание Да
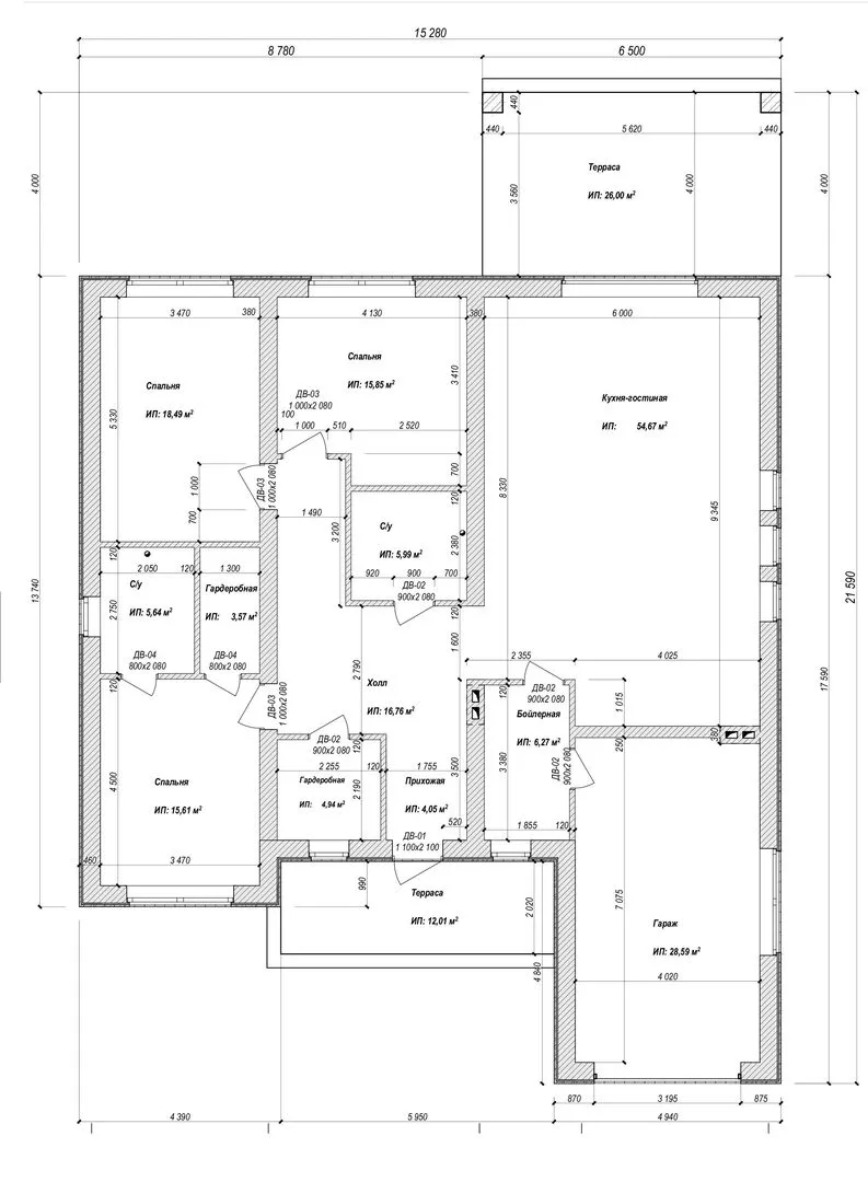
Площадь дома 218 м2
Санузлы 2
Спальни 3

Описание

**Проект 8 – Ваше уютное убежище в классической гармонии** В этот год придумываете дом, где каждая деталь пропитана изяществом прошлых эпох и современным комфортом? Одиннадцатый корпус – это непоколебимая структура из керамического блока, придающая фасаду чистоту, прочность и тепло. Четырёхскатная (вальмовая) крыша подчёркивает элегантность линии крыши, создавая ощущение «живого искусства» у двора. **Дома, где время течёт в унисон с вашим ритмом** Одноэтажность дарит простоту передвижения по дому и лёгкую адаптацию под любые потребности семьи. Круглогодичная инфраструктура гарантирует комфорт в любую погоду: теплая, светлая и уютная, благодаря продуманной тепло- и звукоизоляции. Пристроенный гараж и крытая автостоянка освобождают главную площадку от лишних препятствий, а просторная терраса предлагает место для семейных посиделок и гриля. **Потому что вы заслуживаете идеальное сочетание стиля и практичности** Соблюдая классику в каждой детали, проект сочетает эстетически приятный внешний вид с функциональностью: просторные помещения, аккуратные разметки, светлые материалы. Дом легко монтировать и ухаживать, а наличие удобного гаража и террасы повышает удобство современной жизни. Проект 8 – это не просто здание, а обещание тихого уединения, защищённости и эстетики, которые вы заслуживаете каждое мгновение.

Характеристики дома

Архитектурный стиль
Классический
Автоматизированное регулирование параметров теплоносителя
Нет
Балконы/лоджии
Отсутствуют
Чердачное помещение
Нет
Датчики протечки воды
Нет
Эксплуатируемая или зеленая кровля
Нет
Электроснабжение
Не предусмотрено
Газоснабжение
Не предусмотрено
Изоляция воздушного шума
Нет
Камин
Нет
Класс энергоэффективности
-
Класс энергосбережения
-
Количество надземных этажей
1
Круглогодичное проживание
Да
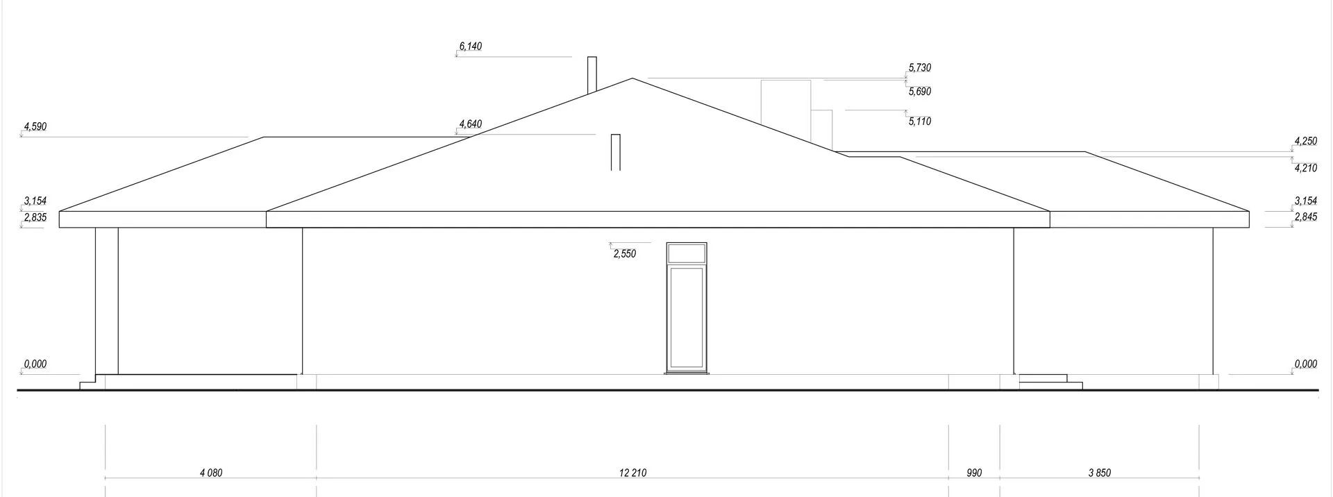
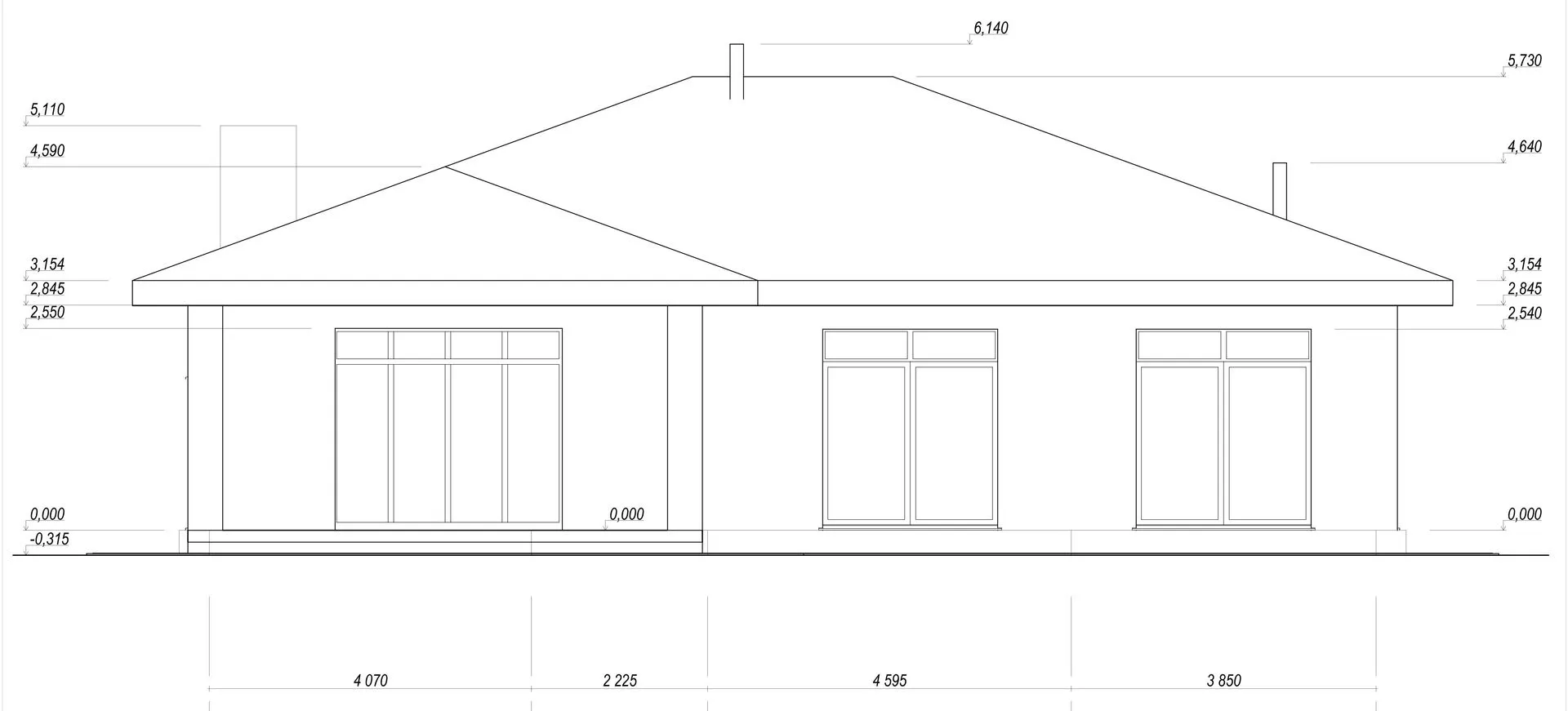
Материал кровли
Металлочерепица
Материал перекрытий
Деревянные
Материал внешних стен
Керамический блок
Материал внутренних перегородок
Блочные
Модульное строительство с конструкциями заводского изготовления
Нет
Объем надземной части
1227 м3
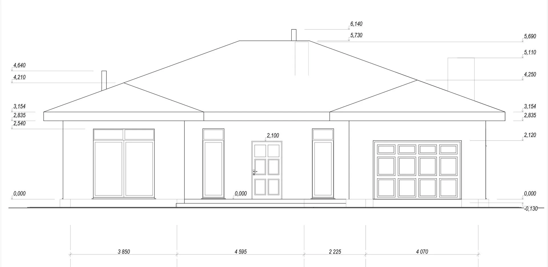
Основной материал фасадов
Облицовочный кирпич
Отопление
Не предусмотрено
Площадь дома
218 м2
Площадь застройки
248 м2
Подвальное помещение
Нет
Показатель компактности здания
-
Приборы учета тепловой энергии
Нет
Пристроенный гараж/крытая автостоянка
Да
Противопожарная система
Нет
Санузлы
2
Совмещенная кухня-гостиная
Да
Спальни
3
Терраса
Да
Тип фундамента
Плитный
Тип кровли
Четырехскатная (вальмовая)
Толщина внешних стен
380 мм
Толщина внутренних перегородок
120 мм
Улучшенные шумовые характеристики
Нет
Вентиляция
Естественная
Веранда
Нет
Водоотведение
Не предусмотрено
Водоснабжение
Не предусмотрено
Высота дома
5.73 м
Высота потолков
3.05 м

Планировка

Фасад дома

Александр

Закажите выезд инженера

Александр

Выездной инженер
Закажите выезд инженера для точной диагностики и профессиональной консультации по инженерным системам. Специалист приедет в удобное время, проведёт осмотр, рассчитает стоимость работ и подберёт оптимальные решения для вашего дома.


    Похожие проекты

    Ипотека и
    рассрочка
    Дом из клееного бруса «Подольск»
    Стоимость от:
    21 172 080
    Проект от: 147 150
    Этажей 2
    Санузлы 2
    Спальни 4
    Смотреть
    Ипотека и
    рассрочка
    Проект А002
    Стоимость от:
    13 017 600
    Проект от: 81 000
    Этажей 2
    Санузлы 2
    Спальни 3
    Смотреть
    Ипотека и
    рассрочка
    Дом ГД-909
    Стоимость от:
    1 645 930
    Проект от: 11 700
    Этажей 1
    Санузлы 1
    Спальни 1
    Смотреть
    Ипотека и
    рассрочка
    Жилой Дом №2
    Стоимость от:
    9 240 660
    Проект от: 55 350
    Этажей 1
    Санузлы 2
    Спальни 3
    Смотреть
    Ипотека и
    рассрочка
    Мюнхен
    Стоимость от:
    11 572 800
    Проект от: 72 000
    Этажей 2
    Санузлы 2
    Спальни 5
    Смотреть
    Ипотека и
    рассрочка
    Проект «Северный»
    Стоимость от:
    5 036 900
    Проект от: 29 250
    Этажей 1
    Санузлы 1
    Спальни 3
    Смотреть

    Как узнать стоимость дома

    back
    Оставляете заявку
    Вы заполняете форму на сайте или звоните нам. Менеджер Лайвкрафт связывается с вами для уточнения деталей: тип дома, площадь, материалы, участок строительства.
    back
    Консультация и подбор решения
    Наш специалист помогает выбрать оптимальный тип дома и конструкцию с учётом бюджета, сроков и целей — будь то дом для постоянного проживания или дача.
    back
    Расчёт предварительной стоимости
    Инженер делает первичный расчёт стоимости строительства по вашим параметрам: фундамент, коробка, кровля, отделка. Вы получаете смету с разбивкой по этапам.
    back
    Корректировка и утверждение сметы
    При необходимости вносим изменения — например, замену материалов или сокращение этапов. После согласования формируется окончательная фиксированная смета.
    back
    Заключение договора и старт работ
    После утверждения сметы заключаем официальный договор с гарантией. Вы получаете прозрачный график и точную стоимость — без скрытых расходов.

    Заказать конусльтацию по:Проект 8

    Фото 1 Проект 8


      Наши
      контакты

      Дмитров
      Опорный проезд 28Б
      (индустриальный парк Ниагара)
      9:00 до 18:00