4.9
Рейтинг на основании 120 отзывов
Дмитров
Опорный проезд 28Б
(индустриальный парк Ниагара)
Бренд "Дмитров-Дело" c 2008 года на рынке строительства в Дмитрове
Звоните 9:00 до 18:00 8 (915) 055-33-61
Бренд "Дмитров-Дело" c 2008 года на рынке строительства в Дмитрове

Проект № 905

Стоимость проекта от:
37 800 ₽
Стоимость строительства от:
6 314 880 ₽
Артикул ART-10529
Дата 25.12.2025
Архитектурный стиль Классический
Количество надземных этажей 1
Круглогодичное проживание Да
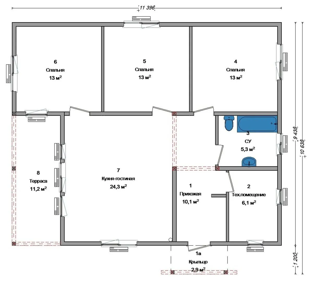
Площадь дома 84 м2
Санузлы 1
Спальни 3

Описание

**Проект № 905** – это настоящий оазис современного комфорта, обернутый в классический стиль. Дом рассчитан на круглогодичное проживание, но при этом сохраняет уют и тепло благодаря рациональному планированию и высококачественным материалам. На первом этаже располагаются просторные и светлые комнаты, которые легко адаптировать под любые ваши нужды – будь то современная кухня с открытым залом, тихий уголок для чтения или гостевая зона для встреч с друзьями. Одной из ключевых особенностей является использование SIP‑панелей в облике внешних стен. Это сочетание изоляции и прочности обеспечивает высокую энергоэффективность и ровную поверхность для финишных работ, а также позволяет быстрее воплотить проект в жизнь. На крыше – элегантный четырёхскатный (вальмовой) антураж, создающий ощущение благородства и гармонии. Балконы, веранда и прицепные гаражи отсутствуют, но это компенсируется живописной террасой, где можно наслаждаться свежим воздухом и рассветами, а также организовать собственное садовое пространство. Проект № 905 – это сочетание классической эстетики и современных технологий, предоставляющее вам идеальное место для жизни, где каждая деталь продумана для вашей безопасности и комфорта. Приглашаем вас узнать больше и открыть для себя дом, в котором каждый день будет приносить радость и умиротворение.

Характеристики дома

Архитектурный стиль
Классический
Автоматизированное регулирование параметров теплоносителя
-
Балконы/лоджии
Отсутствуют
Чердачное помещение
Нет
Датчики протечки воды
-
Эксплуатируемая или зеленая кровля
-
Электроснабжение
Индивидуальное
Газоснабжение
Индивидуальное
Изоляция воздушного шума
-
Камин
Нет
Класс энергоэффективности
-
Класс энергосбережения
-
Количество надземных этажей
1
Круглогодичное проживание
Да
Материал кровли
Металлочерепица
Материал перекрытий
Деревянные
Материал внешних стен
SIP-панели
Материал внутренних перегородок
Деревянные
Модульное строительство с конструкциями заводского изготовления
Нет
Объем надземной части
538 м3
Основной материал фасадов
Штукатурка
Отопление
Индивидуальное
Площадь дома
84 м2
Площадь застройки
110 м2
Подвальное помещение
Нет
Показатель компактности здания
-
Приборы учета тепловой энергии
-
Пристроенный гараж/крытая автостоянка
Нет
Противопожарная система
Нет
Санузлы
1
Совмещенная кухня-гостиная
Да
Спальни
3
Терраса
Да
Тип фундамента
Свайно-ростверковый
Тип кровли
Четырехскатная (вальмовая)
Толщина внешних стен
174 мм
Толщина внутренних перегородок
124 мм
Улучшенные шумовые характеристики
-
Вентиляция
Естественная
Веранда
Нет
Водоотведение
Локальные очистные сооружения
Водоснабжение
Индивидуальное
Высота дома
4.88 м
Высота потолков
2.8 м

Планировка

Фасад дома

Александр

Закажите выезд инженера

Александр

Выездной инженер
Закажите выезд инженера для точной диагностики и профессиональной консультации по инженерным системам. Специалист приедет в удобное время, проведёт осмотр, рассчитает стоимость работ и подберёт оптимальные решения для вашего дома.


    Похожие проекты

    Ипотека и
    рассрочка
    Скаут
    Стоимость от:
    7 403 660
    Проект от: 41 850
    Этажей 1
    Санузлы 1
    Спальни 3
    Смотреть
    Ипотека и
    рассрочка
    Коттедж PG-1
    Стоимость от:
    6 567 660
    Проект от: 41 850
    Этажей 1
    Санузлы 1
    Спальни 3
    Смотреть
    Ипотека и
    рассрочка
    ЛЕГЕНДА
    Стоимость от:
    8 245 800
    Проект от: 56 250
    Этажей 2
    Санузлы 2
    Спальни 3
    Смотреть
    Ипотека и
    рассрочка
    Балаклава 92
    Стоимость от:
    4 589 420
    Проект от: 27 450
    Этажей 1
    Санузлы 1
    Спальни 2
    Смотреть
    Ипотека и
    рассрочка
    Каркасный зимний дом К 216 «комплектация Зима+»
    Стоимость от:
    11 988 000
    Проект от: 90 000
    Этажей 2
    Санузлы 2
    Спальни 4
    Смотреть
    Ипотека и
    рассрочка
    Гармония 150
    Стоимость от:
    10 194 580
    Проект от: 67 050
    Этажей 1
    Санузлы 2
    Спальни 3
    Смотреть

    Как узнать стоимость дома

    back
    Оставляете заявку
    Вы заполняете форму на сайте или звоните нам. Менеджер Лайвкрафт связывается с вами для уточнения деталей: тип дома, площадь, материалы, участок строительства.
    back
    Консультация и подбор решения
    Наш специалист помогает выбрать оптимальный тип дома и конструкцию с учётом бюджета, сроков и целей — будь то дом для постоянного проживания или дача.
    back
    Расчёт предварительной стоимости
    Инженер делает первичный расчёт стоимости строительства по вашим параметрам: фундамент, коробка, кровля, отделка. Вы получаете смету с разбивкой по этапам.
    back
    Корректировка и утверждение сметы
    При необходимости вносим изменения — например, замену материалов или сокращение этапов. После согласования формируется окончательная фиксированная смета.
    back
    Заключение договора и старт работ
    После утверждения сметы заключаем официальный договор с гарантией. Вы получаете прозрачный график и точную стоимость — без скрытых расходов.

    Заказать конусльтацию по:Проект № 905

    Фото 1 Проект № 905


      Наши
      контакты

      Дмитров
      Опорный проезд 28Б
      (индустриальный парк Ниагара)
      9:00 до 18:00

      Корзина