4.9
Рейтинг на основании 120 отзывов
Дмитров
Опорный проезд 28Б
(индустриальный парк Ниагара)
Бренд "Дмитров-Дело" c 2008 года на рынке строительства в Дмитрове
Звоните 9:00 до 18:00 8 (915) 055-33-61
Бренд "Дмитров-Дело" c 2008 года на рынке строительства в Дмитрове

Проект «Благодатный»

Стоимость проекта от:
51 300 ₽
БЕСПЛАТНО! ПРИ ЗАКАЗЕ СТРОИТЕЛЬСТВА
Стоимость строительства от:
8 547 240 ₽
Артикул ART-13170
Дата 25.12.2025
Архитектурный стиль Хайтек
Количество надземных этажей 3
Круглогодичное проживание Да
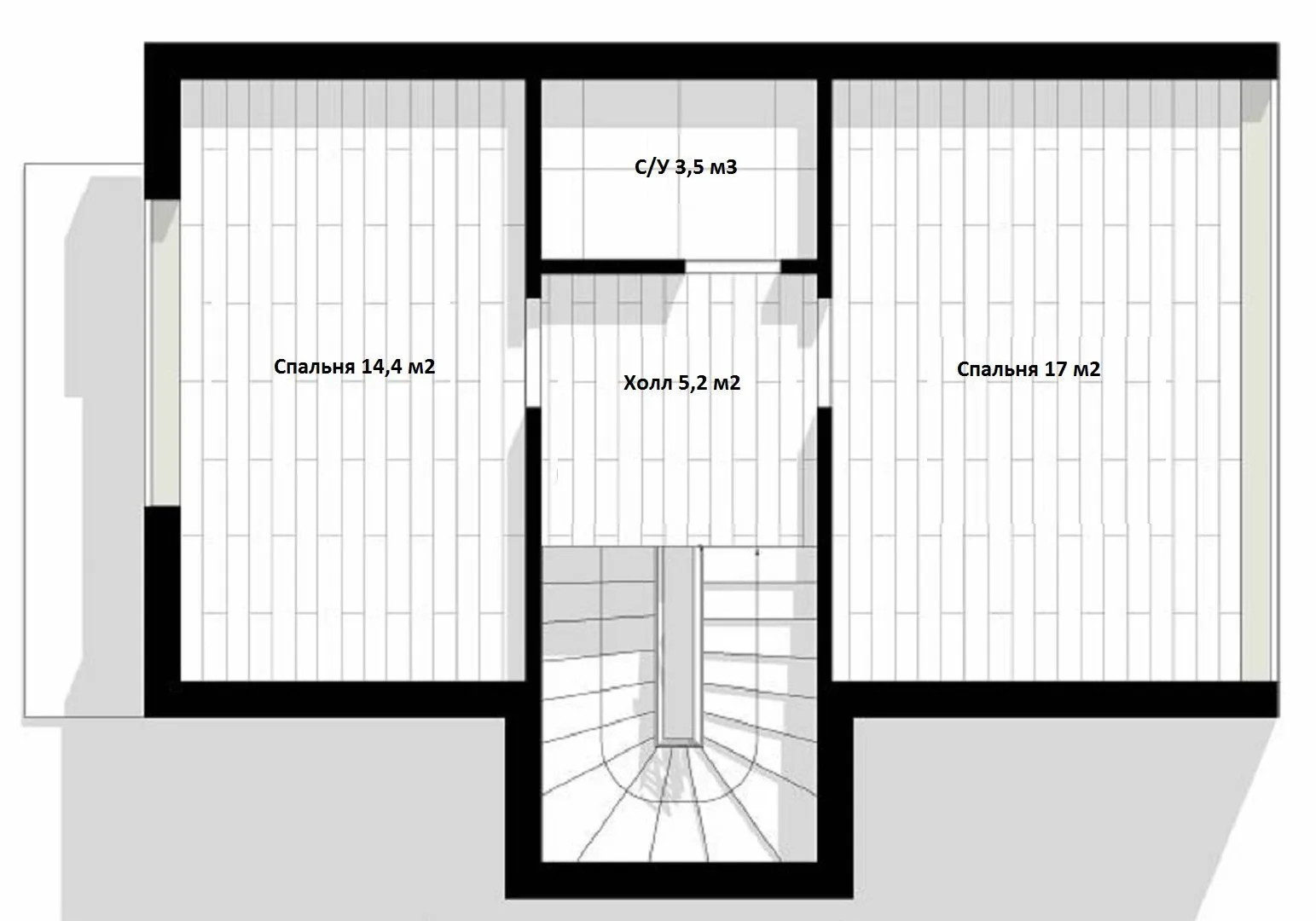
Площадь дома 114 м2
Санузлы 2
Спальни 2

Описание

**Благодатный** – это воплощение современного уюта и технологической безупречности, где каждый элемент продуман до мельчайших деталей. Три надземных этажа дарят простор и свет, а плоская крыша, выполненная из надёжных керамзитобетонных блоков, подчёркивает лаконичный, но выразительный хай‑тек стиль. Благодаря круглогодичному проживанию вы сможете наслаждаться комфортом в любое время года – неважно, холодна ли зима или жарко в летний сезон. Отсутствие традиционных балконов, веранд и террас позволяет архитекторам сохранить чистые линии фасада, подчёркивая минимализм и современность конструкции. Внутри вас ждёт продуманная планировка, где каждый уголок служит своему предназначению: уютные гостиные, функциональная кухня, открытые пространства, которые легко адаптируются под ваши потребности. Качество материалов и безупречное исполнение гарантируют долговечность и низкие эксплуатационные расходы, а прибрежный гараж с крытой автостоянкой обеспечит удобство и защиту вашего автомобиля от непогоды. Выбирая «Благодатный», вы инвестируете в будущее, где стиль, комфорт и технологичность создают идеальное место для жизни и работы. Это дом, в котором каждая деталь подчёркивает вашу индивидуальность, а каждая система работает на ваше спокойствие и благополучие. Начните новый этап жизни в проекте, где современность встречается с заботой о деталях, и сделайте свой выбор в пользу гармонии и инноваций.

Характеристики дома

Архитектурный стиль
Автоматизированное регулирование параметров теплоносителя
Нет
Балконы/лоджии
Отсутствуют
Чердачное помещение
Нет
Датчики протечки воды
Нет
Эксплуатируемая или зеленая кровля
Нет
Электроснабжение
Центральное
Газоснабжение
Центральное
Изоляция воздушного шума
Нет
Камин
Нет
Класс энергоэффективности
-
Класс энергосбережения
-
Количество надземных этажей
3
Круглогодичное проживание
Да
Материал кровли
Стальные листовые гофрированные профили
Материал перекрытий
Монолитные железобетонные
Материал внешних стен
Материал внутренних перегородок
Блочные
Модульное строительство с конструкциями заводского изготовления
Нет
Объем надземной части
222 м3
Основной материал фасадов
Штукатурка
Отопление
Индивидуальное
Площадь дома
114 м2
Площадь застройки
74 м2
Подвальное помещение
Нет
Показатель компактности здания
-
Приборы учета тепловой энергии
Нет
Пристроенный гараж/крытая автостоянка
Да
Противопожарная система
Нет
Санузлы
2
Совмещенная кухня-гостиная
Да
Спальни
2
Терраса
Нет
Тип фундамента
Ленточный
Тип кровли
Толщина внешних стен
350 мм
Толщина внутренних перегородок
120 мм
Улучшенные шумовые характеристики
Нет
Вентиляция
Естественная
Веранда
Нет
Водоотведение
Локальные очистные сооружения
Водоснабжение
Индивидуальное
Высота дома
6.92 м
Высота потолков
2.9 м

Планировка

Фасад дома

Александр

Закажите выезд инженера

Александр

Выездной инженер
Закажите выезд инженера для точной диагностики и профессиональной консультации по инженерным системам. Специалист приедет в удобное время, проведёт осмотр, рассчитает стоимость работ и подберёт оптимальные решения для вашего дома.


    Похожие проекты

    Ипотека и
    рассрочка
    «Белов»
    Стоимость от:
    5 865 300
    Проект от: 44 100
    Этажей 2
    Санузлы 1
    Спальни 4
    Смотреть
    Ипотека и
    рассрочка
    Хайтек 90
    Стоимость от:
    5 691 060
    Проект от: 43 650
    Этажей 2
    Санузлы 2
    Спальни 2
    Смотреть
    Ипотека и
    рассрочка
    Проект одноэтажного дома из SIP панелей «Регул»
    Стоимость от:
    9 520 500
    Проект от: 67 500
    Этажей 1
    Санузлы 1
    Спальни 2
    Смотреть
    Ипотека и
    рассрочка
    Дом со вторым светом 127
    Стоимость от:
    6 728 205
    Проект от: 54 450
    Этажей 1
    Санузлы 1
    Спальни 3
    Смотреть
    Ипотека и
    рассрочка
    Проект «Надежда»
    Стоимость от:
    7 069 440
    Проект от: 43 200
    Этажей 2
    Санузлы 2
    Спальни 3
    Смотреть
    Ипотека и
    рассрочка
    PH-50
    Стоимость от:
    3 421 000
    Проект от: 22 500
    Этажей 1
    Санузлы 1
    Спальни 1
    Смотреть

    Как узнать стоимость дома

    back
    Оставляете заявку
    Вы заполняете форму на сайте или звоните нам. Менеджер Лайвкрафт связывается с вами для уточнения деталей: тип дома, площадь, материалы, участок строительства.
    back
    Консультация и подбор решения
    Наш специалист помогает выбрать оптимальный тип дома и конструкцию с учётом бюджета, сроков и целей — будь то дом для постоянного проживания или дача.
    back
    Расчёт предварительной стоимости
    Инженер делает первичный расчёт стоимости строительства по вашим параметрам: фундамент, коробка, кровля, отделка. Вы получаете смету с разбивкой по этапам.
    back
    Корректировка и утверждение сметы
    При необходимости вносим изменения — например, замену материалов или сокращение этапов. После согласования формируется окончательная фиксированная смета.
    back
    Заключение договора и старт работ
    После утверждения сметы заключаем официальный договор с гарантией. Вы получаете прозрачный график и точную стоимость — без скрытых расходов.

    Заказать конусльтацию по:Проект «Благодатный»

    Фото 1 Проект «Благодатный»


      Наши
      контакты

      Дмитров
      Опорный проезд 28Б
      (индустриальный парк Ниагара)
      9:00 до 18:00

      Корзина