4.9
Рейтинг на основании 120 отзывов
Дмитров
Опорный проезд 28Б
(индустриальный парк Ниагара)
Бренд "Дмитров-Дело" c 2008 года на рынке строительства в Дмитрове
Звоните 9:00 до 18:00 8 (915) 055-33-61
Бренд "Дмитров-Дело" c 2008 года на рынке строительства в Дмитрове

Проект «Чайка»

Стоимость проекта от:
43 200 ₽
БЕСПЛАТНО! ПРИ ЗАКАЗЕ СТРОИТЕЛЬСТВА
Стоимость строительства от:
7 069 440 ₽
Артикул ART-12137
Дата 25.12.2025
Архитектурный стиль Европейский
Количество надземных этажей 2
Круглогодичное проживание Да
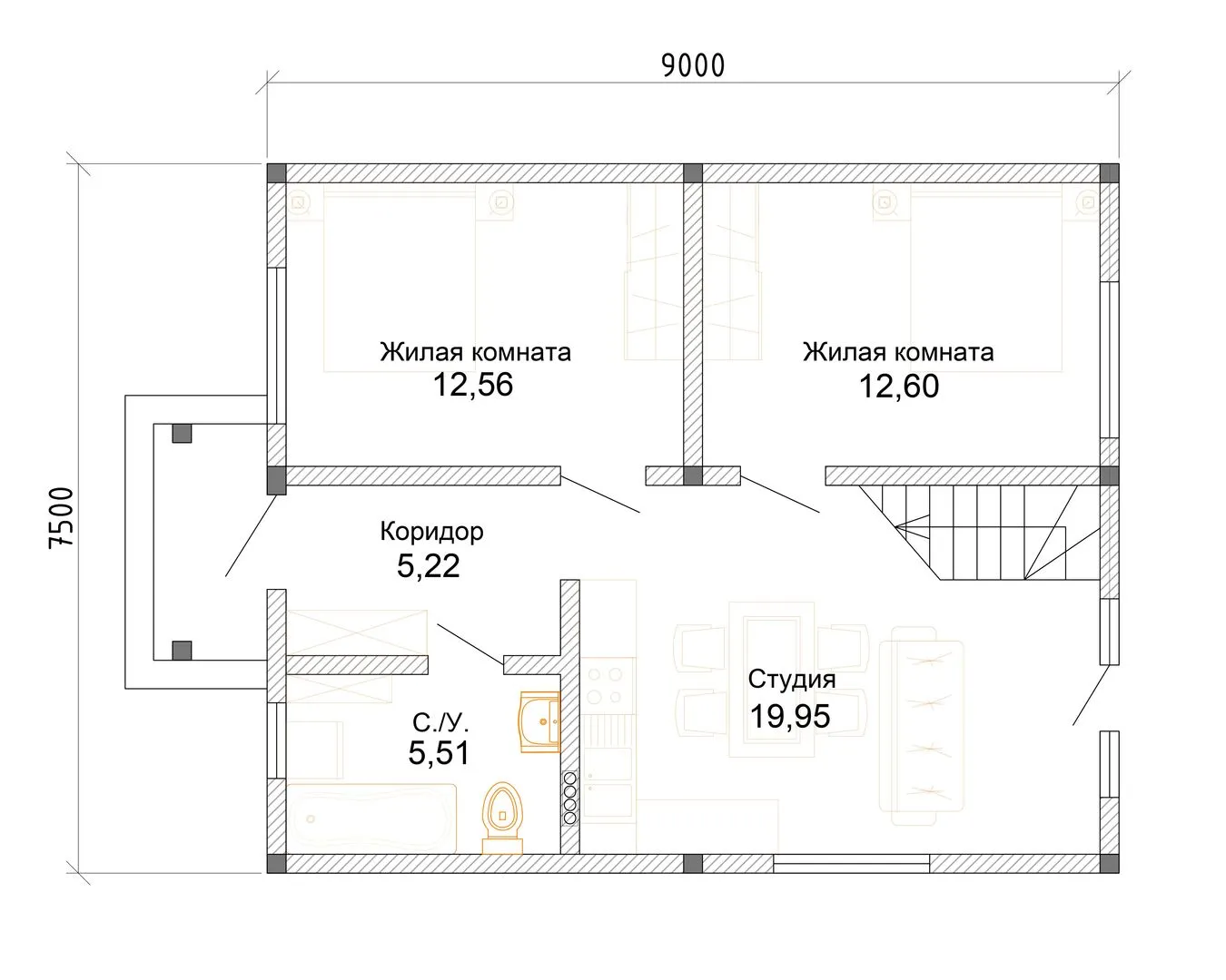
Площадь дома 96 м2
Санузлы 2
Спальни 5

Описание

**Дом «Чайка» – ваш уютный уголок в сердце европейского очарования** Жилой комплекс «Чайка» сочетает в себе гармонию строгой европейской элегантности с функциональностью, созданной специально для круглогодичногок жизни. Два надземных этажа размещают все необходимые комнаты, создавая оптимальное соотношение пространства и приватности. Прямой отклик архитектуры – стильная двускатная крыша, подчеркивающая классический фасад и придающая дому ощущение уюта и защищённости. **Качество и комфорт в деталях** Внешние стены, выполненные из газобетонных блоков, обеспечивают отличную тепло- и звукоизоляцию, сохраняя комфортный микроклимат даже в самые холодные зимы. Отсутствие балконов, лоджий и веранд не мешает раскрыть потенциал, ведь уютно обустроенные внутренние зоны полностью удовлетворяют потребности современной семьи. Подходящий интерьер и продуманное планировочное решение делают каждый момент проживания на «Чайке» спокойным и радостным. **Идеальное решение для тех, кто ценит качество и простоту** Дом «Чайка» создан, чтобы вы могли наслаждаться жизнью без лишних забот: от быстрой доступности до безопасного и тихого проживания. Это идеальный выбор для тех, кто хочет жить в европейском стиле, с максимальным комфортом и без компромиссов по качеству. Приходите и убедитесь сами, что настоящий дом – это не просто стены, а целый мир уюта и гармонии.

Характеристики дома

Архитектурный стиль
Автоматизированное регулирование параметров теплоносителя
Нет
Балконы/лоджии
Отсутствуют
Чердачное помещение
Нет
Датчики протечки воды
Нет
Эксплуатируемая или зеленая кровля
Нет
Электроснабжение
Центральное
Газоснабжение
Центральное
Изоляция воздушного шума
Нет
Камин
Нет
Класс энергоэффективности
-
Класс энергосбережения
-
Количество надземных этажей
2
Круглогодичное проживание
Да
Материал кровли
Битумная черепица
Материал перекрытий
Деревянные
Материал внешних стен
Материал внутренних перегородок
Блочные
Модульное строительство с конструкциями заводского изготовления
Нет
Объем надземной части
289 м3
Основной материал фасадов
Штукатурка
Отопление
Индивидуальное
Площадь дома
96 м2
Площадь застройки
67 м2
Подвальное помещение
Нет
Показатель компактности здания
-
Приборы учета тепловой энергии
Нет
Пристроенный гараж/крытая автостоянка
Нет
Противопожарная система
Нет
Санузлы
2
Совмещенная кухня-гостиная
Да
Спальни
5
Терраса
Нет
Тип фундамента
Ленточный
Тип кровли
Толщина внешних стен
200 мм
Толщина внутренних перегородок
200 мм
Улучшенные шумовые характеристики
Нет
Вентиляция
Естественная
Веранда
Нет
Водоотведение
Локальные очистные сооружения
Водоснабжение
Индивидуальное
Высота дома
8.05 м
Высота потолков
3 м

Планировка

Фасад дома

Александр

Закажите выезд инженера

Александр

Выездной инженер
Закажите выезд инженера для точной диагностики и профессиональной консультации по инженерным системам. Специалист приедет в удобное время, проведёт осмотр, рассчитает стоимость работ и подберёт оптимальные решения для вашего дома.


    Похожие проекты

    Ипотека и
    рассрочка
    S.Dom-42-1
    Стоимость от:
    3 492 390
    Проект от: 25 650
    Этажей 1
    Санузлы 1
    Спальни 1
    Смотреть
    Ипотека и
    рассрочка
    Проект загородного дома NHD-159
    Стоимость от:
    5 789 740
    Проект от: 34 650
    Этажей 1
    Санузлы 1
    Спальни 2
    Смотреть
    Ипотека и
    рассрочка
    Хоум ОПТИ 75
    Стоимость от:
    4 405 720
    Проект от: 34 200
    Этажей 1
    Санузлы 1
    Спальни 2
    Смотреть
    Ипотека и
    рассрочка
    Двухэтажное шале КЦ4-3
    Стоимость от:
    12 584 160
    Проект от: 78 300
    Этажей 2
    Санузлы 3
    Спальни 4
    Смотреть
    Ипотека и
    рассрочка
    Уютный уголок
    Стоимость от:
    10 741 060
    Проект от: 64 350
    Этажей 1
    Санузлы 2
    Спальни 3
    Смотреть
    Ипотека и
    рассрочка
    Проект дома Ньюпорт
    Стоимость от:
    5 538 960
    Проект от: 37 800
    Этажей 2
    Санузлы 1
    Спальни 2
    Смотреть

    Как узнать стоимость дома

    back
    Оставляете заявку
    Вы заполняете форму на сайте или звоните нам. Менеджер Лайвкрафт связывается с вами для уточнения деталей: тип дома, площадь, материалы, участок строительства.
    back
    Консультация и подбор решения
    Наш специалист помогает выбрать оптимальный тип дома и конструкцию с учётом бюджета, сроков и целей — будь то дом для постоянного проживания или дача.
    back
    Расчёт предварительной стоимости
    Инженер делает первичный расчёт стоимости строительства по вашим параметрам: фундамент, коробка, кровля, отделка. Вы получаете смету с разбивкой по этапам.
    back
    Корректировка и утверждение сметы
    При необходимости вносим изменения — например, замену материалов или сокращение этапов. После согласования формируется окончательная фиксированная смета.
    back
    Заключение договора и старт работ
    После утверждения сметы заключаем официальный договор с гарантией. Вы получаете прозрачный график и точную стоимость — без скрытых расходов.

    Заказать конусльтацию по:Проект «Чайка»

    Фото 1 Проект «Чайка»


      Наши
      контакты

      Дмитров
      Опорный проезд 28Б
      (индустриальный парк Ниагара)
      9:00 до 18:00

      Корзина