4.9
Рейтинг на основании 120 отзывов
Дмитров
Опорный проезд 28Б
(индустриальный парк Ниагара)
Бренд "Дмитров-Дело" c 2008 года на рынке строительства в Дмитрове
Звоните 9:00 до 18:00 8 (915) 055-33-61
Бренд "Дмитров-Дело" c 2008 года на рынке строительства в Дмитрове

Проект двухэтажного дома «Алексей Дмитриевич»

Стоимость проекта от:
84 150 ₽
Стоимость строительства от:
13 763 280 ₽
Артикул ART-14410
Дата 25.12.2025
Архитектурный стиль Минимализм
Количество надземных этажей 2
Круглогодичное проживание Да
Площадь дома 187 м2
Санузлы 3
Спальни 4

Описание

Элегантный двухэтажный дом «Алексей Дмитриевич» воплощает в себе чистые линии и изысканную простоту минимализма. Его строгая архитектура создаёт ощущение пространства и ясности, а каждая деталь – от ровной плоской крыши до гладких стен, выполненных из газобетонных блоков – подчёркивает современный подход к комфорту и энергоэффективности. Дом рассчитан на круглогодичное проживание, поэтому его открытые участки и просторные внутренние зоны способствуют гармоничному взаимодействию с природой и окружающим ландшафтом. Уникальное сочетание функционала и эстетики открывает простор для личного творчества. На первом этаже располагается уютный гостиной-кухня, обрамленная панорамными окнами, а над ними расположенный балкон/лоджия приглашает к утренним чашкам кофе и вечерним беседам. Завершающим акцентом становится большая терраса, где можно наслаждаться свежим воздухом, выращивать зелень или устраивать маленькие семейные пикники. Благодаря использованию газобетонных блоков стены обеспечивают отличную тепло- и звукоизоляцию, а плоская крыша придаёт дому современный вид и открывает возможность для установки солнечных панелей. «Алексей Дмитриевич» – это не просто жильё, а место, где каждая деталь работает на ваш комфорт и спокойствие. Позвольте себе ощутить в жизни чувство простоты и элегантности, которое предлагает этот уникальный проект. Приглашаем вас открыть двери и увидеть, как каждая секунда здесь наполнена гармонией и уютом.

Характеристики дома

Архитектурный стиль
Минимализм
Автоматизированное регулирование параметров теплоносителя
Нет
Балконы/лоджии
1
Чердачное помещение
Нет
Датчики протечки воды
Нет
Эксплуатируемая или зеленая кровля
Да
Электроснабжение
Индивидуальное
Газоснабжение
Не предусмотрено
Изоляция воздушного шума
Да
Камин
Нет
Класс энергоэффективности
-
Класс энергосбережения
-
Количество надземных этажей
2
Круглогодичное проживание
Да
Материал кровли
Рулонные битумные покрытия
Материал перекрытий
Монолитные железобетонные
Материал внешних стен
Газобетонные блоки
Материал внутренних перегородок
Блочные
Модульное строительство с конструкциями заводского изготовления
Нет
Объем надземной части
600 м3
Основной материал фасадов
Штукатурка
Отопление
Индивидуальное
Площадь дома
187 м2
Площадь застройки
121 м2
Подвальное помещение
Нет
Показатель компактности здания
-
Приборы учета тепловой энергии
Нет
Пристроенный гараж/крытая автостоянка
Нет
Противопожарная система
Нет
Санузлы
3
Совмещенная кухня-гостиная
Нет
Спальни
4
Терраса
Да
Тип фундамента
Ленточный
Тип кровли
Плоская
Толщина внешних стен
300 мм
Толщина внутренних перегородок
100 мм
Улучшенные шумовые характеристики
Да
Вентиляция
Естественная
Веранда
Нет
Водоотведение
Локальные очистные сооружения
Водоснабжение
Индивидуальное
Высота дома
7.6 м
Высота потолков
3 м

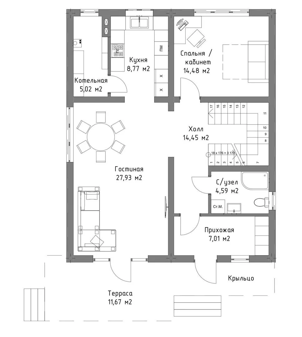
Планировка

Фасад дома

Александр

Закажите выезд инженера

Александр

Выездной инженер
Закажите выезд инженера для точной диагностики и профессиональной консультации по инженерным системам. Специалист приедет в удобное время, проведёт осмотр, рассчитает стоимость работ и подберёт оптимальные решения для вашего дома.


    Похожие проекты

    Ипотека и
    рассрочка
    Одноэтажный кирпичный дом ИП-138
    Стоимость от:
    9 625 440
    Проект от: 59 400
    Этажей 1
    Санузлы 2
    Спальни 3
    Смотреть
    Ипотека и
    рассрочка
    Одноэтажный ИЖС14
    Стоимость от:
    7 222 380
    Проект от: 44 550
    Этажей 1
    Санузлы 1
    Спальни 2
    Смотреть
    Ипотека и
    рассрочка
    Двухэтажный бревенчатый дом «Д-177»
    Стоимость от:
    12 155 280
    Проект от: 79 650
    Этажей 2
    Санузлы 2
    Спальни 3
    Смотреть
    Ипотека и
    рассрочка
    Одноэтажный барн Уют
    Стоимость от:
    5 855 850
    Проект от: 47 250
    Этажей 1
    Санузлы 1
    Спальни 2
    Смотреть
    Ипотека и
    рассрочка
    Одноэтажный дом с террасой
    Стоимость от:
    10 353 640
    Проект от: 63 900
    Этажей 1
    Санузлы 2
    Спальни 3
    Смотреть
    Ипотека и
    рассрочка
    Каркасный дом для круглогодичного проживания 7,57х9,0
    Стоимость от:
    4 675 320
    Проект от: 35 100
    Этажей 2
    Санузлы 1
    Спальни 1
    Смотреть

    Как узнать стоимость дома

    back
    Оставляете заявку
    Вы заполняете форму на сайте или звоните нам. Менеджер Лайвкрафт связывается с вами для уточнения деталей: тип дома, площадь, материалы, участок строительства.
    back
    Консультация и подбор решения
    Наш специалист помогает выбрать оптимальный тип дома и конструкцию с учётом бюджета, сроков и целей — будь то дом для постоянного проживания или дача.
    back
    Расчёт предварительной стоимости
    Инженер делает первичный расчёт стоимости строительства по вашим параметрам: фундамент, коробка, кровля, отделка. Вы получаете смету с разбивкой по этапам.
    back
    Корректировка и утверждение сметы
    При необходимости вносим изменения — например, замену материалов или сокращение этапов. После согласования формируется окончательная фиксированная смета.
    back
    Заключение договора и старт работ
    После утверждения сметы заключаем официальный договор с гарантией. Вы получаете прозрачный график и точную стоимость — без скрытых расходов.

    Заказать конусльтацию по:Проект двухэтажного дома «Алексей Дмитриевич»

    Фото 1 Проект двухэтажного дома «Алексей Дмитриевич»


      Наши
      контакты

      Дмитров
      Опорный проезд 28Б
      (индустриальный парк Ниагара)
      9:00 до 18:00