4.9
Рейтинг на основании 120 отзывов
Дмитров
Опорный проезд 28Б
(индустриальный парк Ниагара)
Бренд "Дмитров-Дело" c 2008 года на рынке строительства в Дмитрове
Звоните 9:00 до 18:00 8 (915) 055-33-61
Бренд "Дмитров-Дело" c 2008 года на рынке строительства в Дмитрове

Проект двухэтажного дома №8

Стоимость проекта от:
78 750 ₽
БЕСПЛАТНО! ПРИ ЗАКАЗЕ СТРОИТЕЛЬСТВА
Стоимость строительства от:
13 093 200 ₽
Артикул ART-19262
Дата 26.12.2025
Архитектурный стиль Классический
Количество надземных этажей 2
Круглогодичное проживание Да
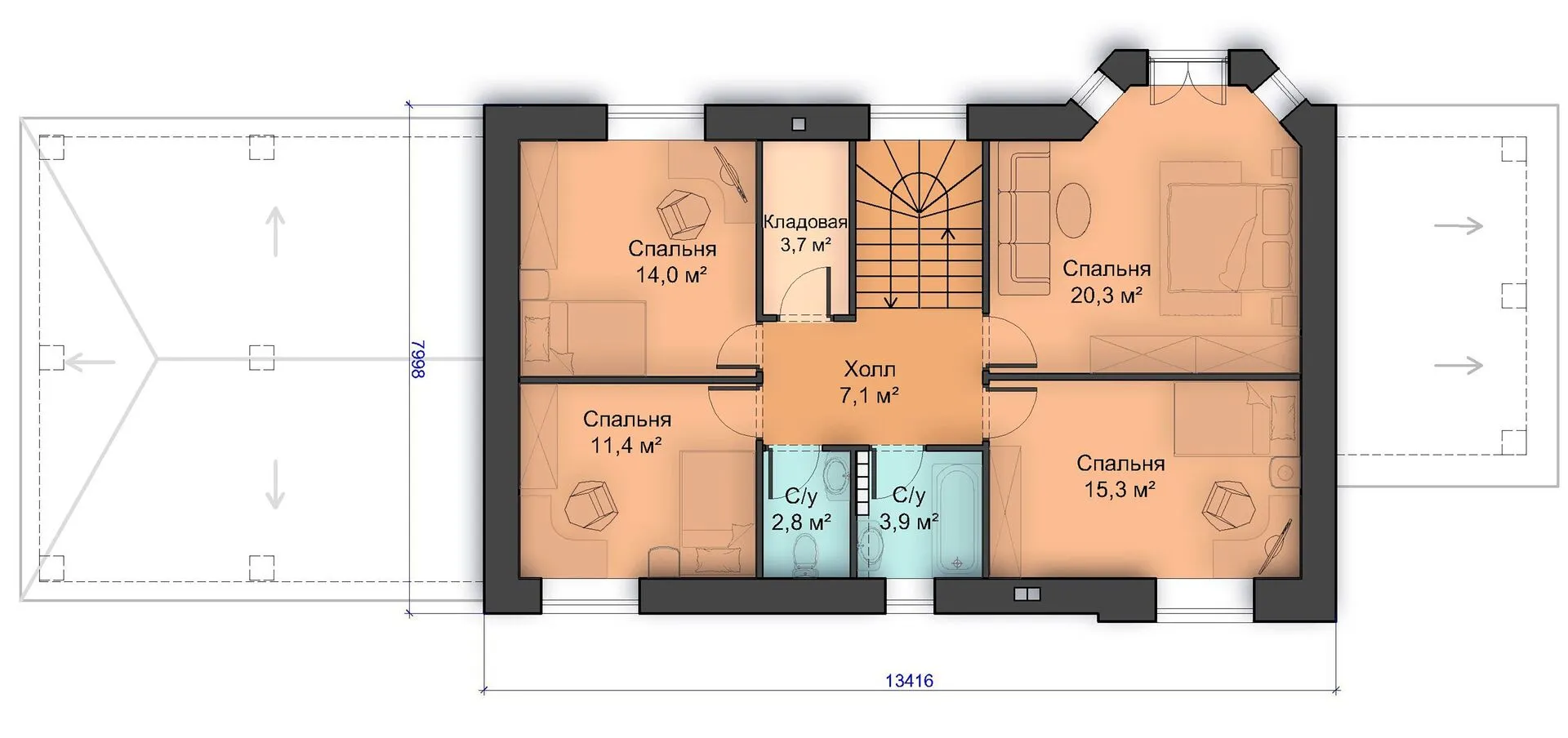
Площадь дома 175 м2
Санузлы 3
Спальни 5

Описание

Добро пожаловать в наш проект № 8 – утончённый двухэтажный дом, где классика встречается с функциональностью. Его архитектура выполнена в традиционном стиле: строгие линии, элегантные фасады и гармоничные пропорции создают ощущение комфорта и надёжности. Круглогодичное проживание – это и тепло, и уют, а благодаря плотному утеплению газобетонных блоков стены дома защищают от перепадов температуры, а также от шума и влаги. Дом рассчитан на комфортную жизнь семьи: свободные, светлые комнаты, большая веранда, где можно пообедать в летний тёплый день или просто попить кофе, наслаждаясь свежим воздухом. Пристроенный гараж/крытая автостоянка избавит от лишних забот по поводу парковки, а отсутствие балконов и террас делает пространство более целостным и защищённым от атмосферных влияний. Четырёхскатная крыша ввалмовом стиле не только подчеркивает классический вид, но и обеспечивает надёжность и долговечность: из нержавеющей сталью покрытая крыша защищает от дождя и снега, сохраняя тепло в помещении. Приятные детали – это то, что делает ваш дом особенным: просторные окна, которые пропускают свет и создают ощущение простора; современная планировка, оптимизированная для удобства проживания; простая и одновременно элегантная отделка, которая не требует лишних усилий по уходу. Это ваш тихий уголок, где можно отдохнуть от суеты, наслаждаться семейными вечерами и, конечно же, ощущать, что дом – это ваша крепость и утепление. Приходите, убедитесь сами: классика никогда не выходит из моды, а уют – вот, что действительно важно.

Характеристики дома

Архитектурный стиль
Автоматизированное регулирование параметров теплоносителя
Нет
Балконы/лоджии
Отсутствуют
Чердачное помещение
Нет
Датчики протечки воды
Нет
Эксплуатируемая или зеленая кровля
Нет
Электроснабжение
Индивидуальное
Газоснабжение
Индивидуальное
Изоляция воздушного шума
Нет
Камин
Нет
Класс энергоэффективности
-
Класс энергосбережения
-
Количество надземных этажей
2
Круглогодичное проживание
Да
Материал кровли
Металлочерепица
Материал перекрытий
Сборно-монолитные железобетонные
Материал внешних стен
Материал внутренних перегородок
Пенобетонные
Модульное строительство с конструкциями заводского изготовления
Нет
Объем надземной части
1115 м3
Основной материал фасадов
Облицовочный кирпич
Отопление
Индивидуальное
Площадь дома
175 м2
Площадь застройки
133 м2
Подвальное помещение
Нет
Показатель компактности здания
-
Приборы учета тепловой энергии
Нет
Пристроенный гараж/крытая автостоянка
Да
Противопожарная система
Нет
Санузлы
3
Совмещенная кухня-гостиная
Нет
Спальни
5
Терраса
Нет
Тип фундамента
Ленточный
Толщина внешних стен
550 мм
Толщина внутренних перегородок
100 мм
Улучшенные шумовые характеристики
Нет
Вентиляция
Естественная
Веранда
Да
Водоотведение
Локальные очистные сооружения
Водоснабжение
Индивидуальное
Высота дома
9 м
Высота потолков
2.75 м

Планировка

Фасад дома

Александр

Закажите выезд инженера

Александр

Выездной инженер
Закажите выезд инженера для точной диагностики и профессиональной консультации по инженерным системам. Специалист приедет в удобное время, проведёт осмотр, рассчитает стоимость работ и подберёт оптимальные решения для вашего дома.


    Похожие проекты

    Ипотека и
    рассрочка
    Каркасный дом «Релим»
    Стоимость от:
    3 596 400
    Проект от: 27 000
    Этажей 2
    Санузлы 1
    Спальни 1
    Смотреть
    Ипотека и
    рассрочка
    Эвелина
    Стоимость от:
    8 939 520
    Проект от: 57 600
    Этажей 2
    Санузлы 3
    Спальни 4
    Смотреть
    Ипотека и
    рассрочка
    Комфорт-006
    Стоимость от:
    6 239 860
    Проект от: 37 350
    Этажей 1
    Санузлы 2
    Спальни 3
    Смотреть
    Ипотека и
    рассрочка
    Одноэтажный дом по проекту «Пион-2. Березняки»
    Стоимость от:
    7 768 200
    Проект от: 49 500
    Этажей 1
    Санузлы 2
    Спальни 3
    Смотреть
    Ипотека и
    рассрочка
    Ликабант
    Стоимость от:
    8 040 340
    Проект от: 48 150
    Этажей 1
    Санузлы 1
    Спальни 3
    Смотреть
    Ипотека и
    рассрочка
    Проект загородного дома NHD-140
    Стоимость от:
    9 090 620
    Проект от: 54 450
    Этажей 1
    Санузлы 1
    Спальни 3
    Смотреть

    Как узнать стоимость дома

    back
    Оставляете заявку
    Вы заполняете форму на сайте или звоните нам. Менеджер Лайвкрафт связывается с вами для уточнения деталей: тип дома, площадь, материалы, участок строительства.
    back
    Консультация и подбор решения
    Наш специалист помогает выбрать оптимальный тип дома и конструкцию с учётом бюджета, сроков и целей — будь то дом для постоянного проживания или дача.
    back
    Расчёт предварительной стоимости
    Инженер делает первичный расчёт стоимости строительства по вашим параметрам: фундамент, коробка, кровля, отделка. Вы получаете смету с разбивкой по этапам.
    back
    Корректировка и утверждение сметы
    При необходимости вносим изменения — например, замену материалов или сокращение этапов. После согласования формируется окончательная фиксированная смета.
    back
    Заключение договора и старт работ
    После утверждения сметы заключаем официальный договор с гарантией. Вы получаете прозрачный график и точную стоимость — без скрытых расходов.

    Заказать конусльтацию по:Проект двухэтажного дома №8

    Фото 1 Проект двухэтажного дома №8


      Наши
      контакты

      Дмитров
      Опорный проезд 28Б
      (индустриальный парк Ниагара)
      9:00 до 18:00

      Корзина