4.9
Рейтинг на основании 120 отзывов
Дмитров
Опорный проезд 28Б
(индустриальный парк Ниагара)
Бренд "Дмитров-Дело" c 2008 года на рынке строительства в Дмитрове
Звоните 9:00 до 18:00 8 (915) 055-33-61
Бренд "Дмитров-Дело" c 2008 года на рынке строительства в Дмитрове

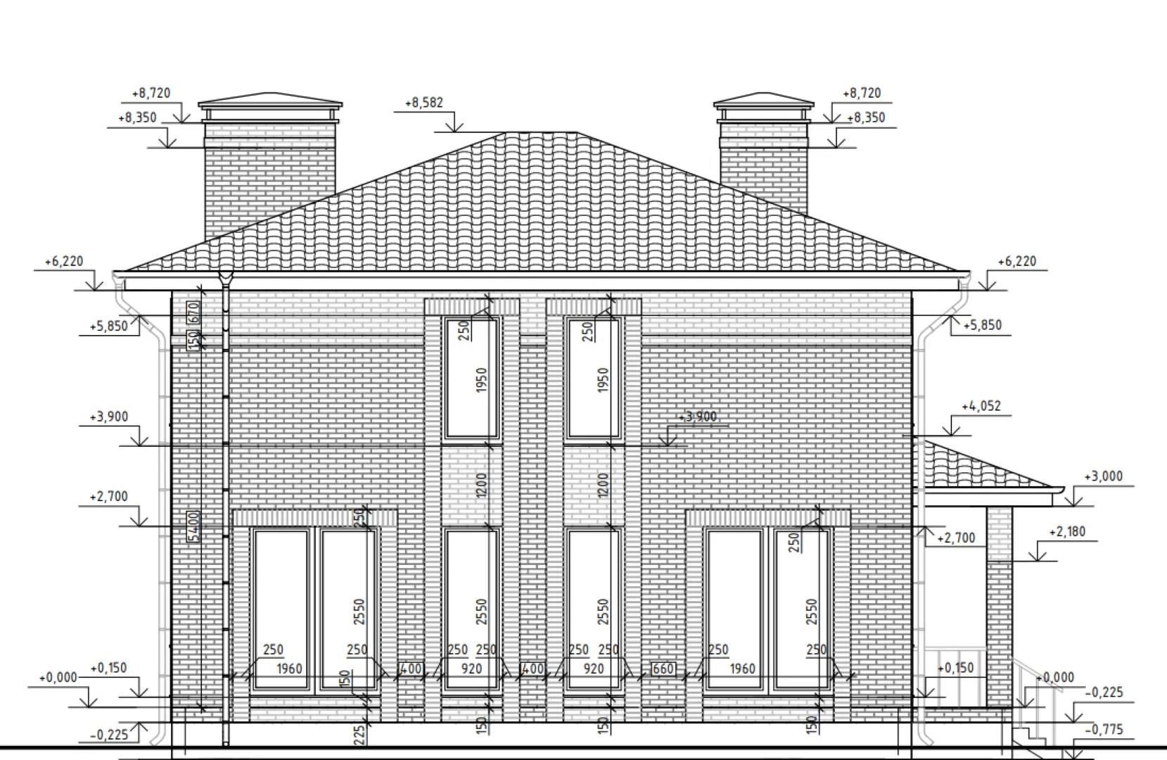
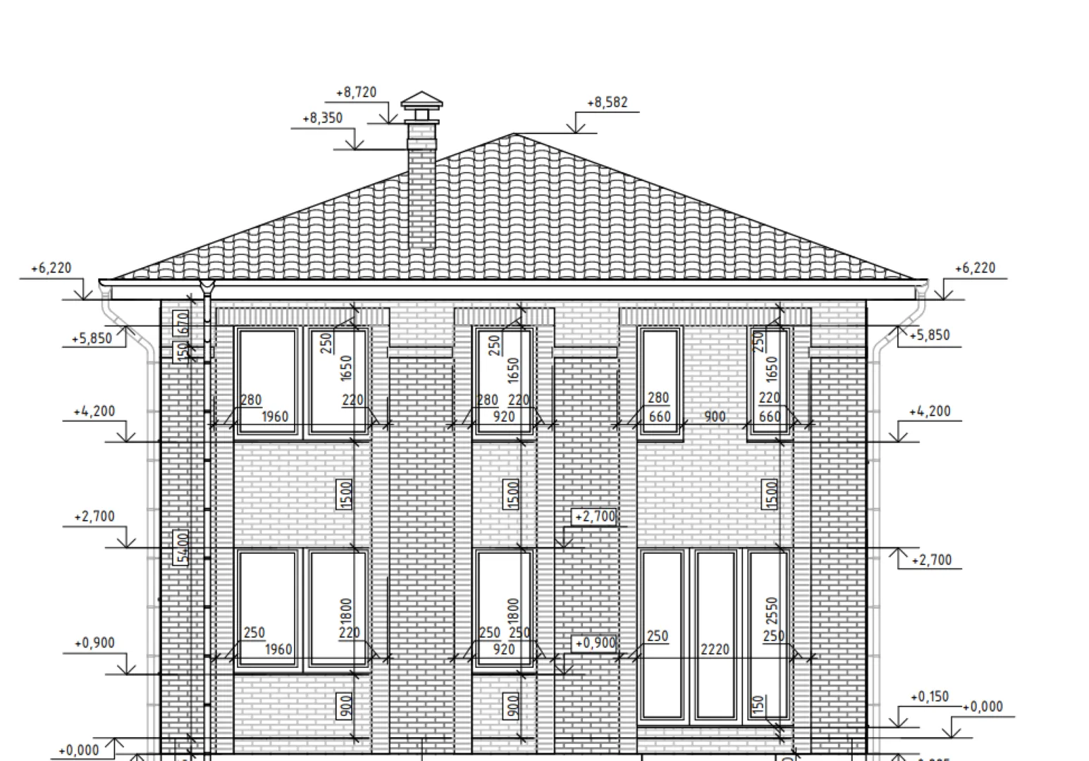
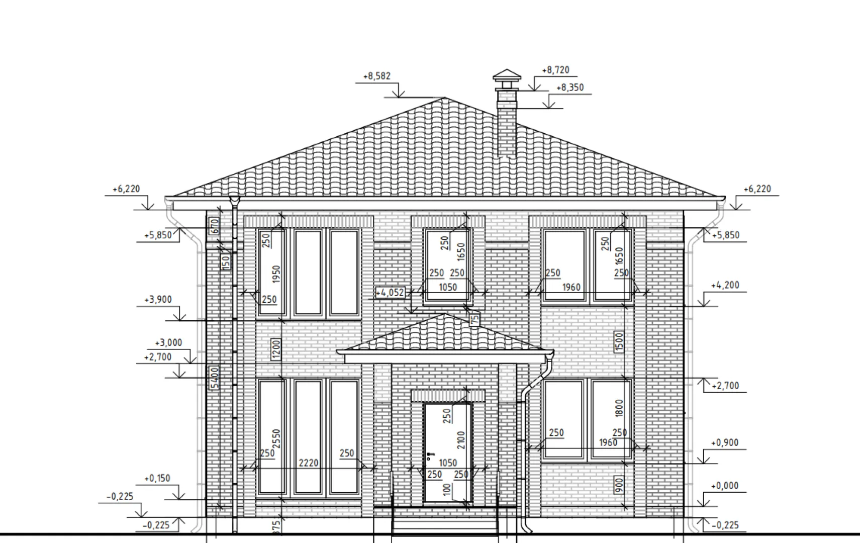
Проект индивидуального жилого двухэтажного дома на 162,01 м 2

Стоимость проекта от:
72 900 ₽
БЕСПЛАТНО! ПРИ ЗАКАЗЕ СТРОИТЕЛЬСТВА
Стоимость строительства от:
11 717 280 ₽
Артикул ART-18128
Дата 26.12.2025
Архитектурный стиль Классический
Количество надземных этажей 2
Круглогодичное проживание Да
Площадь дома 162 м2
Санузлы 3
Спальни 4

Описание

Заживите классикой в новом доме, где каждая деталь продумана до мелочей. Это два‑этажное уютное жильё площадью 162,01 м², выполненное в традиционном архитектурном стиле, но при том с максимальной комфортностью. Кирпичная кладка придаёт фасаду надёжность и теплоту, а просторные окна наполняют пространство мягким, естественным светом, создавая ощущение простора. Большие открытые участки – зал и обеденная зона – плавно переходят в светлую кухню с островом, что делает общение в семье непринуждённым и приятным. Дом сконструирован для круглогодичного проживания: утепленные стены, качественная тепло- и звукоизоляция, а надёжная четырёхскатная кровля гарантируют защиту от непогоды. Внутреннее пространство удобно раскладено: просторные спальни с кладовками, уютные кладовые, изогнутые перегородки создают ощущение уюта, а высокие потолки добавляют воздушность. Всё это делает квартиру живым, гармоничным пространством, подходящим как для молодой семьи, так и для тех, кто ценит комфорт и традиции. Выбирая именно этот проект, вы получаете надёжность, эстетическую привлекательность и практичность. Не хватает балконов, гаража или террасы? Это вовсе не проблема, ведь классический стиль здесь подчёркивает чистую линию и элегантность, а каждый уголок продуман так, чтобы в нем чувствовалась домашняя теплоту и уют. Приглашаем открыть для себя ваш новый, великолепный дом, где классика встречается с современным комфортом.

Характеристики дома

Архитектурный стиль
Автоматизированное регулирование параметров теплоносителя
Нет
Балконы/лоджии
Отсутствуют
Чердачное помещение
Нет
Датчики протечки воды
Да
Эксплуатируемая или зеленая кровля
Нет
Электроснабжение
Центральное
Газоснабжение
Центральное
Изоляция воздушного шума
Нет
Камин
Нет
Класс энергоэффективности
-
Класс энергосбережения
-
Количество надземных этажей
2
Круглогодичное проживание
Да
Материал кровли
Металлочерепица
Материал перекрытий
Сборные железобетонные предварительно напряженные пустотные плиты
Материал внешних стен
Материал внутренних перегородок
Кирпичные
Модульное строительство с конструкциями заводского изготовления
Нет
Объем надземной части
-
Основной материал фасадов
Облицовочный кирпич
Отопление
Индивидуальное
Площадь дома
162 м2
Площадь застройки
110 м2
Подвальное помещение
Да
Показатель компактности здания
-
Приборы учета тепловой энергии
Нет
Пристроенный гараж/крытая автостоянка
Нет
Противопожарная система
Нет
Санузлы
3
Совмещенная кухня-гостиная
Да
Спальни
4
Терраса
Нет
Тип фундамента
Свайно-ростверковый
Толщина внешних стен
510 мм
Толщина внутренних перегородок
120 мм
Улучшенные шумовые характеристики
Нет
Вентиляция
Естественная
Веранда
Нет
Водоотведение
Локальные очистные сооружения
Водоснабжение
Центральное
Высота дома
8 м
Высота потолков
3 м

Планировка

Фасад дома

Александр

Закажите выезд инженера

Александр

Выездной инженер
Закажите выезд инженера для точной диагностики и профессиональной консультации по инженерным системам. Специалист приедет в удобное время, проведёт осмотр, рассчитает стоимость работ и подберёт оптимальные решения для вашего дома.


    Похожие проекты

    Ипотека и
    рассрочка
    Нордика
    Стоимость от:
    4 189 020
    Проект от: 29 700
    Этажей 1
    Санузлы 1
    Спальни 2
    Смотреть
    Ипотека и
    рассрочка
    Загородный дом Барн 153
    Стоимость от:
    7 250 100
    Проект от: 58 500
    Этажей 1
    Санузлы 2
    Спальни 3
    Смотреть
    Ипотека и
    рассрочка
    Хайтек К118
    Стоимость от:
    4 987 260
    Проект от: 38 250
    Этажей 2
    Санузлы 2
    Спальни 3
    Смотреть
    Ипотека и
    рассрочка
    D20+
    Стоимость от:
    6 727 820
    Проект от: 47 700
    Этажей 1
    Санузлы 1
    Спальни 3
    Смотреть
    Ипотека и
    рассрочка
    Мэдисон
    Стоимость от:
    7 365 160
    Проект от: 44 100
    Этажей 1
    Санузлы 2
    Спальни 3
    Смотреть
    Ипотека и
    рассрочка
    Модульный дом FL 103 (C103)
    Стоимость от:
    6 859 710
    Проект от: 55 350
    Этажей 1
    Санузлы 2
    Спальни 3
    Смотреть

    Как узнать стоимость дома

    back
    Оставляете заявку
    Вы заполняете форму на сайте или звоните нам. Менеджер Лайвкрафт связывается с вами для уточнения деталей: тип дома, площадь, материалы, участок строительства.
    back
    Консультация и подбор решения
    Наш специалист помогает выбрать оптимальный тип дома и конструкцию с учётом бюджета, сроков и целей — будь то дом для постоянного проживания или дача.
    back
    Расчёт предварительной стоимости
    Инженер делает первичный расчёт стоимости строительства по вашим параметрам: фундамент, коробка, кровля, отделка. Вы получаете смету с разбивкой по этапам.
    back
    Корректировка и утверждение сметы
    При необходимости вносим изменения — например, замену материалов или сокращение этапов. После согласования формируется окончательная фиксированная смета.
    back
    Заключение договора и старт работ
    После утверждения сметы заключаем официальный договор с гарантией. Вы получаете прозрачный график и точную стоимость — без скрытых расходов.

    Заказать конусльтацию по:Проект индивидуального жилого двухэтажного дома на 162,01 м 2

    Фото 1 Проект индивидуального жилого двухэтажного дома на 162,01 м 2


      Наши
      контакты

      Дмитров
      Опорный проезд 28Б
      (индустриальный парк Ниагара)
      9:00 до 18:00

      Корзина