4.9
Рейтинг на основании 120 отзывов
Дмитров
Опорный проезд 28Б
(индустриальный парк Ниагара)
Бренд "Дмитров-Дело" c 2008 года на рынке строительства в Дмитрове
Звоните 9:00 до 18:00 8 (915) 055-33-61
Бренд "Дмитров-Дело" c 2008 года на рынке строительства в Дмитрове

Проект индивидуального жилого одноэтажного на 154,97 м 2

Стоимость проекта от:
69 300 ₽
БЕСПЛАТНО! ПРИ ЗАКАЗЕ СТРОИТЕЛЬСТВА
Стоимость строительства от:
11 566 280 ₽
Артикул ART-14268
Дата 25.12.2025
Архитектурный стиль Классический
Количество надземных этажей 1
Круглогодичное проживание Да
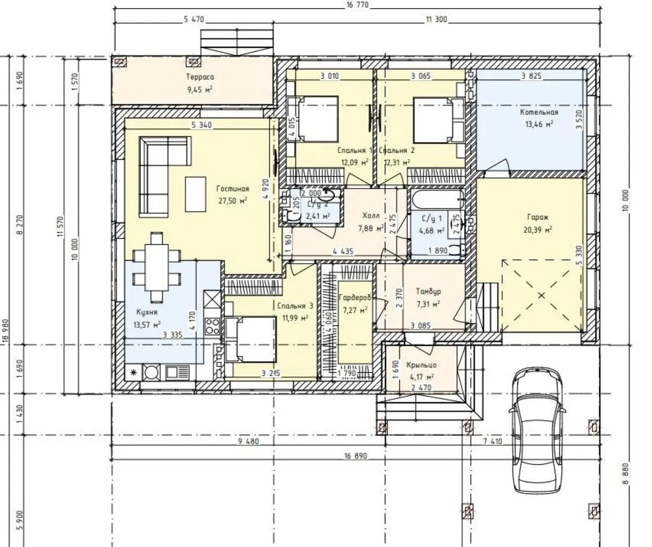
Площадь дома 154 м2
Санузлы 2
Спальни 3

Описание

Добро пожаловать в ваш новый уголок уюта и спокойствия—одноэтажный дом площадью 154,97 м², выполненный в изысканном классическом стиле. Сочетание традиционного кирпичного фасада и аккуратной четырёхскатной (валовой) крыши создает атмосферу надёжности и благородства, а каждая деталь интерьера продумана до мелочей. Всё, что можно пожелать для круглогодичного комфорта, уже реализовано: уютные, светлые комнаты, просторные зоны для отдыха, а также удобный выход на собственную террасу, где можно наслаждаться свежим воздухом и теплом семейных моментов. Отсутствие балконов и вераний позволяет сосредоточиться исключительно на внутреннем пространстве, где каждый квадратный метр использован рационально, а простор в гостиной создаёт идеальные условия для совместных встреч с близкими. Пристроенный гараж и крытая автостоянка избавят от неудобств, связанных с парковкой, а отсутствие чердачного помещения облегчает обслуживание дома. Внутреннее пространство отличается функцией «под ключ», ведь каждая зона уже готова к эксплуатации: современные кухонные установки, изящные шкафы, высококачественные отделочные материалы и удобная планировка, способная удовлетворить даже самые взыскательные требования. Такой дом — это не просто жилище, а настоящее продолжение вашего образа жизни. Элегантность классического фасада, совместимость с повседневными потребностями и продуманная детализация делают его идеальным выбором для тех, кто ценит комфорт, стиль и безупречную функциональность. Приглашаем вас открыть для себя новый уровень уюта и стабильности, который будет сопровождать вас во всех сезонах жизни.

Характеристики дома

Архитектурный стиль
Автоматизированное регулирование параметров теплоносителя
Нет
Балконы/лоджии
Отсутствуют
Чердачное помещение
Нет
Датчики протечки воды
Нет
Эксплуатируемая или зеленая кровля
Нет
Электроснабжение
Центральное
Газоснабжение
Центральное
Изоляция воздушного шума
Нет
Камин
Нет
Класс энергоэффективности
-
Класс энергосбережения
-
Количество надземных этажей
1
Круглогодичное проживание
Да
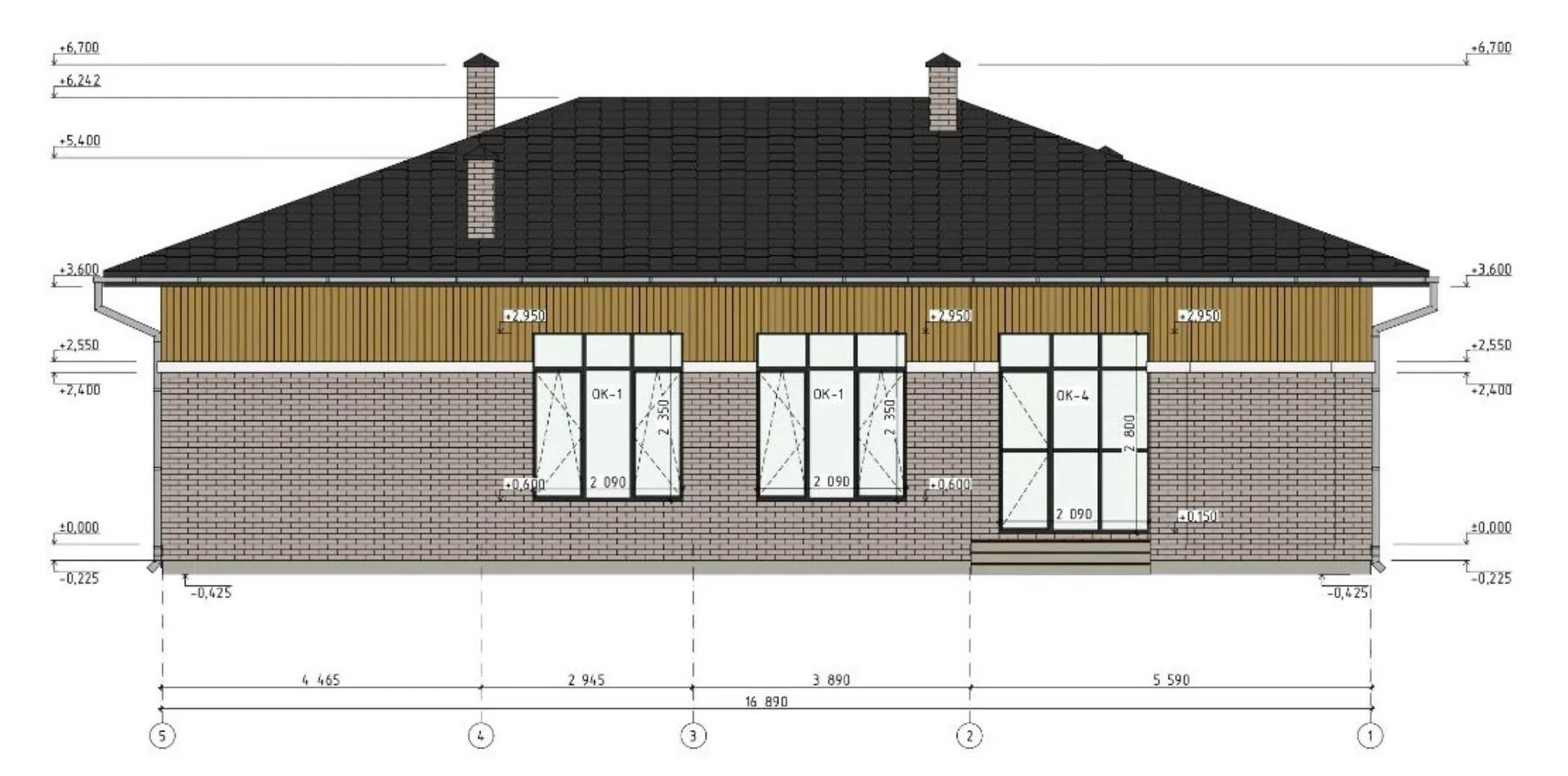
Материал кровли
Металлочерепица
Материал перекрытий
Сборные железобетонные предварительно напряженные пустотные плиты
Материал внешних стен
Материал внутренних перегородок
Кирпичные
Модульное строительство с конструкциями заводского изготовления
Нет
Объем надземной части
-
Основной материал фасадов
Облицовочный кирпич
Отопление
Индивидуальное
Площадь дома
154 м2
Площадь застройки
236 м2
Подвальное помещение
Нет
Показатель компактности здания
-
Приборы учета тепловой энергии
Нет
Пристроенный гараж/крытая автостоянка
Да
Противопожарная система
Нет
Санузлы
2
Совмещенная кухня-гостиная
Нет
Спальни
3
Терраса
Да
Тип фундамента
Свайно-ростверковый
Толщина внешних стен
510 мм
Толщина внутренних перегородок
120 мм
Улучшенные шумовые характеристики
Нет
Вентиляция
Естественная
Веранда
Нет
Водоотведение
Локальные очистные сооружения
Водоснабжение
Центральное
Высота дома
6 м
Высота потолков
3 м

Планировка

Фасад дома

Александр

Закажите выезд инженера

Александр

Выездной инженер
Закажите выезд инженера для точной диагностики и профессиональной консультации по инженерным системам. Специалист приедет в удобное время, проведёт осмотр, рассчитает стоимость работ и подберёт оптимальные решения для вашего дома.


    Похожие проекты

    Ипотека и
    рассрочка
    Садовод 7х9
    Стоимость от:
    3 237 080
    Проект от: 25 200
    Этажей 1
    Санузлы 1
    Спальни 2
    Смотреть
    Ипотека и
    рассрочка
    Барнхаус-шале с панорамным остеклением Lato-85 (3 спальни +сауна)
    Стоимость от:
    4 227 630
    Проект от: 31 050
    Этажей 1
    Санузлы 1
    Спальни 3
    Смотреть
    Ипотека и
    рассрочка
    Двухэтажный дом с террасой 59-22КД
    Стоимость от:
    9 828 360
    Проект от: 67 050
    Этажей 2
    Санузлы 2
    Спальни 4
    Смотреть
    Ипотека и
    рассрочка
    Двухэтажный дом 130 кв.м. РП-2
    Стоимость от:
    9 079 200
    Проект от: 58 500
    Этажей 2
    Санузлы 2
    Спальни 3
    Смотреть
    Ипотека и
    рассрочка
    Моя Вселенная
    Стоимость от:
    9 745 560
    Проект от: 62 100
    Этажей 1
    Санузлы 2
    Спальни 3
    Смотреть
    Ипотека и
    рассрочка
    Одноэтажная гармония пространства
    Стоимость от:
    9 901 760
    Проект от: 57 600
    Этажей 1
    Санузлы 1
    Спальни 2
    Смотреть

    Как узнать стоимость дома

    back
    Оставляете заявку
    Вы заполняете форму на сайте или звоните нам. Менеджер Лайвкрафт связывается с вами для уточнения деталей: тип дома, площадь, материалы, участок строительства.
    back
    Консультация и подбор решения
    Наш специалист помогает выбрать оптимальный тип дома и конструкцию с учётом бюджета, сроков и целей — будь то дом для постоянного проживания или дача.
    back
    Расчёт предварительной стоимости
    Инженер делает первичный расчёт стоимости строительства по вашим параметрам: фундамент, коробка, кровля, отделка. Вы получаете смету с разбивкой по этапам.
    back
    Корректировка и утверждение сметы
    При необходимости вносим изменения — например, замену материалов или сокращение этапов. После согласования формируется окончательная фиксированная смета.
    back
    Заключение договора и старт работ
    После утверждения сметы заключаем официальный договор с гарантией. Вы получаете прозрачный график и точную стоимость — без скрытых расходов.

    Заказать конусльтацию по:Проект индивидуального жилого одноэтажного на 154,97 м 2

    Фото 1 Проект индивидуального жилого одноэтажного на 154,97 м 2


      Наши
      контакты

      Дмитров
      Опорный проезд 28Б
      (индустриальный парк Ниагара)
      9:00 до 18:00

      Корзина