4.9
Рейтинг на основании 120 отзывов
Дмитров
Опорный проезд 28Б
(индустриальный парк Ниагара)
Бренд "Дмитров-Дело" c 2008 года на рынке строительства в Дмитрове
Звоните 9:00 до 18:00 8 (915) 055-33-61
Бренд "Дмитров-Дело" c 2008 года на рынке строительства в Дмитрове

Проект каркасного дома Лестер

Стоимость проекта от:
35 550 ₽
БЕСПЛАТНО! ПРИ ЗАКАЗЕ СТРОИТЕЛЬСТВА
Стоимость строительства от:
4 392 795 ₽
Артикул ART-5959
Дата 26.12.2025
Архитектурный стиль Барнхаус
Количество надземных этажей 1
Круглогодичное проживание Да
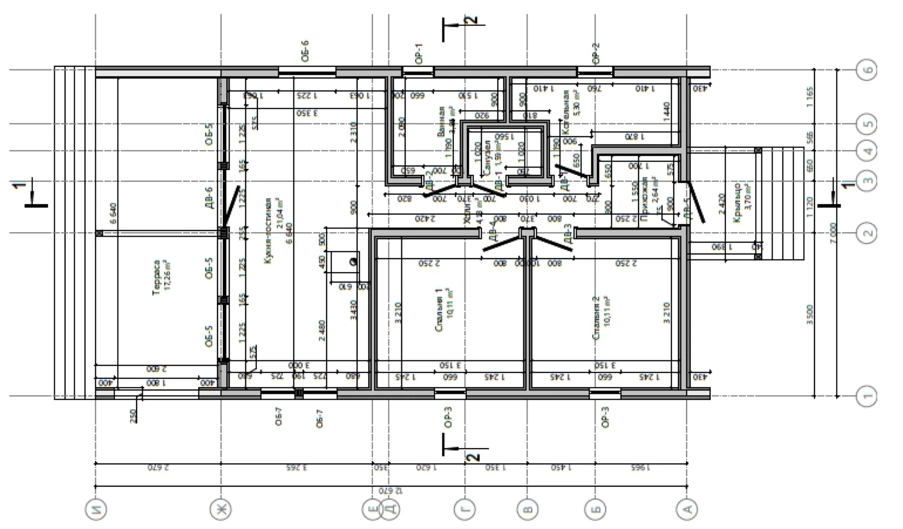
Площадь дома 79 м2
Санузлы 1
Спальни 2

Описание

Представляем вам каркасный дом Лестер – современный уголок уюта, где традиционный барнхаус встречается с природной гармонией. Один надземный этаж, обвешанный массивными деревянными панелями, открывает просторные светлые комнаты, пропитанные атмосферой простоты и тепло. Крыша двухскатная, словно простая, но надёжная «крыша надёжных привычек», обрамляющая интерьер, в который проникают живописные узоры леса. Базовый набор – от беззаботных летних дней до зима‑небольших бурь. В доме предусмотрено чердачное помещение, которое можно превратить в уютную гостиную, кабинет или кладбище секретов. Терраса, выходящая из жилого этажа, приглашает насладиться рассветами и закатами, создавая идеальное место для завтраков в компании любимого напитка. Пристроенного гаража нет, но открытость и природа компенсируют это, давая вам свободу наслаждаться просторами вокруг и в душе. Весь дом выдержан в барнхаус‑стиле с его свободным планом, высоким потолком и нежным, но при этом мощным внешним обликом. Деревянные каркасные стены защищают от непогоды и дарят ощущение «быть там, где ты есть». Приглашаем вас переступить порог в этом тихом убежище и открыть новые горизонты для вашего семейного счастья.

Характеристики дома

Архитектурный стиль
Автоматизированное регулирование параметров теплоносителя
Да
Балконы/лоджии
Отсутствуют
Чердачное помещение
Да
Датчики протечки воды
Нет
Эксплуатируемая или зеленая кровля
Нет
Электроснабжение
2 варианта
Газоснабжение
2 варианта
Изоляция воздушного шума
Да
Камин
Нет
Класс энергоэффективности
A+
Класс энергосбережения
A+
Количество надземных этажей
1
Круглогодичное проживание
Да
Материал кровли
Фальцевая кровля Кликфальц
Материал перекрытий
Деревянные
Материал внешних стен
Материал внутренних перегородок
Деревянные
Модульное строительство с конструкциями заводского изготовления
Нет
Объем надземной части
239 м3
Основной материал фасадов
Фальцевая кровля кликфальц
Отопление
2 варианта
Площадь дома
79 м2
Площадь застройки
88 м2
Подвальное помещение
Нет
Показатель компактности здания
1.1
Приборы учета тепловой энергии
Да
Пристроенный гараж/крытая автостоянка
Нет
Противопожарная система
Нет
Санузлы
1
Совмещенная кухня-гостиная
Да
Спальни
2
Терраса
Да
Тип фундамента
Свайно-винтовой
Тип кровли
Толщина внешних стен
230 мм
Толщина внутренних перегородок
150 мм
Улучшенные шумовые характеристики
Да
Вентиляция
3 варианта
Веранда
Нет
Водоотведение
2 варианта
Водоснабжение
2 варианта
Высота дома
4.84 м
Высота потолков
2.4 м

Планировка

Фасад дома

Александр

Закажите выезд инженера

Александр

Выездной инженер
Закажите выезд инженера для точной диагностики и профессиональной консультации по инженерным системам. Специалист приедет в удобное время, проведёт осмотр, рассчитает стоимость работ и подберёт оптимальные решения для вашего дома.


    Похожие проекты

    Ипотека и
    рассрочка
    Дом с навесом для машины и террасой ,в стиле «PLAIN»
    Стоимость от:
    11 373 120
    Проект от: 70 200
    Этажей 1
    Санузлы 2
    Спальни 3
    Смотреть
    Ипотека и
    рассрочка
    ДРЕВЕСНЫЙ КОМФОРТ
    Стоимость от:
    3 820 200
    Проект от: 29 250
    Этажей 2
    Санузлы 1
    Спальни 2
    Смотреть
    Ипотека и
    рассрочка
    Двухэтажный каркасный дом «БС-278»
    Стоимость от:
    8 332 560
    Проект от: 53 550
    Этажей 2
    Санузлы 2
    Спальни 3
    Смотреть
    Ипотека и
    рассрочка
    D179-2
    Стоимость от:
    14 266 560
    Проект от: 98 550
    Этажей 2
    Санузлы 2
    Спальни 3
    Смотреть
    Ипотека и
    рассрочка
    Загородный дом из клееного бруса «Эней»
    Стоимость от:
    5 331 480
    Проект от: 37 800
    Этажей 1
    Санузлы 1
    Спальни 2
    Смотреть
    Ипотека и
    рассрочка
    SKY HOUSE
    Стоимость от:
    11 426 140
    Проект от: 75 150
    Этажей 1
    Санузлы 2
    Спальни 3
    Смотреть

    Как узнать стоимость дома

    back
    Оставляете заявку
    Вы заполняете форму на сайте или звоните нам. Менеджер Лайвкрафт связывается с вами для уточнения деталей: тип дома, площадь, материалы, участок строительства.
    back
    Консультация и подбор решения
    Наш специалист помогает выбрать оптимальный тип дома и конструкцию с учётом бюджета, сроков и целей — будь то дом для постоянного проживания или дача.
    back
    Расчёт предварительной стоимости
    Инженер делает первичный расчёт стоимости строительства по вашим параметрам: фундамент, коробка, кровля, отделка. Вы получаете смету с разбивкой по этапам.
    back
    Корректировка и утверждение сметы
    При необходимости вносим изменения — например, замену материалов или сокращение этапов. После согласования формируется окончательная фиксированная смета.
    back
    Заключение договора и старт работ
    После утверждения сметы заключаем официальный договор с гарантией. Вы получаете прозрачный график и точную стоимость — без скрытых расходов.

    Заказать конусльтацию по:Проект каркасного дома Лестер

    Фото 1 Проект каркасного дома Лестер


      Наши
      контакты

      Дмитров
      Опорный проезд 28Б
      (индустриальный парк Ниагара)
      9:00 до 18:00

      Корзина