4.9
Рейтинг на основании 120 отзывов
Дмитров
Опорный проезд 28Б
(индустриальный парк Ниагара)
Бренд "Дмитров-Дело" c 2008 года на рынке строительства в Дмитрове
Звоните 9:00 до 18:00 8 (915) 055-33-61
Бренд "Дмитров-Дело" c 2008 года на рынке строительства в Дмитрове

Проект КВ-1-118В

Стоимость проекта от:
49 950 ₽
БЕСПЛАТНО! ПРИ ЗАКАЗЕ СТРОИТЕЛЬСТВА
Стоимость строительства от:
8 833 220 ₽
Артикул ART-13447
Дата 25.12.2025
Архитектурный стиль Скандинавский
Количество надземных этажей 1
Круглогодичное проживание Да
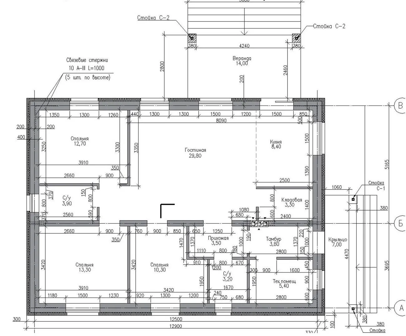
Площадь дома 111 м2
Санузлы 2
Спальни 3

Описание

Добро пожаловать в уютный уголок, где каждая деталь олицетворяет скандинавскую простоту и современную функциональность. Наш дом проекта **КВ‑1‑118В** – это одноэтажный шедевр, созданный для круглогодичного проживания: прочные газобетонные блоки внешних стен дарят тепло и шумоизоляцию, а двухскатная крыша с классической элегантностью защищает от непогоды, создавая ощущение неприкосновенности и уюта. Внутреннее пространство раскрывается элегантными открытыми перегородками и светлыми тоннами, усиливающими ощущение простора. Вечерние прогулки по просторной веранде станут вашим личным ритуалом, где можно насладиться ароматом свежего воздуха и звуками природы, не покидая своего дома. Отсутствие балконов и подъездных гаражей позволяет сосредоточиться на гармонии форм и лаконичных линиях, а отсутствие чердая делает интерьер ещё более адаптивным к вашим потребностям. Этот дом – идеальный баланс простоты и современности, где каждый элемент обдуман до мелочей. Здесь вы найдёте тихое убежище от городской суеты, а каждая комната станет оазисом уюта и вдохновения. Вдохните скандинавский дух, ощутите тепло и гармонию, которые только настоящий дом может предложить. Отличный выбор для тех, кто ценит комфорт, эстетику и возможность жить в гармонии с природой.

Характеристики дома

Архитектурный стиль
Автоматизированное регулирование параметров теплоносителя
Нет
Балконы/лоджии
Отсутствуют
Чердачное помещение
Нет
Датчики протечки воды
Нет
Эксплуатируемая или зеленая кровля
Нет
Электроснабжение
Центральное
Газоснабжение
Центральное
Изоляция воздушного шума
Нет
Камин
Нет
Класс энергоэффективности
-
Класс энергосбережения
-
Количество надземных этажей
1
Круглогодичное проживание
Да
Материал кровли
Металлочерепица
Материал перекрытий
Деревянные
Материал внешних стен
Материал внутренних перегородок
Блочные
Модульное строительство с конструкциями заводского изготовления
Нет
Объем надземной части
577 м3
Основной материал фасадов
Штукатурка
Отопление
Индивидуальное
Площадь дома
111 м2
Площадь застройки
142 м2
Подвальное помещение
Нет
Показатель компактности здания
-
Приборы учета тепловой энергии
Нет
Пристроенный гараж/крытая автостоянка
Нет
Противопожарная система
Нет
Санузлы
2
Совмещенная кухня-гостиная
Да
Спальни
3
Терраса
Нет
Тип фундамента
Ленточный
Тип кровли
Толщина внешних стен
300 мм
Толщина внутренних перегородок
100 мм
Улучшенные шумовые характеристики
Нет
Вентиляция
Естественная
Веранда
Да
Водоотведение
Центральное
Водоснабжение
Центральное
Высота дома
5 м
Высота потолков
3 м

Планировка

Фасад дома

Александр

Закажите выезд инженера

Александр

Выездной инженер
Закажите выезд инженера для точной диагностики и профессиональной консультации по инженерным системам. Специалист приедет в удобное время, проведёт осмотр, рассчитает стоимость работ и подберёт оптимальные решения для вашего дома.


    Похожие проекты

    Ипотека и
    рассрочка
    Авторский проект «Памир»
    Стоимость от:
    8 520 480
    Проект от: 54 900
    Этажей 2
    Санузлы 2
    Спальни 5
    Смотреть
    Ипотека и
    рассрочка
    Проект дома «BERGEN»
    Стоимость от:
    12 170 640
    Проект от: 76 950
    Этажей 2
    Санузлы 2
    Спальни 5
    Смотреть
    Ипотека и
    рассрочка
    Типовой проект № 2 1-этаж
    Стоимость от:
    6 132 940
    Проект от: 34 650
    Этажей 1
    Санузлы 1
    Спальни 2
    Смотреть
    Ипотека и
    рассрочка
    Каркасный дом по проекту «Уитби»
    Стоимость от:
    3 539 760
    Проект от: 26 550
    Этажей 2
    Санузлы 2
    Спальни 2
    Смотреть
    Ипотека и
    рассрочка
    Одноэтажный дом «Аврора-4»
    Стоимость от:
    6 371 200
    Проект от: 36 000
    Этажей 1
    Санузлы 1
    Спальни 3
    Смотреть
    Ипотека и
    рассрочка
    ФД 77
    Стоимость от:
    10 092 120
    Проект от: 68 850
    Этажей 2
    Санузлы 1
    Спальни 3
    Смотреть

    Как узнать стоимость дома

    back
    Оставляете заявку
    Вы заполняете форму на сайте или звоните нам. Менеджер Лайвкрафт связывается с вами для уточнения деталей: тип дома, площадь, материалы, участок строительства.
    back
    Консультация и подбор решения
    Наш специалист помогает выбрать оптимальный тип дома и конструкцию с учётом бюджета, сроков и целей — будь то дом для постоянного проживания или дача.
    back
    Расчёт предварительной стоимости
    Инженер делает первичный расчёт стоимости строительства по вашим параметрам: фундамент, коробка, кровля, отделка. Вы получаете смету с разбивкой по этапам.
    back
    Корректировка и утверждение сметы
    При необходимости вносим изменения — например, замену материалов или сокращение этапов. После согласования формируется окончательная фиксированная смета.
    back
    Заключение договора и старт работ
    После утверждения сметы заключаем официальный договор с гарантией. Вы получаете прозрачный график и точную стоимость — без скрытых расходов.

    Заказать конусльтацию по:Проект КВ-1-118В

    Фото 1 Проект КВ-1-118В


      Наши
      контакты

      Дмитров
      Опорный проезд 28Б
      (индустриальный парк Ниагара)
      9:00 до 18:00

      Корзина