4.9
Рейтинг на основании 120 отзывов
Дмитров
Опорный проезд 28Б
(индустриальный парк Ниагара)
Бренд "Дмитров-Дело" c 2008 года на рынке строительства в Дмитрове
Звоните 9:00 до 18:00 8 (915) 055-33-61
Бренд "Дмитров-Дело" c 2008 года на рынке строительства в Дмитрове

Проект одноэтажного дома Ново Отрадное

Стоимость проекта от:
51 300 ₽
БЕСПЛАТНО! ПРИ ЗАКАЗЕ СТРОИТЕЛЬСТВА
Стоимость строительства от:
7 938 480 ₽
Артикул ART-18068
Дата 26.12.2025
Архитектурный стиль Европейский
Количество надземных этажей 1
Круглогодичное проживание Да
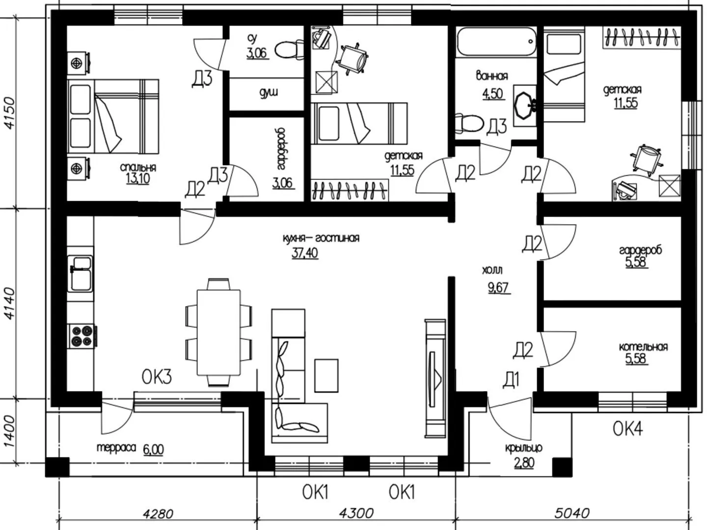
Площадь дома 114 м2
Санузлы 2
Спальни 3

Описание

Вас приглашают в уют и гармонию, где каждая деталь раскрывает европейскую элегантность и непременный комфорт. Одноэтажный дом в Ново Отрадном с деревянным каркасом и комбинированной кровлей выглядит как тихий шедевр в стиле «село с европейским акцентом». Внутри уютно распределены пространства для повседневной жизни, а большие окна пропускают свет, создавая ощущение простора и прохлады независимо от сезона. Этот дом — настоящий круглогодичный укрыток, где мягкая древесная атмосфера согревает и успокаивает, а европейский стиль придаёт эстетическое спокойствие и современный шарм. Терраса, открывшаяся на живописный уголок вашего сада, приглашает к долгим летним вечерам, к романтическим утрам с чашкой кофе и к простому наслаждению видом на природу. В интерьере сочетаются мягкие нейтральные тона и натуральные материалы, позволяющие вам полностью расслабиться после трудного дня. Здесь нет лишних балконов — они заменены просторной площадью, где растет сад, а свежий воздух проникает прямо в вашу семейную жизнь. Это дом, где качество, тепло и европейская эстетика сливаются, чтобы стать вашим личным уголком уюта.

Характеристики дома

Архитектурный стиль
Автоматизированное регулирование параметров теплоносителя
Да
Балконы/лоджии
Отсутствуют
Чердачное помещение
Нет
Датчики протечки воды
Да
Эксплуатируемая или зеленая кровля
Нет
Электроснабжение
Индивидуальное
Газоснабжение
Не предусмотрено
Изоляция воздушного шума
Нет
Камин
Нет
Класс энергоэффективности
-
Класс энергосбережения
-
Количество надземных этажей
1
Круглогодичное проживание
Да
Материал кровли
Металлочерепица
Материал перекрытий
Деревянные
Материал внешних стен
Материал внутренних перегородок
Деревянные
Модульное строительство с конструкциями заводского изготовления
Нет
Объем надземной части
729 м3
Основной материал фасадов
Облицовочный кирпич
Отопление
Индивидуальное
Площадь дома
114 м2
Площадь застройки
141 м2
Подвальное помещение
Нет
Показатель компактности здания
-
Приборы учета тепловой энергии
Да
Пристроенный гараж/крытая автостоянка
Нет
Противопожарная система
Нет
Санузлы
2
Совмещенная кухня-гостиная
Да
Спальни
3
Терраса
Да
Тип фундамента
Свайно-ростверковый
Тип кровли
Толщина внешних стен
200 мм
Толщина внутренних перегородок
150 мм
Улучшенные шумовые характеристики
Да
Вентиляция
Принудительная
Веранда
Нет
Водоотведение
Локальные очистные сооружения
Водоснабжение
Индивидуальное
Высота дома
5.1 м
Высота потолков
3 м

Планировка

Фасад дома

Александр

Закажите выезд инженера

Александр

Выездной инженер
Закажите выезд инженера для точной диагностики и профессиональной консультации по инженерным системам. Специалист приедет в удобное время, проведёт осмотр, рассчитает стоимость работ и подберёт оптимальные решения для вашего дома.


    Похожие проекты

    Ипотека и
    рассрочка
    Загородный дом — МОНЕ 54 -ШТ+ИБ
    Стоимость от:
    4 789 400
    Проект от: 31 500
    Этажей 1
    Санузлы 1
    Спальни 2
    Смотреть
    Ипотека и
    рассрочка
    Загородный дом-182
    Стоимость от:
    12 852 840
    Проект от: 81 900
    Этажей 1
    Санузлы 2
    Спальни 4
    Смотреть
    Ипотека и
    рассрочка
    К 1-52
    Стоимость от:
    3 839 220
    Проект от: 22 950
    Этажей 1
    Санузлы 1
    Спальни 2
    Смотреть
    Ипотека и
    рассрочка
    «Байройт-150»
    Стоимость от:
    10 476 000
    Проект от: 67 500
    Этажей 2
    Санузлы 2
    Спальни 4
    Смотреть
    Ипотека и
    рассрочка
    Витязь
    Стоимость от:
    2 659 030
    Проект от: 20 700
    Этажей 1
    Санузлы 1
    Спальни 2
    Смотреть
    Ипотека и
    рассрочка
    Дом из профилированного бруса
    Стоимость от:
    6 917 460
    Проект от: 47 250
    Этажей 2
    Санузлы 1
    Спальни 1
    Смотреть

    Как узнать стоимость дома

    back
    Оставляете заявку
    Вы заполняете форму на сайте или звоните нам. Менеджер Лайвкрафт связывается с вами для уточнения деталей: тип дома, площадь, материалы, участок строительства.
    back
    Консультация и подбор решения
    Наш специалист помогает выбрать оптимальный тип дома и конструкцию с учётом бюджета, сроков и целей — будь то дом для постоянного проживания или дача.
    back
    Расчёт предварительной стоимости
    Инженер делает первичный расчёт стоимости строительства по вашим параметрам: фундамент, коробка, кровля, отделка. Вы получаете смету с разбивкой по этапам.
    back
    Корректировка и утверждение сметы
    При необходимости вносим изменения — например, замену материалов или сокращение этапов. После согласования формируется окончательная фиксированная смета.
    back
    Заключение договора и старт работ
    После утверждения сметы заключаем официальный договор с гарантией. Вы получаете прозрачный график и точную стоимость — без скрытых расходов.

    Заказать конусльтацию по:Проект одноэтажного дома Ново Отрадное

    Фото 1 Проект одноэтажного дома Ново Отрадное


      Наши
      контакты

      Дмитров
      Опорный проезд 28Б
      (индустриальный парк Ниагара)
      9:00 до 18:00

      Корзина