4.9
Рейтинг на основании 120 отзывов
Дмитров
Опорный проезд 28Б
(индустриальный парк Ниагара)
Бренд "Дмитров-Дело" c 2008 года на рынке строительства в Дмитрове
Звоните 9:00 до 18:00 8 (915) 055-33-61
Бренд "Дмитров-Дело" c 2008 года на рынке строительства в Дмитрове

Проект одноэтажного дома на 98 м2

Стоимость проекта от:
44 100 ₽
БЕСПЛАТНО! ПРИ ЗАКАЗЕ СТРОИТЕЛЬСТВА
Стоимость строительства от:
7 365 160 ₽
Артикул ART-18597
Дата 26.12.2025
Архитектурный стиль Классический
Количество надземных этажей 1
Круглогодичное проживание Да
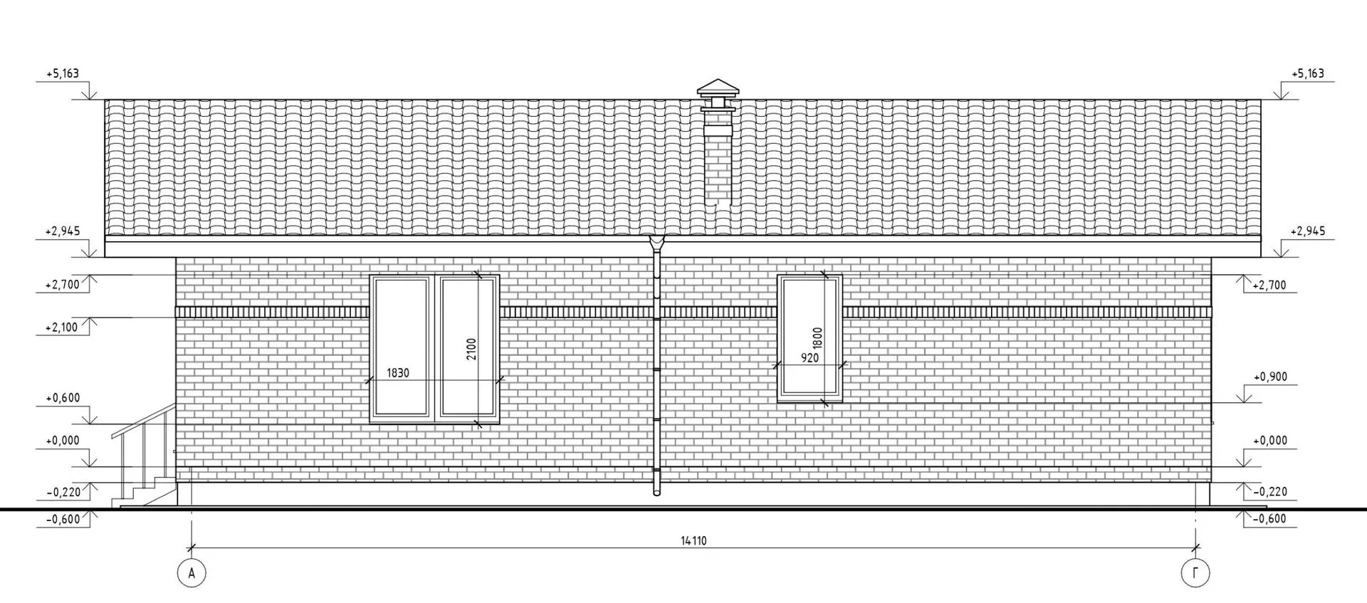
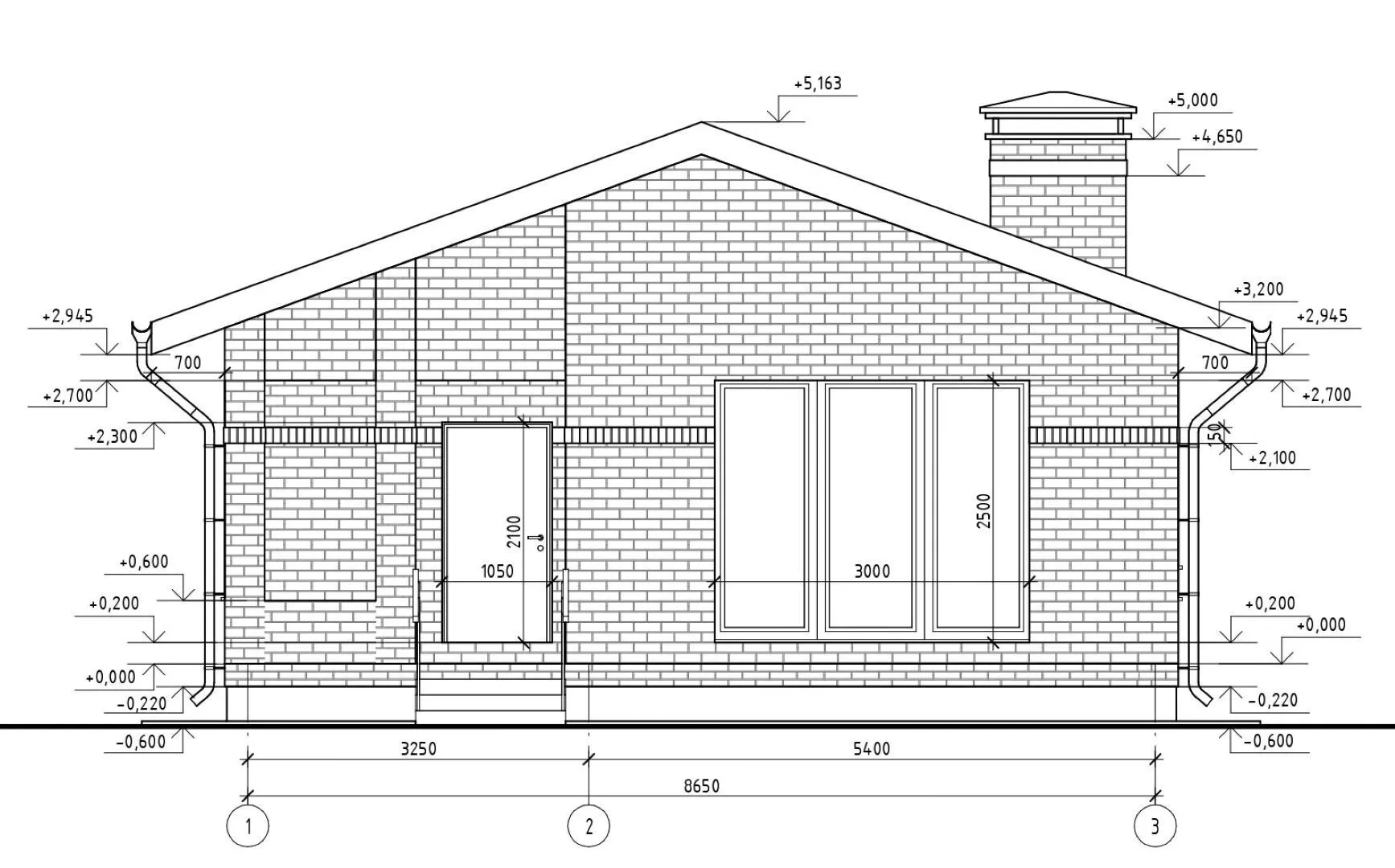
Площадь дома 98 м2
Санузлы 2
Спальни 3

Описание

Ваш идеальный дом уже готов к встрече с миром: это изящное одноэтажное строение площадью 98 м², созданное в безмятежном классическом стиле. Каменные стены из качественного кирпича не только придают зданию неповторимый характер, но и обеспечивают тепло и защиту от внешних факторов. Крутая двускатная крыша подчёркивает традиционность фасада, а открытые просторные комнаты пропитаны солнцем, создавая уютную атмосферу круглый год. Внутренняя планировка продумана до мелочей: светлый центр позволяет легко регулировать пространство под ваши потребности, а компактные, но функциональные детали делают каждый уголок удобным для ежедневной жизни. Открытая кухня, соединённая с гостиной, создаёт ощущение единства и просторов, идеально подходя для семейных посиделок и вечеров в компании друзей. В доме предусмотрены достаточные зоны для отдыха и развлечений, оставляя вашему дню свободное пространство для творчества и комфорта. Благодаря своему беззавидному расположению и продуманному дизайну, этот дом станет местом, где хочется возвращаться. Лаконичные линии, классические пропорции и естественные материалы создают гармонию с окружающей средой, превращая каждый момент, проведённый здесь, в настоящее вдохновение. Если вы ищете дом, объединяющий комфорт, стиль и надежность, этот 98‑метровый уголок — ваш лучший выбор.

Характеристики дома

Архитектурный стиль
Автоматизированное регулирование параметров теплоносителя
Нет
Балконы/лоджии
Отсутствуют
Чердачное помещение
Нет
Датчики протечки воды
Нет
Эксплуатируемая или зеленая кровля
Нет
Электроснабжение
Центральное
Газоснабжение
Центральное
Изоляция воздушного шума
Нет
Камин
Нет
Класс энергоэффективности
-
Класс энергосбережения
-
Количество надземных этажей
1
Круглогодичное проживание
Да
Материал кровли
Металлочерепица
Материал перекрытий
Сборные железобетонные предварительно напряженные пустотные плиты
Материал внешних стен
Материал внутренних перегородок
Кирпичные
Модульное строительство с конструкциями заводского изготовления
Нет
Объем надземной части
-
Основной материал фасадов
Облицовочный кирпич
Отопление
Индивидуальное
Площадь дома
98 м2
Площадь застройки
133 м2
Подвальное помещение
Нет
Показатель компактности здания
-
Приборы учета тепловой энергии
Нет
Пристроенный гараж/крытая автостоянка
Нет
Противопожарная система
Нет
Санузлы
2
Совмещенная кухня-гостиная
Да
Спальни
3
Терраса
Нет
Тип фундамента
Свайно-ростверковый
Тип кровли
Толщина внешних стен
510 мм
Толщина внутренних перегородок
120 мм
Улучшенные шумовые характеристики
Нет
Вентиляция
Естественная
Веранда
Нет
Водоотведение
Локальные очистные сооружения
Водоснабжение
Центральное
Высота дома
5 м
Высота потолков
3 м

Планировка

Фасад дома

Александр

Закажите выезд инженера

Александр

Выездной инженер
Закажите выезд инженера для точной диагностики и профессиональной консультации по инженерным системам. Специалист приедет в удобное время, проведёт осмотр, рассчитает стоимость работ и подберёт оптимальные решения для вашего дома.


    Похожие проекты

    Ипотека и
    рассрочка
    Жилой дом Уют 1.0
    Стоимость от:
    11 396 320
    Проект от: 68 400
    Этажей 3
    Санузлы 1
    Спальни 3
    Смотреть
    Ипотека и
    рассрочка
    Двухэтажный проект дома «Райт»
    Стоимость от:
    11 717 280
    Проект от: 72 900
    Этажей 2
    Санузлы 3
    Спальни 3
    Смотреть
    Ипотека и
    рассрочка
    Одноэтажный загородный дом «Уют»
    Стоимость от:
    9 540 740
    Проект от: 57 150
    Этажей 1
    Санузлы 2
    Спальни 3
    Смотреть
    Ипотека и
    рассрочка
    Тарлаши 12322
    Стоимость от:
    9 315 680
    Проект от: 55 800
    Этажей 1
    Санузлы 2
    Спальни 3
    Смотреть
    Ипотека и
    рассрочка
    Проект 5
    Стоимость от:
    5 191 340
    Проект от: 30 150
    Этажей 1
    Санузлы 1
    Спальни 2
    Смотреть
    Ипотека и
    рассрочка
    Проект мансардного дома №9
    Стоимость от:
    8 166 960
    Проект от: 49 050
    Этажей 2
    Санузлы 2
    Спальни 3
    Смотреть

    Как узнать стоимость дома

    back
    Оставляете заявку
    Вы заполняете форму на сайте или звоните нам. Менеджер Лайвкрафт связывается с вами для уточнения деталей: тип дома, площадь, материалы, участок строительства.
    back
    Консультация и подбор решения
    Наш специалист помогает выбрать оптимальный тип дома и конструкцию с учётом бюджета, сроков и целей — будь то дом для постоянного проживания или дача.
    back
    Расчёт предварительной стоимости
    Инженер делает первичный расчёт стоимости строительства по вашим параметрам: фундамент, коробка, кровля, отделка. Вы получаете смету с разбивкой по этапам.
    back
    Корректировка и утверждение сметы
    При необходимости вносим изменения — например, замену материалов или сокращение этапов. После согласования формируется окончательная фиксированная смета.
    back
    Заключение договора и старт работ
    После утверждения сметы заключаем официальный договор с гарантией. Вы получаете прозрачный график и точную стоимость — без скрытых расходов.

    Заказать конусльтацию по:Проект одноэтажного дома на 98 м2

    Фото 1 Проект одноэтажного дома на 98 м2


      Наши
      контакты

      Дмитров
      Опорный проезд 28Б
      (индустриальный парк Ниагара)
      9:00 до 18:00

      Корзина