4.9
Рейтинг на основании 120 отзывов
Дмитров
Опорный проезд 28Б
(индустриальный парк Ниагара)
Бренд "Дмитров-Дело" c 2008 года на рынке строительства в Дмитрове
Звоните 9:00 до 18:00 8 (915) 055-33-61
Бренд "Дмитров-Дело" c 2008 года на рынке строительства в Дмитрове

Проект одноэтажного дома «Дамаск»

Стоимость проекта от:
56 700 ₽
Стоимость строительства от:
8 620 920 ₽
Артикул ART-14271
Дата 25.12.2025
Архитектурный стиль Скандинавский
Количество надземных этажей 1
Круглогодичное проживание Да
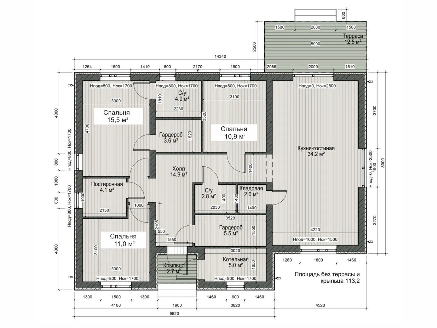
Площадь дома 126 м2
Санузлы 2
Спальни 3

Описание

Сокровищем уюта станет дома «Дамаск» – одноэтажный шедевр, созданный для тех, кто ценит гармонию и спокойствие каждый день года. Внутри царит просторный свет, приправленный лаконичной скандинавской эстетикой: простые линии, натуральные материалы и мягкая теплая палитра приглашают насладиться моментами домашнего тепла. Благодаря грамотному планированию пространство позволяет удобно обуставить дом, а наличие чердачного помещения открывает дополнительные варианты хранения или превращения в творческую мастерскую. Крыша в форме четырёхскатных вальмов, а стены из керамзитобетонных блоков придают ему прочность и теплоизоляцию, обеспечивая комфорт даже в самые холодные недели. Лапти и открытая терраса – идеальные места для начала дня с чашечкой кофе или тихого вечера в компании книг, где легко погрузиться в спокойствие окружающего мира, не уходя из дома. Никаких лишних балконов, веранд или гаражей, лишь чистый дизайн и функциональность, подчеркивающие скандинавскую простоту и практичность. Это идеальное место для тех, кто ищет уют, экологичность и простоту в одном доме.

Характеристики дома

Архитектурный стиль
Скандинавский
Автоматизированное регулирование параметров теплоносителя
Да
Балконы/лоджии
Отсутствуют
Чердачное помещение
Да
Датчики протечки воды
Нет
Эксплуатируемая или зеленая кровля
Нет
Электроснабжение
Центральное
Газоснабжение
Центральное
Изоляция воздушного шума
Нет
Камин
Нет
Класс энергоэффективности
-
Класс энергосбережения
-
Количество надземных этажей
1
Круглогодичное проживание
Да
Материал кровли
Битумная черепица
Материал перекрытий
Деревянные
Материал внешних стен
Керамзитобетонные блоки
Материал внутренних перегородок
Блочные
Модульное строительство с конструкциями заводского изготовления
Нет
Объем надземной части
884 м3
Основной материал фасадов
Штукатурка
Отопление
Индивидуальное
Площадь дома
126 м2
Площадь застройки
153 м2
Подвальное помещение
Нет
Показатель компактности здания
-
Приборы учета тепловой энергии
Да
Пристроенный гараж/крытая автостоянка
Нет
Противопожарная система
Нет
Санузлы
2
Совмещенная кухня-гостиная
Да
Спальни
3
Терраса
Да
Тип фундамента
Плитный
Тип кровли
Четырехскатная (вальмовая)
Толщина внешних стен
400 мм
Толщина внутренних перегородок
120 мм
Улучшенные шумовые характеристики
Нет
Вентиляция
2 варианта
Веранда
Нет
Водоотведение
Локальные очистные сооружения
Водоснабжение
Индивидуальное
Высота дома
5.78 м
Высота потолков
3 м

Планировка

Фасад дома

Александр

Закажите выезд инженера

Александр

Выездной инженер
Закажите выезд инженера для точной диагностики и профессиональной консультации по инженерным системам. Специалист приедет в удобное время, проведёт осмотр, рассчитает стоимость работ и подберёт оптимальные решения для вашего дома.


    Похожие проекты

    Ипотека и
    рассрочка
    FL 65 – Модульный дом под ключ
    Стоимость от:
    4 796 220
    Проект от: 38 700
    Этажей 1
    Санузлы 1
    Спальни 2
    Смотреть
    Ипотека и
    рассрочка
    Коттедж PG-2 «Bona Fide»
    Стоимость от:
    5 861 460
    Проект от: 37 350
    Этажей 1
    Санузлы 1
    Спальни 3
    Смотреть
    Ипотека и
    рассрочка
    Сёнэра
    Стоимость от:
    3 046 560
    Проект от: 21 600
    Этажей 1
    Санузлы 1
    Спальни 2
    Смотреть
    Ипотека и
    рассрочка
    П-98
    Стоимость от:
    5 449 180
    Проект от: 42 300
    Этажей 1
    Санузлы 1
    Спальни 2
    Смотреть
    Ипотека и
    рассрочка
    Сканди 2 этажа
    Стоимость от:
    8 049 480
    Проект от: 61 650
    Этажей 2
    Санузлы 2
    Спальни 4
    Смотреть
    Ипотека и
    рассрочка
    Загородный дом Y-91
    Стоимость от:
    6 840 020
    Проект от: 40 950
    Этажей 1
    Санузлы 2
    Спальни 2
    Смотреть

    Как узнать стоимость дома

    back
    Оставляете заявку
    Вы заполняете форму на сайте или звоните нам. Менеджер Лайвкрафт связывается с вами для уточнения деталей: тип дома, площадь, материалы, участок строительства.
    back
    Консультация и подбор решения
    Наш специалист помогает выбрать оптимальный тип дома и конструкцию с учётом бюджета, сроков и целей — будь то дом для постоянного проживания или дача.
    back
    Расчёт предварительной стоимости
    Инженер делает первичный расчёт стоимости строительства по вашим параметрам: фундамент, коробка, кровля, отделка. Вы получаете смету с разбивкой по этапам.
    back
    Корректировка и утверждение сметы
    При необходимости вносим изменения — например, замену материалов или сокращение этапов. После согласования формируется окончательная фиксированная смета.
    back
    Заключение договора и старт работ
    После утверждения сметы заключаем официальный договор с гарантией. Вы получаете прозрачный график и точную стоимость — без скрытых расходов.

    Заказать конусльтацию по:Проект одноэтажного дома «Дамаск»

    Фото 1 Проект одноэтажного дома «Дамаск»


      Наши
      контакты

      Дмитров
      Опорный проезд 28Б
      (индустриальный парк Ниагара)
      9:00 до 18:00