4.9
Рейтинг на основании 120 отзывов
Дмитров
Опорный проезд 28Б
(индустриальный парк Ниагара)
Бренд "Дмитров-Дело" c 2008 года на рынке строительства в Дмитрове
Звоните 9:00 до 18:00 8 (915) 055-33-61
Бренд "Дмитров-Дело" c 2008 года на рынке строительства в Дмитрове

Проект одноэтажного дома «Валерий Андреевич»

Стоимость проекта от:
55 350 ₽
Стоимость строительства от:
9 786 260 ₽
Артикул ART-14406
Дата 25.12.2025
Архитектурный стиль Классический
Количество надземных этажей 1
Круглогодичное проживание Да
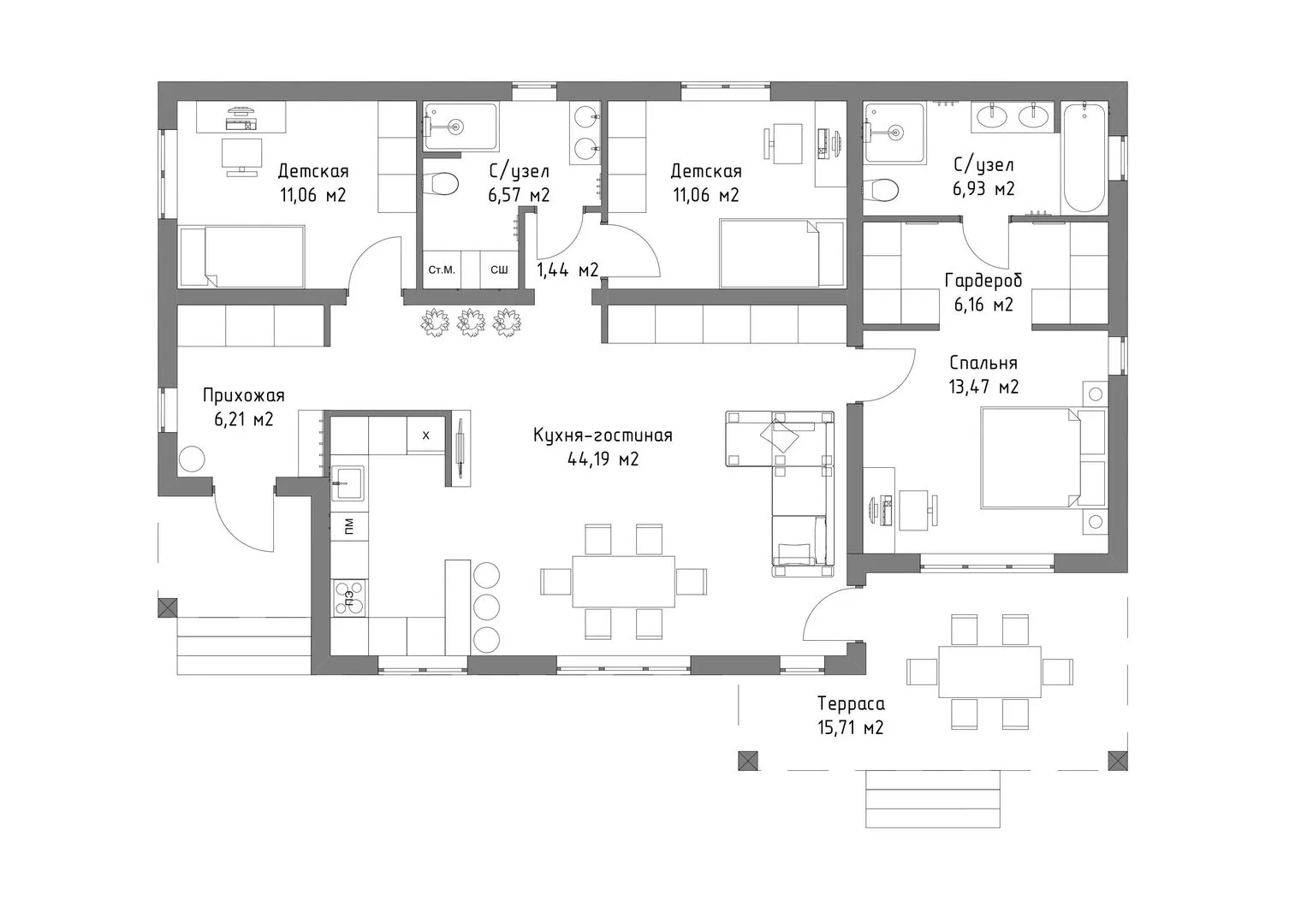
Площадь дома 123 м2
Санузлы 2
Спальни 3

Описание

В сердце спокойного уединения воплощён одноэтажный дом «Валерий Андреевич» – символ гармонии и уюта. Его классический фасад, выполненный из надёжных газобетонных блоков, дарит ощущение прочности и тепло, а комбинированная кровля обеспечивает надёжную защиту от всех погодных условий. Внутри вас ждёт простор, где каждая деталь продумана для полноценного круглогодичного проживания: мягкие, светлые коридоры, светлые комнаты, уютные зоны ожидания. Отсутствие балконов и веранд не помешают вам создать собственную обстановку – здесь вы сможете обустроить приятное место для отдыха в тени растений, которое будет служить вашим личным уголком спокойствия. Отдельным преимуществом нашего проекта является практичный чердачный уровень, который предоставляет дополнительное пространство для хранения вещей, а просторная терраса приглашает к вечерним собраниям и семейным мероприятиям на открытом воздухе. Внутри же простые, но элегантные решения внутренней архитектуры подчёркивают классический стиль дома и создают атмосферу, где каждая комната наполняется тёплым светом и приятностью. И без прикольных гаражных или покрытых стоек – вы свободны в планировании своего пространства, а дом «Валерий Андреевич» предлагает простую, но в то же время роскошную основу, на которой вы сможете построить идеальный образ жизни.

Характеристики дома

Архитектурный стиль
Классический
Автоматизированное регулирование параметров теплоносителя
Нет
Балконы/лоджии
Отсутствуют
Чердачное помещение
Да
Датчики протечки воды
Нет
Эксплуатируемая или зеленая кровля
Нет
Электроснабжение
Индивидуальное
Газоснабжение
Не предусмотрено
Изоляция воздушного шума
Да
Камин
Нет
Класс энергоэффективности
-
Класс энергосбережения
-
Количество надземных этажей
1
Круглогодичное проживание
Да
Материал кровли
Металлочерепица
Материал перекрытий
Монолитные железобетонные
Материал внешних стен
Газобетонные блоки
Материал внутренних перегородок
Блочные
Модульное строительство с конструкциями заводского изготовления
Нет
Объем надземной части
480 м3
Основной материал фасадов
Штукатурка
Отопление
Индивидуальное
Площадь дома
123 м2
Площадь застройки
148 м2
Подвальное помещение
Нет
Показатель компактности здания
-
Приборы учета тепловой энергии
Нет
Пристроенный гараж/крытая автостоянка
Нет
Противопожарная система
Нет
Санузлы
2
Совмещенная кухня-гостиная
Да
Спальни
3
Терраса
Да
Тип фундамента
Ленточный
Тип кровли
Комбинированная
Толщина внешних стен
300 мм
Толщина внутренних перегородок
100 мм
Улучшенные шумовые характеристики
Да
Вентиляция
Естественная
Веранда
Нет
Водоотведение
Локальные очистные сооружения
Водоснабжение
Индивидуальное
Высота дома
6.4 м
Высота потолков
3 м

Планировка

Фасад дома

Александр

Закажите выезд инженера

Александр

Выездной инженер
Закажите выезд инженера для точной диагностики и профессиональной консультации по инженерным системам. Специалист приедет в удобное время, проведёт осмотр, рассчитает стоимость работ и подберёт оптимальные решения для вашего дома.


    Похожие проекты

    Ипотека и
    рассрочка
    Адмирал
    Стоимость от:
    12 291 000
    Проект от: 92 250
    Этажей 2
    Санузлы 2
    Спальни 4
    Смотреть
    Ипотека и
    рассрочка
    Одноэтажный дом c антресолью СР-90
    Стоимость от:
    5 815 260
    Проект от: 32 850
    Этажей 1
    Санузлы 1
    Спальни 2
    Смотреть
    Ипотека и
    рассрочка
    Загородный дом ВС-131
    Стоимость от:
    6 606 600
    Проект от: 47 250
    Этажей 1
    Санузлы 1
    Спальни 2
    Смотреть
    Ипотека и
    рассрочка
    Двухэтажный дом из арболита- 101 м2,- 4 спальни, 2 с.у.-Ельдигино
    Стоимость от:
    7 625 040
    Проект от: 49 950
    Этажей 2
    Санузлы 2
    Спальни 4
    Смотреть
    Ипотека и
    рассрочка
    Одноэтажны каркасный дом «Королев»
    Стоимость от:
    6 936 600
    Проект от: 54 000
    Этажей 1
    Санузлы 1
    Спальни 3
    Смотреть
    Ипотека и
    рассрочка
    СОВРЕМЕННЫЙ КОМФОРТ
    Стоимость от:
    14 577 200
    Проект от: 90 000
    Этажей 1
    Санузлы 3
    Спальни 3
    Смотреть

    Как узнать стоимость дома

    back
    Оставляете заявку
    Вы заполняете форму на сайте или звоните нам. Менеджер Лайвкрафт связывается с вами для уточнения деталей: тип дома, площадь, материалы, участок строительства.
    back
    Консультация и подбор решения
    Наш специалист помогает выбрать оптимальный тип дома и конструкцию с учётом бюджета, сроков и целей — будь то дом для постоянного проживания или дача.
    back
    Расчёт предварительной стоимости
    Инженер делает первичный расчёт стоимости строительства по вашим параметрам: фундамент, коробка, кровля, отделка. Вы получаете смету с разбивкой по этапам.
    back
    Корректировка и утверждение сметы
    При необходимости вносим изменения — например, замену материалов или сокращение этапов. После согласования формируется окончательная фиксированная смета.
    back
    Заключение договора и старт работ
    После утверждения сметы заключаем официальный договор с гарантией. Вы получаете прозрачный график и точную стоимость — без скрытых расходов.

    Заказать конусльтацию по:Проект одноэтажного дома «Валерий Андреевич»

    Фото 1 Проект одноэтажного дома «Валерий Андреевич»


      Наши
      контакты

      Дмитров
      Опорный проезд 28Б
      (индустриальный парк Ниагара)
      9:00 до 18:00