4.9
Рейтинг на основании 120 отзывов
Дмитров
Опорный проезд 28Б
(индустриальный парк Ниагара)
Бренд "Дмитров-Дело" c 2008 года на рынке строительства в Дмитрове
Звоните 9:00 до 18:00 8 (915) 055-33-61
Бренд "Дмитров-Дело" c 2008 года на рынке строительства в Дмитрове

Проект одноэтажного дома Бетховен 2

Стоимость проекта от:
39 600 ₽
БЕСПЛАТНО! ПРИ ЗАКАЗЕ СТРОИТЕЛЬСТВА
Стоимость строительства от:
6 614 960 ₽
Артикул ART-10774
Дата 25.12.2025
Архитектурный стиль Классический
Количество надземных этажей 1
Круглогодичное проживание Да
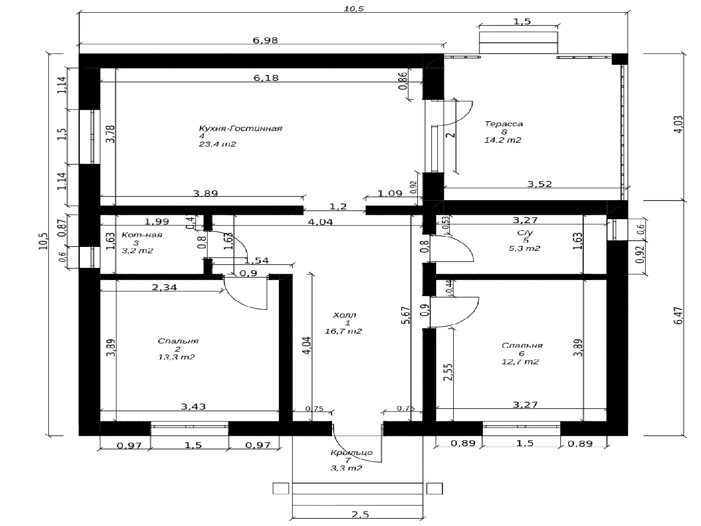
Площадь дома 88 м2
Санузлы 1
Спальни 2

Описание

Представляем вашему вниманию проект одноэтажного дома «Бетховен 2» – сочетание классицизма и современных технологий, созданный для того, чтобы каждый день в вашем доме ощущался как уютная, светлая ода комфорту. Совершенно круглогодичное проживание стало возможным благодаря продуманному климатическому регулированию и качественному утеплению, а просторный внутренний план делает каждый уголок идеальным для семейной жизни. В основе конструкции использованы газобетонные блоки, которые не только обеспечивают превосходную тепло- и звукоизоляцию, но и придают фасаду изысканный, светлый оттенок. В интерьере «Бетховен 2» традиционная архитектура переходит в современную простоту: отсутствие балконов и веранд избавляет от лишних открытых пространств, а тщательно продуманный план позволяет гармонично разместить все зоны дома. Стены, покрытые легкой декоративной отделкой, мягко пропускают естественный свет, создавая атмосферу спокойствия и благополучия. Внутри – уютные прихожие, светлые комнаты и удобная кухня – все элементы работают над тем, чтобы каждый шаг в доме вызывал чувство умиротворения. Особое внимание уделено внешнему облику: чёткая, почти строгая линия классического фасада привлекает взгляд, а наличие террасы приглашает расслабиться на свежем воздухе, наслаждаясь видом. Кровля в четырёхскатной (валмовой) конструкции не только подчёркивает элегантность здания, но и обеспечивает надёжность и долговечность. Дом «Бетховен 2» – это ваш новый образ жизни, где эстетика классики встречается с функциональностью современного дома, создавая идеальное сочетание уюта, практичности и красоты.

Характеристики дома

Архитектурный стиль
Автоматизированное регулирование параметров теплоносителя
Нет
Балконы/лоджии
Отсутствуют
Чердачное помещение
Нет
Датчики протечки воды
Нет
Эксплуатируемая или зеленая кровля
Нет
Электроснабжение
Центральное
Газоснабжение
Индивидуальное
Изоляция воздушного шума
Нет
Камин
Нет
Класс энергоэффективности
-
Класс энергосбережения
-
Количество надземных этажей
1
Круглогодичное проживание
Да
Материал кровли
Металлочерепица
Материал перекрытий
Деревянные
Материал внешних стен
Материал внутренних перегородок
Кирпичные
Модульное строительство с конструкциями заводского изготовления
Нет
Объем надземной части
-
Основной материал фасадов
Штукатурка
Отопление
Индивидуальное
Площадь дома
88 м2
Площадь застройки
116 м2
Подвальное помещение
Нет
Показатель компактности здания
-
Приборы учета тепловой энергии
Нет
Пристроенный гараж/крытая автостоянка
Нет
Противопожарная система
Нет
Санузлы
1
Совмещенная кухня-гостиная
Да
Спальни
2
Терраса
Да
Тип фундамента
Свайно-ростверковый
Толщина внешних стен
300 мм
Толщина внутренних перегородок
150 мм
Улучшенные шумовые характеристики
Нет
Вентиляция
Естественная
Веранда
Нет
Водоотведение
Локальные очистные сооружения
Водоснабжение
Индивидуальное
Высота дома
-
Высота потолков
3 м

Планировка

Фасад дома

Александр

Закажите выезд инженера

Александр

Выездной инженер
Закажите выезд инженера для точной диагностики и профессиональной консультации по инженерным системам. Специалист приедет в удобное время, проведёт осмотр, рассчитает стоимость работ и подберёт оптимальные решения для вашего дома.


    Похожие проекты

    Ипотека и
    рассрочка
    Одноэтажный кирпичный дом ТП-110
    Стоимость от:
    7 440 180
    Проект от: 44 550
    Этажей 1
    Санузлы 2
    Спальни 3
    Смотреть
    Ипотека и
    рассрочка
    Одноэтажный дом FIXPLANS — 1655
    Стоимость от:
    10 183 360
    Проект от: 57 600
    Этажей 1
    Санузлы 1
    Спальни 3
    Смотреть
    Ипотека и
    рассрочка
    Барнхаус Б-09
    Стоимость от:
    3 947 955
    Проект от: 31 950
    Этажей 1
    Санузлы 1
    Спальни 1
    Смотреть
    Ипотека и
    рассрочка
    PG-4 «Alfa»
    Стоимость от:
    6 910 420
    Проект от: 45 450
    Этажей 1
    Санузлы 2
    Спальни 3
    Смотреть
    Ипотека и
    рассрочка
    Одноэтажный дом ЭВРИКА
    Стоимость от:
    4 506 370
    Проект от: 31 950
    Этажей 1
    Санузлы 1
    Спальни 2
    Смотреть
    Ипотека и
    рассрочка
    Барн-62
    Стоимость от:
    3 848 130
    Проект от: 31 050
    Этажей 1
    Санузлы 1
    Спальни 2
    Смотреть

    Как узнать стоимость дома

    back
    Оставляете заявку
    Вы заполняете форму на сайте или звоните нам. Менеджер Лайвкрафт связывается с вами для уточнения деталей: тип дома, площадь, материалы, участок строительства.
    back
    Консультация и подбор решения
    Наш специалист помогает выбрать оптимальный тип дома и конструкцию с учётом бюджета, сроков и целей — будь то дом для постоянного проживания или дача.
    back
    Расчёт предварительной стоимости
    Инженер делает первичный расчёт стоимости строительства по вашим параметрам: фундамент, коробка, кровля, отделка. Вы получаете смету с разбивкой по этапам.
    back
    Корректировка и утверждение сметы
    При необходимости вносим изменения — например, замену материалов или сокращение этапов. После согласования формируется окончательная фиксированная смета.
    back
    Заключение договора и старт работ
    После утверждения сметы заключаем официальный договор с гарантией. Вы получаете прозрачный график и точную стоимость — без скрытых расходов.

    Заказать конусльтацию по:Проект одноэтажного дома Бетховен 2

    Фото 1 Проект одноэтажного дома Бетховен 2


      Наши
      контакты

      Дмитров
      Опорный проезд 28Б
      (индустриальный парк Ниагара)
      9:00 до 18:00

      Корзина