4.9
Рейтинг на основании 120 отзывов
Дмитров
Опорный проезд 28Б
(индустриальный парк Ниагара)
Бренд "Дмитров-Дело" c 2008 года на рынке строительства в Дмитрове
Звоните 9:00 до 18:00 8 (915) 055-33-61
Бренд "Дмитров-Дело" c 2008 года на рынке строительства в Дмитрове

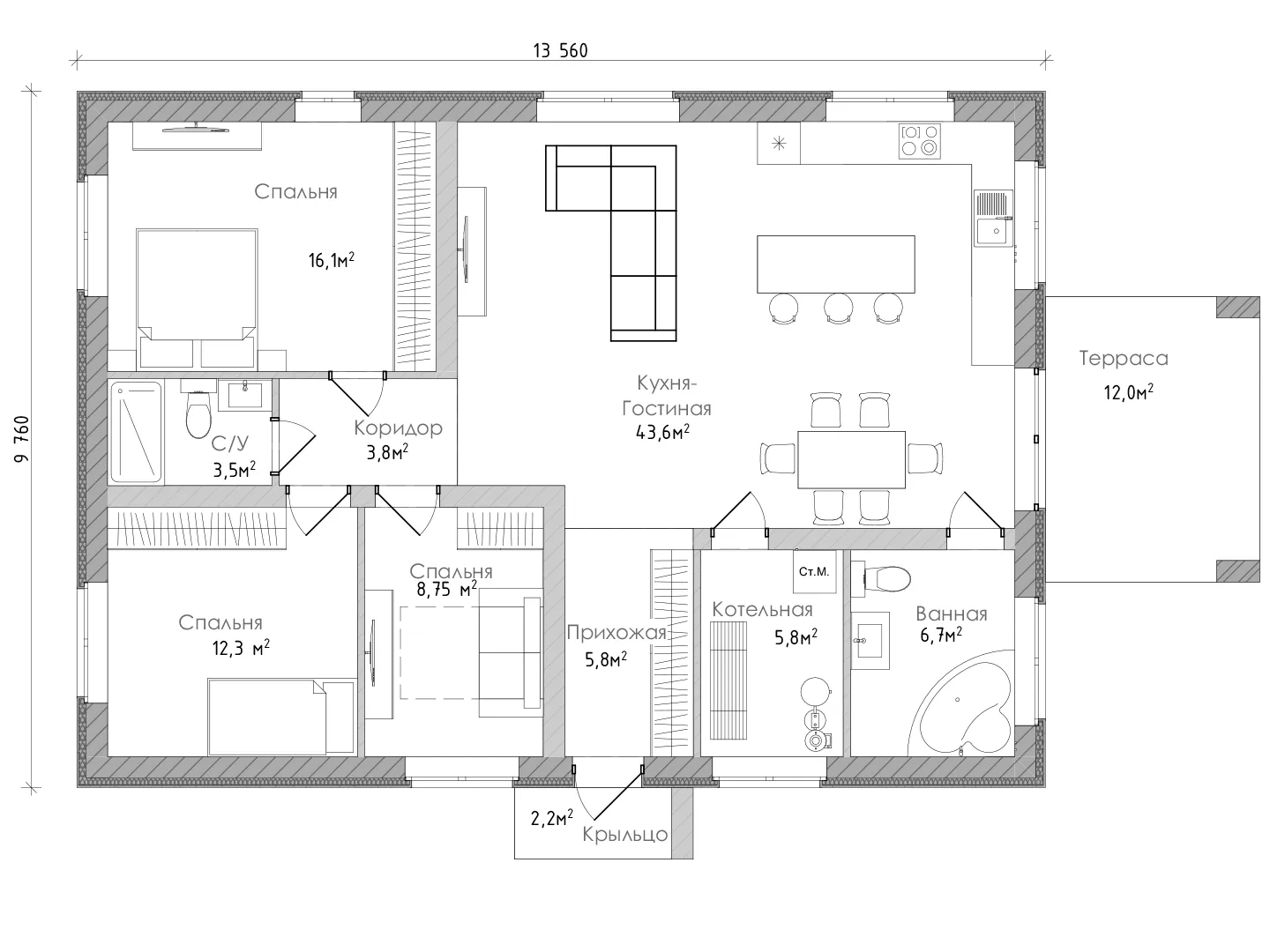
Проект Одноэтажный Дом с террасой Просто 120

Стоимость проекта от:
53 550 ₽
БЕСПЛАТНО! ПРИ ЗАКАЗЕ СТРОИТЕЛЬСТВА
Стоимость строительства от:
287 980 ₽
Артикул ART-15031
Дата 25.12.2025
Архитектурный стиль -
Количество надземных этажей 1
Круглогодичное проживание Да
Площадь дома 119 м2
Санузлы 2
Спальни 3

Описание

Пусть ваш дом станет оазисом уюта и простоты, созданным с любовью к деталям и беззаботной атмосферой. Этот одноэтажный дом площадью 120 м² — воплощение современного комфорта, где каждый уголок пропитан светом и просторными линиями. Идеально подходящий для круглогодичного проживания, он подарит вам ощущение домашнего тепла даже в самые прохладные дни, благодаря тщательно продуманной теплоизоляции и удобным расположением окон. Секрет его привлекательности — просторный фасад и открытая терраса, где можно наслаждаться ароматом свежего воздуха, выращивать мини‑сад или устраивать семейные барбекю на летний вечер. Просторные и функциональные помещения, без лишних перегородок, создают ощущение свободы и гибкости использования пространства. Здесь нет балконов и лоудже, зато присутствует уютный уголок у стены, где можно разложить любимые книги и ароматный чай. Этот дом — идеальная площадка для тех, кто ценит простоту, уют и современные решения без лишних сложностей. Он сочетает в себе все, чем хочется радовать себя и своих близких: просторные комнаты, современный дизайн, надежную конструкцию и, конечно же, приятный внешний вид с яркой террасой, где вы будете жить и отдыхать, наслаждаясь каждым моментом.

Характеристики дома

Архитектурный стиль
-
Автоматизированное регулирование параметров теплоносителя
Нет
Балконы/лоджии
Отсутствуют
Чердачное помещение
Нет
Датчики протечки воды
Нет
Эксплуатируемая или зеленая кровля
Нет
Электроснабжение
-
Газоснабжение
-
Изоляция воздушного шума
Да
Камин
Нет
Класс энергоэффективности
-
Класс энергосбережения
-
Количество надземных этажей
1
Круглогодичное проживание
Да
Материал кровли
-
Материал перекрытий
-
Материал внешних стен
-
Материал внутренних перегородок
-
Модульное строительство с конструкциями заводского изготовления
Нет
Объем надземной части
424 м3
Основной материал фасадов
-
Отопление
-
Площадь дома
119 м2
Площадь застройки
146 м2
Подвальное помещение
Нет
Показатель компактности здания
-
Приборы учета тепловой энергии
Нет
Пристроенный гараж/крытая автостоянка
Нет
Противопожарная система
Нет
Санузлы
2
Совмещенная кухня-гостиная
Да
Спальни
3
Терраса
Да
Тип фундамента
-
Тип кровли
-
Толщина внешних стен
300 мм
Толщина внутренних перегородок
100 мм
Улучшенные шумовые характеристики
Да
Вентиляция
-
Веранда
Нет
Водоотведение
-
Водоснабжение
-
Высота дома
4.85 м
Высота потолков
2.75 м

Планировка

Фасад дома

Александр

Закажите выезд инженера

Александр

Выездной инженер
Закажите выезд инженера для точной диагностики и профессиональной консультации по инженерным системам. Специалист приедет в удобное время, проведёт осмотр, рассчитает стоимость работ и подберёт оптимальные решения для вашего дома.


    Похожие проекты

    Ипотека и
    рассрочка
    Дом Стриж
    Стоимость от:
    3 237 000
    Проект от: 22 500
    Этажей 2
    Санузлы 1
    Спальни 1
    Смотреть
    Ипотека и
    рассрочка
    Проект Мечта
    Стоимость от:
    12 372 800
    Проект от: 72 000
    Этажей 1
    Санузлы 2
    Спальни 3
    Смотреть
    Ипотека и
    рассрочка
    Дом из клееного бруса «Горки»
    Стоимость от:
    19 488 840
    Проект от: 135 450
    Этажей 2
    Санузлы 3
    Спальни 4
    Смотреть
    Ипотека и
    рассрочка
    КОМФОРТ-92
    Стоимость от:
    6 840 020
    Проект от: 40 950
    Этажей 1
    Санузлы 1
    Спальни 3
    Смотреть
    Ипотека и
    рассрочка
    Клевер
    Стоимость от:
    4 405 830
    Проект от: 35 550
    Этажей 1
    Санузлы 1
    Спальни 2
    Смотреть
    Ипотека и
    рассрочка
    Проект двухэтажного дома №24 (11,3х8,0 м)
    Стоимость от:
    10 319 520
    Проект от: 62 100
    Этажей 2
    Санузлы 2
    Спальни 4
    Смотреть

    Как узнать стоимость дома

    back
    Оставляете заявку
    Вы заполняете форму на сайте или звоните нам. Менеджер Лайвкрафт связывается с вами для уточнения деталей: тип дома, площадь, материалы, участок строительства.
    back
    Консультация и подбор решения
    Наш специалист помогает выбрать оптимальный тип дома и конструкцию с учётом бюджета, сроков и целей — будь то дом для постоянного проживания или дача.
    back
    Расчёт предварительной стоимости
    Инженер делает первичный расчёт стоимости строительства по вашим параметрам: фундамент, коробка, кровля, отделка. Вы получаете смету с разбивкой по этапам.
    back
    Корректировка и утверждение сметы
    При необходимости вносим изменения — например, замену материалов или сокращение этапов. После согласования формируется окончательная фиксированная смета.
    back
    Заключение договора и старт работ
    После утверждения сметы заключаем официальный договор с гарантией. Вы получаете прозрачный график и точную стоимость — без скрытых расходов.

    Заказать конусльтацию по:Проект Одноэтажный Дом с террасой Просто 120

    Фото 1 Проект Одноэтажный Дом с террасой Просто 120


      Наши
      контакты

      Дмитров
      Опорный проезд 28Б
      (индустриальный парк Ниагара)
      9:00 до 18:00

      Корзина