4.9
Рейтинг на основании 120 отзывов
Дмитров
Опорный проезд 28Б
(индустриальный парк Ниагара)
Бренд "Дмитров-Дело" c 2008 года на рынке строительства в Дмитрове
Звоните 9:00 до 18:00 8 (915) 055-33-61
Бренд "Дмитров-Дело" c 2008 года на рынке строительства в Дмитрове

Проект Современный одноэтажный дом KV-04 с террасой

Стоимость проекта от:
67 950 ₽
Стоимость строительства от:
10 663 620 ₽
Артикул ART-14663
Дата 25.12.2025
Архитектурный стиль Европейский
Количество надземных этажей 1
Круглогодичное проживание Да
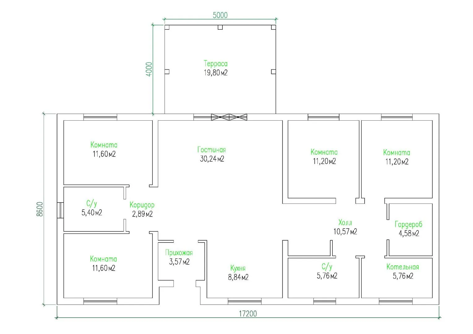
Площадь дома 151 м2
Санузлы 2
Спальни 4

Описание

Сердце этого современного одноэтажного дома звучит под названием KV‑04 – как нежный аккорд гармоничного союза стиля и практичности. Внешняя оболочка, созданная из газобетонных блоков, придаёт зданию лёгкость и тепло, одновременно обеспечивая непревзойденную энергоэффективность. Элегантная четырёхскатная кровля создаёт изящные линии и защищает жильё от любыми погодными непредсказуемостями, обеспечивая комфорт круглый год. Внутри вас ждёт просторный открытый план, где свет и свежесть протекают из стеклянных фасадов, создавая ощущение простора и свободы. Отдельный чердачный отсек, полностью застроенный, позволяет легко привнести туда ваш личный уголок – небольшой кабинет, игровая зона для детей или уютное место для хранения. Вдаль открывается широкая терраса, где можно собираться на закате, устраивать барбекю с друзьями, а в тёплые летние дни – просто наслаждаться природой, не убыстряя ритм жизни. Этот дом – воплощение европейского уюта и современного комфорта, где каждая деталь продумана так, чтобы в каждом уголке чувствовался домашний тепло. Если вы ищете место, где можно жить, вдохновляться и отдыхать, KV‑04 станет идеальным выбором для тех, кто ценит эстетику и функциональность в одной гармоничной концепции.

Характеристики дома

Архитектурный стиль
Европейский
Автоматизированное регулирование параметров теплоносителя
Нет
Балконы/лоджии
Отсутствуют
Чердачное помещение
Да
Датчики протечки воды
Нет
Эксплуатируемая или зеленая кровля
Нет
Электроснабжение
Индивидуальное
Газоснабжение
Не предусмотрено
Изоляция воздушного шума
Да
Камин
Нет
Класс энергоэффективности
-
Класс энергосбережения
-
Количество надземных этажей
1
Круглогодичное проживание
Да
Материал кровли
Металлочерепица
Материал перекрытий
Деревянные
Материал внешних стен
Газобетонные блоки
Материал внутренних перегородок
Блочные
Модульное строительство с конструкциями заводского изготовления
Нет
Объем надземной части
750 м3
Основной материал фасадов
Штукатурка
Отопление
Индивидуальное
Площадь дома
151 м2
Площадь застройки
168 м2
Подвальное помещение
Нет
Показатель компактности здания
-
Приборы учета тепловой энергии
Нет
Пристроенный гараж/крытая автостоянка
Нет
Противопожарная система
Нет
Санузлы
2
Совмещенная кухня-гостиная
Да
Спальни
4
Терраса
Да
Тип фундамента
Плитный
Тип кровли
Четырехскатная (вальмовая)
Толщина внешних стен
300 мм
Толщина внутренних перегородок
100 мм
Улучшенные шумовые характеристики
Да
Вентиляция
Естественная
Веранда
Нет
Водоотведение
Локальные очистные сооружения
Водоснабжение
Индивидуальное
Высота дома
6 м
Высота потолков
3 м

Планировка

Фасад дома

Александр

Закажите выезд инженера

Александр

Выездной инженер
Закажите выезд инженера для точной диагностики и профессиональной консультации по инженерным системам. Специалист приедет в удобное время, проведёт осмотр, рассчитает стоимость работ и подберёт оптимальные решения для вашего дома.


    Похожие проекты

    Ипотека и
    рассрочка
    Дом Лили 10х11
    Стоимость от:
    5 375 865
    Проект от: 41 850
    Этажей 1
    Санузлы 1
    Спальни 2
    Смотреть
    Ипотека и
    рассрочка
    ФинДом 96
    Стоимость от:
    5 508 360
    Проект от: 35 100
    Этажей 1
    Санузлы 1
    Спальни 3
    Смотреть
    Ипотека и
    рассрочка
    Проект House А-125
    Стоимость от:
    8 545 020
    Проект от: 54 450
    Этажей 1
    Санузлы 1
    Спальни 3
    Смотреть
    Ипотека и
    рассрочка
    Загородный дом ДАЛИ
    Стоимость от:
    7 168 590
    Проект от: 52 650
    Этажей 1
    Санузлы 1
    Спальни 3
    Смотреть
    Ипотека и
    рассрочка
    ЭДЕМ каменный с гаражом
    Стоимость от:
    10 381 140
    Проект от: 66 150
    Этажей 1
    Санузлы 2
    Спальни 3
    Смотреть
    Ипотека и
    рассрочка
    BarnHouse
    Стоимость от:
    3 625 050
    Проект от: 29 250
    Этажей 1
    Санузлы 1
    Спальни 2
    Смотреть

    Как узнать стоимость дома

    back
    Оставляете заявку
    Вы заполняете форму на сайте или звоните нам. Менеджер Лайвкрафт связывается с вами для уточнения деталей: тип дома, площадь, материалы, участок строительства.
    back
    Консультация и подбор решения
    Наш специалист помогает выбрать оптимальный тип дома и конструкцию с учётом бюджета, сроков и целей — будь то дом для постоянного проживания или дача.
    back
    Расчёт предварительной стоимости
    Инженер делает первичный расчёт стоимости строительства по вашим параметрам: фундамент, коробка, кровля, отделка. Вы получаете смету с разбивкой по этапам.
    back
    Корректировка и утверждение сметы
    При необходимости вносим изменения — например, замену материалов или сокращение этапов. После согласования формируется окончательная фиксированная смета.
    back
    Заключение договора и старт работ
    После утверждения сметы заключаем официальный договор с гарантией. Вы получаете прозрачный график и точную стоимость — без скрытых расходов.

    Заказать конусльтацию по:Проект Современный одноэтажный дом KV-04 с террасой

    Фото 1 Проект Современный одноэтажный дом KV-04 с террасой


      Наши
      контакты

      Дмитров
      Опорный проезд 28Б
      (индустриальный парк Ниагара)
      9:00 до 18:00