4.9
Рейтинг на основании 120 отзывов
Дмитров
Опорный проезд 28Б
(индустриальный парк Ниагара)
Бренд "Дмитров-Дело" c 2008 года на рынке строительства в Дмитрове
Звоните 9:00 до 18:00 8 (915) 055-33-61
Бренд "Дмитров-Дело" c 2008 года на рынке строительства в Дмитрове

Проект загородного дома NHD-139

Стоимость проекта от:
54 900 ₽
БЕСПЛАТНО! ПРИ ЗАКАЗЕ СТРОИТЕЛЬСТВА
Стоимость строительства от:
9 165 640 ₽
Артикул ART-14795
Дата 25.12.2025
Архитектурный стиль Классический
Количество надземных этажей 1
Круглогодичное проживание Да
Площадь дома 122 м2
Санузлы 1
Спальни 3

Описание

Незабываемый уединённый уголок в сердце природы, где каждый элемент продуман до самой последней детали – это загородный дом NHD‑139. Его единственный надземный этаж, оформленный в строгом классическом стиле, создаёт атмосферу тепла и спокойствия, а просторные внутренние пространства позволяют вам легко вписывать в них свою личную стилистику. Характеристика “круглогодичное проживание” гарантирует, что ваш дом будет уютным даже в самые холодные или жаркие дни, а газобетонные блоки внешних стен обеспечивают отличную тепло- и звукоизоляцию, дополняя ощущение безопасности и комфорта. Отдельное место в доме занимает аккуратная чердачная платформа, где вы можете превратить пространство в творческую студию, небольшую библиотеку или уголок для отдыха. Подсобная терраса приглашает к вечерам под открытым небом, где можно насладиться великолепным закатом и свежим воздухом. Хотя балконы и веранда отсутствуют, это не мешает вашему дому сохранять элегантность своего образа. Дизайн кровли – четырёхскатная вальмовая – добавляет дому строгой линии и придаёт классический шарм. NHD‑139 – это не просто место на карте, а ваш новый дом, где каждый уголок рассказывает историю о благородстве и устойчивости. Современный, но при этом традиционный, он обещает стать местом, где вы будете чувствовать себя как дома – в уюте, с максимальной приватностью и в окружении природы, которая вдохновляет и умиротворяет. Позвольте себе погрузиться в атмосферу, где каждый день начинается с вдохновения, а закат заканчивается на ноте благодарности за то, что вы нашли именно такой дом.

Характеристики дома

Архитектурный стиль
Автоматизированное регулирование параметров теплоносителя
Да
Балконы/лоджии
Отсутствуют
Чердачное помещение
Да
Датчики протечки воды
Нет
Эксплуатируемая или зеленая кровля
Нет
Электроснабжение
Центральное
Газоснабжение
Центральное
Изоляция воздушного шума
Да
Камин
Нет
Класс энергоэффективности
A++
Класс энергосбережения
A++
Количество надземных этажей
1
Круглогодичное проживание
Да
Материал кровли
Металлочерепица
Материал перекрытий
Сборные железобетонные предварительно напряженные пустотные плиты
Материал внешних стен
Материал внутренних перегородок
Блочные
Модульное строительство с конструкциями заводского изготовления
Нет
Объем надземной части
1023 м3
Основной материал фасадов
Облицовочный кирпич
Отопление
Индивидуальное
Площадь дома
122 м2
Площадь застройки
152 м2
Подвальное помещение
Нет
Показатель компактности здания
1
Приборы учета тепловой энергии
Да
Пристроенный гараж/крытая автостоянка
Нет
Противопожарная система
Нет
Санузлы
1
Совмещенная кухня-гостиная
Да
Спальни
3
Терраса
Да
Тип фундамента
Свайно-ростверковый
Толщина внешних стен
500 мм
Толщина внутренних перегородок
100 мм
Улучшенные шумовые характеристики
Да
Вентиляция
Естественная
Веранда
Нет
Водоотведение
Локальные очистные сооружения
Водоснабжение
Индивидуальное
Высота дома
7 м
Высота потолков
2.8 м

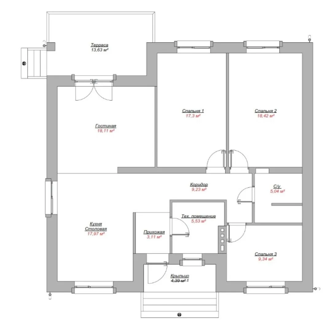
Планировка

Фасад дома

Александр

Закажите выезд инженера

Александр

Выездной инженер
Закажите выезд инженера для точной диагностики и профессиональной консультации по инженерным системам. Специалист приедет в удобное время, проведёт осмотр, рассчитает стоимость работ и подберёт оптимальные решения для вашего дома.


    Похожие проекты

    Ипотека и
    рассрочка
    Проект дома с большой террасой и навесом для автомобиля S-158
    Стоимость от:
    19 705 680
    Проект от: 129 150
    Этажей 2
    Санузлы 3
    Спальни 3
    Смотреть
    Ипотека и
    рассрочка
    Одноэтажный дом «ЭВБЕЯ»
    Стоимость от:
    9 510 380
    Проект от: 62 550
    Этажей 1
    Санузлы 2
    Спальни 3
    Смотреть
    Ипотека и
    рассрочка
    Проект №4
    Стоимость от:
    8 265 400
    Проект от: 49 500
    Этажей 1
    Санузлы 1
    Спальни 3
    Смотреть
    Ипотека и
    рассрочка
    Дом ГД-795
    Стоимость от:
    10 002 190
    Проект от: 71 100
    Этажей 1
    Санузлы 2
    Спальни 3
    Смотреть
    Ипотека и
    рассрочка
    ШК № 3
    Стоимость от:
    5 714 720
    Проект от: 34 200
    Этажей 1
    Санузлы 1
    Спальни 3
    Смотреть
    Ипотека и
    рассрочка
    Авторский проект «Салфер»
    Стоимость от:
    8 474 400
    Проект от: 54 000
    Этажей 1
    Санузлы 1
    Спальни 3
    Смотреть

    Как узнать стоимость дома

    back
    Оставляете заявку
    Вы заполняете форму на сайте или звоните нам. Менеджер Лайвкрафт связывается с вами для уточнения деталей: тип дома, площадь, материалы, участок строительства.
    back
    Консультация и подбор решения
    Наш специалист помогает выбрать оптимальный тип дома и конструкцию с учётом бюджета, сроков и целей — будь то дом для постоянного проживания или дача.
    back
    Расчёт предварительной стоимости
    Инженер делает первичный расчёт стоимости строительства по вашим параметрам: фундамент, коробка, кровля, отделка. Вы получаете смету с разбивкой по этапам.
    back
    Корректировка и утверждение сметы
    При необходимости вносим изменения — например, замену материалов или сокращение этапов. После согласования формируется окончательная фиксированная смета.
    back
    Заключение договора и старт работ
    После утверждения сметы заключаем официальный договор с гарантией. Вы получаете прозрачный график и точную стоимость — без скрытых расходов.

    Заказать конусльтацию по:Проект загородного дома NHD-139

    Фото 1 Проект загородного дома NHD-139


      Наши
      контакты

      Дмитров
      Опорный проезд 28Б
      (индустриальный парк Ниагара)
      9:00 до 18:00

      Корзина