4.9
Рейтинг на основании 120 отзывов
Дмитров
Опорный проезд 28Б
(индустриальный парк Ниагара)
Бренд "Дмитров-Дело" c 2008 года на рынке строительства в Дмитрове
Звоните 9:00 до 18:00 8 (915) 055-33-61
Бренд "Дмитров-Дело" c 2008 года на рынке строительства в Дмитрове

Проект загородного дома NHD-138

Стоимость проекта от:
54 900 ₽
БЕСПЛАТНО! ПРИ ЗАКАЗЕ СТРОИТЕЛЬСТВА
Стоимость строительства от:
9 165 640 ₽
Артикул ART-15377
Дата 25.12.2025
Архитектурный стиль Классический
Количество надземных этажей 1
Круглогодичное проживание Да
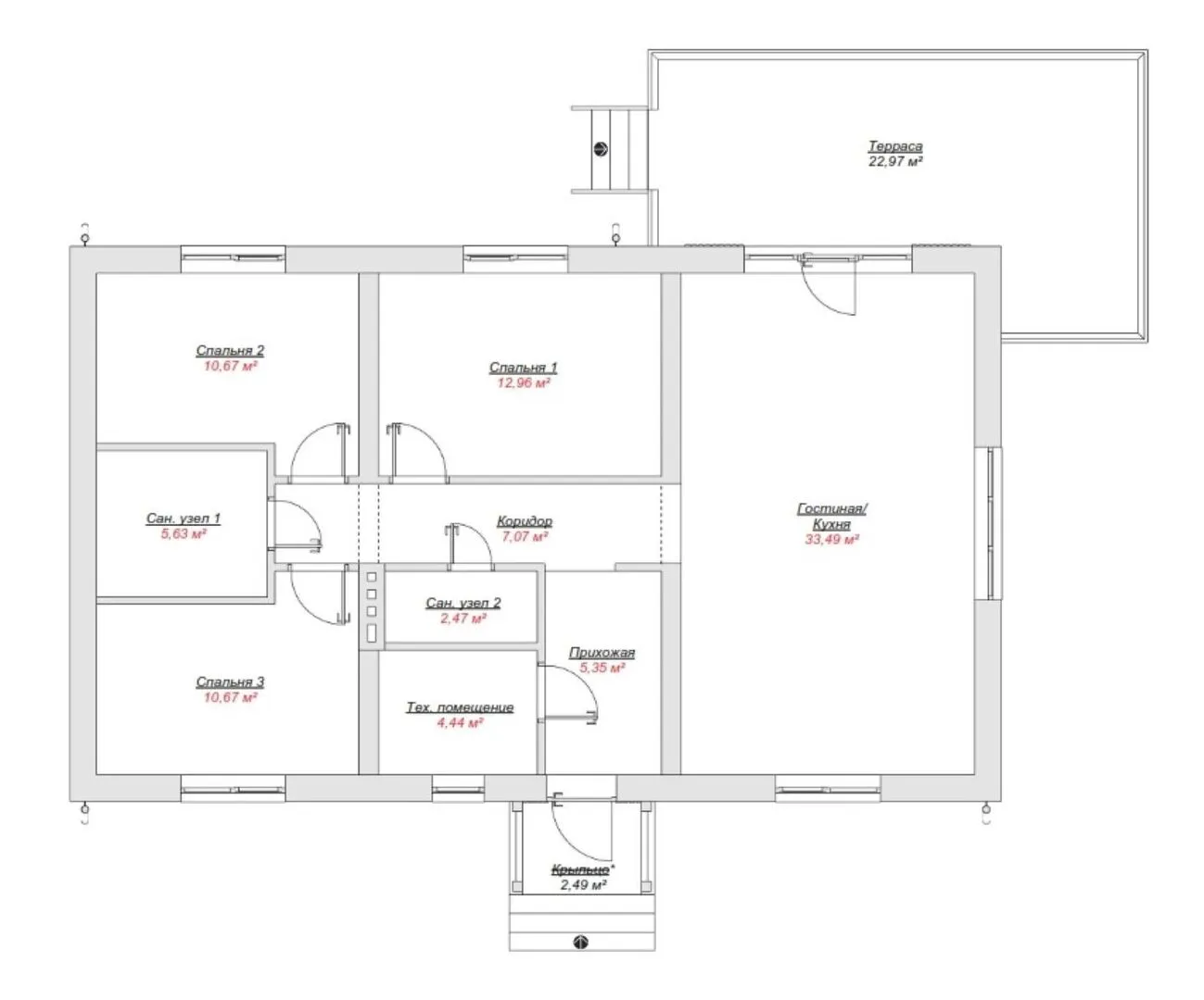
Площадь дома 122 м2
Санузлы 2
Спальни 3

Описание

Загородный дом NHD‑138 – это воплощение уютной традиции в современном исполнении. С одним надземным этажом он дарит простое, но практичное пространство, где каждая деталь продумана до мелочей: от просторных окон, открывающих живописные виды, до аккуратной гофрированной крыши, сохраняя тепло круглый год. Классический стиль архитектуры добавляет дому элегантности и безмятежности: строгие линии фасада и гармоничные пропорции создают ощущение устойчивости и спокойствия, словно вы живёте в уголке вечной классики. Собственник получает выгоду от практичного чердачного помещения, которое может стать личной мастерской, хранением сезонных принадлежностей или уютным уголком для творчества. Просторная терраса, открытая с верхнего этажа, приглашает к вечерним прогулкам, барбекю с друзьями или просто к наблюдению за закатом над тихим пейзажем. Характеристики дома – отсутствие балконов, веранда и прицепный гараж – не ограничивают ваш выбор, а наоборот, позволяют сконцентрироваться на главных ценностях: тепле, уединении и гармонии с природой. Внешние стены из газобетонных блоков не только придают фасаду современное и долговечное обрамление, но и обеспечивают отличную теплоизоляцию, сохраняя ваш дом приятным и экономичным в любую пору года. Этот дом – идеальный вариант для тех, кто ценит уют, простоту и эстетику классических форм. Он создан как оазис спокойствия и надежности, где каждый новый день начинается с уюта домашнего очага, а вечер завершается видом на природу, как в сказке. Если хочется жить в реальном, но в то же время вдохновляющем месте, NHD‑138 станет надёжным и теплым выбором для всей семьи.

Характеристики дома

Архитектурный стиль
Автоматизированное регулирование параметров теплоносителя
Да
Балконы/лоджии
Отсутствуют
Чердачное помещение
Да
Датчики протечки воды
Нет
Эксплуатируемая или зеленая кровля
Нет
Электроснабжение
Центральное
Газоснабжение
Центральное
Изоляция воздушного шума
Да
Камин
Нет
Класс энергоэффективности
A++
Класс энергосбережения
A++
Количество надземных этажей
1
Круглогодичное проживание
Да
Материал кровли
Металлочерепица
Материал перекрытий
Сборные железобетонные предварительно напряженные пустотные плиты
Материал внешних стен
Материал внутренних перегородок
Блочные
Модульное строительство с конструкциями заводского изготовления
Нет
Объем надземной части
734 м3
Основной материал фасадов
Штукатурка
Отопление
Индивидуальное
Площадь дома
122 м2
Площадь застройки
155 м2
Подвальное помещение
Нет
Показатель компактности здания
1
Приборы учета тепловой энергии
Да
Пристроенный гараж/крытая автостоянка
Нет
Противопожарная система
Нет
Санузлы
2
Совмещенная кухня-гостиная
Да
Спальни
3
Терраса
Да
Тип фундамента
Свайно-ростверковый
Тип кровли
Толщина внешних стен
400 мм
Толщина внутренних перегородок
100 мм
Улучшенные шумовые характеристики
Да
Вентиляция
Естественная
Веранда
Нет
Водоотведение
Локальные очистные сооружения
Водоснабжение
Индивидуальное
Высота дома
6.3 м
Высота потолков
2.8 м

Планировка

Фасад дома

Александр

Закажите выезд инженера

Александр

Выездной инженер
Закажите выезд инженера для точной диагностики и профессиональной консультации по инженерным системам. Специалист приедет в удобное время, проведёт осмотр, рассчитает стоимость работ и подберёт оптимальные решения для вашего дома.


    Похожие проекты

    Ипотека и
    рассрочка
    Одноэтажный кирпичный дом ТП-64
    Стоимость от:
    4 439 380
    Проект от: 26 550
    Этажей 1
    Санузлы 1
    Спальни 2
    Смотреть
    Ипотека и
    рассрочка
    Красная горка
    Стоимость от:
    6 614 960
    Проект от: 39 600
    Этажей 1
    Санузлы 1
    Спальни 3
    Смотреть
    Ипотека и
    рассрочка
    Иня
    Стоимость от:
    5 367 120
    Проект от: 34 200
    Этажей 1
    Санузлы 2
    Спальни 2
    Смотреть
    Ипотека и
    рассрочка
    Коттедж С99
    Стоимость от:
    11 295 240
    Проект от: 63 900
    Этажей 1
    Санузлы 2
    Спальни 3
    Смотреть
    Ипотека и
    рассрочка
    Классический дом 160 м2
    Стоимость от:
    11 045 520
    Проект от: 75 150
    Этажей 2
    Санузлы 2
    Спальни 3
    Смотреть
    Ипотека и
    рассрочка
    ДКМ — 44 «Весна», эконом
    Стоимость от:
    4 995 000
    Проект от: 38 250
    Этажей 2
    Санузлы 1
    Спальни 4
    Смотреть

    Как узнать стоимость дома

    back
    Оставляете заявку
    Вы заполняете форму на сайте или звоните нам. Менеджер Лайвкрафт связывается с вами для уточнения деталей: тип дома, площадь, материалы, участок строительства.
    back
    Консультация и подбор решения
    Наш специалист помогает выбрать оптимальный тип дома и конструкцию с учётом бюджета, сроков и целей — будь то дом для постоянного проживания или дача.
    back
    Расчёт предварительной стоимости
    Инженер делает первичный расчёт стоимости строительства по вашим параметрам: фундамент, коробка, кровля, отделка. Вы получаете смету с разбивкой по этапам.
    back
    Корректировка и утверждение сметы
    При необходимости вносим изменения — например, замену материалов или сокращение этапов. После согласования формируется окончательная фиксированная смета.
    back
    Заключение договора и старт работ
    После утверждения сметы заключаем официальный договор с гарантией. Вы получаете прозрачный график и точную стоимость — без скрытых расходов.

    Заказать конусльтацию по:Проект загородного дома NHD-138

    Фото 1 Проект загородного дома NHD-138


      Наши
      контакты

      Дмитров
      Опорный проезд 28Б
      (индустриальный парк Ниагара)
      9:00 до 18:00

      Корзина