4.9
Рейтинг на основании 120 отзывов
Дмитров
Опорный проезд 28Б
(индустриальный парк Ниагара)
Бренд "Дмитров-Дело" c 2008 года на рынке строительства в Дмитрове
Звоните 9:00 до 18:00 8 (915) 055-33-61
Бренд "Дмитров-Дело" c 2008 года на рынке строительства в Дмитрове

Проект загородного дома NHD-118

Стоимость проекта от:
60 750 ₽
БЕСПЛАТНО! ПРИ ЗАКАЗЕ СТРОИТЕЛЬСТВА
Стоимость строительства от:
9 776 400 ₽
Артикул ART-15769
Дата 25.12.2025
Архитектурный стиль Классический
Количество надземных этажей 2
Круглогодичное проживание Да
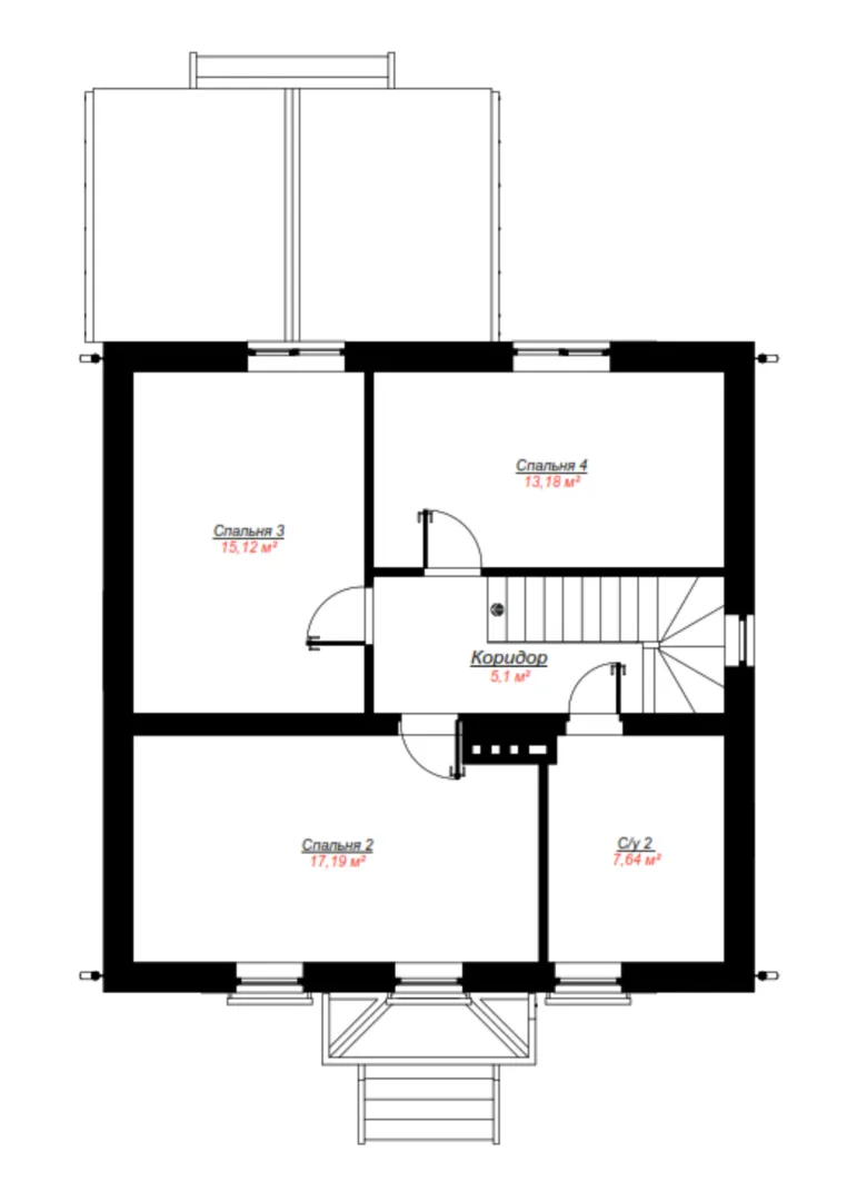
Площадь дома 135 м2
Санузлы 2
Спальни 4

Описание

Доверьтесь мечте о спокойной, уютной обители, где каждая деталь заботливо собрана в гармоничную целостность. Проект загородного дома NHD‑118 воплощает в себе классику в её чистейшем проявлении: строгие линии фасада, высокие окна, величественная черта крыш, ставящая точку над простотой и изысканностью. Двухэтажная планировка позволяет распределить пространство так, чтобы в любой момент вы могли окунуться в собственную оазис уюта: открытая кухня, светлый холл, просторный спальная зона на первом этаже, а на втором — тихие уголки для чтения и домашнего творчества. Круглогодичное проживание стало возможным благодаря изоляционной системе газобетонных блоков, которые не только сохраняют тепло, но и придают стенам эластичность и устойчивость к стихиям. Двускатная крыша, выполненная в классическом стиле, защищает от дождя и снега, придавая дому величественный характер. И хотя в доме нет внешних площадей вроде балконов и веранд, его чердачная площадь и просторная терраса компенсируют это, открывая вам возможность наслаждаться открытым воздухом под ясным небом, обустроив уютное место для чтения, игр с детьми или вечерних барбекю. NHD‑118 – это не просто здание, а убежище, где каждая деталь служит вашему комфорту. Создайте дом своей мечты, где классика встречается с современными удобствами, а природа согревает ваш дом в любое время года.

Характеристики дома

Архитектурный стиль
Автоматизированное регулирование параметров теплоносителя
Да
Балконы/лоджии
Отсутствуют
Чердачное помещение
Да
Датчики протечки воды
Нет
Эксплуатируемая или зеленая кровля
Нет
Электроснабжение
Центральное
Газоснабжение
Центральное
Изоляция воздушного шума
Да
Камин
Нет
Класс энергоэффективности
A++
Класс энергосбережения
A++
Количество надземных этажей
2
Круглогодичное проживание
Да
Материал кровли
Металлочерепица
Материал перекрытий
Сборные железобетонные предварительно напряженные пустотные плиты
Материал внешних стен
Материал внутренних перегородок
Блочные
Модульное строительство с конструкциями заводского изготовления
Нет
Объем надземной части
720 м3
Основной материал фасадов
Штукатурка
Отопление
Индивидуальное
Площадь дома
135 м2
Площадь застройки
174 м2
Подвальное помещение
Нет
Показатель компактности здания
0.8
Приборы учета тепловой энергии
Да
Пристроенный гараж/крытая автостоянка
Нет
Противопожарная система
Нет
Санузлы
2
Совмещенная кухня-гостиная
Да
Спальни
4
Терраса
Да
Тип фундамента
Свайно-ростверковый
Тип кровли
Толщина внешних стен
400 мм
Толщина внутренних перегородок
100 мм
Улучшенные шумовые характеристики
Да
Вентиляция
Естественная
Веранда
Нет
Водоотведение
Локальные очистные сооружения
Водоснабжение
Индивидуальное
Высота дома
8.9 м
Высота потолков
2.8 м

Планировка

Фасад дома

Александр

Закажите выезд инженера

Александр

Выездной инженер
Закажите выезд инженера для точной диагностики и профессиональной консультации по инженерным системам. Специалист приедет в удобное время, проведёт осмотр, рассчитает стоимость работ и подберёт оптимальные решения для вашего дома.


    Похожие проекты

    Ипотека и
    рассрочка
    Двухэтажный коттедж С120
    Стоимость от:
    11 513 760
    Проект от: 69 300
    Этажей 2
    Санузлы 2
    Спальни 4
    Смотреть
    Ипотека и
    рассрочка
    ЛЕСНЫЕ ПРОСТОРЫ
    Стоимость от:
    9 989 540
    Проект от: 61 650
    Этажей 1
    Санузлы 2
    Спальни 3
    Смотреть
    Ипотека и
    рассрочка
    СКАНДИ 50
    Стоимость от:
    2 279 805
    Проект от: 18 450
    Этажей 1
    Санузлы 1
    Спальни 1
    Смотреть
    Ипотека и
    рассрочка
    SH «Малевич»
    Стоимость от:
    15 440 040
    Проект от: 113 400
    Этажей 1
    Санузлы 3
    Спальни 4
    Смотреть
    Ипотека и
    рассрочка
    Одноэтажный жилой дом с тремя спальнями «Соловьевка»
    Стоимость от:
    7 065 080
    Проект от: 42 300
    Этажей 1
    Санузлы 2
    Спальни 3
    Смотреть
    Ипотека и
    рассрочка
    Проект Гвиненко
    Стоимость от:
    7 244 820
    Проект от: 40 950
    Этажей 1
    Санузлы 1
    Спальни 3
    Смотреть

    Как узнать стоимость дома

    back
    Оставляете заявку
    Вы заполняете форму на сайте или звоните нам. Менеджер Лайвкрафт связывается с вами для уточнения деталей: тип дома, площадь, материалы, участок строительства.
    back
    Консультация и подбор решения
    Наш специалист помогает выбрать оптимальный тип дома и конструкцию с учётом бюджета, сроков и целей — будь то дом для постоянного проживания или дача.
    back
    Расчёт предварительной стоимости
    Инженер делает первичный расчёт стоимости строительства по вашим параметрам: фундамент, коробка, кровля, отделка. Вы получаете смету с разбивкой по этапам.
    back
    Корректировка и утверждение сметы
    При необходимости вносим изменения — например, замену материалов или сокращение этапов. После согласования формируется окончательная фиксированная смета.
    back
    Заключение договора и старт работ
    После утверждения сметы заключаем официальный договор с гарантией. Вы получаете прозрачный график и точную стоимость — без скрытых расходов.

    Заказать конусльтацию по:Проект загородного дома NHD-118

    Фото 1 Проект загородного дома NHD-118


      Наши
      контакты

      Дмитров
      Опорный проезд 28Б
      (индустриальный парк Ниагара)
      9:00 до 18:00

      Корзина